Le Labo Daikanyama by Schemata Architects + Jo Nagasaka
A refined Tokyo boutique showcasing open fragrance labs and wood-grained concrete, blending craftsmanship, material honesty, and immersive retail experience.
Located in Shibuya, Le Labo Daikanyama is a carefully considered retail renovation that brings together craftsmanship, material honesty, and urban sensitivity. Completed in 2025, the 115 m² project renews one of the brand’s most important global locations, reinterpreting its identity through architecture that reflects both tradition and contemporary life in Tokyo.

Designed by Schemata Architects in collaboration with Jo Nagasaka, the project marks their second partnership with the fragrance brand Le Labo, following the Kyoto Machiya store. This renovation responds to the need for renewal after eighteen years of operation, while preserving the spirit and memory embedded within the existing space.


Reconnecting the Brand with the Street
The Daikanyama boutique holds particular historical importance as Le Labo’s first store outside the United States. Over time, the space had become inward-looking, with the fragrance laboratory positioned at the rear and largely hidden from public view. One of the primary objectives of the renovation was to reverse this condition and reconnect the store with the surrounding urban fabric.

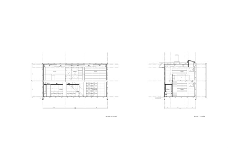
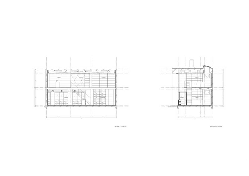
To achieve this, the architects relocated the fragrance laboratory to the front of the shop. Now visible from the street, the blending process becomes a central visual and spatial feature. Passersby can observe perfumers at work, transforming production into a public and engaging experience. This gesture strengthens transparency, reinforces trust, and highlights the artisanal nature of the brand.
By placing craftsmanship at the forefront, the store shifts from being a conventional retail environment to becoming a hybrid space that combines workshop, showroom, and urban interface.


Interpreting Tokyo Through Material
Material selection plays a defining role in expressing the relationship between the store and its context. Le Labo proposed wood and concrete as the primary elements, reflecting Tokyo’s distinctive character, where intense urban energy coexists with moments of calm and refinement.

During site analysis, the architects identified two contrasting types of concrete in the existing structure. One was a polished, glossy surface associated with standardized construction methods, concealing the traces of labor. The other was a rough structural concrete, marked by formwork imprints and construction irregularities, revealing the human process behind its creation.
The design team was drawn to the second type for its honesty and tactile quality. Rather than covering or replacing it, they chose to preserve and reinterpret this raw material expression as a central architectural theme.


Wood-Grained Concrete and Circular Craft
To deepen the dialogue between wood and concrete, the architects developed a custom formwork system using red cedar treated with the traditional Uzukuri technique, which enhances natural wood grain. Concrete poured into this textured formwork captured the uneven surface of the timber, producing precast panels imprinted with organic patterns.

These panels were used as wall elements throughout the store, creating a subtle fusion of softness and solidity. The resulting surfaces embody both industrial precision and handcrafted imperfection.
In parallel, the cedar formwork itself was reused as furniture, shelving, and display elements. This circular use of materials extends the narrative of construction into everyday experience, allowing traces of craftsmanship to remain visible and meaningful. Through this approach, material becomes both structure and story.


Spatial Organization and Retail Experience
The interior layout is organized around clarity, openness, and visual continuity. The relocated fragrance laboratory forms the spatial core, while circulation and display systems are arranged around it.

Minimal partitions and open sightlines ensure uninterrupted movement between the street, laboratory, and retail areas. Customers naturally transition from observing the blending process to engaging with products and staff. The counters, where perfumes are prepared and presented, function as social interfaces, strengthening the relationship between maker and consumer.


This spatial strategy dissolves traditional hierarchies between back-of-house and front-of-house, reinforcing the idea of retail as an experiential and participatory environment.
Preserving Time and Imperfection
A defining aspect of the renovation is its respectful treatment of the existing building. Rather than erasing signs of age and use, the architects chose to integrate them into the new design.

Formwork marks, duct grooves, ceiling recesses, and structural traces remain visible. These elements document the building’s history and prevent the interior from becoming anonymous or overly polished. The space becomes a layered environment in which past and present coexist, enriching the visitor’s experience through subtle narrative depth.
This approach reflects a broader philosophy that values continuity over replacement and authenticity over superficial perfection.


Atmosphere, Light, and Comfort
Despite its raw material palette, the interior atmosphere is calm, balanced, and inviting. Soft lighting highlights textures without overpowering them, while glass elements enhance transparency and spatial depth. The restrained color scheme allows wood grain, concrete surfaces, and handcrafted details to take visual priority.

Natural and artificial light work together to create a gentle rhythm throughout the day, supporting both functional clarity and emotional comfort. The result is an environment that feels precise yet warm, industrial yet intimate.
Sustainability Through Longevity and Reuse
Sustainability in this project is achieved through restraint, reuse, and durability rather than technological display. By retaining the existing structure, minimizing demolition, and reusing construction materials, the renovation significantly reduces environmental impact.

The use of long-lasting concrete and timber ensures that the space can age gracefully, reinforcing the idea that environmental responsibility is closely linked to long-term relevance and adaptability. This strategy aligns with both architectural ethics and brand values.
Architecture as Brand Expression
Le Labo’s identity is rooted in personalization, handmade production, and authenticity. These principles are translated into architectural form through visible processes, exposed materials, and tactile surfaces.

The building itself becomes an extension of the brand’s philosophy. Customers do not simply purchase fragrance; they encounter its making, its materials, and its cultural context. Architecture functions as a medium that communicates values, not just aesthetics.
A Contemporary Model for Retail Design
Le Labo Daikanyama demonstrates how retail interiors can move beyond surface design to become meaningful cultural spaces. Through material intelligence, spatial openness, and respect for history, the project redefines the relationship between commerce, craft, and city life.

By balancing innovation with continuity, Schemata Architects and Jo Nagasaka have created a boutique that reflects contemporary Tokyo while remaining faithful to artisanal tradition. The project stands as a benchmark for thoughtful retail renovation, showing how architecture can enhance identity, experience, and sustainability simultaneously.
Popular Articles
Popular articles from the community
Free Architecture Competitions You Can Enter Right Now
No entry fees, real prizes. Here are the best free architecture competitions open for submissions in 2026.
Solar Steam: A Climate-Responsive Architecture That Redefines the Monument
A climate-responsive memorial architecture that transforms heat, decay, and time into a living system reflecting humanity’s ecological impact.
Gads Hill Early Learning Center by JGMA: Adaptive Reuse Shaping Community-Focused Educational Architecture
Adaptive reuse transforms fragmented structure into vibrant early learning center with playful façade, natural light, and community-focused sustainable design.
Alton Cliff House: A Harmonious Retreat by f2a Architecture in Lake Country, Canada
Alton Cliff House blends corten steel, prefabrication, and sustainable design, creating a luxurious, energy-efficient retreat perched on Canadian cliffs.
Similar Reads
You might also enjoy these articles
The Ken Roberts Memorial Delineation Competition (Krob)
As the most senior architectural drawing competition currently in operation anywhere in the world, it draws hundreds of entries each year, awarding the very best submissions in a series of medium-based categories.
Waterfront Redevelopment and Urban Revitalization in Mumbai: Forging a New Dawn for Darukhana
A transformative waterfront redevelopment project reimagining Darukhana’s shipbreaking heritage into an inclusive urban future.
OUT-OF-MAP: A Call for Postcards on Feminist Narratives of Public Space
Rhizoma Design and Research Lab invites artists, designers, architects, researchers, and students to reflect on how feminist perspectives can reshape public space. Selected works will be exhibited in Barcelona, October 2026. Submissions open until 15 April 2026.
Documentation Work on Buddhist Wooden Temple
Architectural syncretism and cultural hybridity: A comparative study of the Buddhist temples in Chattogram Hill tracks
Explore Architecture Competitions
Discover active competitions in this discipline
The International Standard for Design Portfolios
The Global Benchmark for Architecture Dissertation Awards
The Global Benchmark for Graduation Excellence
Challenge to design luxury tourism on rails
Comments (0)
Please login or sign up to add comments
No comments yet. Be the first to comment!