SOHO Architects Wraps a Kerala Home Around Courtyards, Curves, and a Central Void
In Mathamangalam, a split-wing tropical house turns inward to frame sky, water, and a single courtyard tree.
Kerala's residential architecture has a long memory. Tiled roofs, deep verandas, and central courtyards are not stylistic choices so much as climatic reflexes, evolved over centuries to handle monsoon rain and equatorial heat. The challenge for any contemporary architect working in the region is not whether to acknowledge that tradition but how to absorb it without mimicry. At Mathamangalam, SOHO Architects answers by splitting the house into two parallel wings joined by a double-height living volume, wrapping the whole composition around a series of courtyards that pull light, air, and landscape deep into the plan.
What makes the project genuinely interesting is its discipline. The palette is tight: white stucco, vertical timber cladding, polished stone floors, and slatted screens that recur at every scale from facade to furniture. But the spatial moves are generous. A reflecting pool stretches along one elevation. Curved perforated screen walls guide movement through the garden. A circular skylight punctuates a corridor like a lens trained on the sky. The house never shouts, yet every turn offers a carefully composed frame.
A Facade That Layers Rather Than Conceals



From the street, the house reads as a sequence of planes rather than a single mass. White columns support a cantilevered concrete roof that floats above the entry, while vertical timber cladding and metal louvers occupy the wall planes behind. Mature coconut palms and specimen trees soften the geometry without hiding it. The reflecting pool along the ground line doubles the facade in still water, turning a two-story elevation into something more ambiguous and expansive.
The layering is strategic. Slatted screens sit in front of glazing, which sits in front of deeper interior walls. Privacy increases as you move inward, but light never fully disappears. It is a gradient, not a barrier, and it lets the house breathe laterally even when rain sheets down from the flat roofs.
Curved Screens and Stepping Stones



The landscape strategy introduces a geometry the architecture itself avoids. While the building is rectilinear, the garden walls curve. White perforated screen walls arc through the lawn, guiding visitors along stepping stone paths toward concealed courtyards. One courtyard is almost monastic in its restraint: a single tree, a white chair, gravel ground cover, and nothing else. The curve of the enclosing wall turns the space into something closer to a sculpture garden than a backyard.
These curved elements serve a practical role too. They break wind, filter views from neighboring plots, and create microclimates where shade accumulates. In a flat site with few natural barriers, they do the work that topography would do elsewhere.
The Double-Height Core



The heart of the house is a double-height living volume that connects the two wings and opens directly to a courtyard pool. A cantilevered stone staircase with a glass balustrade rises through this space, its mass grounding the room while its transparency keeps sightlines open. Above, a timber slatted ceiling runs continuously from the dining area into the living room, unifying the zone under a warm, rhythmic surface.
Floor-to-ceiling glazing dissolves the boundary between the polished stone interior and the timber deck outside. When the sliding doors are open, the pool, the vertical slat screen, and the garden beyond become extensions of the room. The effect is deliberate: social life gravitates here because it is simultaneously the most sheltered and the most connected space in the house.
Thresholds of Light



SOHO Architects treats circulation as an opportunity to modulate light. The entry corridor frames a courtyard through a vertical slat screen, with an oval skylight overhead casting a shifting column of illumination onto the floor below. Elsewhere, a circular portal cuts through a translucent glass screen, turning a hallway into a sequence of glowing thresholds. A second circular skylight punches through the roof above a metal screen, framing the canopy of a tree against a white concrete rim.
None of these moments are incidental. They control the emotional temperature of movement through the house. You pass from bright entry to dim corridor to lit courtyard, and the rhythm keeps the plan legible even when walls and screens obscure direct sightlines.
Living with the Landscape



The terraced lawn to the front uses striped stone steps to negotiate a gentle grade change, creating a landscaped forecourt that buffers the house from the road. At the rear, a green-tiled pool runs alongside a timber deck, with sliding glass doors erasing the line between indoors and out at dusk. The covered entry terrace, with its terracotta tile roof and glazed planters, sits somewhere between veranda and outdoor room, a transitional zone that belongs fully to neither inside nor outside.
These landscape gestures are not decorative. In Kerala's climate, the outdoor room is the primary room for much of the year. By distributing usable outdoor space across multiple elevations and levels, SOHO Architects ensures that the house has a comfortable outdoor zone regardless of sun angle or wind direction.
Material Restraint, Textural Richness



The interior palette trades variety for depth. Horizontal stone cladding anchors the living room wall behind a leather sectional. In the bedroom, a reclaimed wood headboard sits against a timber slat wall, framing a view of the garden through floor-to-ceiling glass. A narrow doorway in the living room isolates a distant view of hills, turning landscape into a vertical painting.
Materials recur but never repeat identically. Timber appears as ceiling slats, wall cladding, decking, and screening, each time at a different scale and orientation. Stone shifts from polished floor to rough wall. The consistency keeps the house visually quiet while the variation rewards close attention.
Outdoor Rooms and Edges



A covered terrace with wet brick pavers faces one of the curved slatted screen walls, creating an enclosed outdoor room that feels sheltered even in open air. From inside, the view through concrete columns toward a stepping stone path flanked by black planters reinforces the layered threshold logic that governs the entire plan. The side elevation reveals how the white stucco volumes and dark vertical cladding panels alternate, giving the massing a syncopated rhythm that avoids the monotony of a single material.
The View Through


One of the house's strongest qualities is its insistence on framed views. Nearly every room offers a composed line of sight: through glazing to a timber deck, through a doorway to a distant hillside, through a screen to a courtyard tree. These are not accidental alignments. The plans show deliberate axial relationships between openings, and the sections confirm that the double-height void acts as a visual anchor that connects upper and lower levels across open air.
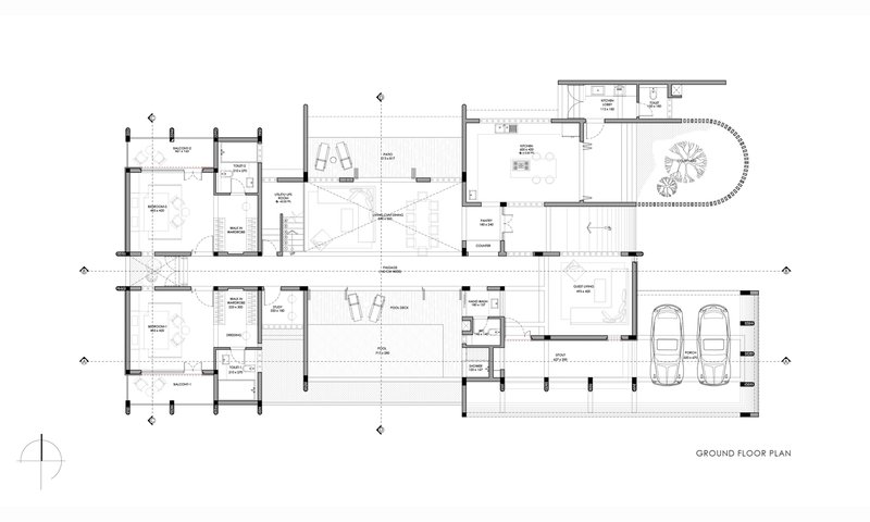
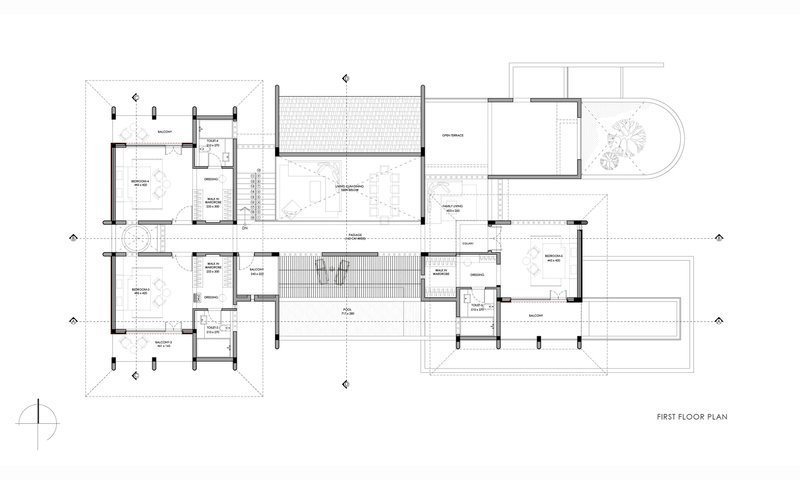
Plans and Drawings





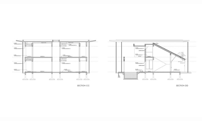
The ground floor plan reveals the split-wing strategy clearly. Two parallel bars of program flank a central courtyard, with a curved stair volume mediating between them. The first floor plan shows upper-level rooms organized around the double-height void, which serves as a vertical connector and light well. The exploded axonometric separates the layers: ground floor, first floor, and two distinct roof planes, making the structural logic legible at a glance.
The section drawings are equally instructive. They expose the split-level relationships within the two wings and confirm that the flat roofs sit at different heights, creating clerestory opportunities that the photos hint at but never fully explain. The column grid is regular and disciplined, allowing the free plan variations above to read as deliberate departures rather than structural compromises.
Why This Project Matters
Mathamangalam House demonstrates that tropical residential architecture does not have to choose between openness and privacy, between contemporary expression and climatic intelligence. SOHO Architects achieves both by treating the house as a collection of calibrated thresholds: screen walls, courtyards, reflecting pools, and double-height voids that regulate light, air, and view with precision. The result is a home that performs well in Kerala's demanding climate while offering the spatial generosity that makes daily life feel unhurried.
More broadly, the project shows what happens when an architect commits to a limited palette and a clear organizational idea. The split-wing plan with a central void is not a new concept, but the execution here, particularly the interplay between rectilinear architecture and curvilinear landscape, gives it fresh energy. It is a house that rewards repeated visits, both in person and on the page, because its layered thresholds keep revealing new relationships between inside and out.
Mathamangalam House by SOHO Architects, Mathamangalam, Kerala, India. Photography by Varun Gopal and Abin Biju.
About the Studio
Share Your Own Work on uni.xyz
If projects like this are the kind of work you want to make, uni.xyz is a place to publish your own, find collaborators, and enter design competitions.
Popular Articles
Popular articles from the community
Split House: A Compact Urban Home Blending Privacy, Light, and Flexible Living in Japan
Compact Japanese home featuring DOMA space, flexible café potential, passive lighting, privacy zoning, and sustainable urban living design.
20 Most Popular Commercial Architecture Projects of 2025
From sustainable market concepts to heritage factories, the commercial buildings and proposals that drew the most attention on uni.xyz this year.
Marvila Apartment Renovation in Lisbon: A Bright Minimalist Attic Transformation by KEMA Studio
Bright attic transformed into minimalist Lisbon apartment with skylights, sustainable materials, open plan layout, and industrial-inspired interior design elements.
Similar Reads
You might also enjoy these articles
Filtering Space: A Gradual Spatial Experience
From urban intensity to spatial calm.
The Ken Roberts Memorial Delineation Competition (Krob)
As the most senior architectural drawing competition currently in operation anywhere in the world, it draws hundreds of entries each year, awarding the very best submissions in a series of medium-based categories.
Waterfront Redevelopment and Urban Revitalization in Mumbai: Forging a New Dawn for Darukhana
A transformative waterfront redevelopment project reimagining Darukhana’s shipbreaking heritage into an inclusive urban future.
OUT-OF-MAP: A Call for Postcards on Feminist Narratives of Public Space
Rhizoma Design and Research Lab invites artists, designers, architects, researchers, and students to reflect on how feminist perspectives can reshape public space. Selected works will be exhibited in Barcelona, October 2026. Submissions open until 15 April 2026.
Explore Architecture Competitions
Discover active competitions in this discipline
The International Standard for Design Portfolios
The Global Benchmark for Architecture Dissertation Awards
The Global Benchmark for Graduation Excellence
Challenge to reimagine the Iron Throne
Comments (0)
Please login or sign up to add comments
No comments yet. Be the first to comment!