Mixed-Use Student Housing Architecture: Fish Island by Henley Halebrown
A dynamic mixed-use development combining student housing, creative studios, and public spaces rooted in London’s industrial and cultural heritage.
Transforming Industrial Heritage into Urban Learning Hubs
In Hackney Wick, East London, the Fish Island mixed-use development by Henley Halebrown reimagines an industrial past through the lens of future-ready student housing and creative enterprise. Designed across two phases—Fish Island West (2018) and Fish Island East (2021)—the project occupies the former site of the John Broadwood & Sons piano factory, now reconfigured into a contemporary educational and residential campus for the University of the Arts London (UAL).



Rooted in the gritty materiality of London’s industrial heritage, the architecture reflects a powerful shift in urban reuse—offering not just shelter but a thriving ecosystem of student residences, workspaces, and community facilities, integrated into the creative tapestry of the neighborhood.



A Cohesive Urban Fabric for Living, Learning, and Creating
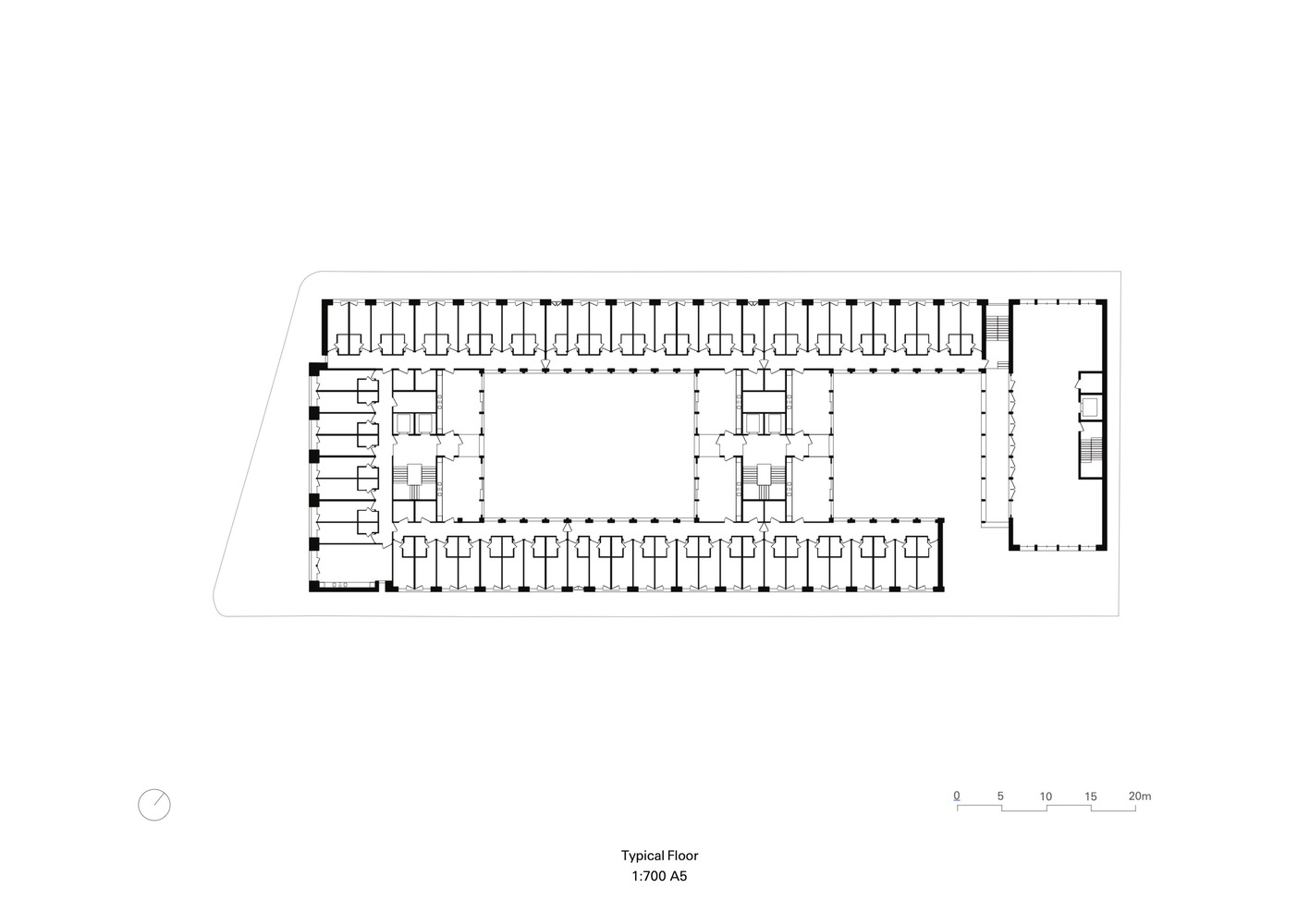
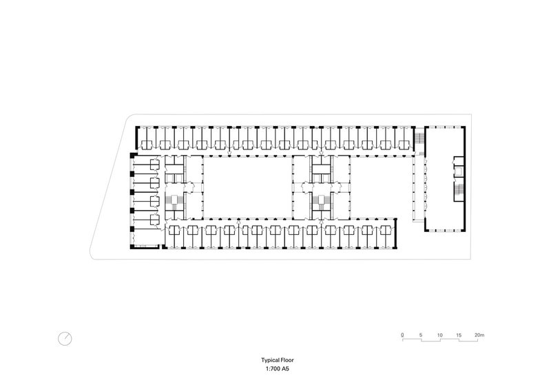
The design at Fish Island West accommodates 330 student residents and includes incubator studios for UAL graduates and affordable commercial spaces. A careful arrangement of 37 flats surrounds two distinct courtyards—one private, reserved for residents, and another public, activated by a five-storey commercial studio building with accessible working decks. This layout carves public routes into the dense site, stitching it into the wider urban context with spatial clarity.


A new west-facing public plaza fronts the main residential entrance and the nearby historic Algha Works, providing a civic gesture that enhances street-level interaction. Each floor stacks seven flats, with private bedrooms placed along the perimeter to offer street views, while communal kitchens and circulation zones open onto the courtyards—fostering daily social engagement within the student community.



Brick, Concrete, and Colour: An Architectural Language of Resilience
Henley Halebrown embraces the site’s industrial identity through robust materials. The West building features a grand rhythm of brick piers and precast concrete arched beams. Instead of monotonous window grids, groups of four windows punctuate each structural bay, humanizing the building’s long 71-meter façade. The injection of bright colors into the window frames adds vibrancy and echoes the neighborhood's creative energy.


By contrast, Fish Island East, set for completion in 2027, adopts a finer scale. Its façades feature a tightly woven pattern of brick piers and spandrels that frame individual windows, differing from the larger openings on the West. These variations allow the East and West buildings to converse architecturally while responding to their specific urban conditions.


Architectural Strategy for Community Regeneration
The overall design aligns with the broader goals of mixed-use student housing architecture: sustainability, adaptability, and integration with local culture. By embedding residential units, educational spaces, and community functions into a cohesive architectural framework, the development enhances the existing social and creative infrastructure of Hackney Wick.


The presence of Stour Trust, a local community organization in the East phase, introduces additional affordable workspaces for local creatives. This ensures long-term cultural sustainability and counters the exclusivity often associated with student housing projects.


Lessons in Scale, Density, and Design Quality
The Fish Island scheme challenges preconceptions around student housing. Rather than isolated towers or generic dorm blocks, the architecture responds to site conditions, celebrates historical context, and foregrounds community needs. The choice to build with masonry helps temper the scale of the development, while varied architectural expression across the site breaks visual monotony.

Henley Halebrown’s commitment to creating legible, accessible, and durable architecture results in a neighborhood-enhancing intervention that respects its industrial past while crafting new forms of urban living and learning.

A Model for Future Mixed-Use Academic Districts
The Fish Island project represents an evolved form of mixed-use student housing architecture—one that sees housing not as a standalone typology, but as a critical piece of a vibrant urban ecosystem. It’s a model that recognizes students as future citizens and creatives as community builders, seamlessly blending education, commerce, and local life.

All the photographs are works of David Grandorge, Rory Gaylor
Popular Articles
Popular articles from the community
The Ken Roberts Memorial Delineation Competition (Krob)
As the most senior architectural drawing competition currently in operation anywhere in the world, it draws hundreds of entries each year, awarding the very best submissions in a series of medium-based categories.
Split House: A Compact Urban Home Blending Privacy, Light, and Flexible Living in Japan
Compact Japanese home featuring DOMA space, flexible café potential, passive lighting, privacy zoning, and sustainable urban living design.
Atelier Macri Concept Store Interior Design by CASE-REAL
Atelier Macri store features a "ko" counter, walnut wood details, cork displays, blending retail, gallery, and seamless customer experiences.
Similar Reads
You might also enjoy these articles
Bamboo Housing Challenge 2026: Design Affordable, Sustainable Homes Using Bamboo
An international design competition by Bamboo U and IBUKU inviting architects and designers to reimagine affordable housing using bamboo — with the winning design built full-scale in Bali.
Computational Design & Education: Beegraphy Design Awards Introduces 7th Category (Featuring Jiyun's Innovative Approach)
Dive into Beegraphy’s 7th Design Awards category, where computational design meets education to create immersive, interactive learning tools, inspired by Jiyun’s work.
From Parametric Lighting to Urban Furniture: Join the 2nd Workshop in Beegraphy’s Computational Design Series
Dive into Cutting-Edge Design Techniques and Practical Applications with Industry Experts
Explore Architecture Competitions
Discover active competitions in this discipline
The International Standard for Design Portfolios
The Global Benchmark for Architecture Dissertation Awards
The Global Benchmark for Graduation Excellence
Challenge to reimagine the Iron Throne
Comments (0)
Please login or sign up to add comments
No comments yet. Be the first to comment!