Modern Brazilian House Design: Floreira House by Matheus Farah + Manoel Maia Arquitetura
A minimalist countryside residence in São Paulo that exemplifies modern Brazilian house design through nature, concrete, and thoughtful simplicity.
A Contemporary Residence Rooted in Nature and Minimalism
Floreira House by Matheus Farah + Manoel Maia Arquitetura exemplifies modern Brazilian house design through its seamless integration with nature, refined materiality, and minimalist elegance. Located in a countryside condominium in Porto Feliz, São Paulo, the 1,270-square-meter residence is a haven of privacy, comfort, and sophistication—designed to be both a tranquil family retreat and a social space for entertaining.



Surrounded by a lush garden and defined by a prominent suspended planter that envelops the upper floor, the house cultivates a constant dialogue between architecture and the surrounding landscape. This green element not only inspires the house’s name but becomes a central architectural gesture that softens transitions and adds depth to the facade.



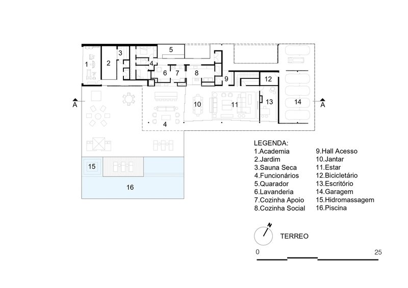
Designing Around the Garden as a Living Core
At the heart of the home lies an expansive garden situated at the rear of the 3,182-square-meter lot. This green space is not only ornamental but the organizing principle of the design. All internal spaces are oriented toward it, allowing light, air, and views to infuse the interiors. On the ground level, the garden is complemented by a large swimming pool that connects fluidly with the living areas.



The social spaces—living room, dining room, and home office—are arranged around the pool and feature wide glass panels that open entirely, transforming the indoors into a breezy veranda. These glass elements offer visual continuity while dissolving boundaries between interior and exterior, a defining trait of modern Brazilian house design.



Embracing Material Honesty and Functional Design
Transparency is intentionally contrasted with mass. While the social spaces open up, the service areas such as the kitchen, laundry, gym, sauna, and changing room are enclosed by solid concrete walls. This contrast highlights the functional zoning of the house and elevates the spatial experience.


Upstairs, privacy is maintained through thoughtful orientation. The six suites are distributed to ensure optimal natural lighting and ventilation. Five suites feature aluminum brise-soleils that provide sun shading and controlled views toward the sides of the plot. The master suite, however, claims the prized view—opening directly to the rear garden and pool. A private balcony in the master bedroom offers a peaceful outlook over the landscape, reinforcing the emotional connection between dwelling and site.


A Curated Interior with Brazilian Design Icons
The interior finishes lean into a neutral, earthy palette, reinforcing the minimalist architectural concept. Spaces are carefully curated with iconic furniture by Brazilian masters including Jorge Zalszupin, Sergio Rodrigues, Jader Almeida, and Carlos Motta. This selection not only pays homage to the country's design legacy but also grounds the house in a cultural context that values craftsmanship and material richness.


Subtle lighting schemes enhance the mood of the interiors. Personalized controls allow the residents to adjust illumination according to the time of day or activity, ensuring adaptability and comfort in every space.


Sustainable Living Through Prefabrication and Smart Systems
The Floreira House sets an example in sustainable residential design by prioritizing efficiency and low-impact construction methods. Prefabricated and industrialized materials were chosen to streamline execution and reduce waste, fulfilling the clients’ desire for a straightforward and agile building process.

On the facade, concrete panels with a wood texture offer a nuanced expression that distinguishes the volumes of the home. These panels vary in tone, adding depth and a handcrafted feel to the robust materiality. Infrastructure for photovoltaic panels has been incorporated into the design, along with an automated irrigation system that ensures the garden’s vitality with minimal water waste.

This commitment to sustainability extends from construction to daily life, offering a model of eco-conscious design that aligns with the principles of modern Brazilian house design—blending sophistication, nature, and resilience.

Floreira House as a Statement of Brazilian Contemporary Living
Floreira House is not only a private residence—it is a manifesto of modern Brazilian house design that bridges architectural clarity with environmental sensitivity. By creating a structure that feels both open and grounded, public yet private, Matheus Farah + Manoel Maia Arquitetura have redefined what it means to live in harmony with the land. Through its honest materials, generous volumes, and deep integration with nature, the house becomes a timeless reference for contemporary architecture in Brazil.





All Photographs are works of Nelson Kon
Popular Articles
Popular articles from the community
Fifth NRE Jazz Club – De Bever Architecten: Eindhoven’s Revitalized Cultural Hub
Historic gas factory transformed into Fifth NRE Jazz Club blending modern sustainability, jazz culture, dining, and heritage architecture seamlessly.
Split House: A Compact Urban Home Blending Privacy, Light, and Flexible Living in Japan
Compact Japanese home featuring DOMA space, flexible café potential, passive lighting, privacy zoning, and sustainable urban living design.
Atelier Macri Concept Store Interior Design by CASE-REAL
Atelier Macri store features a "ko" counter, walnut wood details, cork displays, blending retail, gallery, and seamless customer experiences.
Similar Reads
You might also enjoy these articles
Bamboo Housing Challenge 2026: Design Affordable, Sustainable Homes Using Bamboo
An international design competition by Bamboo U and IBUKU inviting architects and designers to reimagine affordable housing using bamboo — with the winning design built full-scale in Bali.
Computational Design & Education: Beegraphy Design Awards Introduces 7th Category (Featuring Jiyun's Innovative Approach)
Dive into Beegraphy’s 7th Design Awards category, where computational design meets education to create immersive, interactive learning tools, inspired by Jiyun’s work.
From Parametric Lighting to Urban Furniture: Join the 2nd Workshop in Beegraphy’s Computational Design Series
Dive into Cutting-Edge Design Techniques and Practical Applications with Industry Experts
Explore Architecture Competitions
Discover active competitions in this discipline
The International Standard for Design Portfolios
The Global Benchmark for Architecture Dissertation Awards
The Global Benchmark for Graduation Excellence
Challenge to reimagine the Iron Throne
Comments (0)
Please login or sign up to add comments
No comments yet. Be the first to comment!