Modern Cabin Design in the Forest: Refugio Calfuco by Tomás de Iruarrizaga
Refugio Calfuco in Chile blends modern cabin design in the forest with traditional craftsmanship, elevated living, and deep environmental sensitivity.
Perched in the lush Valdivian rainforest near Valdivia, Chile, Refugio Calfuco is a striking example of modern cabin design in the forest. Designed by architect Tomás de Iruarrizaga in 2022, this 50 m² retreat reinterprets the traditional cabin concept into a vertical, compact, and nature-integrated living space. Elevated above the forest floor, the cabin seeks northern light while minimizing its footprint, blending innovation with deep respect for the surrounding environment.



A Vertical Approach to Cabin Architecture
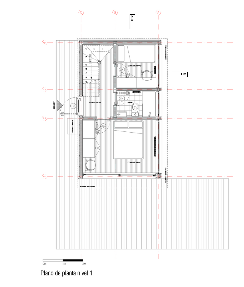
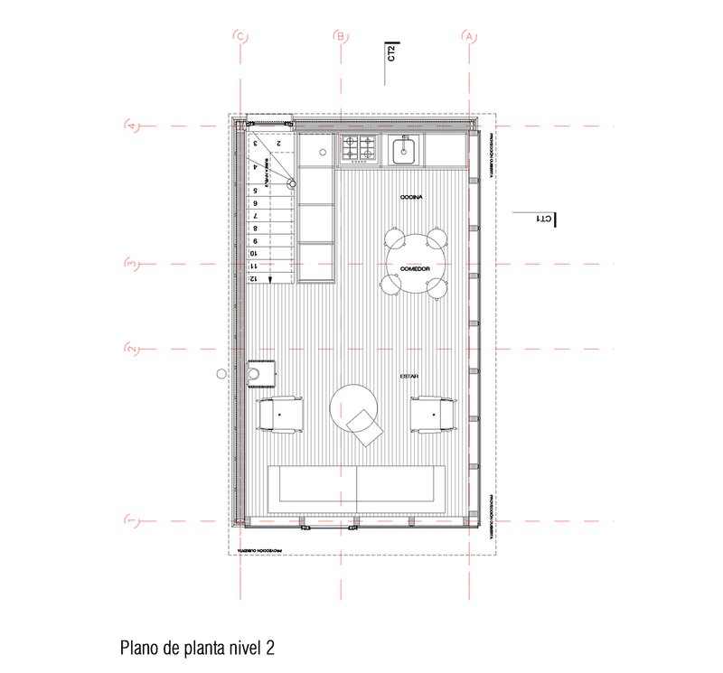
Instead of sprawling across the landscape, Refugio Calfuco adopts a slender tower form that rises ten meters above ground level to meet the treetops. The footprint is a simple four-by-seven-meter rectangle, strategically positioned between existing trees. This elevated design not only reduces environmental impact but also immerses inhabitants in the forest canopy, creating an intimate connection with nature.



Functional and Minimal Interior Layout
The cabin’s two floors are designed for maximum efficiency. The first floor contains a compact entryway that doubles as a corridor, connecting two bedrooms, a single bathroom, and the staircase. The second floor opens into a spacious living area and kitchen, designed to capture panoramic forest views. Varying ceiling heights respond both to functional needs and to the grandeur of the surrounding landscape.



Warm, Tactile Interiors Inspired by Nautical Craftsmanship
Refugio Calfuco’s interior is crafted entirely from laurel wood, enveloping the space in warmth and a tactile, organic quality. Much like the interior of a boat, the design integrates built-in furniture and exposes the structure’s ribs and keels. This approach creates a seamless environment where architecture and furnishing are intertwined.





Distinctive Exterior Form and Structure
Externally, the cabin presents itself as a sharply defined prism with acute angles, contrasting dramatically with the soft, organic forms of the rainforest. Its gabled roof is uniquely designed with a diagonal ridge beam, resembling a fishbone. The entire structure was built using traditional carpentry techniques, assembled on site without the use of advanced technology, demonstrating precision craftsmanship and a deep respect for artisanal methods.




Minimal Impact, Maximum Experience
The architectural strategy of Refugio Calfuco reflects a balance between minimal environmental disturbance and maximum sensory experience. By elevating the structure, preserving the surrounding trees, and working with natural materials, the design fosters a sense of refuge and harmony while maintaining a bold architectural identity.





Refugio Calfuco stands as a refined example of modern cabin design in the forest—where compact vertical living, artisanal construction, and immersive natural experiences come together. Tomás de Iruarrizaga’s work showcases how contemporary architectural language can respectfully adapt to and celebrate pristine landscapes without overpowering them.




All photographs are works of Federico Cairoli
Popular Articles
Popular articles from the community
Split House: A Compact Urban Home Blending Privacy, Light, and Flexible Living in Japan
Compact Japanese home featuring DOMA space, flexible café potential, passive lighting, privacy zoning, and sustainable urban living design.
The Ken Roberts Memorial Delineation Competition (Krob)
As the most senior architectural drawing competition currently in operation anywhere in the world, it draws hundreds of entries each year, awarding the very best submissions in a series of medium-based categories.
Gads Hill Early Learning Center by JGMA: Adaptive Reuse Shaping Community-Focused Educational Architecture
Adaptive reuse transforms fragmented structure into vibrant early learning center with playful façade, natural light, and community-focused sustainable design.
Alton Cliff House: A Harmonious Retreat by f2a Architecture in Lake Country, Canada
Alton Cliff House blends corten steel, prefabrication, and sustainable design, creating a luxurious, energy-efficient retreat perched on Canadian cliffs.
Similar Reads
You might also enjoy these articles
Free Architecture Competitions You Can Enter Right Now
No entry fees, real prizes. Here are the best free architecture competitions open for submissions in 2026.
Top 15 Architecture Competitions to Enter in 2026
From student-friendly idea competitions to prestigious international awards, here are the best architecture competitions open for entries in 2026. Updated regularly.
DIY & Engineering in Computational Design : Enter the BeeGraphy Design Awards
Showcase Your Creativity with Computational Design and Open Source Projects

Innovative Design Solutions: Award-Winning Projects from Recent Architecture Competitions
Exploring award-winning architectural projects shaping the future of design, sustainability, and community.
Explore Architecture Competitions
Discover active competitions in this discipline
The International Standard for Design Portfolios
The Global Benchmark for Architecture Dissertation Awards
The Global Benchmark for Graduation Excellence
Challenge to reimagine the Iron Throne
Comments (0)
Please login or sign up to add comments
No comments yet. Be the first to comment!