Modern Ossuary Design in Japan: Exploring Prabha Ossuary Hall by teamSTAR
Explore the Prabha Ossuary Hall in Japan, a modern architectural solution blending traditional values with contemporary design and functionality.
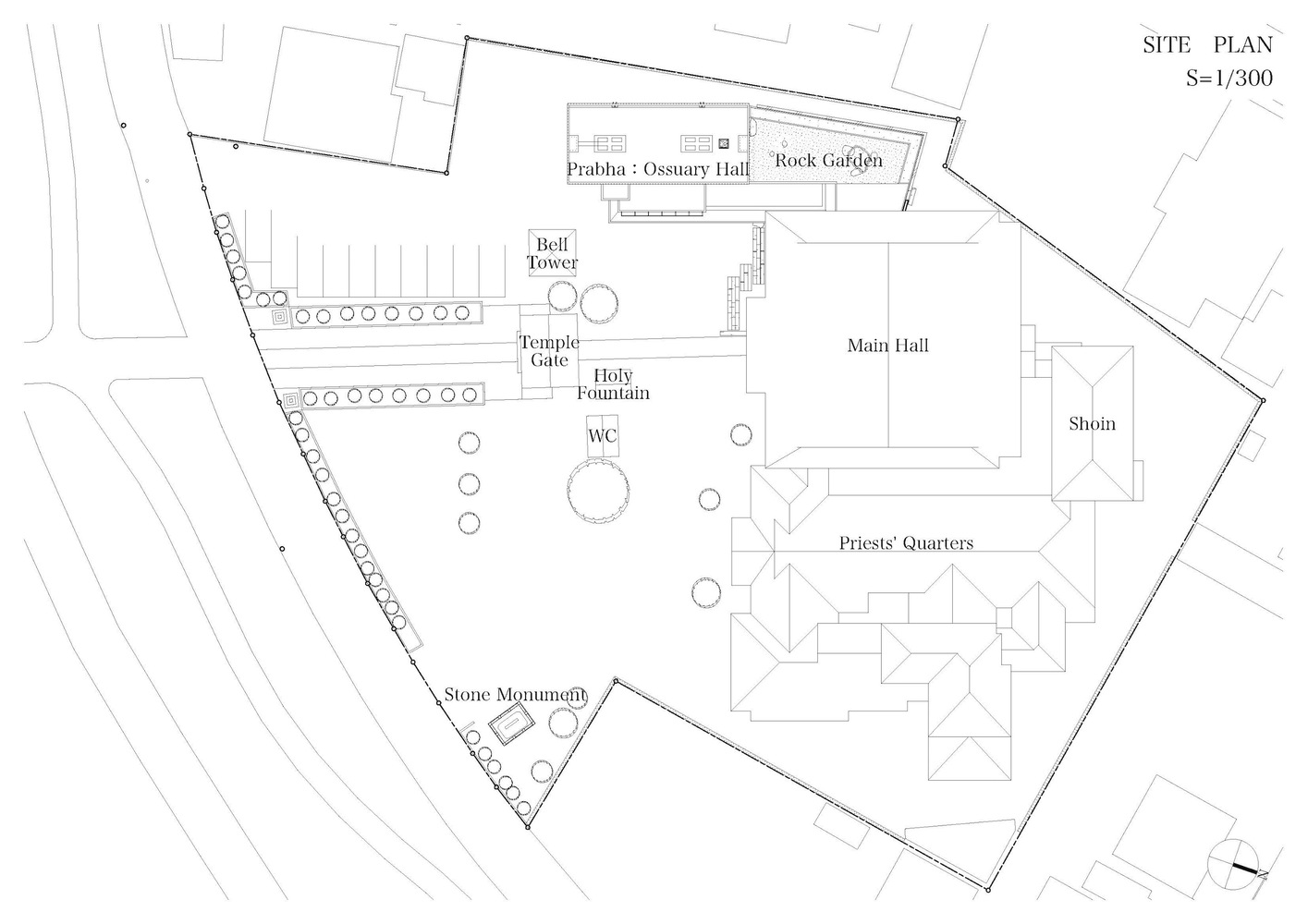
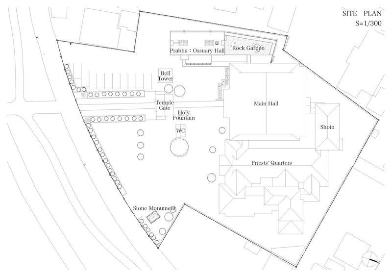
In Japan, where space is at a premium and cultural shifts influence traditional practices, modern ossuary design is emerging as a critical solution for post-life care. The Prabha Ossuary Hall, designed by teamSTAR, is a pioneering example of how contemporary architecture meets traditional needs in an innovative and respectful way.



The Rise of Modern Ossuary Design
Understanding Ossuaries
An ossuary is a site designed to store the ashes of the deceased. This concept is gaining popularity in Japan due to decreasing cemetery space and the complexities of maintaining traditional graves.


Why Modern Design is Important
Modern design in ossuaries offers a practical solution to space and maintenance issues while providing a dignified and serene place for families to remember their loved ones. It blends functionality with aesthetic appeal, catering to today's societal needs without sacrificing cultural reverence.


Spotlight on Prabha Ossuary Hall
Design Philosophy and Innovation
Comforting Spaces
teamSTAR set out to create a space that diverges from the dark, impersonal traditional ossuary halls. Prabha Ossuary Hall is conceptualized as "guest rooms for the departed," featuring bright, welcoming spaces that resemble a luxury inn rather than a typical memorial space.


The Garden of Silence
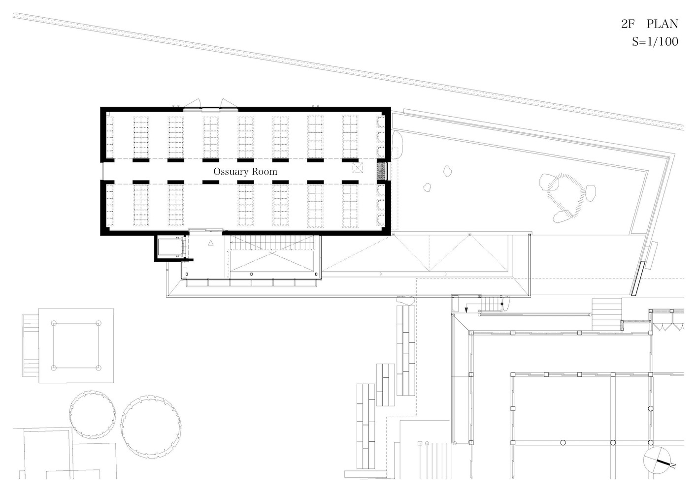
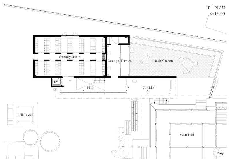
A central feature of the hall is the Garden of Silence, which is a dry landscape garden that embodies tranquility and reflection. The garden, featuring native rocks and a Japanese white pine, serves as a peaceful retreat for visitors, allowing them to connect with nature while reminiscing about their loved ones.


Architectural Details
Integration with the Environment
The hall’s design emphasizes harmony with its surroundings at the Myorenji Temple in Oita. Traditional elements like the crimson Buddhist altar and extensive use of wood in the interiors pay homage to Japanese architectural heritage, while modern amenities ensure accessibility and comfort.



Enhancements and Accessibility
Barrier-Free Design
Prabha Ossuary Hall is fully equipped with automatic doors, an elevator, and an air-conditioning system, ensuring it is accessible to all visitors. Such features exemplify the hall's commitment to inclusivity and modernity.


Compliance and Improvements
As part of the project, teamSTAR also upgraded the temple’s existing structures to meet current building codes, demonstrating a commitment to safety and sustainability alongside aesthetic improvements.


The Impact of Modern Ossuaries
Cultural and Social Relevance
The design of Prabha Ossuary Hall addresses the evolving needs of Japanese society. By providing a modern take on a traditional practice, it helps maintain cultural continuity in a rapidly changing world.


Architectural Legacy
teamSTAR’s approach to the Prabha Ossuary Hall sets a new standard for ossuary design, potentially influencing future projects in Japan and beyond. It showcases how architecture can play a crucial role in societal adaptations.


The Prabha Ossuary Hall by teamSTAR is more than just a building; it is a testament to the evolving landscape of modern architecture in Japan. It respects traditional values while providing innovative solutions to contemporary challenges, marking a significant development in the field of modern ossuary design in Japan.

All photographs are work of Tetsuya Ito
Popular Articles
Popular articles from the community
Gads Hill Early Learning Center by JGMA: Adaptive Reuse Shaping Community-Focused Educational Architecture
Adaptive reuse transforms fragmented structure into vibrant early learning center with playful façade, natural light, and community-focused sustainable design.
Inverted Architecture Installation by Studio Link-Arc: Exploring the Intersection of Architecture and Living Organisms
Inverted Architecture Installation by Studio Link-Arc blends mycelium, sustainability, inverted design, ecological cycles, and urban adaptive architecture in Shenzhen.
Solar Steam: A Climate-Responsive Architecture That Redefines the Monument
A climate-responsive memorial architecture that transforms heat, decay, and time into a living system reflecting humanity’s ecological impact.
The Ken Roberts Memorial Delineation Competition (Krob)
As the most senior architectural drawing competition currently in operation anywhere in the world, it draws hundreds of entries each year, awarding the very best submissions in a series of medium-based categories.
Similar Reads
You might also enjoy these articles
The Ken Roberts Memorial Delineation Competition (Krob)
As the most senior architectural drawing competition currently in operation anywhere in the world, it draws hundreds of entries each year, awarding the very best submissions in a series of medium-based categories.
Waterfront Redevelopment and Urban Revitalization in Mumbai: Forging a New Dawn for Darukhana
A transformative waterfront redevelopment project reimagining Darukhana’s shipbreaking heritage into an inclusive urban future.
OUT-OF-MAP: A Call for Postcards on Feminist Narratives of Public Space
Rhizoma Design and Research Lab invites artists, designers, architects, researchers, and students to reflect on how feminist perspectives can reshape public space. Selected works will be exhibited in Barcelona, October 2026. Submissions open until 15 April 2026.
Documentation Work on Buddhist Wooden Temple
Architectural syncretism and cultural hybridity: A comparative study of the Buddhist temples in Chattogram Hill tracks
Explore Architecture Competitions
Discover active competitions in this discipline
The International Standard for Design Portfolios
The Global Benchmark for Architecture Dissertation Awards
The Global Benchmark for Graduation Excellence
Challenge to reimagine the Iron Throne
Comments (0)
Please login or sign up to add comments
No comments yet. Be the first to comment!