Modern Restaurant Interior Design: NINYAS by Ignacio Urquiza and Ana Paula de Alba
NINYAS Restaurant merges Mexican and Japanese influences in a minimalist, modern design that redefines the dining experience.
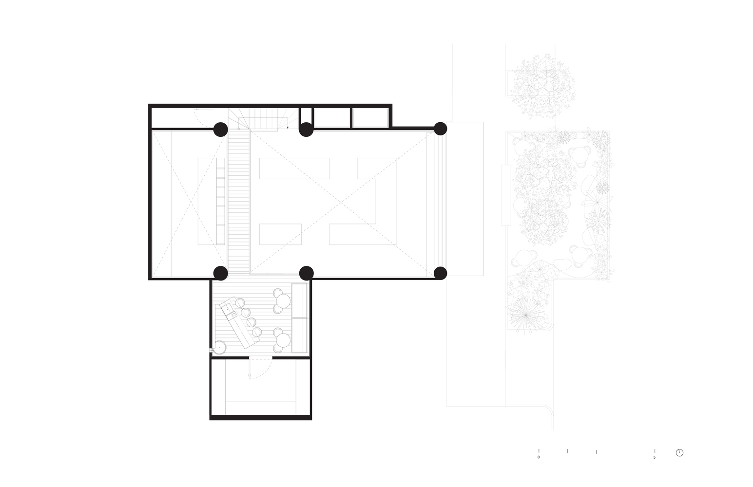
NINYAS Restaurant, located in the vibrant Juárez neighborhood of Mexico City, stands as an architectural fusion of Mexican and Japanese culinary traditions. Designed by Ignacio Urquiza Arquitectos and Ana Paula de Alba, this 100-square-meter restaurant reimagines modern restaurant interior design through a minimalist yet culturally resonant approach. Completed in 2023, the project brings together gastronomic heritage and contemporary architecture, offering diners a unique culinary and spatial experience.



A Culinary Dream Realized Through Design
NINYAS originated from a family tradition of hosting guests and serving their perfected rib eye tacos paired with sake. This tradition evolved into a restaurant concept that embodies hospitality, warmth, and cultural exchange. Housed in a ground-floor space of a 1950s building, the architectural intervention reflects the rich duality of Mexican and Japanese influences.


The design translates this cultural fusion into a space that invites diners to experience the essence of both traditions. By analyzing trends from Mexico City and Tokyo, the architects crafted a setting that blends street food culture with the elegance of fine dining, emphasizing warmth, functionality, and authenticity.


Materiality as a Design Language
The predominant material used in NINYAS is stainless steel, a deliberate choice to reflect the utilitarian essence of both Mexican and Japanese kitchens. Stainless steel panels, measuring 1 x 3 meters, cover the perimeter walls and form the kitchen furniture and equipment. High, shared dining bars—reminiscent of both sushi counters and Mexican taco stands—dominate the dining space.


The cold, reflective quality of stainless steel paradoxically brings warmth and vibrancy to the restaurant. By diffusing reflections of diners and activity, the material animates the space, creating an ever-changing visual experience. The non-slip ocher-colored epoxy floor complements the steel, grounding the design in practicality while adding subtle warmth.

Layered Elements for Depth and Functionality
In addition to stainless steel, the design incorporates contrasting materials to enrich the spatial experience. The mezzanine-level bar, crafted entirely from wood, offers a cozy retreat, contrasting the cool steel below. Utilitarian shelving divides the kitchen and dining areas without isolating them, allowing the free flow of plates and utensils while maintaining visual connectivity.


Custom-designed oak stools with circular bases soften the industrial tone of the space. Stainless steel footrests seamlessly integrate the stools into the overall design while enhancing user comfort. A steel bridge connects the mezzanine to the staircase, transforming shelving into functional sake racks that add depth and character to the interior.


Seamless Connection Between Interior and Exterior
The restaurant’s façade, comprising six pivoting and folding glass panels, creates a dynamic interface between the interior and the bustling streetscape. These panels allow for various configurations, seamlessly blending the dining space with the sidewalk and surrounding greenery. This integration enhances the dining experience by creating a sense of openness and connection with the vibrant urban environment.


A Celebration of Culinary and Architectural Synergy
NINYAS Restaurant embodies the harmony between cuisine and architecture. By thoughtfully blending cultural elements, materiality, and functionality, Ignacio Urquiza and Ana Paula de Alba have created a space that transcends its physical dimensions. The restaurant is not only a place to eat but also a celebration of shared traditions and modern design principles.


Through the innovative use of materials, attention to cultural detail, and an emphasis on openness, NINYAS sets a new standard for modern restaurant interior design. It is a space where diners can immerse themselves in the art of gastronomy and the beauty of architecture, experiencing the essence of Mexico and Japan in every detail.


All Photographs are works of Rafael Gamo, IUA Ignacio Urquiza Arquitectos
Popular Articles
Popular articles from the community
Gads Hill Early Learning Center by JGMA: Adaptive Reuse Shaping Community-Focused Educational Architecture
Adaptive reuse transforms fragmented structure into vibrant early learning center with playful façade, natural light, and community-focused sustainable design.
Split House: A Compact Urban Home Blending Privacy, Light, and Flexible Living in Japan
Compact Japanese home featuring DOMA space, flexible café potential, passive lighting, privacy zoning, and sustainable urban living design.
Free Architecture Competitions You Can Enter Right Now
No entry fees, real prizes. Here are the best free architecture competitions open for submissions in 2026.
Inverted Architecture Installation by Studio Link-Arc: Exploring the Intersection of Architecture and Living Organisms
Inverted Architecture Installation by Studio Link-Arc blends mycelium, sustainability, inverted design, ecological cycles, and urban adaptive architecture in Shenzhen.
Similar Reads
You might also enjoy these articles
The Ken Roberts Memorial Delineation Competition (Krob)
As the most senior architectural drawing competition currently in operation anywhere in the world, it draws hundreds of entries each year, awarding the very best submissions in a series of medium-based categories.
Waterfront Redevelopment and Urban Revitalization in Mumbai: Forging a New Dawn for Darukhana
A transformative waterfront redevelopment project reimagining Darukhana’s shipbreaking heritage into an inclusive urban future.
OUT-OF-MAP: A Call for Postcards on Feminist Narratives of Public Space
Rhizoma Design and Research Lab invites artists, designers, architects, researchers, and students to reflect on how feminist perspectives can reshape public space. Selected works will be exhibited in Barcelona, October 2026. Submissions open until 15 April 2026.
Documentation Work on Buddhist Wooden Temple
Architectural syncretism and cultural hybridity: A comparative study of the Buddhist temples in Chattogram Hill tracks
Explore Architecture Competitions
Discover active competitions in this discipline
The International Standard for Design Portfolios
The Global Benchmark for Architecture Dissertation Awards
The Global Benchmark for Graduation Excellence
Challenge to reimagine the Iron Throne
Comments (0)
Please login or sign up to add comments
No comments yet. Be the first to comment!