Modern Rural Villas Architecture: Blue House by Studio gamp!
The Blue House redefines modern rural villas, blending traditional forms, sustainable materials, and contemporary design in Tuscia, Italy.
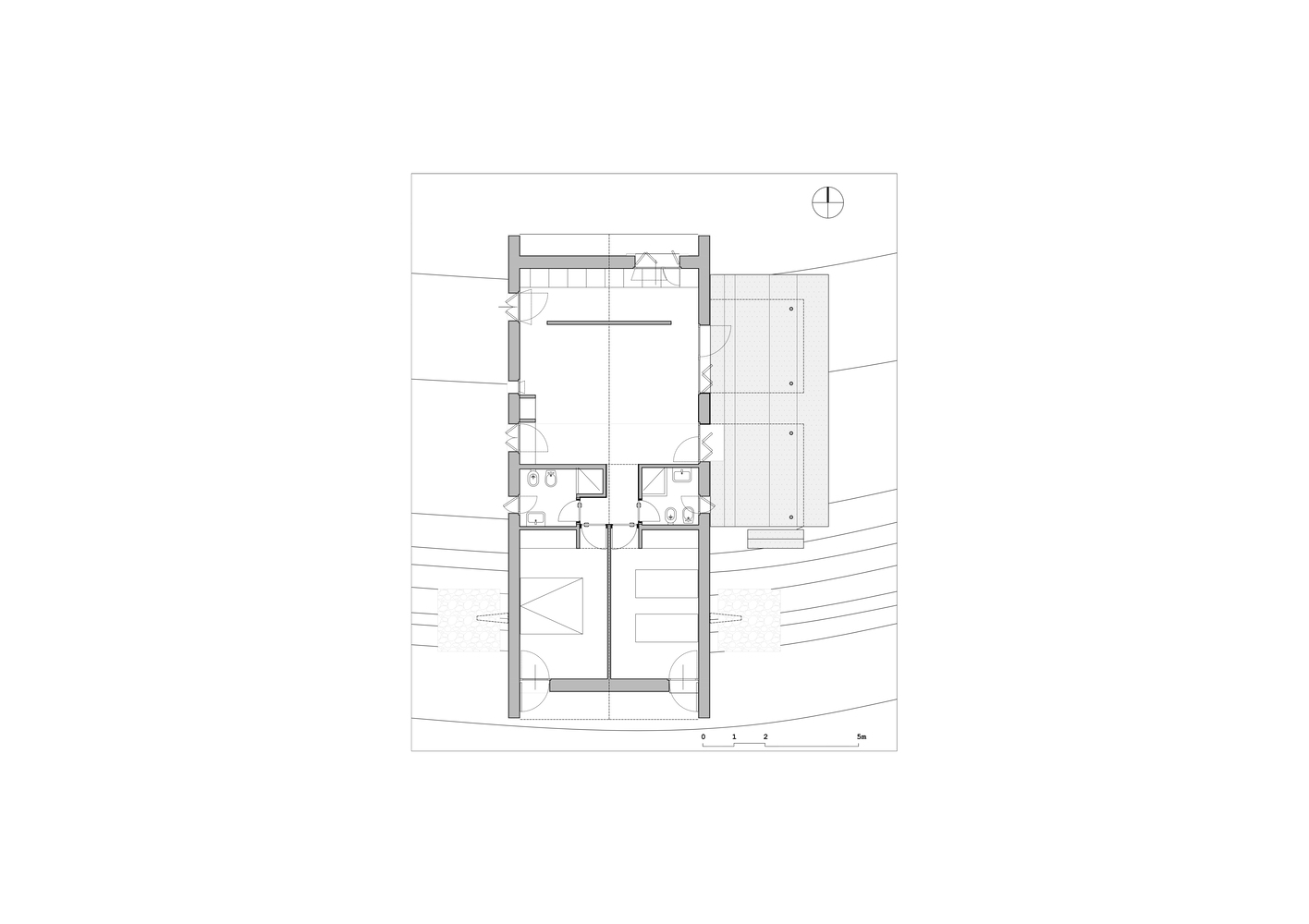
Nestled in the serene Tuscia landscape of Montefiascone, Italy, the Blue House project by Studio gamp! redefines the integration of modern architecture within a rural setting. Completed in 2021, this innovative project encompasses three houses—two above ground and one underground—designed as weekend and holiday retreats. The architects prioritized harmony with the unspoiled countryside while incorporating the distinctiveness of contemporary design principles.



Concept and Design Philosophy
The Blue House project is an exploration of simplicity and archetypal forms. Studio gamp! envisioned the villas as subtle yet distinct structures that blend seamlessly with the rolling hills and towering oaks of the Tuscia region. Inspired by the agricultural heritage of the area, the houses reinterpret traditional forms without compromising on modern functionality.


The design focuses on balance, aiming to preserve the landscape's integrity while retracing the familiar image of rural homes. This balance is achieved through rigorous spatial organization, thoughtful geometry, and a keen focus on connecting indoor and outdoor spaces.


Architectural Features
The project comprises two houses with pitched roofs and a third underground house with a garden roof. These seemingly traditional elements are enhanced by modern design strategies, such as strategic window placements that frame the natural surroundings and maximize natural light. The Blue House, in particular, features a subtly deformed plan that introduces a dynamic and ever-changing spatial experience, disrupting conventional symmetry.


The architecture reflects an intentional fluidity, where the interior and exterior spaces coexist harmoniously. This is achieved through an open plan layout and exterior-facing spaces designed to encourage outdoor living, further immersing the residents in the surrounding environment.


Material Selection and Sustainability
A cornerstone of the Blue House project is its commitment to using traditional materials in innovative ways. Terracotta, troweled plaster, travertine, and natural stone dominate the exteriors, while stoneware, ceramics, and wood characterize the interiors. The recycled terracotta tiles envelop the smallest house entirely, merging the walls and ceilings into a cohesive aesthetic.


This careful material selection ensures durability, low maintenance, and an architecture capable of aging gracefully. The use of local, timeless materials also reinforces the villas' connection to their natural and cultural context. The architects aimed to create structures that absorb the passage of time, embodying the essence of enduring design.


Integration with the Landscape
The Tuscia countryside serves as both the backdrop and the inspiration for the Blue House project. Studio gamp! utilized minimalist metal gazebos throughout the landscape to create visual continuity and define hypothetical structures that contrast with the comfort of the interior spaces.


The natural terrain is seamlessly integrated into the design through garden roofs and terraces that extend the living spaces into the outdoors. This connection blurs the boundaries between architecture and nature, allowing the villas to coexist with their environment rather than dominate it.

A Testament to Modern Rural Design
The Blue House by Studio gamp! exemplifies how contemporary architecture can reinterpret traditional forms to create spaces that are functional, sustainable, and deeply rooted in their context. By prioritizing timeless materials, thoughtful spatial arrangements, and a harmonious relationship with nature, this project sets a new standard for modern rural villas.

This architectural achievement showcases the potential of blending past and present, demonstrating that innovative design can preserve the soul of a landscape while meeting the needs of modern living.

All Photographs are work of Lorenzo Zandri
Popular Articles
Popular articles from the community
The Ken Roberts Memorial Delineation Competition (Krob)
As the most senior architectural drawing competition currently in operation anywhere in the world, it draws hundreds of entries each year, awarding the very best submissions in a series of medium-based categories.
Alton Cliff House: A Harmonious Retreat by f2a Architecture in Lake Country, Canada
Alton Cliff House blends corten steel, prefabrication, and sustainable design, creating a luxurious, energy-efficient retreat perched on Canadian cliffs.
Inverted Architecture Installation by Studio Link-Arc: Exploring the Intersection of Architecture and Living Organisms
Inverted Architecture Installation by Studio Link-Arc blends mycelium, sustainability, inverted design, ecological cycles, and urban adaptive architecture in Shenzhen.
Split House: A Compact Urban Home Blending Privacy, Light, and Flexible Living in Japan
Compact Japanese home featuring DOMA space, flexible café potential, passive lighting, privacy zoning, and sustainable urban living design.
Similar Reads
You might also enjoy these articles
The Ken Roberts Memorial Delineation Competition (Krob)
As the most senior architectural drawing competition currently in operation anywhere in the world, it draws hundreds of entries each year, awarding the very best submissions in a series of medium-based categories.
Waterfront Redevelopment and Urban Revitalization in Mumbai: Forging a New Dawn for Darukhana
A transformative waterfront redevelopment project reimagining Darukhana’s shipbreaking heritage into an inclusive urban future.
OUT-OF-MAP: A Call for Postcards on Feminist Narratives of Public Space
Rhizoma Design and Research Lab invites artists, designers, architects, researchers, and students to reflect on how feminist perspectives can reshape public space. Selected works will be exhibited in Barcelona, October 2026. Submissions open until 15 April 2026.
Documentation Work on Buddhist Wooden Temple
Architectural syncretism and cultural hybridity: A comparative study of the Buddhist temples in Chattogram Hill tracks
Explore Architecture Competitions
Discover active competitions in this discipline
The International Standard for Design Portfolios
The Global Benchmark for Architecture Dissertation Awards
The Global Benchmark for Graduation Excellence
Challenge to reimagine the Iron Throne
Comments (0)
Please login or sign up to add comments
No comments yet. Be the first to comment!