Obscura Pop-Up Store by PRACTICE: A Minimalist Fusion of Industrial Design and Spatial Artistry
A minimalist pop-up store in Seoul blending industrial materials and sculptural elements to showcase fashion within a refined spatial design.
Contemporary Retail Design in the Heart of Seoul
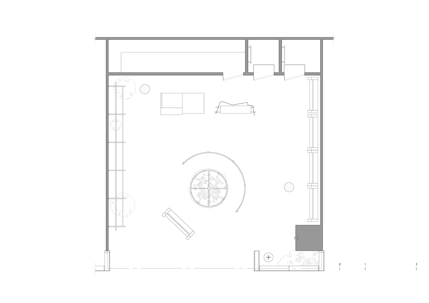
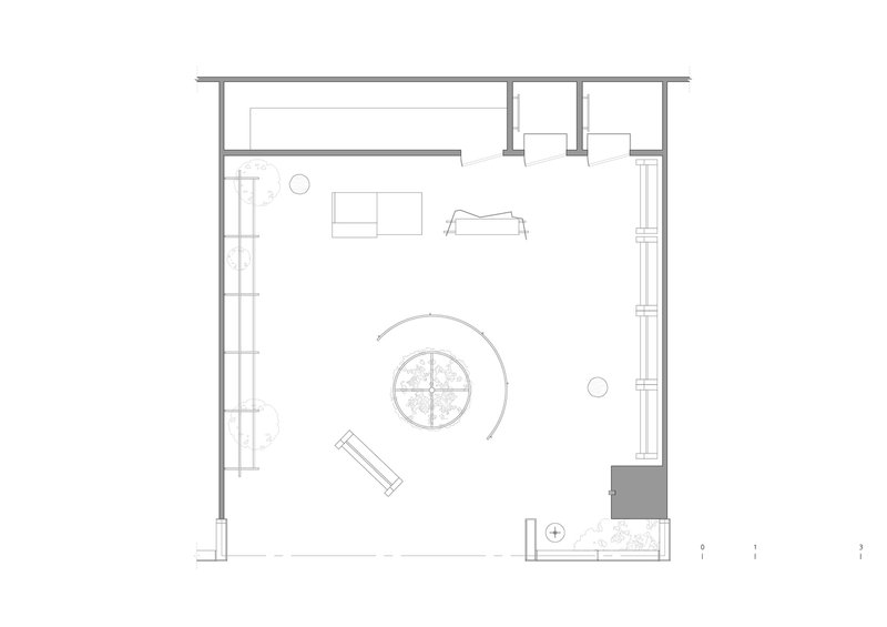
Located in Yeongdeungpo-gu, on the second basement level of The Hyundai Seoul Department Store in Yeouido, the Obscura Pop-Up Store is a bold yet refined retail installation created by Seoul-based architecture studio PRACTICE. Completed in 2023, this 72-square-meter commercial interior reflects a deep sensitivity to materials, spatial organization, and brand identity, transforming a compact area into a striking fashion retail environment.


Design Concept: A Temporary Extension of Identity
The design is conceived as a temporary extension of Obscura’s flagship store in Dosan, Seoul. It maintains brand continuity through its material palette and conceptual narrative. The square-shaped pop-up is meticulously organized into three functional zones: a display and sales area, a fitting room, and a warehouse/storage zone. Despite the limited footprint, the design strategically maximizes spatial clarity and flow.


Material Palette: Between Nature and Industry
At the core of the design is the interplay between natural patina and industrial finishes. Rusting iron steel and polished stainless steel dominate the visual language of the space, imbuing it with both warmth and modernity. These materials aren’t just aesthetic—they serve as metaphors for the duality of nature and artificiality, a recurring theme in PRACTICE’s design philosophy.
In collaboration with artist Cheongrokhwa, PRACTICE developed custom functional elements such as hangers and shelves, placed prominently in the center of the space. One of the defining features is a curved stainless steel clothing rack, installed around an artificial flower column—a symbolic gesture that merges organic reference with man-made structure.


A Sculptural Approach to Fashion Retail
The central installation isn’t just utilitarian—it acts as a sculptural focal point that draws attention and guides circulation throughout the store. This intervention redefines the retail experience by elevating display fixtures into art objects, aligning with the curated nature of Obscura’s brand, which selects and showcases various contemporary fashion labels.



Popular Articles
Popular articles from the community
Gads Hill Early Learning Center by JGMA: Adaptive Reuse Shaping Community-Focused Educational Architecture
Adaptive reuse transforms fragmented structure into vibrant early learning center with playful façade, natural light, and community-focused sustainable design.
Split House: A Compact Urban Home Blending Privacy, Light, and Flexible Living in Japan
Compact Japanese home featuring DOMA space, flexible café potential, passive lighting, privacy zoning, and sustainable urban living design.
Atelier Macri Concept Store Interior Design by CASE-REAL
Atelier Macri store features a "ko" counter, walnut wood details, cork displays, blending retail, gallery, and seamless customer experiences.
Alton Cliff House: A Harmonious Retreat by f2a Architecture in Lake Country, Canada
Alton Cliff House blends corten steel, prefabrication, and sustainable design, creating a luxurious, energy-efficient retreat perched on Canadian cliffs.
Similar Reads
You might also enjoy these articles
The Ken Roberts Memorial Delineation Competition (Krob)
As the most senior architectural drawing competition currently in operation anywhere in the world, it draws hundreds of entries each year, awarding the very best submissions in a series of medium-based categories.
Waterfront Redevelopment and Urban Revitalization in Mumbai: Forging a New Dawn for Darukhana
A transformative waterfront redevelopment project reimagining Darukhana’s shipbreaking heritage into an inclusive urban future.
OUT-OF-MAP: A Call for Postcards on Feminist Narratives of Public Space
Rhizoma Design and Research Lab invites artists, designers, architects, researchers, and students to reflect on how feminist perspectives can reshape public space. Selected works will be exhibited in Barcelona, October 2026. Submissions open until 15 April 2026.
Documentation Work on Buddhist Wooden Temple
Architectural syncretism and cultural hybridity: A comparative study of the Buddhist temples in Chattogram Hill tracks
Explore Architecture Competitions
Discover active competitions in this discipline
The International Standard for Design Portfolios
The Global Benchmark for Architecture Dissertation Awards
The Global Benchmark for Graduation Excellence
Challenge to design luxury tourism on rails
Comments (0)
Please login or sign up to add comments
No comments yet. Be the first to comment!