Passive Design Strategies in Tropical Architecture: Maison Piaggio by David Rockwood
Exploring Maison Piaggio's innovative passive design strategies for sustainable living in a tropical climate by architect David Rockwood.
Maison Piaggio, designed by David Rockwood, is a remarkable example of innovative architecture that harmonizes modern design with passive sustainability strategies. Located near the southern edge of Da Nang, Vietnam, this two-story single-family rowhouse epitomizes how thoughtful design can mitigate the challenges posed by a hot and humid tropical climate. This article explores the passive design strategies employed in Maison Piaggio, its architectural influences, and its sustainable features.


Site and Context
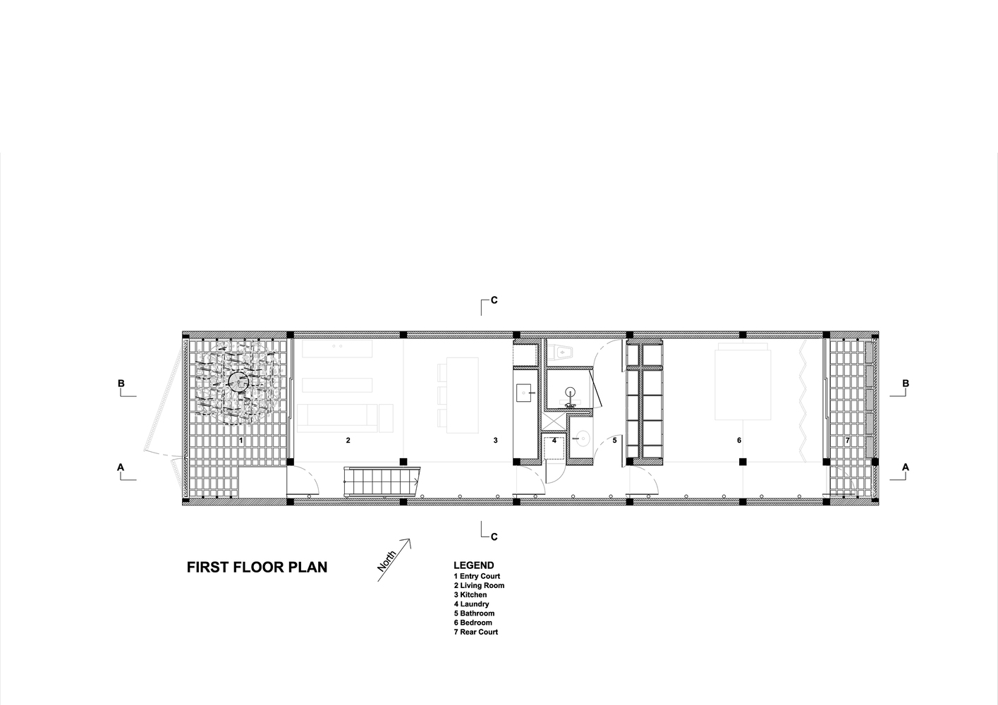
Maison Piaggio is situated on a typical 5m x 20m lot in Da Nang. The house's compact design maximizes the use of available space, featuring an entry courtyard, living room, kitchen, two bedrooms, two bathrooms, and a studio. Given Da Nang’s tropical climate, the design prioritizes maintaining interior thermal comfort while minimizing energy use.



Passive Design Strategies
Horizontal and Vertical Shading Devices
To protect the interiors from direct sunlight, Maison Piaggio employs both horizontal and vertical shading devices. These elements are crucial in reducing heat gain and glare, enhancing the comfort of the living spaces.


Cooling Cross-Ventilation
The design facilitates natural ventilation by allowing cooling breezes to flow horizontally around and over the central core of the house. This cross-ventilation strategy is vital in maintaining a comfortable indoor environment without relying heavily on air conditioning.


Skylights and Daylighting
The house features a skylight in the circulation zone, bringing natural light into the center of the plan. This not only reduces the need for artificial lighting during the day but also creates a visually appealing and vibrant living space.


Architectural Influences
The plan of Maison Piaggio is a hybrid of several architectural typologies:
- Megaron Volume: Reflecting an archaic simplicity.
- Domino Frame: Inspired by early modernist principles.
- Farnsworth Core: Incorporating late modernist elements.
This blend results from a pursuit of simplicity and essentialism in the design.


Material Selection and Construction
Concrete and Insulation
The house features exposed poured-in-place concrete for columns, beams, and ceilings, providing a raw aesthetic that showcases the construction process. The exterior cavity walls are infilled with insulated autoclaved aerated concrete blocks, which help mitigate heat transfer.

Roof Insulation
To minimize thermal migration through the roof, rigid insulation is used along with thermally isolated clay roof tiles coated with reflective paint. This combination effectively reduces heat gain and enhances the house's energy efficiency.

Tropical Hardwood
Sliding and louvered doors, furniture, and adjustable louver screens are made from tropical hardwood. This material choice not only offers durability and performance but also adds a warm, natural aesthetic to the interiors.


Sustainable Living
Maison Piaggio aligns with Le Corbusier’s notion of the "standard element" or object trouvé, conceptualizing the house as a practical yet meaningful tool for daily life. The design promotes a simple, sustainable lifestyle, integrating materials and techniques that are both cost-effective and environmentally friendly.
Maison Piaggio by David Rockwood exemplifies how passive design strategies can be effectively applied in tropical architecture. Through careful planning and material selection, the house maintains thermal comfort and energy efficiency, offering a sustainable solution for modern living in a challenging climate. This project highlights the potential for innovative design to enhance both functionality and aesthetic appeal in residential architecture.


All photographs are work of Nguyen Quoc Dat, David Rockwood, Vo Le Tuan, Trieu Chien
Popular Articles
Popular articles from the community
Free Architecture Competitions You Can Enter Right Now
No entry fees, real prizes. Here are the best free architecture competitions open for submissions in 2026.
Atelier Macri Concept Store Interior Design by CASE-REAL
Atelier Macri store features a "ko" counter, walnut wood details, cork displays, blending retail, gallery, and seamless customer experiences.
Split House: A Compact Urban Home Blending Privacy, Light, and Flexible Living in Japan
Compact Japanese home featuring DOMA space, flexible café potential, passive lighting, privacy zoning, and sustainable urban living design.
Similar Reads
You might also enjoy these articles
The Ken Roberts Memorial Delineation Competition (Krob)
As the most senior architectural drawing competition currently in operation anywhere in the world, it draws hundreds of entries each year, awarding the very best submissions in a series of medium-based categories.
Waterfront Redevelopment and Urban Revitalization in Mumbai: Forging a New Dawn for Darukhana
A transformative waterfront redevelopment project reimagining Darukhana’s shipbreaking heritage into an inclusive urban future.
OUT-OF-MAP: A Call for Postcards on Feminist Narratives of Public Space
Rhizoma Design and Research Lab invites artists, designers, architects, researchers, and students to reflect on how feminist perspectives can reshape public space. Selected works will be exhibited in Barcelona, October 2026. Submissions open until 15 April 2026.
Documentation Work on Buddhist Wooden Temple
Architectural syncretism and cultural hybridity: A comparative study of the Buddhist temples in Chattogram Hill tracks
Explore Architecture Competitions
Discover active competitions in this discipline
The International Standard for Design Portfolios
The Global Benchmark for Architecture Dissertation Awards
The Global Benchmark for Graduation Excellence
Challenge to reimagine the Iron Throne
Comments (0)
Please login or sign up to add comments
No comments yet. Be the first to comment!