Petapa Market Renovation: A Landmark in Market Renovation Architecture
The Petapa Market Renovation exemplifies market renovation architecture, integrating heritage restoration, sustainable materials, and urban connectivity for a revitalized community space.
Revitalizing Public Space in Santa María Petapa
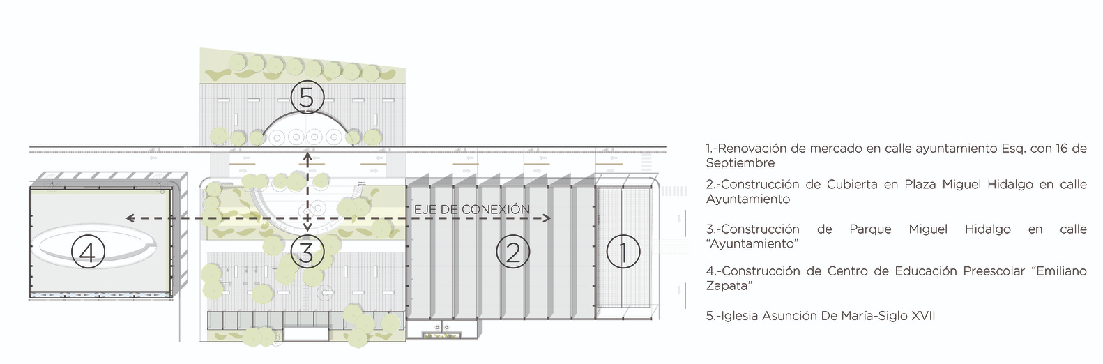
The Petapa Market Renovation in Santa María Petapa, Mexico, is a transformative project that redefines market renovation architecture, integrating heritage restoration, urban planning, and contemporary design. Led by DF Arquitectos and Taller MRD, the project breathes new life into a historically significant public market, previously devastated by the 2017 earthquake. The intervention not only preserves the cultural and architectural essence of the site but also enhances its functionality, unifying various public spaces into a cohesive urban landscape.



A Contextual Approach to Architectural Renewal
The market existed within a fractured urban environment, sharing space with a recently restored heritage church. The architects embraced the materiality and historical significance of the site by incorporating ochre-hued bricks, clay tiles, and wooden beams, ensuring a seamless visual connection with its surroundings. The renovation aimed to not only rebuild but to create a public space that fosters social interaction and community resilience.


Architectural Elements That Define Market Renovation Architecture
A key feature of market renovation architecture is the preservation of traditional construction techniques while incorporating modern interventions. The new Petapa Market retains its original pitched clay tile roofs and wooden structures, reinforcing its cultural identity. This approach extends beyond the market itself, influencing adjacent public spaces such as a multi-purpose covered plaza and a sports court, which share the same sloped roof design.

The site planning integrates a network of plazas, pathways, and retaining walls that create a fluid connection between the market, church, and surrounding urban fabric. A circular esplanade acts as a unifying element, visually and functionally linking different sections of the project.

A Community-Centered Design Philosophy
One of the main objectives of the renovation was to re-establish the market as a central gathering point for the community. The open plaza, designed for both commercial and social activities, enhances pedestrian accessibility while diminishing the dominance of roadways. The design prioritizes human scale, making the space welcoming and functional for vendors, shoppers, and visitors alike.

Materiality and Construction Techniques
Sustainability and local craftsmanship played a significant role in the renovation process. The project utilizes locally sourced materials such as exposed concrete, prefabricated elements in earthy tones, and traditional clay bricks, ensuring durability while maintaining an authentic aesthetic. The orthogonal structural framework extends throughout the site, from the market to the preschool building, creating a sense of visual harmony.


The single-story preschool, which forms the final section of the intervention, follows the same design language as the market. Its rooftop, carefully integrated into the site’s topography, provides panoramic views of the surrounding mountains, reinforcing the connection between architecture and nature.


A Model for Future Market Renovations
The Petapa Market Renovation exemplifies the potential of market renovation architecture to restore cultural landmarks while enhancing public space. By blending traditional materials with contemporary design strategies, the project successfully revives a vital community hub. The integration of plazas, pedestrian pathways, and a unified material palette makes it a benchmark for future urban regeneration projects in historic settings.



All Photographs are works of Jesús Omar Luis Salvatierra
Popular Articles
Popular articles from the community
Split House: A Compact Urban Home Blending Privacy, Light, and Flexible Living in Japan
Compact Japanese home featuring DOMA space, flexible café potential, passive lighting, privacy zoning, and sustainable urban living design.
Alton Cliff House: A Harmonious Retreat by f2a Architecture in Lake Country, Canada
Alton Cliff House blends corten steel, prefabrication, and sustainable design, creating a luxurious, energy-efficient retreat perched on Canadian cliffs.
Gads Hill Early Learning Center by JGMA: Adaptive Reuse Shaping Community-Focused Educational Architecture
Adaptive reuse transforms fragmented structure into vibrant early learning center with playful façade, natural light, and community-focused sustainable design.
Atelier Macri Concept Store Interior Design by CASE-REAL
Atelier Macri store features a "ko" counter, walnut wood details, cork displays, blending retail, gallery, and seamless customer experiences.
Similar Reads
You might also enjoy these articles
The Ken Roberts Memorial Delineation Competition (Krob)
As the most senior architectural drawing competition currently in operation anywhere in the world, it draws hundreds of entries each year, awarding the very best submissions in a series of medium-based categories.
Waterfront Redevelopment and Urban Revitalization in Mumbai: Forging a New Dawn for Darukhana
A transformative waterfront redevelopment project reimagining Darukhana’s shipbreaking heritage into an inclusive urban future.
OUT-OF-MAP: A Call for Postcards on Feminist Narratives of Public Space
Rhizoma Design and Research Lab invites artists, designers, architects, researchers, and students to reflect on how feminist perspectives can reshape public space. Selected works will be exhibited in Barcelona, October 2026. Submissions open until 15 April 2026.
Documentation Work on Buddhist Wooden Temple
Architectural syncretism and cultural hybridity: A comparative study of the Buddhist temples in Chattogram Hill tracks
Explore Architecture Competitions
Discover active competitions in this discipline
The International Standard for Design Portfolios
The Global Benchmark for Architecture Dissertation Awards
The Global Benchmark for Graduation Excellence
Challenge to reimagine the Iron Throne
Comments (0)
Please login or sign up to add comments
No comments yet. Be the first to comment!