Pointe Living Apartment: A Benchmark in Sustainable Multi-Residential Architecture by Luigi Rosselli Architects
A sculptural, sustainable multi-residential building in Sydney offering privacy, community, and environmental integrity through bespoke design strategies.
A Model for Compact Urban Density and Livability
Situated in Edgecliff, Sydney, the Pointe Living Apartment by Luigi Rosselli Architects redefines what it means to live well in a city. Built on a compact, constrained site above an underground station and flanked by dense residential development, this nine-storey building introduces a new model of sustainable multi-residential architecture. It bridges the scale and intimacy of a single-family dwelling with the convenience and community benefits of apartment living.


Replacing a solitary house with ten unique residences, the project speaks directly to the needs of urban densification in response to Australia’s growing housing crisis. It does so without compromising on design, sustainability, privacy, or quality of life.


Architectural Form Driven by Light and Privacy
The building’s form was conceived as a sculptural spine, with concrete beams fanning out like ribs to form the north-facing balconies of each residence. This design strategy not only creates striking street presence but also optimizes solar orientation, ensuring that each unit receives natural light and maintains privacy from neighboring buildings.


Tapered and twisted, the façade moves away from surrounding structures, allowing maximum exposure to sunlight while respecting the existing urban fabric. These thoughtful moves are both aesthetic and environmental, forming the foundation of the project’s sustainable principles.



Spatial Customization and Architectural Detail
Unlike conventional apartment blocks with repetitive layouts, Pointe Living offers bespoke spatial experiences. Each apartment is subtly distinct, crafted to reflect the needs and personalities of its residents. Interiors feature a curated blend of materials—rough-combed rendered walls, exposed concrete ceilings, curved glass balustrades, and mirrored concrete beams—resulting in tactile, layered spaces.


Handmade brass lighting by local artist Oliver Tanner, and richly detailed finishes curated by interior designer Romaine Alwill, lend the residences an artisanal, human-centered quality. The level of care echoes the interwar apartment buildings of the surrounding area, updated with a distinctly contemporary sensitivity.



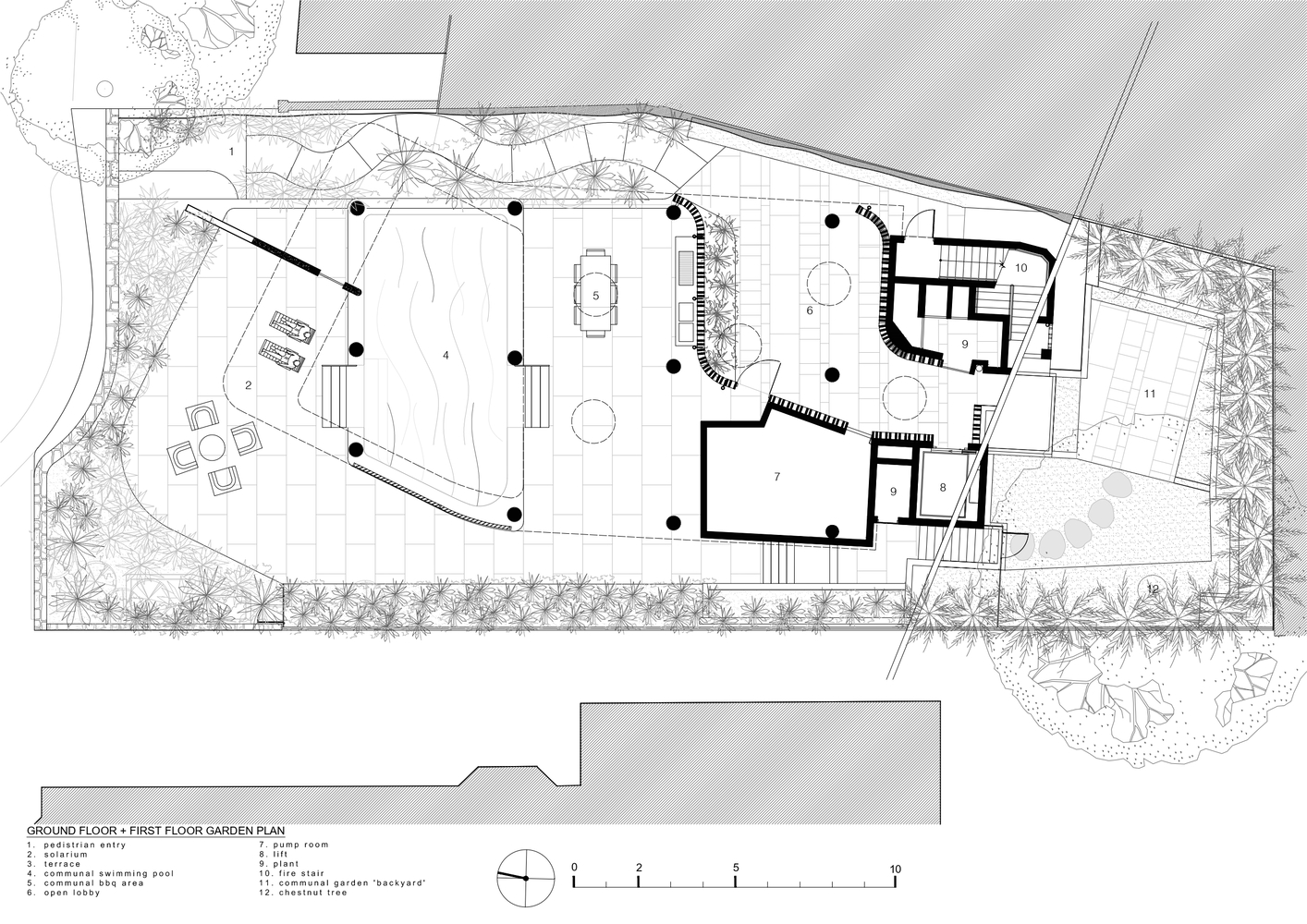
A Shared Landscape for Connection and Wellbeing
A key feature of this sustainable multi-residential architecture is the focus on equitable access to high-quality outdoor spaces. Each unit includes a generous private balcony, but the communal areas extend the experience. Shared gardens, BBQ areas, dining zones, and an undercover swimming pool foster a sense of belonging and support social interaction among residents.

The building’s serpentine landscaped entry path, sandstone base, and open-air lobby—formed with a curved brick screen—set the tone for a residential experience that prioritizes beauty, connection, and calm in the middle of urban bustle.

Environmental Strategies Embedded in Every Layer
Sustainability is integrated holistically, not added as an afterthought. The building is oriented northward, optimizing sunlight in winter and shading in summer through carefully designed overhangs and operable louvered windows. Cross ventilation is achieved via open-air corridors and three-sided apartment layouts, reducing reliance on mechanical systems.

The reuse of the site’s existing pool as a water tank, and the retention of sandstone blocks from the former house and excavation, underscore the project's commitment to minimizing waste and honoring site memory. Even the original front gate has been reinstalled, reinforcing a sense of continuity and place.

An array of 66 rooftop solar panels contributes renewable energy, enhancing the building’s energy efficiency and reducing its environmental footprint.
A Forward-Looking Vision for Urban Living
Pointe Living Apartment is more than an upscale residential development—it is a forward-thinking prototype for sustainable multi-residential architecture. It offers a blueprint for high-density living that doesn’t sacrifice individuality, community, or ecological responsibility. In a time when cities are grappling with climate change and housing shortages, this project stands as a refined, grounded, and human-scaled response.

All Photographs are works of Martin Mischkulnig