Printing House Square: A Landmark in Sustainable University Architecture by McCullough Mulvin Architects
Printing House Square redefines sustainable university architecture through inclusive design, historic integration, and environmental excellence on Trinity College Dublin's campus.
A Contemporary Gateway Between Campus and City
Printing House Square, designed by McCullough Mulvin Architects, is a transformative addition to Trinity College Dublin — the first new square on the campus in two centuries. Set along Pearse Street, the development replaces an impermeable edge with a porous urban threshold, connecting the university to the city through an inclusive and environmentally conscious architectural gesture. This project not only redefines campus life but also becomes a new benchmark in sustainable university architecture.




Urban Context and Architectural Integration
The project adopts a courtyard form that carefully frames the historic 18th-century Printing House, using spatial voids and massing to preserve its visual and historical prominence. The design draws on the urban rhythms of Dublin, echoing the pitched forms of Georgian roofs and referencing the silhouette of distant mountains. A dynamic stone roof folds over the building in a sculptural gesture, wrapping around the Classical temple architecture like a granite outcrop embedded in the cityscape.



The structure is both monumental and restrained, shaped to harmonize with surrounding heritage structures while asserting its own architectural identity. Board-marked concrete and granite cladding define the material language, rooting the building in its Irish context while signaling contemporary craftsmanship.



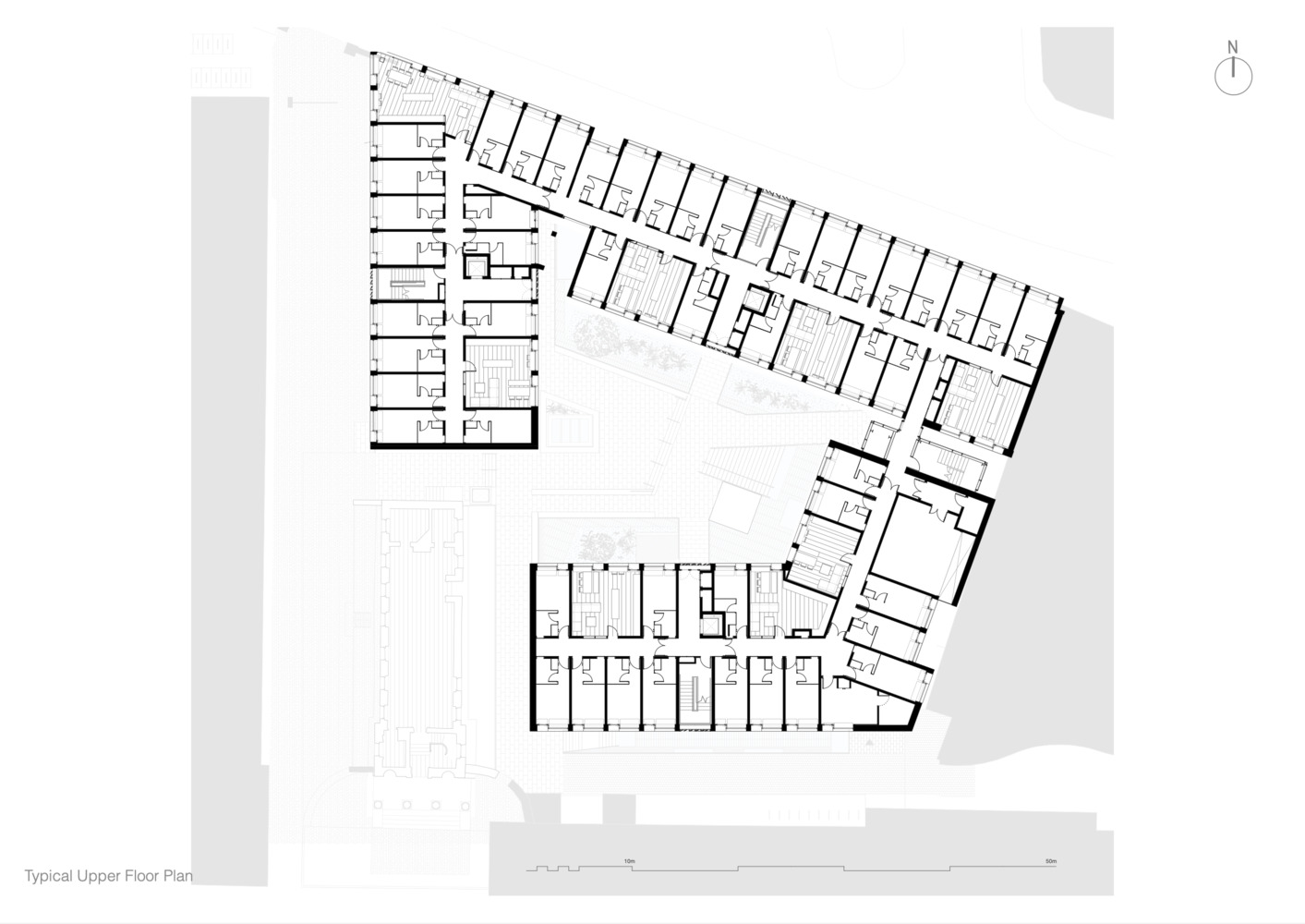
Living and Learning in an Inclusive Environment
At its core, Printing House Square is a multi-functional complex that integrates student accommodation, a health and disability center, and a sports facility. A total of 250 student beds are arranged in households of 6–8, encouraging community and social interaction. Each cluster shares a naturally lit kitchen, dining, and living area, creating a homely environment that supports well-being and student life.



Above the social base, the design ascends into more introspective spaces. The top floor houses quieter rooms reminiscent of Parisian garrets—intimate and calm, with sloped ceilings and private granite courtyards offering contemplative views over the city. The project embodies Trinity College’s commitment to inclusivity, with all areas designed for universal accessibility.



Layered Section and Spatial Innovation
Architecturally, the building operates like an iceberg. Below ground, deep basements contain flexible-use sports courts, including squash, handball, and triathlon training zones. Above, strategic structural voids and landscaped cuts allow daylight to penetrate to the lowest levels, ensuring that every facility—from health services to living quarters—receives natural light and ventilation.



The project is a masterclass in sectional complexity, transforming a dense urban site into an interlocking system of programs, atmospheres, and experiences. Every volume is interconnected yet distinct, each tailored to its function while contributing to the whole.



Environmental Strategy and BREEAM Excellence
Sustainability is embedded in every layer of the design. Ecocem concrete—a low-carbon material—is used throughout the structure. Thermal efficiency is optimized through airtight detailing and high insulation standards, while services are powered by a mix of technologies: CHP systems in the basement, air-source heat pumps on the roof, rainwater harvesting for landscape irrigation, and motion-controlled lighting to reduce energy use.



Interior finishes were selected for environmental responsibility, including natural stone, linoleum, exposed concrete, and sustainably sourced timber. A unique color-coded wayfinding system assigns a different hue to each household, providing intuitive orientation while reinforcing communal identity.


The result is a building that achieves BREEAM Excellent certification—proof of its outstanding environmental performance and thoughtful resource management.


A Model for Future Campus Design
Printing House Square stands as a pioneering example of how educational institutions can balance heritage sensitivity, social inclusivity, and ecological responsibility. Its complex program is seamlessly integrated into a form that respects its historical neighbors while expressing a bold contemporary vision. The project doesn’t just house functions—it elevates the everyday experience of campus life through form, light, and sustainable innovation.


This is sustainable university architecture at its most ambitious: rooted in place, visionary in design, and generous in use.

All the photographs are works of Christian Richters, Ros Kavanagh
Popular Articles
Popular articles from the community
Flamboyant House by Juliana Camargo + Prumo Projetos
Modern Brazilian house integrating existing tree, pool, and volumes with glass, wood, and transitional spaces blending interior, exterior, and landscape seamlessly.
Inverted Architecture Installation by Studio Link-Arc: Exploring the Intersection of Architecture and Living Organisms
Inverted Architecture Installation by Studio Link-Arc blends mycelium, sustainability, inverted design, ecological cycles, and urban adaptive architecture in Shenzhen.
A Contemporary Take on Iranian Residential Architecture
A modern interior design in Mashhad that reinterprets brick, light, and spatial flow to create a warm, contemporary residential architecture.
Atelier Macri Concept Store Interior Design by CASE-REAL
Atelier Macri store features a "ko" counter, walnut wood details, cork displays, blending retail, gallery, and seamless customer experiences.
Similar Reads
You might also enjoy these articles
Bamboo Housing Challenge 2026: Design Affordable, Sustainable Homes Using Bamboo
An international design competition by Bamboo U and IBUKU inviting architects and designers to reimagine affordable housing using bamboo — with the winning design built full-scale in Bali.
Computational Design & Education: Beegraphy Design Awards Introduces 7th Category (Featuring Jiyun's Innovative Approach)
Dive into Beegraphy’s 7th Design Awards category, where computational design meets education to create immersive, interactive learning tools, inspired by Jiyun’s work.
From Parametric Lighting to Urban Furniture: Join the 2nd Workshop in Beegraphy’s Computational Design Series
Dive into Cutting-Edge Design Techniques and Practical Applications with Industry Experts
Introducing Sphere by UNI: Pioneering a New Era in AEC Industry
Unlocking Global Potential with BIM and Agile Management
Explore Architecture Competitions
Discover active competitions in this discipline
The International Standard for Design Portfolios
The Global Benchmark for Architecture Dissertation Awards
The Global Benchmark for Graduation Excellence
Challenge to reimagine the Iron Throne
Comments (0)
Please login or sign up to add comments
No comments yet. Be the first to comment!