RAW House: A Masterclass in Hybrid Home and Gallery Design by O'Sullivan Skoufoglou Architects
RAW House by O'Sullivan Skoufoglou Architects combines family living and gallery space, blending functionality with artistic curation.
RAW House, located in Clapham, London, stands as an exemplary model of hybrid home and gallery design. Created by O'Sullivan Skoufoglou Architects, this space serves as both a functional family home and an immersive art gallery for creative directors Tanya Grigoroglou and Rupert Worrall of RAW Editions. Designed to foster a seamless blend between private living and public art exhibition, the house exemplifies how thoughtful architecture can balance daily family life with the curation and display of artwork.


This innovative approach to residential architecture merges the needs of a creative household with the practicality of a home that also functions as an art space, highlighting the versatility and beauty of hybrid designs. Completed in 2023, this project reflects the architects' attention to materiality, light, and form, resulting in a home that truly embodies the vision of its inhabitants.


The Transformation of a Victorian Terraced House
Originally a dark and disconnected Victorian terraced house with a basement, RAW House underwent a transformation that prioritized flexibility and functionality. The house, purchased by the couple in 2019, had previously been divided into commercial and residential spaces, with poor natural light and a disjointed layout. The architects’ task was to rethink this space and reconfigure it to accommodate a contemporary, hybrid lifestyle.


The new design opens up the house to light and space while also creating distinct zones for living and displaying art. The focus was on maintaining a deep sense of localism while also meeting the couple’s desire for a space that functions both as a family home and an art gallery. O'Sullivan Skoufoglou Architects achieved this balance by introducing an open-plan concept, creating rooms that fluidly transition between public and private functions.


A Versatile Hybrid Space: Living and Art Curation
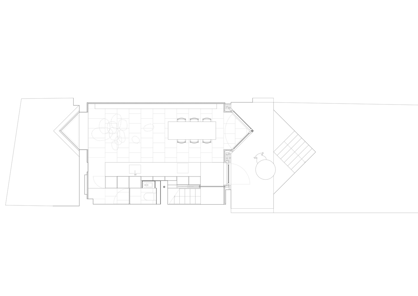
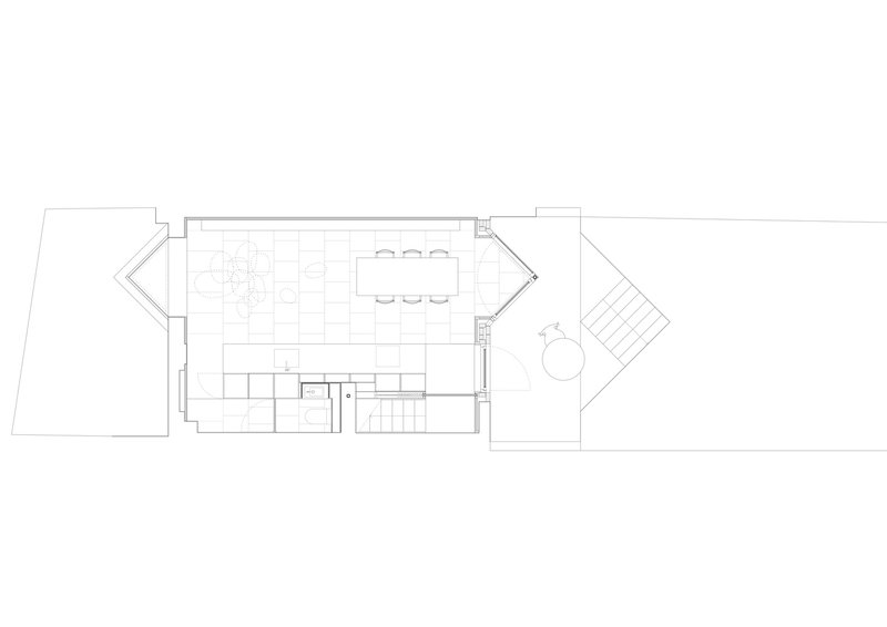
The heart of RAW House is its ability to blend living areas with exhibition space. Upon entering, visitors are greeted by an open gallery that serves as the family’s primary social space. Floor-to-ceiling windows offer sweeping views of the garden, allowing natural light to fill the interior and create an inviting atmosphere. The sliding shutters allow the gallery to open or close depending on the family’s needs, with a bold red terrazzo fireplace wall serving as both a focal point and a display area for the curated artwork.


The design prioritizes versatility by enabling the space to switch between intimate family gatherings and larger public art events. The gallery’s ambiance is accentuated by a muted color palette of soft pinks and yellows, echoing the couple's vision to move away from the traditional white-walled gallery model, resulting in a space that feels both personal and dynamic.


Seamless Integration of Private and Public Spaces
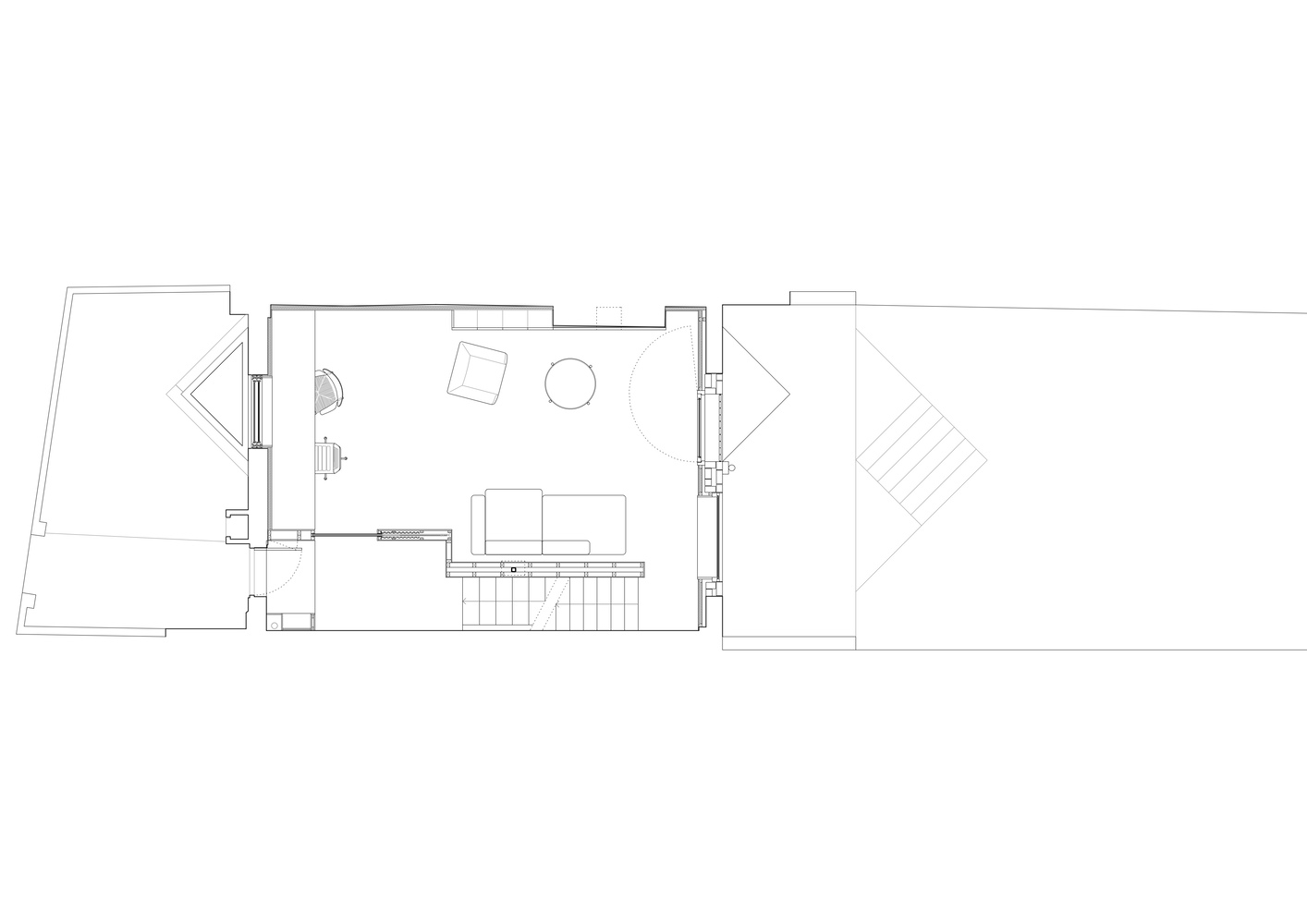
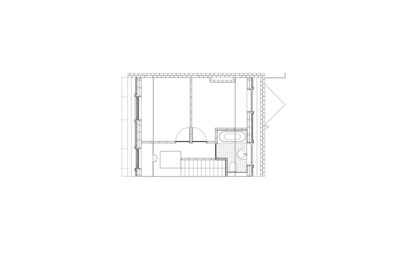
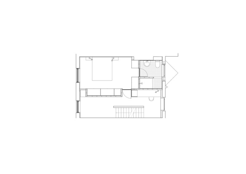
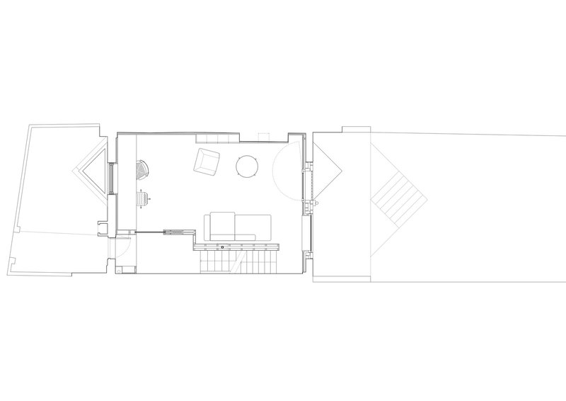
The design of RAW House emphasizes the separation of private and public spaces through thoughtful planning and architectural detailing. A key feature of the design is the new staircase, which serves as a portal between the gallery and the more private areas of the house. This design decision allows the gallery to maintain a distinct sense of separation, ensuring that the home’s privacy is maintained without compromising the gallery’s function.


In the evening, the family gathers in the basement kitchen, which is designed as an open-plan space with natural light entering from two triangular oriel windows. These openings provide direct views of the garden, ensuring that even lower-ground rooms feel connected to the outdoors. The kitchen’s design features a playful use of materials, including inlaid concrete tiles and colorful linseed oil stains on plywood cabinets, adding character and warmth to the space.



Design Detail and Materiality: Enhancing the Hybrid Experience
The material palette of RAW House plays an essential role in enhancing its hybrid function. The use of rich textures and colors throughout the home creates a visually engaging environment, while also supporting the home’s practical needs. The architects focused on using materials that reflect the family’s creative ethos and personal style, such as the bright red kitchen sink taps and the concrete tiles that demarcate different zones within the kitchen.


The integration of bespoke furniture pieces, like the plywood kitchen bench nook and shelving, further reinforces the hybrid nature of the space. These elements offer both functional storage and seating, seamlessly blending the family’s need for comfort with their love for art and design.


Connecting the Home and Garden
One of the significant design challenges was connecting the home with the garden without the need for an expensive extension. Instead, O'Sullivan Skoufoglou repositioned the windows along the rear elevation to create oblique views of the garden, making the most of the existing space while ensuring that the inside feels connected to the outside. The integration of a sculptural garden design, with angular hardscaping and climate-resilient planting, enhances the visual appeal and functionality of the outdoor space.


This careful attention to the relationship between the home and garden creates a seamless flow between indoor and outdoor spaces, encouraging a sense of tranquility and immersion in nature. The design ensures that the garden remains an integral part of the home’s hybrid function, serving as both a private retreat and an extension of the art display.


Sustainability and Future-Proofing
Sustainability played a key role in the design of RAW House. The architects used space efficiently, enhancing the existing layout without unnecessary extensions. Sustainable building practices, such as double glazing, underfloor heating, and provisions for future heat pump installation, ensure that the home remains energy-efficient and adaptable to future needs.


Fireproofing measures, including the installation of sprinklers, further enhance the safety of the space while ensuring that it is built to last. The attention to detail in both the interior design and construction reflects a commitment to longevity, making this hybrid home and gallery an enduring example of thoughtful, sustainable design.

A Visionary Hybrid Home and Gallery
RAW House stands as a prime example of how architecture can support a creative lifestyle while integrating functionality and sustainability. O'Sullivan Skoufoglou Architects have successfully created a space that allows for the fluid transition between family life and art curation, reflecting the unique vision of the clients. This project demonstrates the potential of hybrid home and gallery design, blending everyday living with artistic expression in a way that feels natural and cohesive.



Through the use of thoughtful spatial planning, material innovation, and an emphasis on sustainable practices, RAW House is not just a home but a creative sanctuary that fosters both private family life and public artistic engagement.



All Photographs are works of Ståle Eriksen
Popular Articles
Popular articles from the community
Alton Cliff House: A Harmonious Retreat by f2a Architecture in Lake Country, Canada
Alton Cliff House blends corten steel, prefabrication, and sustainable design, creating a luxurious, energy-efficient retreat perched on Canadian cliffs.
Inverted Architecture Installation by Studio Link-Arc: Exploring the Intersection of Architecture and Living Organisms
Inverted Architecture Installation by Studio Link-Arc blends mycelium, sustainability, inverted design, ecological cycles, and urban adaptive architecture in Shenzhen.
Gads Hill Early Learning Center by JGMA: Adaptive Reuse Shaping Community-Focused Educational Architecture
Adaptive reuse transforms fragmented structure into vibrant early learning center with playful façade, natural light, and community-focused sustainable design.
Split House: A Compact Urban Home Blending Privacy, Light, and Flexible Living in Japan
Compact Japanese home featuring DOMA space, flexible café potential, passive lighting, privacy zoning, and sustainable urban living design.
Similar Reads
You might also enjoy these articles
The Ken Roberts Memorial Delineation Competition (Krob)
As the most senior architectural drawing competition currently in operation anywhere in the world, it draws hundreds of entries each year, awarding the very best submissions in a series of medium-based categories.
Waterfront Redevelopment and Urban Revitalization in Mumbai: Forging a New Dawn for Darukhana
A transformative waterfront redevelopment project reimagining Darukhana’s shipbreaking heritage into an inclusive urban future.
OUT-OF-MAP: A Call for Postcards on Feminist Narratives of Public Space
Rhizoma Design and Research Lab invites artists, designers, architects, researchers, and students to reflect on how feminist perspectives can reshape public space. Selected works will be exhibited in Barcelona, October 2026. Submissions open until 15 April 2026.
Documentation Work on Buddhist Wooden Temple
Architectural syncretism and cultural hybridity: A comparative study of the Buddhist temples in Chattogram Hill tracks
Explore Architecture Competitions
Discover active competitions in this discipline
The International Standard for Design Portfolios
The Global Benchmark for Architecture Dissertation Awards
The Global Benchmark for Graduation Excellence
Challenge to reimagine the Iron Throne
Comments (0)
Please login or sign up to add comments
No comments yet. Be the first to comment!