Residence BB 214: Quiet Precision in Ludhiana
Minimalist Architecture & Design Studio composes a residence of white volumes, filtered light, and deliberate restraint in Punjab's urban fabric.
Ludhiana is not a city that comes up often in conversations about contemporary Indian residential architecture. It is industrial, dense, and pragmatic. That context makes Residence BB 214 all the more striking. Designed by Minimalist Architecture & Design Studio, the house doesn't shout for attention on its street. Instead, it operates through a careful accumulation of white surfaces, controlled openings, and planted interludes that give it a presence far more considered than most of what surrounds it.
What makes the project genuinely interesting is how it manages thermal and visual comfort without resorting to sealed boxes or heavy mechanical systems. The house is porous. Light enters through baffled skylights, louvered screens, and translucent glass walls, but always on the architect's terms. Every interior space reads as deliberately lit rather than accidentally bright, which is a harder thing to pull off in Punjab's harsh climate than it might seem.
Street Presence and the Layered Facade



From the street, the house reads as a composition of stacked white volumes. Diagonal-paneled screens wrap portions of the facade, offering privacy while hinting at the layers behind. A projecting volume cantilevered over the lower floor creates a sharp datum line against the sky, and the overall massing avoids the monolithic quality that plagues many urban Indian houses built to maximize floor area ratio.
The tensile diagonal bracing visible in the upward view of the balconies is a notable detail. It serves a structural role but also creates a graphic rhythm against the otherwise planar surfaces. Together with mature trees framing the composition, these elements give the facade a depth that rewards a second look from the sidewalk.
Entry Sequence and Courtyard Logic



The entry is not a single threshold but a sequence. Planted concrete beds and vertical louvered screening establish a transitional zone between the street and the interior. Morning light filters through the louvers into the courtyard, creating a space that is simultaneously outdoor and sheltered. A figure ascending the staircase in one view gives scale to the vertical louvered screens and reveals just how tall the ground floor volume actually is.
Inside, fluted wall paneling at the entryway marks the formal beginning of the domestic interior. The materiality shifts from raw concrete and metal to a softer, more tactile register. It is a simple move, but it works: you know you have arrived somewhere considered.
Living Spaces: Openness with Control



The main living room is generous without being cavernous. A pendant light grid anchors the ceiling plane, while a white sectional sofa and floor-to-ceiling sheer curtains keep the palette restrained. The double-height volume with its curved modular sofa and translucent glass wall overlooking a planted terrace is the spatial highlight: it connects two floors visually while allowing light to wash down from above.
Folded sliding glass doors open the living area directly onto a timber pool deck. When fully retracted, the boundary between inside and outside dissolves convincingly. The sheer curtains, present in nearly every room, act as a consistent device for softening the Punjab sun without blocking it entirely. They unify the interior language in a way that feels effortless.
Staircases as Spatial Protagonists



The staircases in this house are doing more work than circulation. A white sculptural stair near the entry doubles as a framing device for the courtyard beyond. The overlapping concrete staircases with their curved wall and recessed fasteners create an almost brutalist interlude in an otherwise light-filled house. A third stair, framed by a dark shelving wall, inverts the palette entirely and introduces a moody contrast.
These three distinct stair conditions within a single residence suggest that the architects treated vertical movement as a design opportunity rather than a code obligation. Each one has its own character, its own light quality, and its own material finish. It is the kind of attention to an everyday element that separates a thoughtful house from a merely expensive one.
Kitchen, Details, and Material Clarity



The kitchen is split into two conditions. An open zone features a reflective stainless steel island beneath a tubular glass pendant light, with a gridded display wall behind. A narrower corridor version of the kitchen runs along the opposite side, with exposed ductwork overhead and the ever-present sheer curtains filtering bright sunlight. Leaving the ducting exposed is a deliberate choice that adds an industrial edge to the otherwise polished interior.
Smaller details hold up under scrutiny. Pale wooden tripod stools tucked beneath a dining table, ceramic objects arranged with intention, rounded wooden coffee tables on a textured carpet: these vignettes suggest a house that was designed down to the furniture, not just the walls. The material palette stays within a tight range of white, timber, concrete, and stainless steel, which keeps the spaces coherent across all three floors.
Private Rooms and the Pool Terrace



The bedrooms maintain the same calibrated restraint found in the public areas. Textured headboard walls and mirrored alcove shelving give the master bedroom its own identity without departing from the house's overall language. A second bedroom places a low bench facing the window, offering a contemplative corner framed by white curtains. These are not lavish rooms. They are calm ones.
The bathroom, with its freestanding white tub flanked by horizontal stone tile and a slatted timber ceiling, is perhaps the most materially rich space in the house. The timber ceiling introduces warmth that the rest of the house rations carefully. It is a reward at the end of the spatial sequence.
Pool and Outdoor Living



The swimming pool sits on an upper level, flanked by white metal guardrails and suspended wire rods beneath a translucent screen. It functions as both a recreational amenity and a light reflector, bouncing water-dappled light back into the adjacent living spaces through large glass doors. The diagonal bracing visible from the pool deck ties back to the street facade, reinforcing the geometric language from the outside in.
An overhead view of the curved sofa and rounded coffee tables arranged on a textured carpet reveals how furniture was selected to echo the house's mix of orthogonal structure and curvilinear detail. Nothing in this house feels arbitrary, which is either its greatest strength or, depending on your tolerance for control, its limitation.
Light as Material



The baffled skylight in the upper corridor is the house's most photogenic moment, and for good reason. Striped shadows fall across white terrazzo flooring in a pattern that shifts throughout the day. It is architecture performing its oldest trick, using structure to shape light, but it works because the surfaces are clean enough to make those shadows legible.
Stacked balconies with white vertical cladding panels and exposed concrete walls capture afternoon light in a way that reveals the texture of the materials. The kitchen, photographed with a person standing at the island beneath sheer curtains, shows how even prosaic domestic moments become visually rich when the light has been this carefully managed. In Ludhiana's climate, where the sun can be punishing for much of the year, this level of daylight design is not decorative. It is functional.
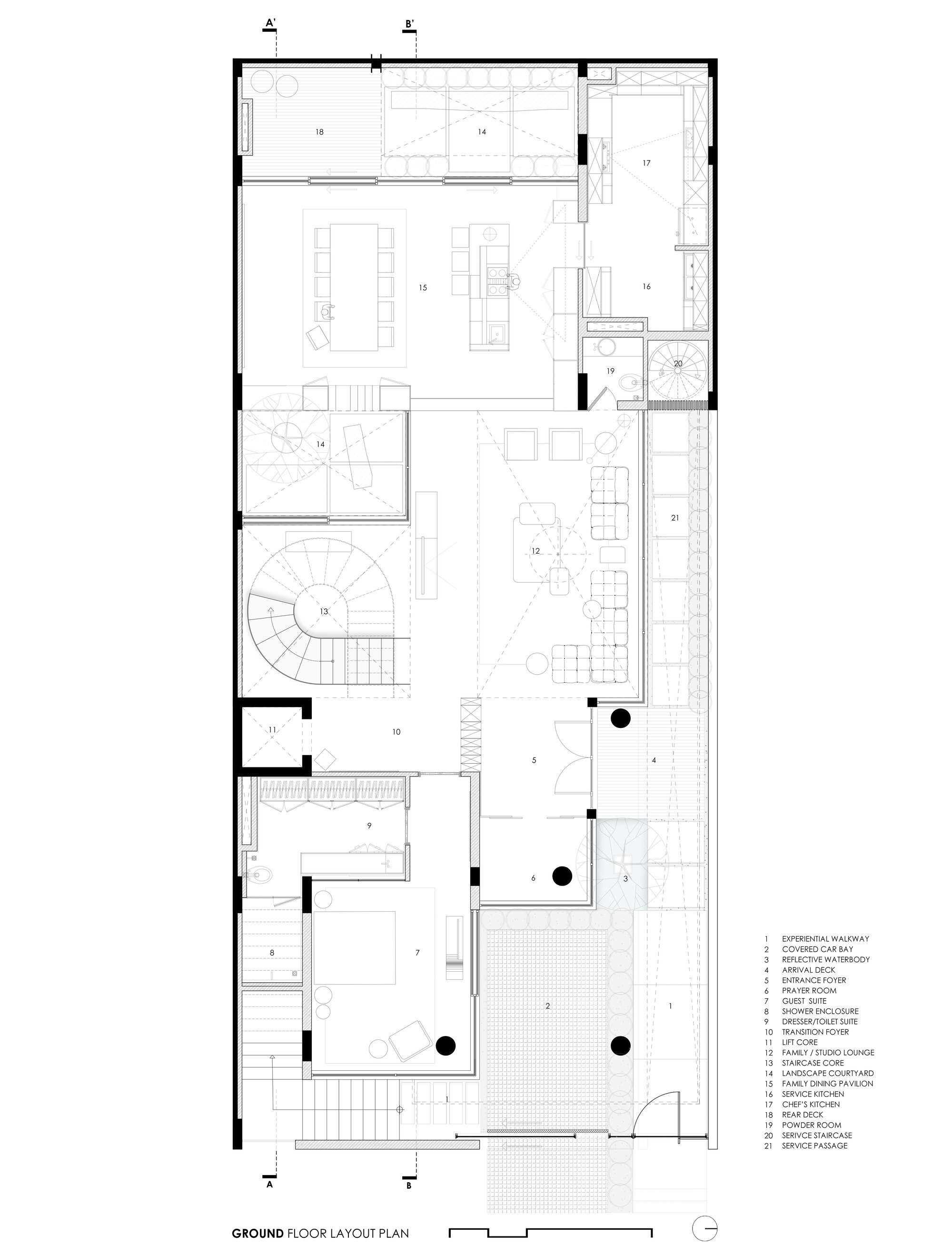
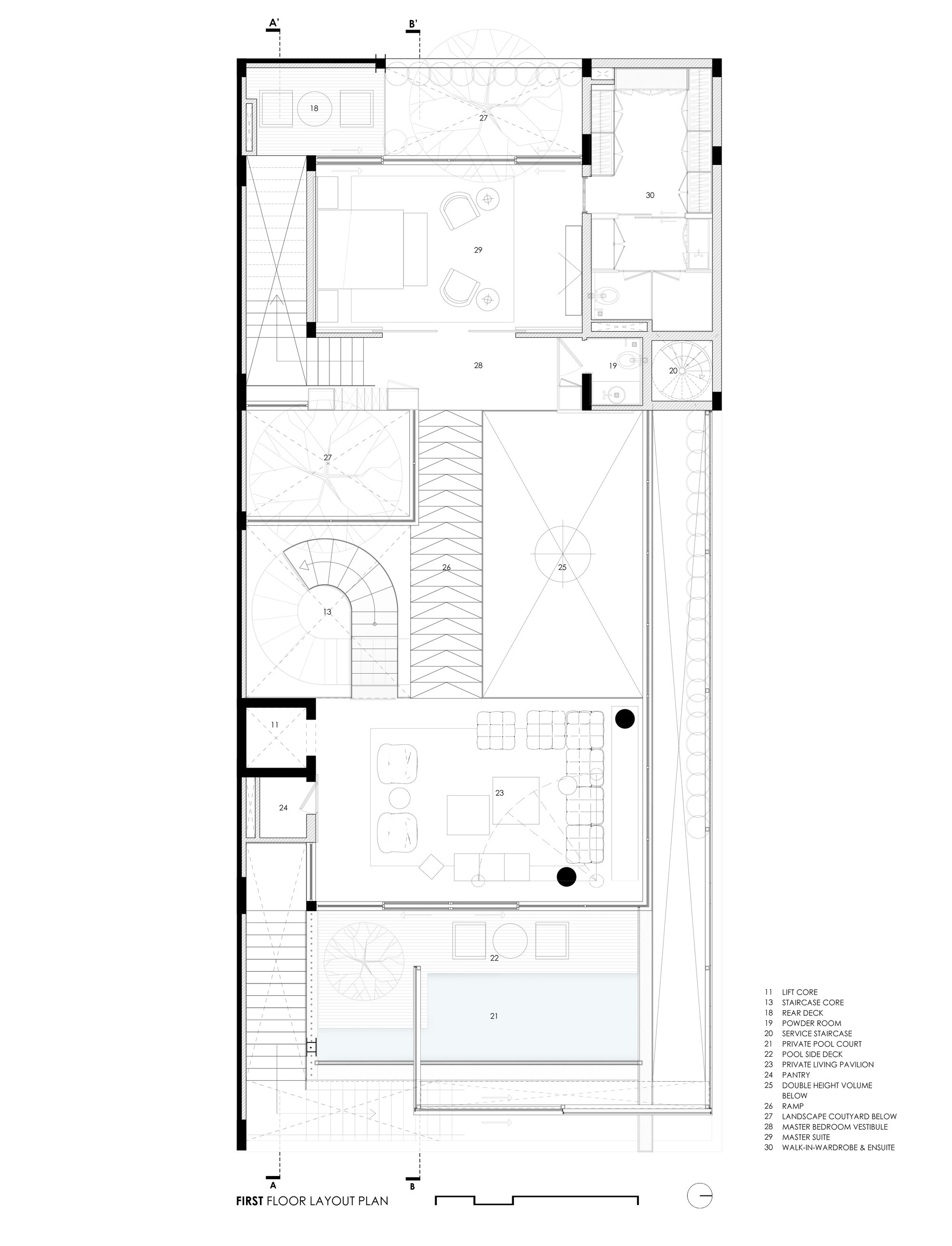
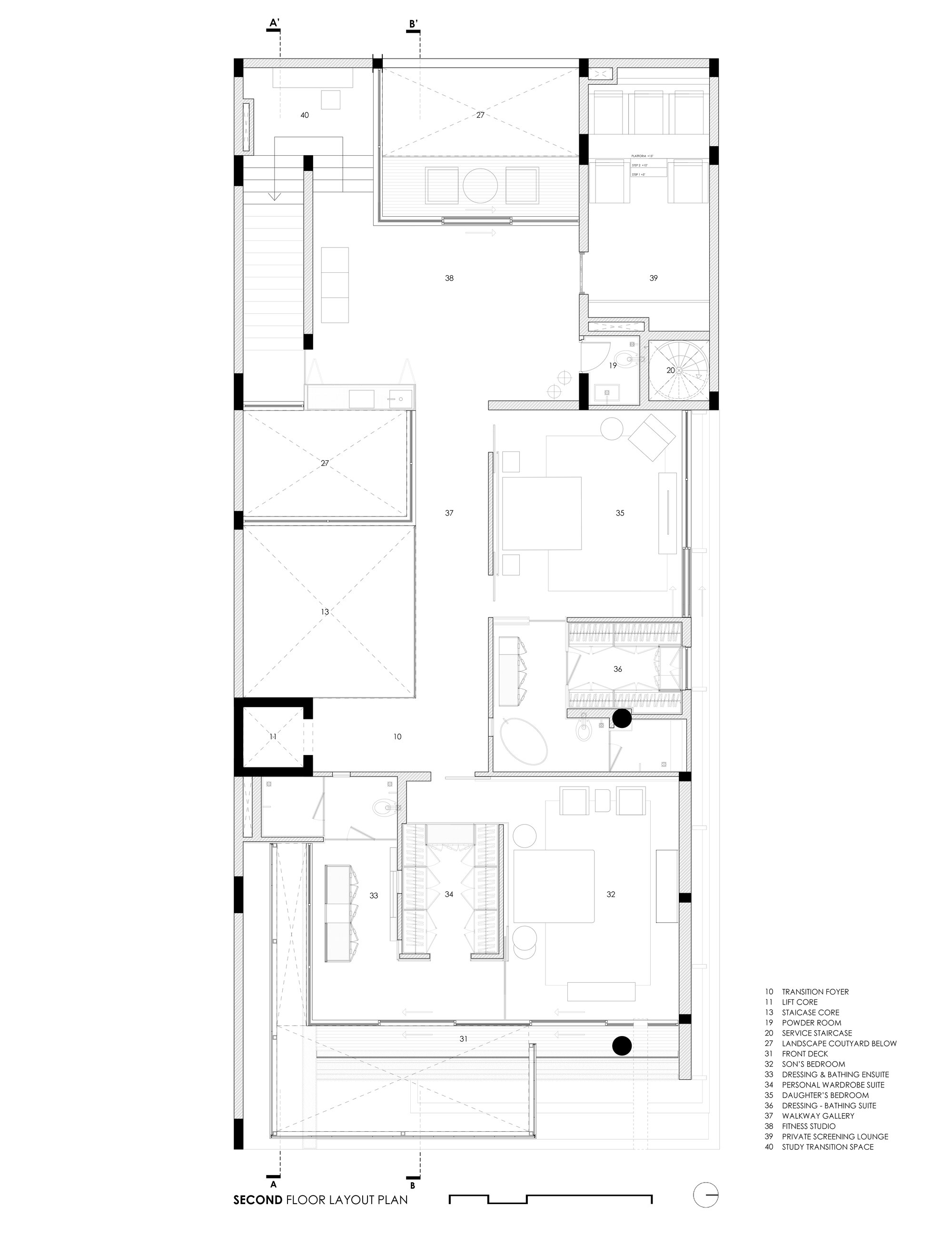
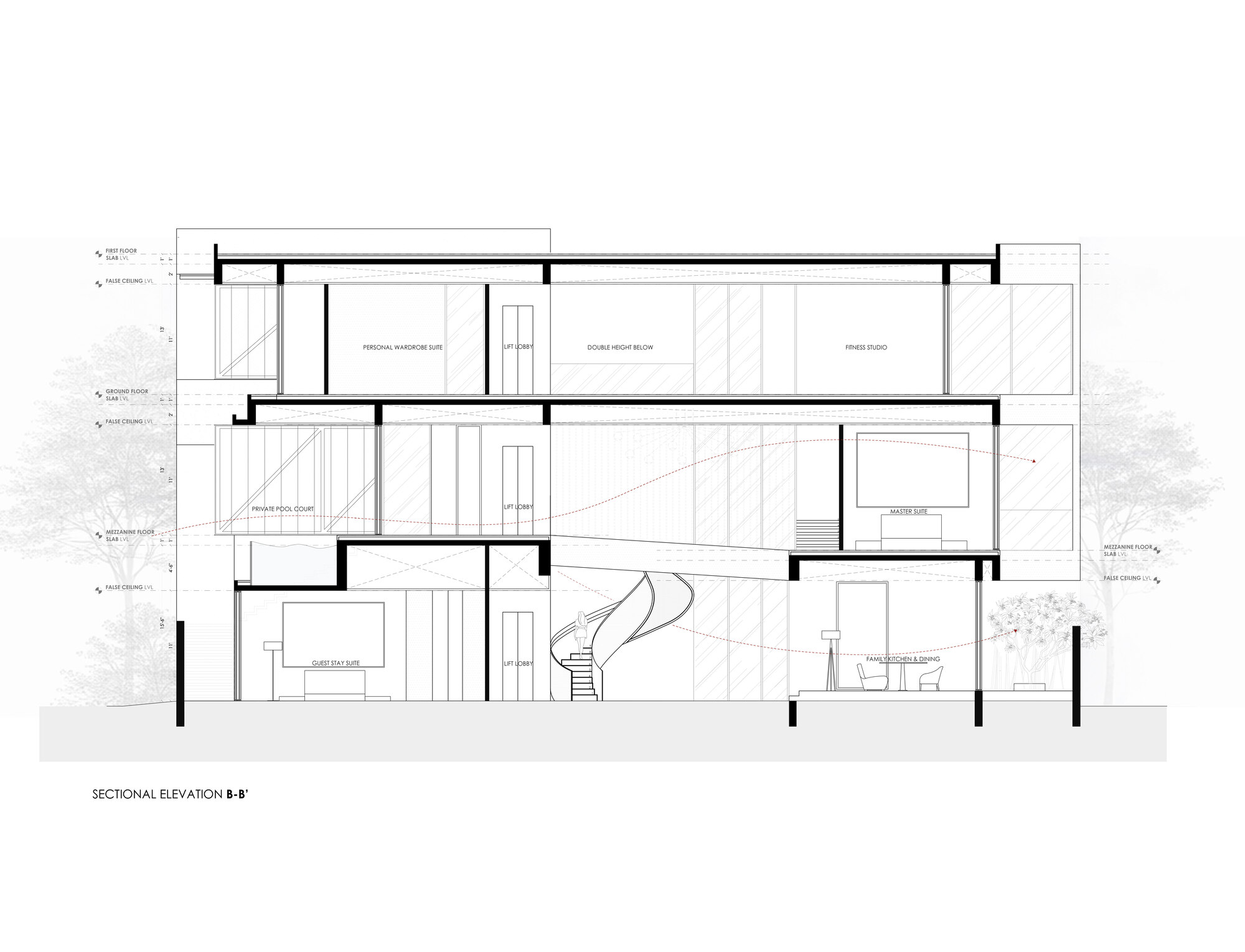
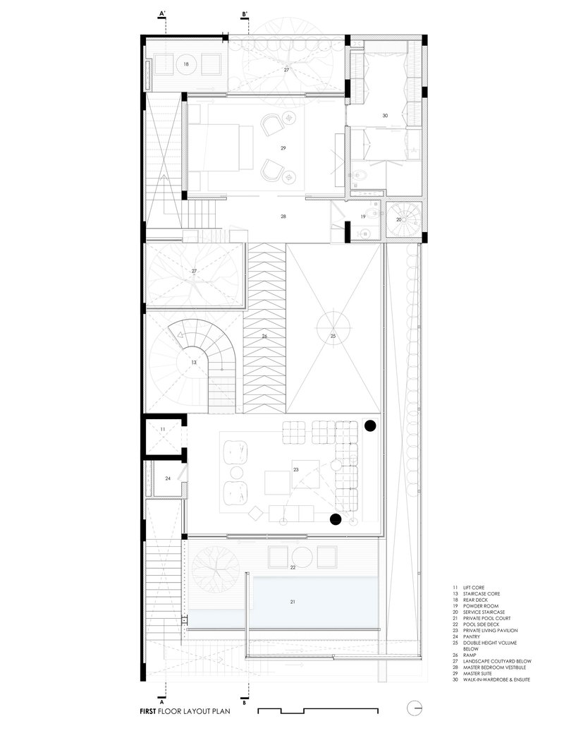
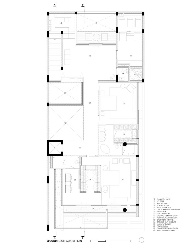
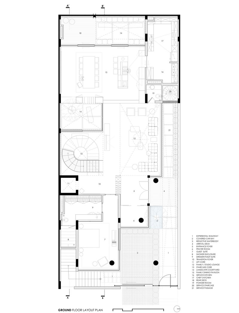
Plans and Drawings



The ground floor plan confirms the central role of a circular staircase that organizes movement through the house. Open living areas radiate outward from this core, punctuated by multiple planted courtyards that bring daylight and ventilation deep into the plan. The first floor places bedrooms alongside the pool terrace and a double-height volume marked by a decorative ceiling pattern. By the second floor, bedroom suites open onto a generous terrace, with a sloped ceiling above the stairwell creating a distinctive roofline.


The front elevation drawing clearly shows three stacked levels with vertical timber cladding and flanking trees that soften the composition. The north elevation reveals horizontal banding with diagonal timber infill panels, a motif that carries from the drawings into the built reality with impressive fidelity.


Two sectional elevations reveal the split-level staircase strategy and how the multi-level interior volumes interlock. The rooftop planter shown in section explains the greenery visible from the street, while the curved staircase reads as the spatial spine that holds the entire composition together. These drawings show a house that was resolved on paper before it was built, which is increasingly rare.
Why This Project Matters
Residence BB 214 matters because it demonstrates that disciplined, climate-responsive minimalism is achievable in the context of a mid-tier Indian city. Ludhiana is not Ahmedabad, where a rich modernist legacy provides cultural permission for architectural ambition. Here, a house like this has to justify itself on its own terms, and it does so through performance: daylight management, thermal layering via screens and courtyards, and a material palette that will age without deteriorating.
Minimalist Architecture & Design Studio has produced a house that trusts proportion and light over spectacle. In a residential market saturated with ornamental excess and imported stylistic references, that trust is its most radical quality. The house doesn't need to convince you it is beautiful. It simply asks you to pay attention to the way light falls on a white wall, and then it lets the architecture do the rest.
Residence BB 214 by Minimalist Architecture & Design Studio. Ludhiana, India. Completed 2025. Photography by Nakul Jain.
About the Studio
Share Your Own Work on uni.xyz
If projects like this are the kind of work you want to make, uni.xyz is a place to publish your own, find collaborators, and enter design competitions.
Popular Articles
Popular articles from the community
Free Architecture Competitions You Can Enter Right Now
No entry fees, real prizes. Here are the best free architecture competitions open for submissions in 2026.
TGK Nirasaki Plant: A Smart Factory Blending Technology, Landscape, and Wellness
Smart factory in Japan blending IoT manufacturing, scenic trail design, natural ventilation, and landscape integration to enhance user experience and sustainability.
Magic Box Office Barcelona Innovative Sustainable Workplace Design
Innovative sustainable office design featuring triangular form, ceramic façade, flexible interiors, natural light optimization, and creative workspace for modern work culture.
Similar Reads
You might also enjoy these articles
20 Most Popular Commercial Architecture Projects of 2025
From sustainable market concepts to heritage factories, the commercial buildings and proposals that drew the most attention on uni.xyz this year.
Magic Box Office Barcelona Innovative Sustainable Workplace Design
Innovative sustainable office design featuring triangular form, ceramic façade, flexible interiors, natural light optimization, and creative workspace for modern work culture.
Mantiqueira House by SysHaus and M Magalhães Estúdio
A linear modular house embedded in Serra da Mantiqueira, integrating panoramic views, sustainable prefabrication, minimal terrain impact, and contemporary interiors.
Guardia di Finanza Office Building by DEMOGO
Stepped institutional office in Bologna integrates terraces, red-toned facade, and linear staircase, reconnecting military complex with surrounding urban landscape.
Comments (0)
Please login or sign up to add comments
No comments yet. Be the first to comment!