Sanctuary Experience Center: A Model of Sustainable Architectural Reuse by Abin Design Studio
The Sanctuary Experience Center by Abin Design Studio is a sustainable, adaptive reuse project that integrates natural elements and repurposed materials to create a lasting impact.
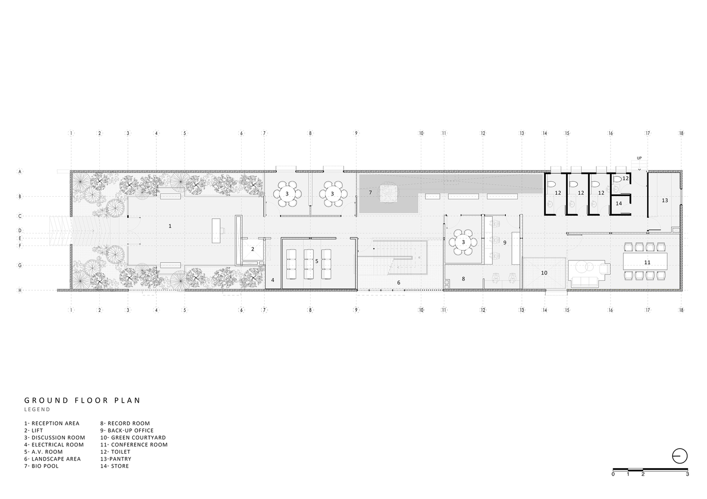
The Sanctuary Experience Center, designed by Abin Design Studio, stands as a prime example of sustainable adaptive reuse in architecture. Located in Kolkata, India, this 410 m² space was conceived to reflect the core values of The Sanctuary—a project that emphasizes sustainability and ecological preservation. By thoughtfully integrating natural elements and prioritizing resource efficiency, the Experience Center sets a new benchmark in adaptive architecture.



Design Philosophy: Sustainability at its Core
The Sanctuary Experience Center is not just a temporary structure but a sustainable architectural solution. It was designed with a clear focus on:
- Minimizing material waste: From its conceptualization, the project has aimed to reduce environmental impact by repurposing materials and structures.
- Ecological sensitivity: The design actively incorporates elements like light, greenery, and water to foster a sanctuary-like atmosphere while maintaining respect for the surrounding natural environment.




Architectural Approach
Bridging the Ephemeral and Permanent
The design follows a linear spatial layout, optimizing the use of the site’s residual spaces while making a smooth transition from temporary installations to more permanent structures. Key architectural features are planned for future integration within The Sanctuary housing project, ensuring the experience center continues contributing to the community’s growth.



Material Reuse
Thoughtful material reuse plays a significant role in the design:
- M.S. slabs from the center will later be repurposed as a bridge in the butterfly garden.
- Glass panels will be integrated into the future banquet hall, and gabion wall infills will support landscaping.
- Existing vegetation is preserved and relocated to the sky-walk deck, enhancing the natural environment.



Connection to Nature
Nature plays a crucial role in the design of the Sanctuary Experience Center. The space incorporates:
- Greenery: Extensive plant life is integrated throughout, providing a lush, natural atmosphere.
- Water: Water features are strategically placed to enhance the feeling of tranquility and connect visitors with the essence of the sanctuary.
- Light: Natural light is used to enhance the mood of the space, promoting a serene environment.



Sustainable Legacy
The Sanctuary Experience Center is a powerful model of how temporary architecture can leave a lasting impact. By creating spaces that are adaptable and respectful of the environment, the project showcases:
- Resource efficiency: Every element of the building is designed with future sustainability in mind.
- Ecological preservation: The project supports the surrounding natural environment while maintaining a seamless relationship between built and natural spaces.




Abin Design Studio’s Sanctuary Experience Center demonstrates that architecture can evolve and adapt with respect to both nature and human needs. With a focus on sustainability, resource reuse, and ecological preservation, this project sets a new standard for future architecture, illustrating how temporary structures can have lasting value.





All Photographs are work of Suryan // Dang
Popular Articles
Popular articles from the community
A Contemporary Take on Iranian Residential Architecture
A modern interior design in Mashhad that reinterprets brick, light, and spatial flow to create a warm, contemporary residential architecture.
The Ken Roberts Memorial Delineation Competition (Krob)
As the most senior architectural drawing competition currently in operation anywhere in the world, it draws hundreds of entries each year, awarding the very best submissions in a series of medium-based categories.
Inverted Architecture Installation by Studio Link-Arc: Exploring the Intersection of Architecture and Living Organisms
Inverted Architecture Installation by Studio Link-Arc blends mycelium, sustainability, inverted design, ecological cycles, and urban adaptive architecture in Shenzhen.
On the Brooks House by Monsoon Collective – A Contemporary Kerala Home Rooted in Tradition
Kerala home blending tradition and modernity with water-inspired design, brick architecture, courtyard planning, and sustainable rainwater harvesting strategies.
Similar Reads
You might also enjoy these articles
The Ken Roberts Memorial Delineation Competition (Krob)
As the most senior architectural drawing competition currently in operation anywhere in the world, it draws hundreds of entries each year, awarding the very best submissions in a series of medium-based categories.
Waterfront Redevelopment and Urban Revitalization in Mumbai: Forging a New Dawn for Darukhana
A transformative waterfront redevelopment project reimagining Darukhana’s shipbreaking heritage into an inclusive urban future.
OUT-OF-MAP: A Call for Postcards on Feminist Narratives of Public Space
Rhizoma Design and Research Lab invites artists, designers, architects, researchers, and students to reflect on how feminist perspectives can reshape public space. Selected works will be exhibited in Barcelona, October 2026. Submissions open until 15 April 2026.
Documentation Work on Buddhist Wooden Temple
Architectural syncretism and cultural hybridity: A comparative study of the Buddhist temples in Chattogram Hill tracks
Explore Architecture Competitions
Discover active competitions in this discipline
The International Standard for Design Portfolios
The Global Benchmark for Architecture Dissertation Awards
The Global Benchmark for Graduation Excellence
Challenge to reimagine the Iron Throne
Comments (0)
Please login or sign up to add comments
No comments yet. Be the first to comment!