Shenzhen Art High School Architecture by O-office Architects
Shenzhen Art High School by O-office Architects redefines urban educational architecture with vertical design, ecological integration, and a symbolic green temple.
The Shenzhen Art High School architecture by O-office Architects represents a breakthrough in contemporary campus design, redefining how educational spaces can coexist with high-density urban contexts. Completed in 2025 in the Luohu district of Shenzhen, this 38,876 m² campus combines innovation, cultural integration, and ecological consciousness, making it a landmark in China’s modern educational architecture.





Context: Urban Density and Educational Spaces
Located in Luohu, the eastern node of Shenzhen’s rapid linear development, the school site reflects decades of functionalist planning where efficiency overshadowed human and ecological needs. Unlike conventional campuses that repeat standardized layouts, Shenzhen Art High School reinterprets the city’s dense fabric by weaving together community life, nature, and educational space.




This approach counters the alienation seen in many modern urban schools, where rapid socioeconomic development has reduced campuses to mechanical systems. Instead, the project reintroduces the human spirit of place, reviving the Pearl River Delta’s traditional relationship between people, land, and landscape.





Design Strategy: Vertical Campus Innovation
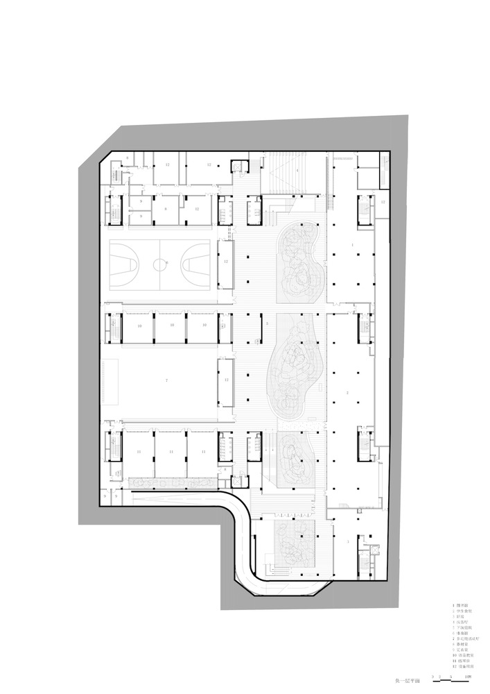
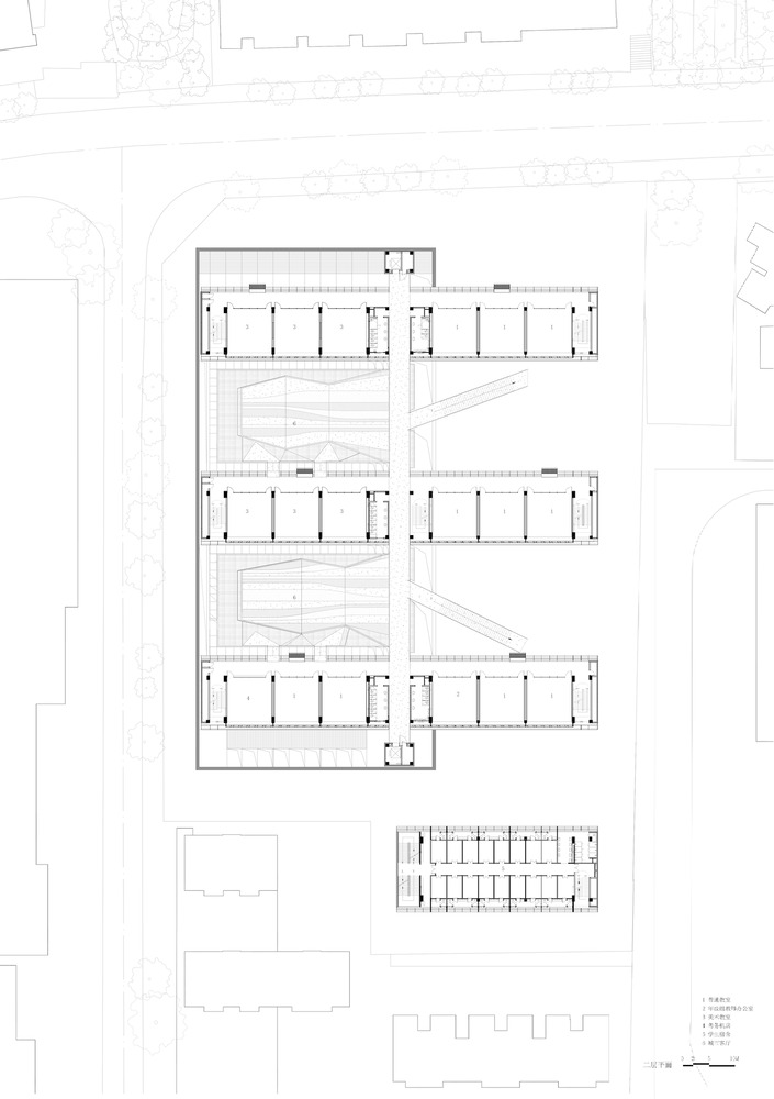
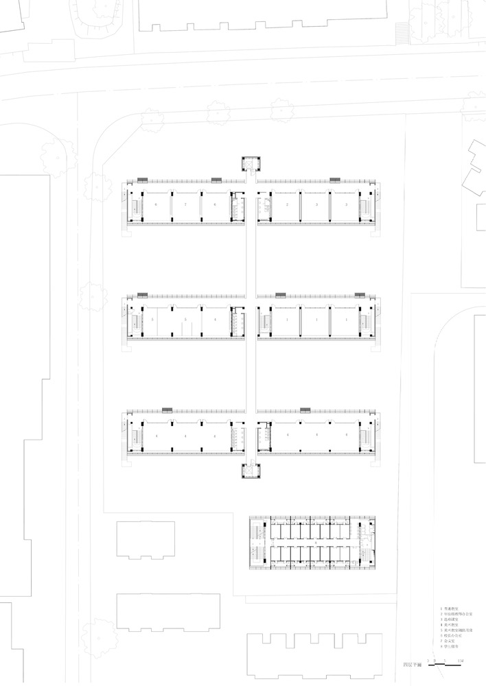
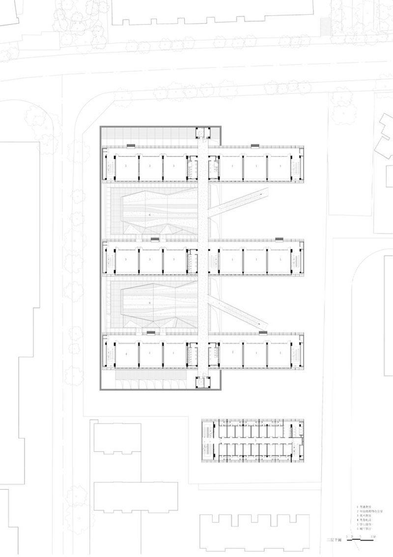
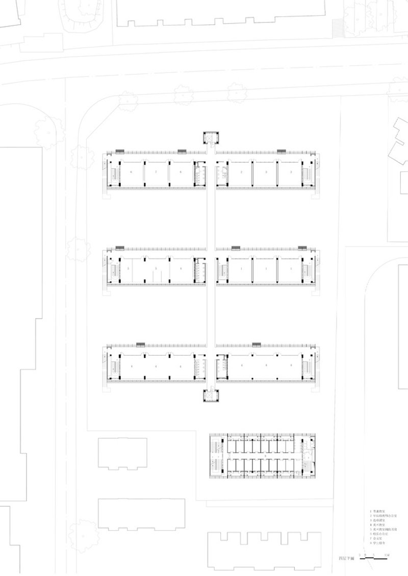
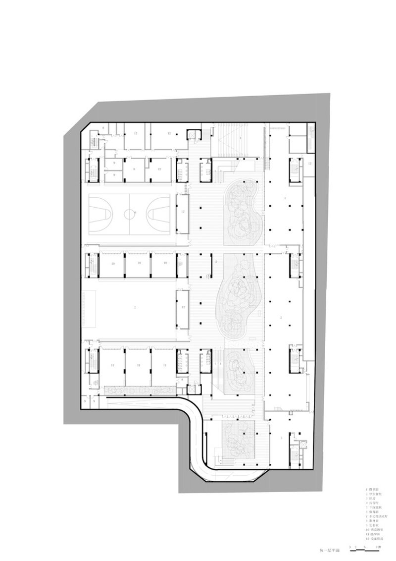
The most striking feature of Shenzhen Art High School architecture is its vertical reorganization of space. With limited land and a building ratio of 3.0, traditional layouts were impossible. O-office Architects responded by stacking functions vertically.





The teaching buildings occupy five stories at the base, while a suspended sports field floats above them. This elevated athletic zone includes a nearly 300-meter track, a 115-meter straight track, and a natural grass field, transforming the roof into an open sky stadium. Beneath, the shaded courtyards and classrooms benefit from cooler microclimates, reducing energy use in Shenzhen’s hot summers.




A Green Temple in the City
O-office envisioned the campus as more than a functional institution—it is conceived as a “green temple” for the city. This metaphor reflects the campus’s dual role as an educational hub and a spiritual public space within Shenzhen’s dense urban fabric.


The design extends the ecological system of nearby Weiling Park, integrating greenery into the architectural layers. The result is a three-dimensional campus courtyard system where vegetation, sunken gardens, and aerial fields blur boundaries between built space and landscape.



Spatial Morphology and Structural Expression
The architecture is divided into three vertical layers:
- A sunken base housing public facilities, gardens, and parking.
- Teaching and dormitory blocks organized rationally across three levels.
- The sky sports field, supported by a spatial truss and V-shaped steel columns, functioning as both structure and urban landmark.
This layered morphology allows continuity between enclosed and open spaces. Exposed truss systems and columnar structures create identifiable spatial markers, giving the campus an architectural vocabulary that is monumental yet human-centered.




Human Experience and Symbolism
Inside the campus, thin V-shaped columns rise from gardens, merging architecture with vegetation. Elevated walkways create a dynamic circulation system, while the floating sports field acts as a protective canopy. The rhythm of soaring eaves, winding interiors, and open courtyards transforms daily school life into a unique spatial journey.



By combining structural innovation with ecological sensitivity, Shenzhen Art High School stands as both a monument to the city’s evolving identity and a welcoming educational environment for students.



The Shenzhen Art High School architecture is a landmark example of how education, ecology, and urban density can be reconciled. By stacking functions, integrating nature, and creating a spiritual “green temple” within the city, O-office Architects have set a new benchmark for urban educational architecture.



All Photographs are works of Chao Zhang, Siming Wu
Popular Articles
Popular articles from the community
Solar Steam: A Climate-Responsive Architecture That Redefines the Monument
A climate-responsive memorial architecture that transforms heat, decay, and time into a living system reflecting humanity’s ecological impact.
Inverted Architecture Installation by Studio Link-Arc: Exploring the Intersection of Architecture and Living Organisms
Inverted Architecture Installation by Studio Link-Arc blends mycelium, sustainability, inverted design, ecological cycles, and urban adaptive architecture in Shenzhen.
Gads Hill Early Learning Center by JGMA: Adaptive Reuse Shaping Community-Focused Educational Architecture
Adaptive reuse transforms fragmented structure into vibrant early learning center with playful façade, natural light, and community-focused sustainable design.
Similar Reads
You might also enjoy these articles
Bamboo Housing Challenge 2026: Design Affordable, Sustainable Homes Using Bamboo
An international design competition by Bamboo U and IBUKU inviting architects and designers to reimagine affordable housing using bamboo — with the winning design built full-scale in Bali.
Computational Design & Education: Beegraphy Design Awards Introduces 7th Category (Featuring Jiyun's Innovative Approach)
Dive into Beegraphy’s 7th Design Awards category, where computational design meets education to create immersive, interactive learning tools, inspired by Jiyun’s work.
From Parametric Lighting to Urban Furniture: Join the 2nd Workshop in Beegraphy’s Computational Design Series
Dive into Cutting-Edge Design Techniques and Practical Applications with Industry Experts
Explore Architecture Competitions
Discover active competitions in this discipline
The International Standard for Design Portfolios
The Global Benchmark for Architecture Dissertation Awards
The Global Benchmark for Graduation Excellence
Challenge to reimagine the Iron Throne
Comments (0)
Please login or sign up to add comments
No comments yet. Be the first to comment!