Spinone House by Jérôme Lapierre Architecte: A Minimal Wooden Refuge Immersed in the Quebec Forest
Spinone House by Jérôme Lapierre Architecte is a minimalist wooden cabin embracing simplicity, craftsmanship, and harmony with Quebec’s forest landscape.
In the quiet municipality of Canton de Potton, Canada, Spinone House by Jérôme Lapierre Architecte emerges as a delicate balance between architecture and landscape, where simplicity, structure, and nature intertwine. Inspired by the contemplative atmosphere of its forested site, the home reinterprets the timeless idea of the wooden cabin—a retreat that honors material honesty, sustainable living, and connection to place.


This 1,000-square-foot residence stands not as an imposition upon nature but as a measured gesture of integration. The project’s strength lies in its modesty, its quiet geometry, and its clear dialogue between interior warmth and the untamed beauty of the forest.
An Architecture of Intimacy and Awareness
Nestled among trees and boulders, Spinone House sits gently atop its site, its minimal footprint designed to preserve the land’s natural contours. Its orientation and placement stem from a deep respect for existing vegetation and topography. Rather than opening dramatically to distant views, the architecture seeks proximity and introspection.


The design follows an introspective approach, exploring how architecture can foster intimacy with the surrounding forest. Inside, spaces draw attention inward, framing close-up views of trunks, rocks, and shadows. The result is an atmosphere of serene isolation and quiet belonging—a refuge for reflection amid wilderness.

The home embodies the principle of “doing more with less.” Each line, material, and proportion serves both aesthetic clarity and environmental purpose, demonstrating that restraint can be the most eloquent expression of beauty.
A Wooden Cabin for Contemporary Living
Spinone House is a modern reinterpretation of the Canadian cabin, defined by its structural rigor and material sincerity. Its timber frame and cedar cladding blur the boundaries between architecture and forest. The design celebrates wood not as decoration but as structure and soul.

The main living space forms the heart of the house: a fully glazed volume that opens to the forest and extends onto a terrace. This spatial continuity dissolves the boundary between inside and outside, allowing natural light to flow and seasons to animate the interior.


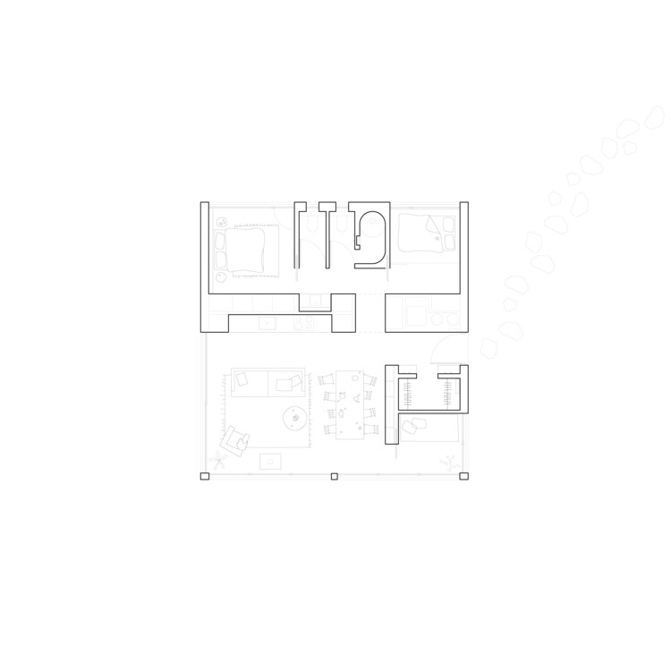
The architects’ use of a central functional core—a band of built-in furniture—maximizes efficiency, concealing utilities while maintaining clear visual order. The core includes the kitchen, storage, and technical systems, integrating them seamlessly without disturbing the purity of space.
This central element anchors the home’s plan, dividing the layout into two domains:
- The social space, connected with light and landscape.
- The private zone, designed for calm and retreat.

Each transition—from open to enclosed, public to private—is carefully choreographed. The low-ceiling threshold leading to the sleeping area amplifies the shift in atmosphere, emphasizing intimacy and enclosure. Two bedrooms flank a central zone of service spaces and bathrooms, creating a gradient of privacy that unfolds with human scale and rhythm.
Material Discipline and Craft
Material selection in Spinone House reflects a philosophy of architectural economy and artisanal precision. The structural grid dictates every component: corridor widths, joinery alignments, window positions, and door placements. This disciplined system minimizes material waste and refines construction logic, making the project both sustainable and tactilely expressive.


Unlike typical large-scale glue-laminated timber (glulam) constructions, the house relies on more frugal, locally sourced wood elements. This approach reduces overall environmental impact while honoring vernacular techniques.
From structure to finish, each decision celebrates the authenticity of materials:
- The wood is untreated, allowing natural aging and patina.
- The glass reflects forest light and movement.
- The steel details provide structure without ornamentation.

Inside, every joint, seam, and surface resonates with a disciplined calm. The result is an architecture that feels both elemental and exquisitely crafted—a fusion of minimalism and warmth.


Framing Nature and Light
Light plays a central role in shaping the spatial experience. The glazed façade floods interiors with diffuse daylight while revealing constant shifts in the forest’s tone and texture. As daylight softens into evening, the cabin’s warm wood interior glows against the dark landscape—a lantern of intimacy surrounded by silence.

From the terrace, occupants experience the forest not as backdrop but as a living presence. Each window frames a fragment of nature—a trunk, leaf, or rock—transforming everyday life into a meditative act.
This careful orientation allows the house to breathe with the environment, responding naturally to shade, sunlight, and temperature variations, minimizing the need for mechanical conditioning.

Sustainability and Humility
Sustainability in Spinone House extends beyond energy efficiency to encompass integration, restraint, and endurance. Its compact footprint conserves materials and resources while maintaining comfort and flexibility. Passive design strategies—orientation, shading, and cross-ventilation—reduce the need for technology, emphasizing long-term resilience and simplicity.


The project embodies the idea that sustainable architecture begins with respect for context. In avoiding the urge to dominate the site, Jérôme Lapierre creates architecture that listens—architecture that belongs quietly to its landscape.


The Poetry of Simplicity
Ultimately, Spinone House transcends being a mere dwelling; it is an essay in measured living. Every design choice reflects a discipline of reduction—removing excess to allow space, light, and material to speak freely.


Its architectural language invites stillness rather than spectacle, beauty in proximity rather than panorama. Through its modest scale and precise craftsmanship, the project offers a model for contemporary rural architecture—where sustainability meets emotion, and humanity can rediscover its place within nature.
It is, as the architect describes, “a humble, poetic architecture—rooted in context and defined by restraint.”
All the photographs are works of Maxime Brouillet
Popular Articles
Popular articles from the community
Free Architecture Competitions You Can Enter Right Now
No entry fees, real prizes. Here are the best free architecture competitions open for submissions in 2026.
Inverted Architecture Installation by Studio Link-Arc: Exploring the Intersection of Architecture and Living Organisms
Inverted Architecture Installation by Studio Link-Arc blends mycelium, sustainability, inverted design, ecological cycles, and urban adaptive architecture in Shenzhen.
Atelier Macri Concept Store Interior Design by CASE-REAL
Atelier Macri store features a "ko" counter, walnut wood details, cork displays, blending retail, gallery, and seamless customer experiences.
Gads Hill Early Learning Center by JGMA: Adaptive Reuse Shaping Community-Focused Educational Architecture
Adaptive reuse transforms fragmented structure into vibrant early learning center with playful façade, natural light, and community-focused sustainable design.
Similar Reads
You might also enjoy these articles
The Ken Roberts Memorial Delineation Competition (Krob)
As the most senior architectural drawing competition currently in operation anywhere in the world, it draws hundreds of entries each year, awarding the very best submissions in a series of medium-based categories.
Waterfront Redevelopment and Urban Revitalization in Mumbai: Forging a New Dawn for Darukhana
A transformative waterfront redevelopment project reimagining Darukhana’s shipbreaking heritage into an inclusive urban future.
OUT-OF-MAP: A Call for Postcards on Feminist Narratives of Public Space
Rhizoma Design and Research Lab invites artists, designers, architects, researchers, and students to reflect on how feminist perspectives can reshape public space. Selected works will be exhibited in Barcelona, October 2026. Submissions open until 15 April 2026.
Documentation Work on Buddhist Wooden Temple
Architectural syncretism and cultural hybridity: A comparative study of the Buddhist temples in Chattogram Hill tracks
Explore Architecture Competitions
Discover active competitions in this discipline
The International Standard for Design Portfolios
The Global Benchmark for Architecture Dissertation Awards
The Global Benchmark for Graduation Excellence
Challenge to reimagine the Iron Throne
Comments (0)
Please login or sign up to add comments
No comments yet. Be the first to comment!