Step Garden House by Niji Architects: An Innovative Urban Retreat
The article describes the innovative design of Step Garden House by Niji Architects, maximizing space and light in dense urban Japan.
The Step Garden House by Niji Architects is a groundbreaking architectural project located in a dense residential area of Japan. This innovative design maximizes natural light and ventilation, transforming a narrow urban site into a multi-level garden oasis. The house showcases how thoughtful architecture can create harmonious living spaces even in the most confined environments.



Concept and Design Philosophy
Terraced Gardens as City Hills
The primary concept behind the Step Garden House is the creation of terraced gardens that mimic city hills. The architects aimed to design a house that allows sunlight to penetrate every corner of the site, despite the limitations posed by the narrow flagpole land. With only 2 meters in width and stringent building coverage and floor area ratios, the design needed to be both functional and aesthetically pleasing.



Maximizing Light and Ventilation
Surrounded by densely packed houses, the Step Garden House overcomes the challenge of limited light and ventilation. By constructing a stepped volume that recedes northward, the design ensures that every level of the house receives ample sunlight. This approach prevents the remaining garden space from becoming a dark, narrow strip and instead transforms it into a vibrant, sunlit area.



Architectural Features
Wooden Deck Garden
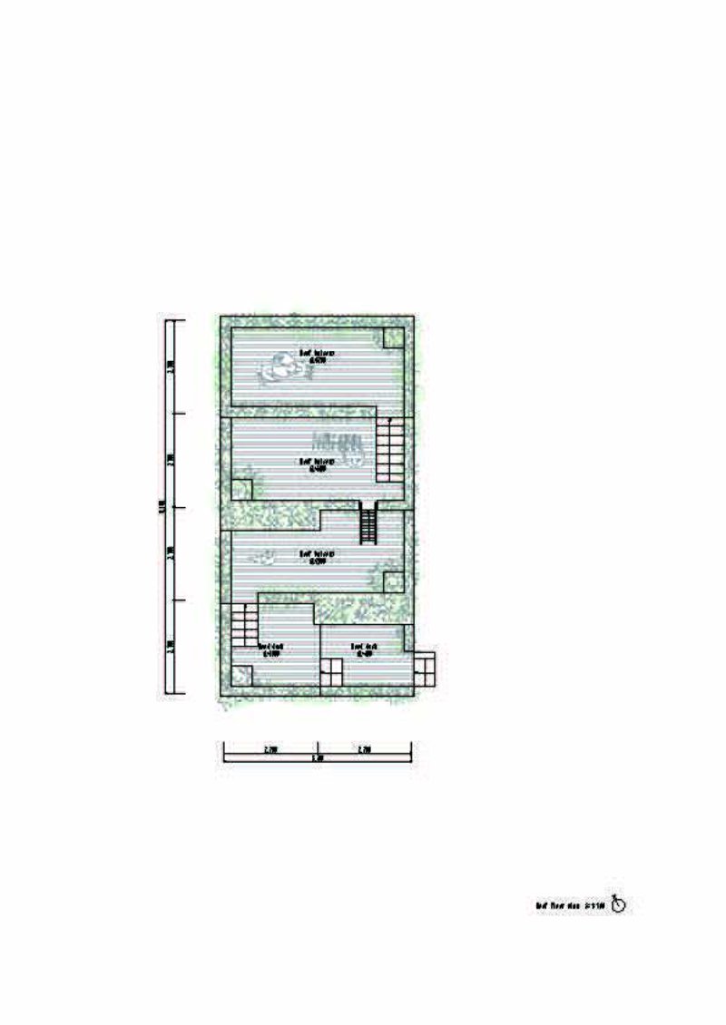
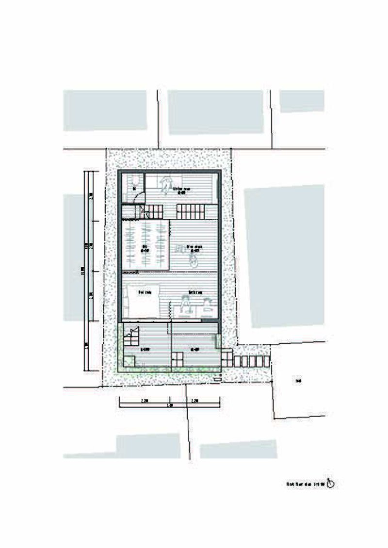
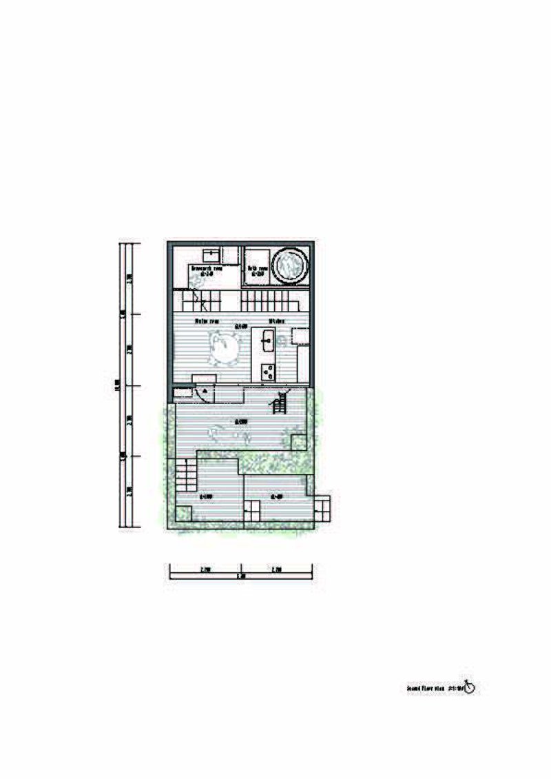
Upon entering the site, visitors are greeted by a wooden deck garden that ascends like a series of steps up to the rooftop. This garden serves multiple functions, extending the living spaces of adjacent rooms and providing areas for relaxation, dining, working, laundry drying, and even vegetable growing. The wooden decks create a seamless transition between indoors and outdoors, offering an expansive feel that belies the actual size of the site.




Skip Floor Interior
The interior of the Step Garden House features a skip floor design, where the rhythms of the exterior steps are mirrored inside. This layout allows sunlight to filter through the gaps in the skip floors, illuminating the lower levels. Stairs and ladders throughout the house facilitate easy movement between different levels, fostering a sense of openness and connectivity.



Semi-Basement and Elevated Entrance
The house's first floor is semi-basement, with the main entrance located on the second floor. As visitors proceed along the approach, they find themselves on a wooden deck above the first floor, integrating the exterior and interior experiences. The clever use of elevation enhances privacy and offers unique perspectives of the surrounding environment.



Post-Pandemic Living
Adaptable Spaces for Modern Lifestyles
The COVID-19 pandemic has fundamentally changed how people perceive and use their homes. The Step Garden House addresses these evolving needs by offering adaptable spaces that can change function throughout the day. It provides areas for family members to maintain an appropriate distance while also enabling them to come together comfortably.

Addressing Urban Density
In densely populated residential areas, maintaining a sense of distance and privacy is crucial. The stepped design of the Step Garden House creates gaps from neighboring properties, fostering a sense of openness. The wooden deck garden, which connects the interior and exterior, allows residents to fully utilize and enjoy their site.



Materials and Sustainability
Natural Light and Materials
The use of natural materials, such as wood for the decks and floors, enhances the aesthetic and environmental sustainability of the Step Garden House. The architects have meticulously planned the structure to ensure that it not only meets the functional needs of its residents but also contributes to a healthier living environment.


Energy Efficiency
By maximizing natural light and ventilation, the Step Garden House reduces reliance on artificial lighting and climate control, promoting energy efficiency. The design's thoughtful integration with the natural environment exemplifies sustainable urban living.

The Step Garden House by Niji Architects is a testament to the potential of innovative architectural solutions in urban settings. By rethinking traditional design approaches, the architects have created a home that harmoniously blends indoor and outdoor living, maximizes natural light, and meets the evolving needs of modern life. This project serves as an inspiring example for future urban developments, demonstrating that even the most constrained spaces can be transformed into beautiful, functional, and sustainable homes.

All photographs are work of Kazuhisa Ishikawa, Niji Photo
Popular Articles
Popular articles from the community
Louis Malle Cinema: A Limestone Cultural Landmark Revitalizing Community Life in Prayssac
Limestone cinema extension with public forecourt, blending heritage and modern design to create flexible cultural spaces and strengthen community interaction.
Atelier Macri Concept Store Interior Design by CASE-REAL
Atelier Macri store features a "ko" counter, walnut wood details, cork displays, blending retail, gallery, and seamless customer experiences.
The Ken Roberts Memorial Delineation Competition (Krob)
As the most senior architectural drawing competition currently in operation anywhere in the world, it draws hundreds of entries each year, awarding the very best submissions in a series of medium-based categories.
Inverted Architecture Installation by Studio Link-Arc: Exploring the Intersection of Architecture and Living Organisms
Inverted Architecture Installation by Studio Link-Arc blends mycelium, sustainability, inverted design, ecological cycles, and urban adaptive architecture in Shenzhen.
Similar Reads
You might also enjoy these articles
The Ken Roberts Memorial Delineation Competition (Krob)
As the most senior architectural drawing competition currently in operation anywhere in the world, it draws hundreds of entries each year, awarding the very best submissions in a series of medium-based categories.
Waterfront Redevelopment and Urban Revitalization in Mumbai: Forging a New Dawn for Darukhana
A transformative waterfront redevelopment project reimagining Darukhana’s shipbreaking heritage into an inclusive urban future.
OUT-OF-MAP: A Call for Postcards on Feminist Narratives of Public Space
Rhizoma Design and Research Lab invites artists, designers, architects, researchers, and students to reflect on how feminist perspectives can reshape public space. Selected works will be exhibited in Barcelona, October 2026. Submissions open until 15 April 2026.
Documentation Work on Buddhist Wooden Temple
Architectural syncretism and cultural hybridity: A comparative study of the Buddhist temples in Chattogram Hill tracks
Explore Architecture Competitions
Discover active competitions in this discipline
The International Standard for Design Portfolios
The Global Benchmark for Architecture Dissertation Awards
The Global Benchmark for Graduation Excellence
Challenge to reimagine the Iron Throne
Comments (0)
Please login or sign up to add comments
No comments yet. Be the first to comment!