Studio on the Cliff: Redefining Cliffside Architecture Design by AKINTECTS in Chongqing
Studio on the Cliff by AKINTECTS showcases cliffside architecture design, blending office functionality with public river views in Chongqing.
Studio on the Cliff, designed by AKINTECTS, is a remarkable example of cliffside architecture design in Chongqing, China. This innovative project transforms a compact 39-square-meter pavilion into a dual-purpose space that seamlessly integrates an office and a public observation deck overlooking the Yangtze River. The design addresses both functional and communal needs, creating a dynamic environment where work and public leisure coexist in harmony.


The Concept of Cliffside Architecture Design
Cliffside architecture design has emerged as a distinctive approach to blending built structures with natural landscapes. Studio on the Cliff exemplifies this philosophy by positioning itself on the edge of a cliff along the Houbao Promenade. AKINTECTS sought to create a space that not only serves as a workplace but also provides an open viewing platform for the public to appreciate the riverside scenery.

The studio’s design approach focuses on maximizing spatial efficiency while preserving the connection between the architecture and the natural environment. The project’s strategic interventions ensure that the building enhances, rather than obstructs, the public’s visual and physical access to the cliffside walkway and river view.

Site Context and Architectural Intervention
Located on the second floor of the Houbao Promenade pavilion, Studio on the Cliff occupies a prime position with panoramic views of the river. Before the renovation, the structure featured a glass box extension and an enclosed walkway, which restricted public access and obstructed the fluidity of the promenade.

AKINTECTS reimagined the space by cutting off two corners of the building. One corner was removed to create an open observation deck, offering visitors an uninterrupted view of the river. The other corner was eliminated to restore the circular flow of the promenade, reconnecting the walkway and enhancing the public experience.

Elevating the Interior for Uninterrupted Views
A defining feature of this cliffside architecture design is the elevation of the indoor workspace. The interior floor level was raised by one meter, allowing the studio to overlook the promenade without compromising privacy. This design choice enabled the creation of a two-meter-high exhibition wall beneath the windows, serving both as a functional display area and as a visual barrier that prevents distractions from the public walkway below.

The elevated position offers employees a unique perspective, transforming client meetings and daily work routines into experiences enriched by the ever-changing river landscape.

Spatial Organization and Multi-Functionality
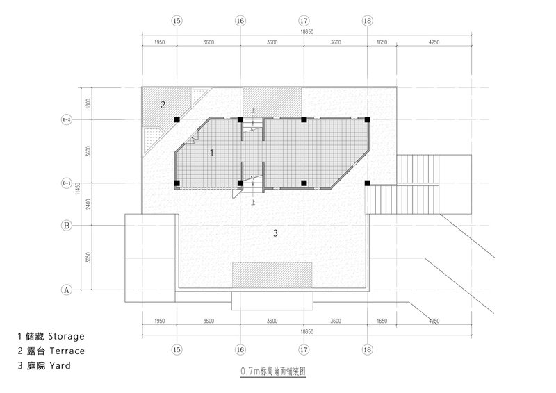
AKINTECTS masterfully optimized the 39-square-meter footprint by integrating multi-functional elements into the layout. A central passage was introduced, serving as both an entrance staircase and a visual corridor connecting the courtyard to the river view.


On one side of the passage lies the office area, accommodating six workstations. The desks are custom-designed to incorporate storage solutions, a printer, a refrigerator, and a microwave, ensuring maximum functionality within the limited space. The opposite side hosts the reception area, furnished with a seating arrangement along the cut-off corner, while a relaxed lounge space with a “lazy sofa” occupies the upper portion of the same corner.


The integration of work and relaxation zones within this compact space exemplifies how cliffside architecture design can adapt to spatial constraints without sacrificing comfort or efficiency.


Harmonizing Private and Public Spaces
Studio on the Cliff redefines the relationship between private workspaces and public environments. AKINTECTS prioritized the coexistence of these two functions by maintaining visual openness while ensuring operational privacy. The observation deck and the circular walkway invite tourists to experience the natural beauty of the site, while the elevated office interior retains its autonomy.

This symbiotic relationship underscores the potential of cliffside architecture design to create spaces that serve both business and community interests. The architectural interventions transform the pavilion into a landmark along the Houbao Promenade, enhancing its role as a gathering point for locals and visitors alike.

Material Palette and Visual Transparency
The material palette emphasizes lightness and transparency, essential qualities in cliffside architecture design. Glass is prominently used to maintain visual continuity between the interior and the river landscape. The glass box extension, though originally part of the pre-existing structure, has been thoughtfully retained and integrated into the overall design, enhancing the panoramic experience.

Wooden beams and warm interior finishes introduce a sense of warmth, balancing the transparency of the glass. This careful selection of materials ensures that the workspace feels inviting while remaining visually connected to the surrounding environment.

Maximizing Views and User Experience
The success of Studio on the Cliff lies in its ability to frame the river view as the focal point. Every design decision, from the elevation of the interior to the cutting of corners, prioritizes the preservation and enhancement of the landscape. This approach is a hallmark of cliffside architecture design, where the built environment serves to amplify, rather than obstruct, the beauty of nature.

Visitors to the observation deck experience the sensation of floating above the river, while employees enjoy a workspace that fosters creativity and well-being through constant visual contact with the natural world.

A Model for Compact Cliffside Architecture Design
Studio on the Cliff stands as a model for future cliffside architecture design, particularly in urban contexts where space is limited. AKINTECTS demonstrates that small-scale interventions can yield significant results when guided by a vision that respects both functionality and the environment.


The project challenges the conventional separation of public and private domains, proposing instead a fluid integration that benefits both. It exemplifies how architecture can transcend its primary function, transforming into a shared space that enriches the cultural and visual fabric of a community.


Studio on the Cliff by AKINTECTS reimagines cliffside architecture design as a seamless convergence of workspace and public landscape. Through thoughtful spatial interventions, elevated interiors, and visual transparency, the project exemplifies how architecture can enhance both productivity and public experience. Situated on the edge of the Houbao Promenade in Chongqing, this innovative studio reflects the potential of compact architectural solutions to foster harmony between built environments and natural beauty.

All Photographs are works of Hongming Liu
Popular Articles
Popular articles from the community
Magic Box Office Barcelona Innovative Sustainable Workplace Design
Innovative sustainable office design featuring triangular form, ceramic façade, flexible interiors, natural light optimization, and creative workspace for modern work culture.
Alton Cliff House: A Harmonious Retreat by f2a Architecture in Lake Country, Canada
Alton Cliff House blends corten steel, prefabrication, and sustainable design, creating a luxurious, energy-efficient retreat perched on Canadian cliffs.
20 Most Popular Commercial Architecture Projects of 2025
From sustainable market concepts to heritage factories, the commercial buildings and proposals that drew the most attention on uni.xyz this year.
Split House: A Compact Urban Home Blending Privacy, Light, and Flexible Living in Japan
Compact Japanese home featuring DOMA space, flexible café potential, passive lighting, privacy zoning, and sustainable urban living design.
Similar Reads
You might also enjoy these articles
Bamboo Housing Challenge 2026: Design Affordable, Sustainable Homes Using Bamboo
An international design competition by Bamboo U and IBUKU inviting architects and designers to reimagine affordable housing using bamboo — with the winning design built full-scale in Bali.
Computational Design & Education: Beegraphy Design Awards Introduces 7th Category (Featuring Jiyun's Innovative Approach)
Dive into Beegraphy’s 7th Design Awards category, where computational design meets education to create immersive, interactive learning tools, inspired by Jiyun’s work.
From Parametric Lighting to Urban Furniture: Join the 2nd Workshop in Beegraphy’s Computational Design Series
Dive into Cutting-Edge Design Techniques and Practical Applications with Industry Experts
Explore Architecture Competitions
Discover active competitions in this discipline
The International Standard for Design Portfolios
The Global Benchmark for Architecture Dissertation Awards
The Global Benchmark for Graduation Excellence
Challenge to reimagine the Iron Throne
Comments (0)
Please login or sign up to add comments
No comments yet. Be the first to comment!