Terraced Housing Architecture: The DPV Residential Building by Adriano Pimenta
Exploring the DPV Residential Building by Adriano Pimenta, showcasing innovative terraced housing architecture blending historical elements with modern living in Porto, Portugal.
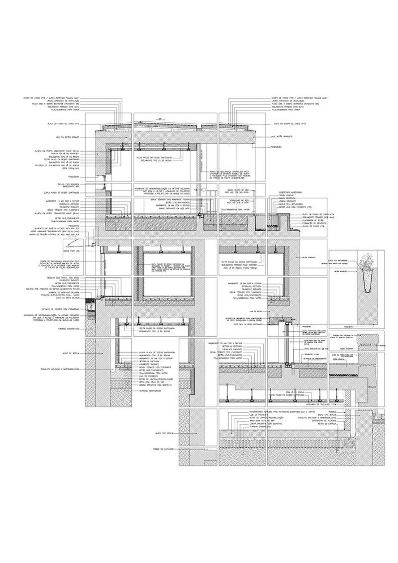
Terraced housing architecture is increasingly recognized for its ability to integrate residential spaces into challenging topographies. The DPV Residential Building in Porto, Portugal, by Adriano Pimenta, is a prime example, showcasing innovative design on terraced land.






Design Philosophy of the DPV Residential Building
The project combines the restoration of a historic manor with the creation of new, modern homes. This development epitomizes terraced housing architecture, respecting the urban fabric and enhancing the living quality on sloped land.








Historical Integration and Modern Living
The DPV Residential Building pays homage to Porto's urban landscape while offering contemporary living solutions. Through careful design, Adriano Pimenta maintains the integrity of the site's history and integrates new structures seamlessly.







Utilizing Terraced Land
The development utilizes the terraced nature of the site, with homes designed to follow the existing topography. This approach is emblematic of terraced housing architecture, providing each unit with unique views and private outdoor spaces.







Key Features of the DPV Residential Building
Integration with Nature
The project stands out for its integration with nature. Large outdoor areas and gardens complement the terraced structure, offering residents serene living spaces amidst the bustling city.




Privacy and Community Balance
The design ensures privacy while fostering a sense of community. Each unit has independent access and is thoughtfully positioned to maximize privacy and views, a hallmark of terraced housing architecture.










The Future of Terraced Housing Architecture
The DPV Residential Building by Adriano Pimenta represents a forward-thinking approach to terraced housing architecture. Its careful blend of historical respect, modern living, and environmental integration offers a blueprint for future terraced residential projects.







All photographs are work of José Campos
Popular Articles
Popular articles from the community
On the Brooks House by Monsoon Collective – A Contemporary Kerala Home Rooted in Tradition
Kerala home blending tradition and modernity with water-inspired design, brick architecture, courtyard planning, and sustainable rainwater harvesting strategies.
The Ken Roberts Memorial Delineation Competition (Krob)
As the most senior architectural drawing competition currently in operation anywhere in the world, it draws hundreds of entries each year, awarding the very best submissions in a series of medium-based categories.
Inverted Architecture Installation by Studio Link-Arc: Exploring the Intersection of Architecture and Living Organisms
Inverted Architecture Installation by Studio Link-Arc blends mycelium, sustainability, inverted design, ecological cycles, and urban adaptive architecture in Shenzhen.
An Miên Lumière Cafe by xưởng xép, Ho Chi Minh City, Vietnam
An industrial-inspired café where layered steel and warm light create a dynamic, immersive environment shaped by reflection, depth, and perception.
Similar Reads
You might also enjoy these articles
The Ken Roberts Memorial Delineation Competition (Krob)
As the most senior architectural drawing competition currently in operation anywhere in the world, it draws hundreds of entries each year, awarding the very best submissions in a series of medium-based categories.
Waterfront Redevelopment and Urban Revitalization in Mumbai: Forging a New Dawn for Darukhana
A transformative waterfront redevelopment project reimagining Darukhana’s shipbreaking heritage into an inclusive urban future.
OUT-OF-MAP: A Call for Postcards on Feminist Narratives of Public Space
Rhizoma Design and Research Lab invites artists, designers, architects, researchers, and students to reflect on how feminist perspectives can reshape public space. Selected works will be exhibited in Barcelona, October 2026. Submissions open until 15 April 2026.
Documentation Work on Buddhist Wooden Temple
Architectural syncretism and cultural hybridity: A comparative study of the Buddhist temples in Chattogram Hill tracks
Explore Architecture Competitions
Discover active competitions in this discipline
The International Standard for Design Portfolios
The Global Benchmark for Architecture Dissertation Awards
The Global Benchmark for Graduation Excellence
Challenge to reimagine the Iron Throne
Comments (0)
Please login or sign up to add comments
No comments yet. Be the first to comment!