Therapeutic Architecture for Mental Well-Being: Community Therapy Center by Маргарита Палютина
A healing space where design meets empathy—bringing people together through warmth, light, and therapeutic architecture.
In a world where mental well-being is more important than ever, therapeutic architecture emerges as a powerful design approach—using space, light, and form to foster emotional healing. The Community Centre for Therapy, designed by Маргарита Палютина, is a prime example of how architecture can become an agent of care, empathy, and connection.
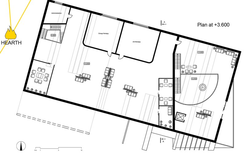
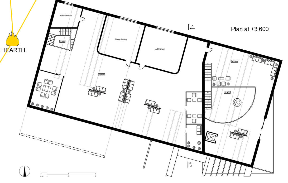
At the heart of the project "House of light" lies a powerful architectural metaphor: the hearth. This central fireplace is not just a source of physical warmth, but a spatial anchor that gathers people, evokes memories of home, and invites conversation. In this community center, the hearth becomes the architectural core of emotional support.


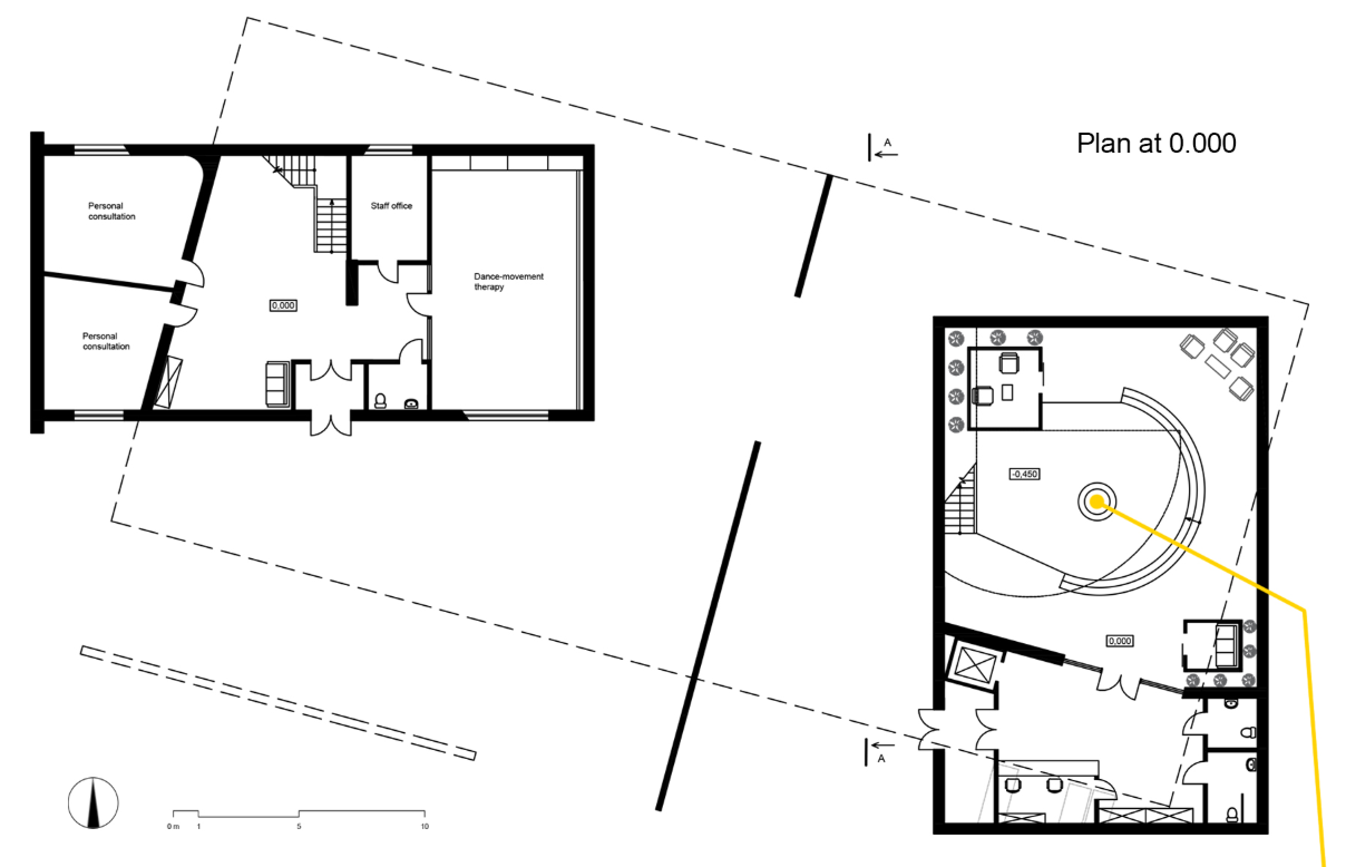
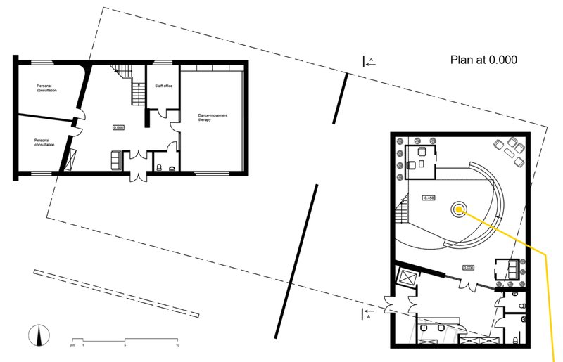
The design unfolds through open spaces bathed in natural light, high ceilings with glazed tops, and thoughtful transitions between areas of group therapy and private consultation. There are three rooms for group therapy—dedicated to dance, movement, and art—and two rooms for individual consultations. These spatial divisions support a holistic therapeutic process, offering both collective and private experiences.
Through simple materials like wood rafters and massive stone finishes, the space conveys a sense of groundedness and warmth. Glass ensures an abundance of daylight, reducing the psychological weight often associated with clinical spaces. The juxtaposition of dark concrete and soft interior features establishes a comforting balance, reflective of the mental transitions the users undergo.
The Community Centre’s form also actively addresses the stigma around mental health. By positioning therapy in a warm, open, and inviting public building, the project normalizes the act of seeking help. It promotes communication and community involvement as essential steps toward healing.
Ultimately, this shortlisted entry in the Live Laugh Love 2020 competition reminds us that architecture is not just about buildings—it’s about people. Therapeutic architecture bridges the gap between physical space and mental restoration, creating environments that don’t just house us, but help us heal.

