Urban Forest Architecture: Café with a Large Tree in the Middle of Town by toit-design + Kazuto Nishi Architects
This article explores a wooden café designed as an urban forest, blending nature, architecture, and community in a dense cityscape.
Reinterpreting Urban Nature through Architecture
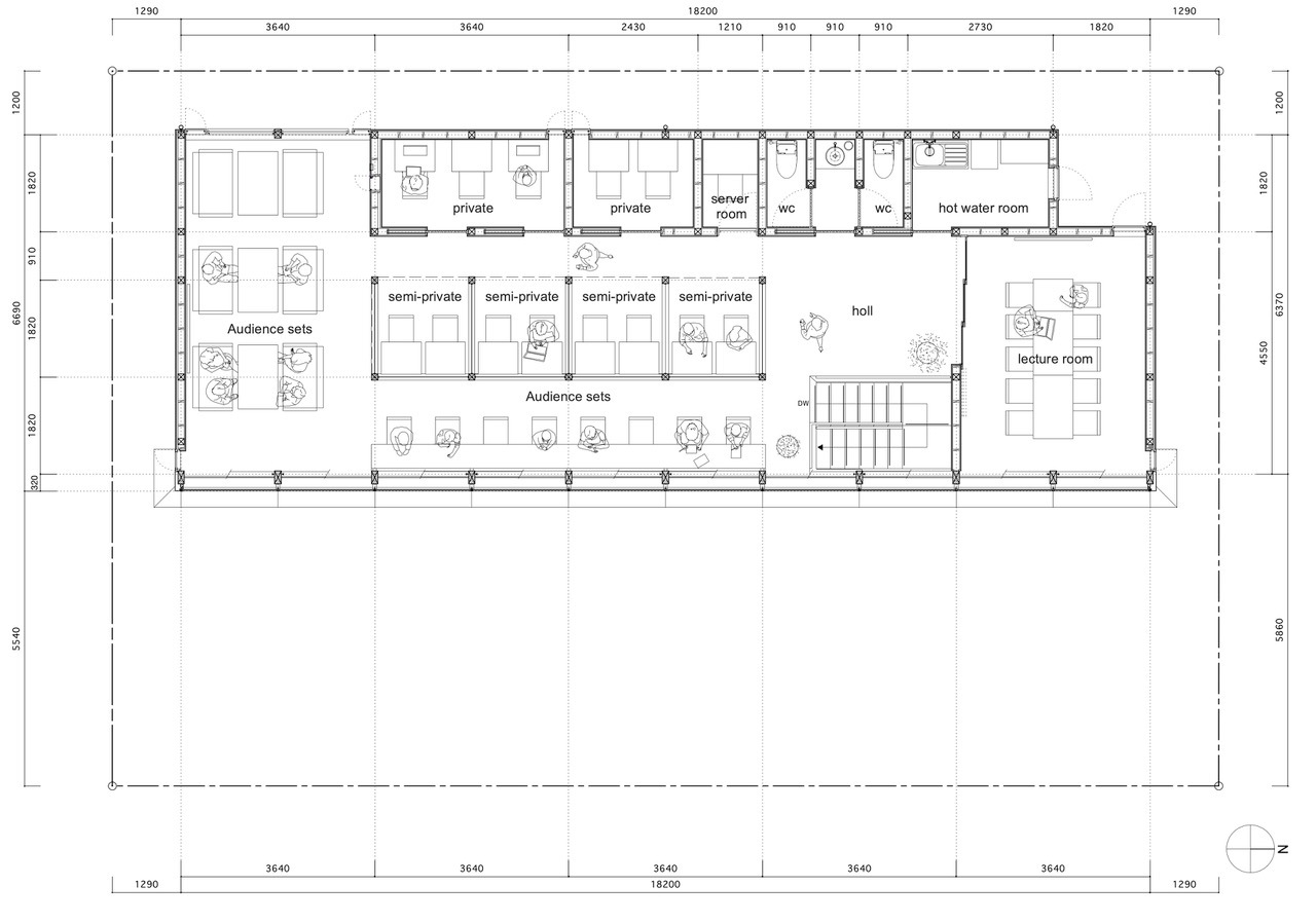
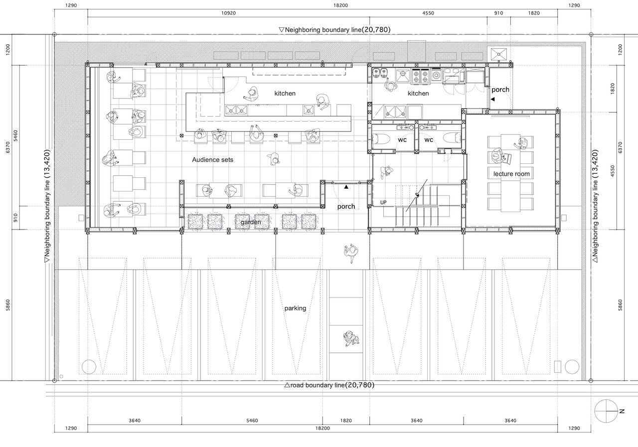
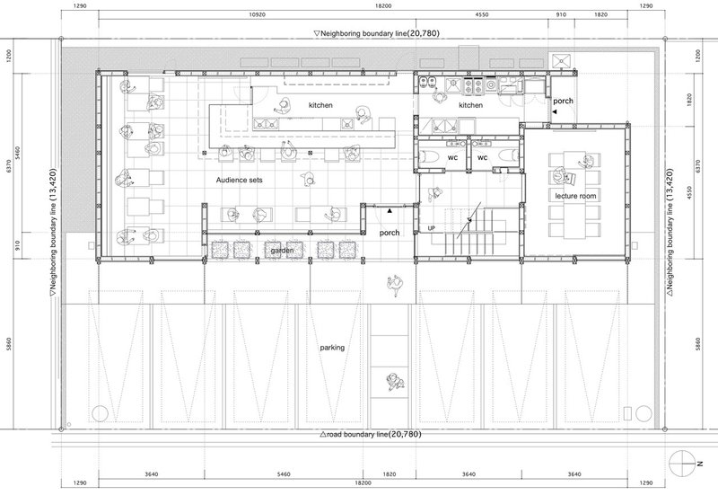
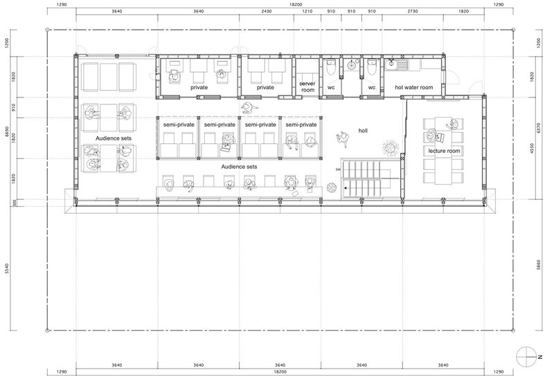
In the heart of a bustling regional Japanese city, “Café with a Large Tree in the Middle of Town” by toit-design and Kazuto Nishi Architects transforms a chaotic urban corner into a space of calm, connection, and community. Surrounded by commercial and industrial buildings, this 221-square-meter café redefines hospitality architecture by bringing the serenity and symbolism of a forest into the city center.




Designing a Wooden Canopy in the City
This unique café structure emulates a forest canopy through an expressive architectural language. Its core design concept is inspired by the strength and sheltering nature of trees. Large wooden beams and structural elements are intentionally left exposed, forming a rhythmic framework that mimics the branches of a massive tree. The raw timber contrasts with the monochrome palette of gray and white, creating a soothing spatial abstraction that invites visitors to pause and breathe.




Community Space with Environmental Purpose
More than a gathering place, the café serves as a catalyst for environmental consciousness. Its wooden structure is a deliberate choice, symbolizing an “urban forest” where architecture becomes an active part of the carbon cycle. By preserving carbon in its timber elements, the building functions as a carbon sink, contributing to sustainability goals within the urban landscape.




A Natural Flow Across Levels
Entering the café, visitors are welcomed by a voluminous space where thick wooden “branches” stretch across the ceiling, creating an immersive forest-like experience. The second floor continues the metaphor with thinner, more subdivided structures, evoking the lightness of upper branches and adding spatial rhythm. The design subtly transitions from grounded strength to airy elevation, reinforcing the organic metaphor.




A Place to Connect with Nature in the City
The architects rejected typical commercial aesthetics in favor of an organic, sensory space. This shift not only distinguishes the building within its urban context but also repositions architecture as a participant in ecological processes. The café stands as a new model for blending hospitality with environmental stewardship, proposing architecture that gives back to nature even in densely developed environments.


Toward a New Dialogue Between Cities and Forests
By grounding the café’s concept in forest symbolism and real ecological function, the architects open a conversation about the future of urban design. This project invites communities to reconsider how architecture can foster connections—between people, between business and ecology, and between cities and the natural world. The café is not just a place to drink coffee; it is a quiet revolution, a rooted space for a new kind of urban life.



All Photographs are works of Masahiro Terada
Popular Articles
Popular articles from the community
Atelier Macri Concept Store Interior Design by CASE-REAL
Atelier Macri store features a "ko" counter, walnut wood details, cork displays, blending retail, gallery, and seamless customer experiences.
Louis Malle Cinema: A Limestone Cultural Landmark Revitalizing Community Life in Prayssac
Limestone cinema extension with public forecourt, blending heritage and modern design to create flexible cultural spaces and strengthen community interaction.
The Ken Roberts Memorial Delineation Competition (Krob)
As the most senior architectural drawing competition currently in operation anywhere in the world, it draws hundreds of entries each year, awarding the very best submissions in a series of medium-based categories.
Flamboyant House by Juliana Camargo + Prumo Projetos
Modern Brazilian house integrating existing tree, pool, and volumes with glass, wood, and transitional spaces blending interior, exterior, and landscape seamlessly.
Similar Reads
You might also enjoy these articles
Top 15 Architecture Competitions to Enter in 2026
From student-friendly idea competitions to prestigious international awards, here are the best architecture competitions open for entries in 2026. Updated regularly.
DIY & Engineering in Computational Design : Enter the BeeGraphy Design Awards
Showcase Your Creativity with Computational Design and Open Source Projects

Innovative Design Solutions: Award-Winning Projects from Recent Architecture Competitions
Exploring award-winning architectural projects shaping the future of design, sustainability, and community.
Explore Architecture Competitions
Discover active competitions in this discipline
The International Standard for Design Portfolios
The Global Benchmark for Architecture Dissertation Awards
The Global Benchmark for Graduation Excellence
Challenge to reimagine the Iron Throne
Comments (0)
Please login or sign up to add comments
No comments yet. Be the first to comment!