Urban Mixed-Use Architecture in Mexico City: A Deep Dive into QO Apartments by ArchetonicUrban Mixed-Use Architecture in Mexico City: A Deep Dive into QO Apartments by Archetonic

Urban Mixed-Use Architecture in Mexico City: A Deep Dive into QO Apartments by Archetonic

UNI Editorial
UNI Editorial published Blog under Architecture on

In the bustling heart of Mexico City, QO Apartments stand as a beacon of urban mixed-use architecture, masterfully designed by Archetonic. This project exemplifies how architecture can respond to the complexities of city living, offering a multifunctional space that blends commercial, residential, and office uses seamlessly.

Article image
Article image

Architectural Vision of QO Apartments

The Challenge of Urban Space

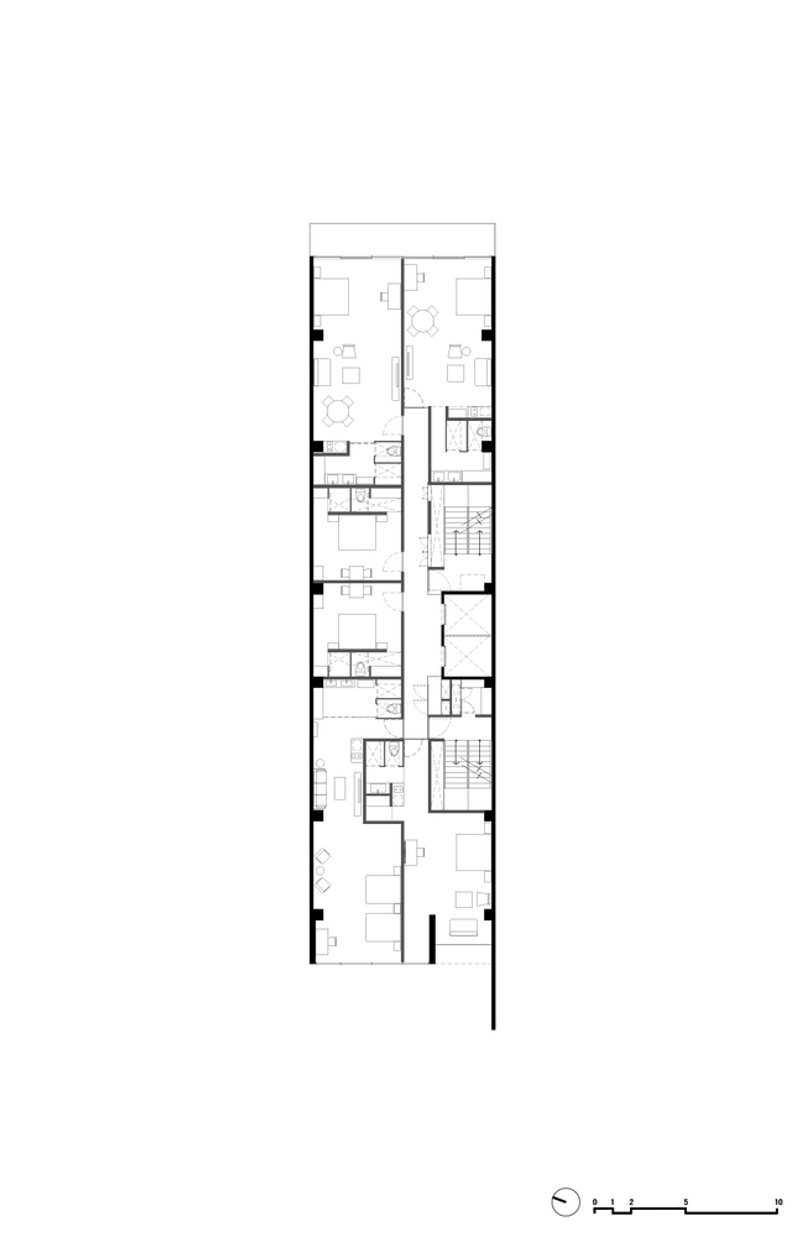
The QO Apartments project tackles the challenge of a narrow and elongated urban plot with a smart and responsive design. Spanning a full city block, this mixed-use building is a testament to thoughtful urban planning and architectural ingenuity.

Article image
Article image

A Facade that Responds to Its Surroundings

Archetonic's solution to the facade is a dialogue with the urban context, responding to each adjacent building and void. This approach not only enhances the building's aesthetic but also its interaction with the surrounding cityscape.

Article image
Article image
Article image
Article image

Inside the QO Apartments

Maximizing Light and Views

Through strategic displacement of volumes and extensive use of glass, QO Apartments maximize natural light and offer stunning views of Chapultepec Forest and Mexico City. This design choice underscores the importance of connection to the outdoors in urban architecture.

Article image
Article image
Article image
Article image
Article image

A Diverse Mix of Uses

Across its 9 levels, QO Apartments incorporates a variety of spaces, including commercial areas, residential lofts, suites, and offices. The interior design embraces exposed structural elements and minimal finishes, emphasizing the building's raw beauty and functionality.

Article image
Article image
Article image
Article image
Article image

Materiality and Integration with the Urban Fabric

Experimenting with Concrete

The side facades of QO Apartments reveal a material experimentation with exposed concrete, showcasing different shades, textures, and formats. This choice adds depth and character to the building, reflecting the diverse urban atmosphere of Mexico City.

Article image
Article image
Article image
Article image

Seamless Urban Integration

Viewed from above, QO Apartments harmonizes with the neighboring rooftops, stairs, and facades, becoming an integral part of Mexico City's vibrant urban landscape. This integration speaks to the project's success as a piece of urban mixed-use architecture.

Article image
Article image
Article image
Article image
Article image

Redefining Urban Living

QO Apartments by Archetonic represents a forward-thinking approach to urban mixed-use architecture in Mexico City. By addressing the challenges of urban density and mixed functionality, this project sets a new standard for architectural excellence in the city. As we continue to explore solutions for sustainable and livable urban environments, QO Apartments serve as a benchmark for innovation and integration.

Article image
Article image
Article image
Article image
Article image

All photographs are work of Andrés Cedillo, Marcelo Rodríguez, Arturo Arrieta

UNI Editorial

UNI Editorial

Where architecture meets innovation, through curated news, insights, and reviews from around the globe.

Share your ideas with the world

Share your ideas with the world

Write about your design process, research, or opinions. Your voice matters in the architecture community.

Comments (0)

No comments yet. Be the first to comment!

Similar Reads

You might also enjoy these articles

publishedBlog3 days ago
Top 15 Architecture Competitions to Enter in 2026
publishedBlog1 year ago
DIY & Engineering in Computational Design : Enter the BeeGraphy Design Awards
publishedBlog2 years ago
Innovative Design Solutions: Award-Winning Projects from Recent Architecture Competitions
publishedBlog3 years ago

Explore Architecture Competitions

Discover active competitions in this discipline

UNI Editorial
Search in