Villa Air: A Masterpiece of Mediterranean Modern Architecture by ARK-architecture
Villa Air is a poetic example of Mediterranean modern architecture that harmonizes topography, materiality, and light in Tunisia.
A Contemporary Villa Rooted in the Tunisian Landscape
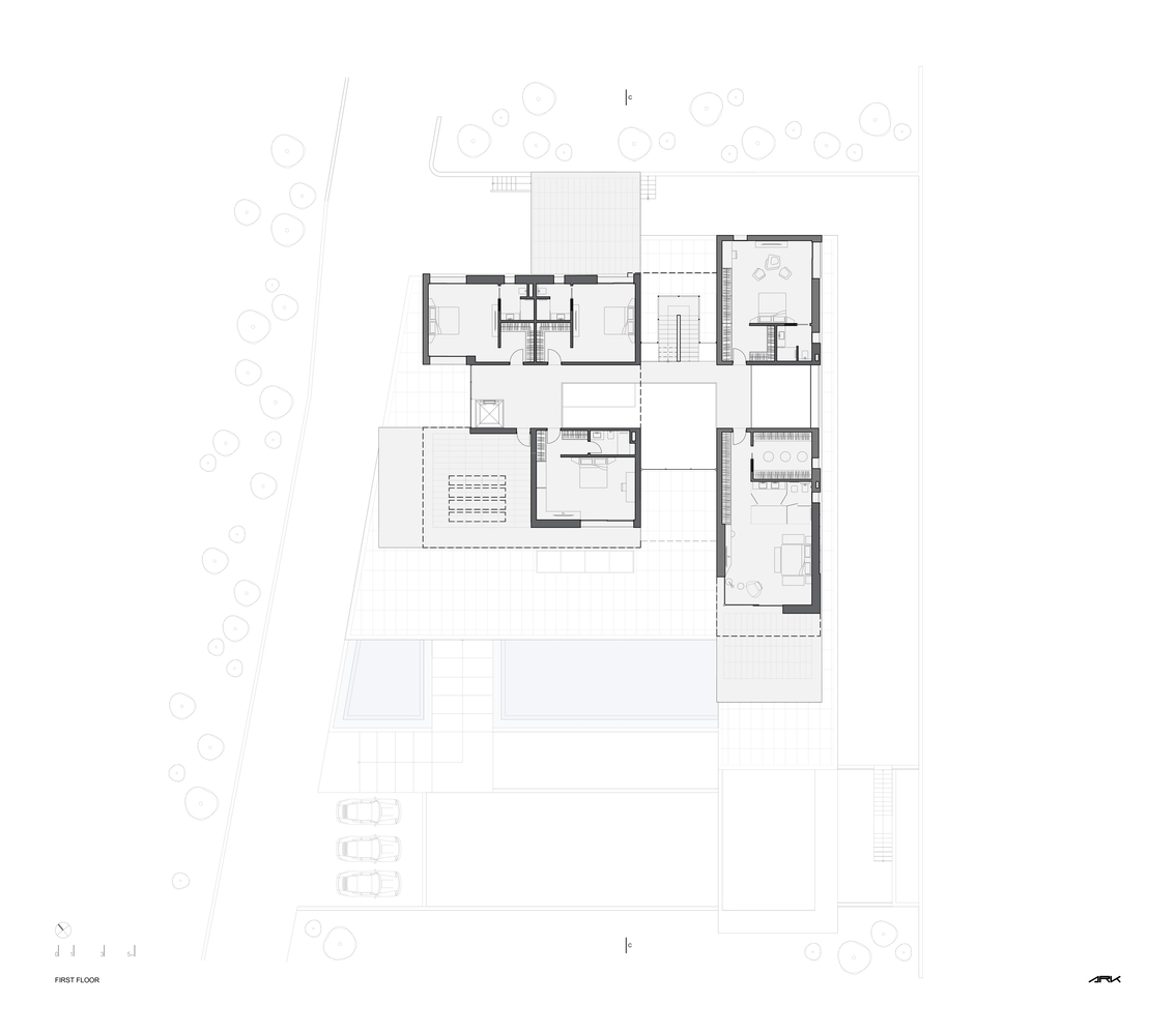
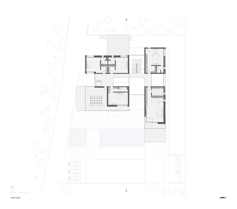
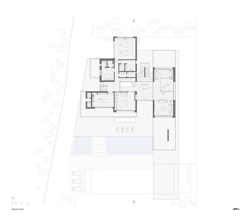
Located in the serene town of Morneg, Tunisia, Villa Air by ARK-architecture is a striking example of Mediterranean modern architecture that harmoniously blends built form with its natural environment. Spanning 1,500 m² across a gently sloping two-hectare plot, this contemporary residence is a dialogue between groundedness and levity, echoing the poetic tension embedded in its name. Designed in 2024, the villa draws inspiration from the topographical nuances and climatic context of North Africa, creating a spatial language that is both bold and restrained.




Architecture in Dialogue with the Terrain
Rather than dominating its setting, Villa Air yields to the landscape. The house cascades along the natural slope of the site, echoing the geological rhythms of the earth. The architecture appears to emerge from the land itself, with textured façades in earthy tones creating visual continuity with the surrounding terrain. At its core, the project orients itself around the panoramic views of the Jbal Errsas mountain range, using apertures and framing devices to transform the landscape into a series of living paintings.




Expressive Massing and Structural Lightness
The villa is articulated through a series of horizontal strata distributed across three levels. Each level is punctuated by cantilevers, some as thin as 45 cm, which serve both as formal gestures and environmental regulators. These daring overhangs generate deep shadow lines, modulating the intense Mediterranean sun while enhancing the architectural drama. The interplay of light and shadow transforms the white volumes into ever-changing surfaces that respond sensitively to the time of day and season.



Materiality with a Sense of Place
Villa Air uses materials that speak to its geographical and cultural setting. White volumes reflect the regional brightness, while travertine and timber inject a layer of tactile warmth. Sand-tinted concrete elements anchor the building to its site, reinforcing a sense of material belonging. The refined palette avoids excess, favoring clarity and authenticity. Internally, the materials flow seamlessly from one space to another, reinforcing the villa’s cohesive spatial language and immersive atmosphere.




Interior Architecture: Fluidity, Light, and Perspective
Inside, Villa Air offers more than just shelter—it offers experience. The layout prioritizes fluid movement and uninterrupted sightlines. Circulation spaces are choreographed transitions rather than functional connectors. Vertical passages act as interior promenades, unveiling fresh vistas of the landscape with every turn. Double-height volumes invite daylight deep into the core, creating interiors that are luminous and serene.




Blurring the Boundaries Between Inside and Out
A central theme in Villa Air’s architectural narrative is the dissolution of thresholds. Interior spaces unfold into open terraces, shaded platforms, and twin infinity pools that visually extend the home into the horizon. These water features not only reflect the sky but also amplify the sense of levitation, making the architecture appear to float. This seamless connection to the outdoors defines the essence of Mediterranean modern architecture—a way of building that embraces openness while respecting privacy.






A Poetic Statement of Mediterranean Modernism
More than a residence, Villa Air stands as a meditation on place, material, and light. It is a refined example of Mediterranean modern architecture, grounded in site specificity yet elevated by universal architectural principles—clarity, proportion, and sensory depth. The villa achieves a delicate balance between poetic abstraction and lived experience, making it not just an architectural object, but a profound condition of dwelling. In its quiet elegance, Villa Air captures the soul of Mediterranean living for a contemporary era.





All Photographs are works of Bilel Khemakhem
Popular Articles
Popular articles from the community
Split House: A Compact Urban Home Blending Privacy, Light, and Flexible Living in Japan
Compact Japanese home featuring DOMA space, flexible café potential, passive lighting, privacy zoning, and sustainable urban living design.
Solar Steam: A Climate-Responsive Architecture That Redefines the Monument
A climate-responsive memorial architecture that transforms heat, decay, and time into a living system reflecting humanity’s ecological impact.
Fifth NRE Jazz Club – De Bever Architecten: Eindhoven’s Revitalized Cultural Hub
Historic gas factory transformed into Fifth NRE Jazz Club blending modern sustainability, jazz culture, dining, and heritage architecture seamlessly.
The Ken Roberts Memorial Delineation Competition (Krob)
As the most senior architectural drawing competition currently in operation anywhere in the world, it draws hundreds of entries each year, awarding the very best submissions in a series of medium-based categories.
Similar Reads
You might also enjoy these articles
Free Architecture Competitions You Can Enter Right Now
No entry fees, real prizes. Here are the best free architecture competitions open for submissions in 2026.
Top 15 Architecture Competitions to Enter in 2026
From student-friendly idea competitions to prestigious international awards, here are the best architecture competitions open for entries in 2026. Updated regularly.
DIY & Engineering in Computational Design : Enter the BeeGraphy Design Awards
Showcase Your Creativity with Computational Design and Open Source Projects

Innovative Design Solutions: Award-Winning Projects from Recent Architecture Competitions
Exploring award-winning architectural projects shaping the future of design, sustainability, and community.
Explore Architecture Competitions
Discover active competitions in this discipline
The International Standard for Design Portfolios
The Global Benchmark for Architecture Dissertation Awards
The Global Benchmark for Graduation Excellence
Challenge to reimagine the Iron Throne
Comments (0)
Please login or sign up to add comments
No comments yet. Be the first to comment!