VILLAMA: Contemporary Brick House in Belgium by maa_architecture studio
VILLAMA in Belgium blends traditional brick architecture with contemporary design, creating a timeless family home that respects heritage and modern living.
VILLAMA, designed by maa_architecture studio, is a contemporary brick house in Belgium that reinterprets traditional architectural principles while embracing modern living. Located in Ohain, within the municipality of Lasne, the project demonstrates how heritage-driven urban planning guidelines can coexist with innovative residential architecture.



Context and Urban Planning Influence
Lasne’s urban planning regulations strongly emphasize preserving the rural and traditional architectural identity of the region. This meant the design had to comply with strict requirements such as pitched roofs, brick façades, and simple volumes. Rather than seeing these limitations as restrictive, maa_architecture studio approached them as an opportunity to rediscover the timeless logic behind vernacular Belgian architecture.



Balancing Tradition and Modernity
While the project follows a traditional material palette, it integrates contemporary methods of construction and design. The architects sought to create a modern Belgian home that meets today’s spatial and technological needs while still aligning with the municipality’s architectural spirit.



The house’s overall composition respects local heritage principles: a hierarchy of forms, clarity of volumes, and discreet yet elegant detailing. At the same time, modern interior spaces are fluid, open, and filled with natural light, reflecting present-day lifestyles.



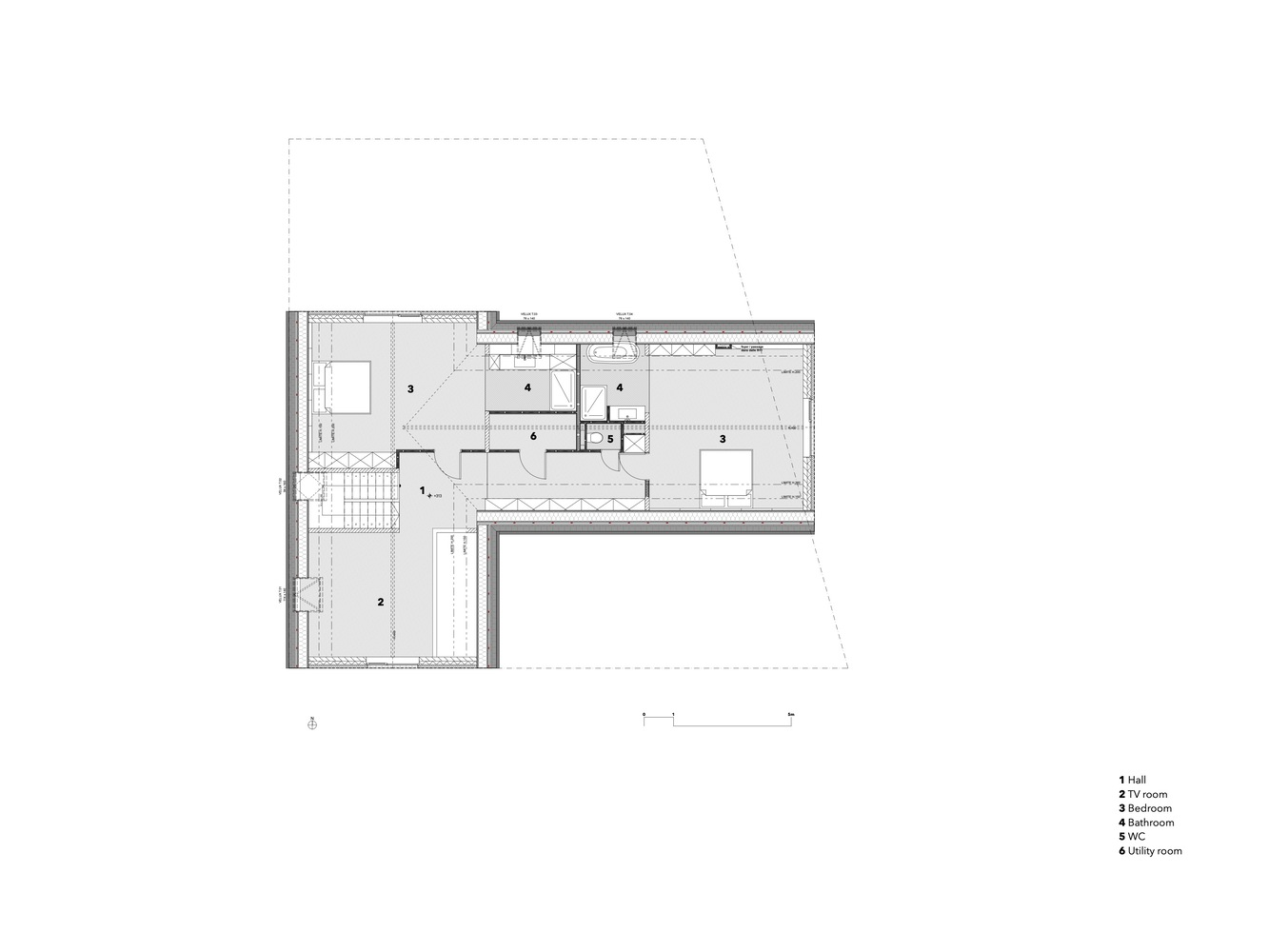
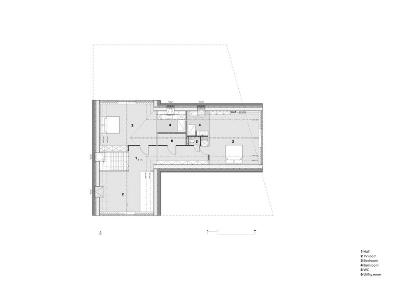
Architectural Design and Materiality
The residence covers 320 m² and is built primarily with brick, reinforcing its connection to traditional Belgian architecture. The material choice, alongside sloped tiled roofing and natural finishes, establishes a dialogue with its rural surroundings.


Internally, the design embraces warmth and simplicity. Wooden finishes, custom carpentry by Rive Gauche, and carefully curated lighting by Wever & Ducre enhance the sense of comfort while providing sophistication to each living area.



Learning from Traditional Architecture
The architects highlight how traditional building methods reveal deep architectural intelligence: restraint, simplicity, and ingenuity. By respecting these principles, VILLAMA avoids nostalgia and instead demonstrates that heritage-driven design can inspire contemporary Belgian architecture without losing creativity or innovation.



VILLAMA is more than a house—it is an architectural statement about the harmony between past and present. By reinterpreting traditional forms and materials with modern design sensibilities, maa_architecture studio created a timeless brick house in Belgium that reflects both cultural continuity and contemporary aspirations.




All Photographs are works of Oana Crainic, CaroLine Dethier
Popular Articles
Popular articles from the community
Solar Steam: A Climate-Responsive Architecture That Redefines the Monument
A climate-responsive memorial architecture that transforms heat, decay, and time into a living system reflecting humanity’s ecological impact.
Gads Hill Early Learning Center by JGMA: Adaptive Reuse Shaping Community-Focused Educational Architecture
Adaptive reuse transforms fragmented structure into vibrant early learning center with playful façade, natural light, and community-focused sustainable design.
Inverted Architecture Installation by Studio Link-Arc: Exploring the Intersection of Architecture and Living Organisms
Inverted Architecture Installation by Studio Link-Arc blends mycelium, sustainability, inverted design, ecological cycles, and urban adaptive architecture in Shenzhen.
Similar Reads
You might also enjoy these articles
Bamboo Housing Challenge 2026: Design Affordable, Sustainable Homes Using Bamboo
An international design competition by Bamboo U and IBUKU inviting architects and designers to reimagine affordable housing using bamboo — with the winning design built full-scale in Bali.
Computational Design & Education: Beegraphy Design Awards Introduces 7th Category (Featuring Jiyun's Innovative Approach)
Dive into Beegraphy’s 7th Design Awards category, where computational design meets education to create immersive, interactive learning tools, inspired by Jiyun’s work.
From Parametric Lighting to Urban Furniture: Join the 2nd Workshop in Beegraphy’s Computational Design Series
Dive into Cutting-Edge Design Techniques and Practical Applications with Industry Experts
Explore Architecture Competitions
Discover active competitions in this discipline
The International Standard for Design Portfolios
The Global Benchmark for Architecture Dissertation Awards
The Global Benchmark for Graduation Excellence
Challenge to reimagine the Iron Throne
Comments (0)
Please login or sign up to add comments
No comments yet. Be the first to comment!