Matter of Something Crafts a Timber-Lined Tropical House That Radiates from a Central Courtyard
WO House in Indonesia layers concrete, brass, and radiating timber slats around a forested courtyard to redefine domestic luxury.
WO House is the kind of project that makes you reconsider what tropical residential design can feel like on the inside. Designed by Jakarta-based studio Matter of Something, the house is organized around a narrow, linear plan that channels views toward a lush planted courtyard, treating the surrounding forest not as a backdrop but as an active participant in every room's composition. The result is a home where every interior surface, from the radiating timber slat ceilings to the stone feature walls, is calibrated against the shifting light and greenery visible through generous floor-to-ceiling glazing.
What sets WO House apart from the typical luxury tropical villa is its restraint with material expression. Rather than relying on a single dominant finish, Matter of Something deploys a tight palette of concrete, dark oak, marble, brass, and fluted timber in combinations that shift from room to room without ever feeling inconsistent. The radiating timber ceiling, which reappears across multiple levels, acts as a unifying motif, pulling the entire house together under a single geometric gesture even as individual spaces pivot between moody intimacy and airy openness.
Living Under a Radiating Canopy



The double-height living space is the project's signature moment. Timber slats radiate outward from a central axis across the ceiling, creating a pattern that is part sunburst, part tectonic diagram. Below this canopy, raw concrete wall panels and a mezzanine-level walkway establish a deliberately industrial counterpoint, grounding the warmth of the timber in something harder and more urban. The effect from the ground floor is vertiginous and generous at once.
At the upper level, the same radiating ceiling extends over a stone-clad corridor that receives daylight from above, turning a transitional space into one of the most atmospheric zones in the house. The decision to carry the ceiling motif up here, rather than reserving it solely for the main living volume, signals that Matter of Something treats circulation as seriously as program. Every hallway earns its keep.
Kitchen as Material Laboratory



The kitchen might be the most materially dense room in the house, and it succeeds because every surface has a specific role. The marble waterfall island anchors the space with visual weight. Fluted timber detailing on its base softens the stone's formality. Black matte cabinetry recedes, letting the brass slat panels and the radiating ceiling above do the talking. At dusk, the linear suspended light fixture transforms the island into a glowing stage, framed by the dark courtyard beyond the glass doors.


Close-up, the craft is evident. Vertical brass slat panels at the island's end read as both decorative screen and structural reveal, while the stacked ovens set into dark oak cabinetry with brass edge trim show a level of joinery precision that elevates the kitchen beyond its functional brief. The marble backsplash behind the appliance wall ties back to the island, ensuring that the palette loops rather than fragments.
Concrete, Brass, and the Living Room's Quiet Drama


Away from the double-height volume, the living area takes on a lower, moodier register. Concrete wall panels sit beside a brass-framed bookshelf opening, a pairing that manages to feel both industrial and refined. A grey sofa and glass wall keep the focus on the courtyard view, reinforcing the house's fundamental strategy: every room is a frame, and the garden is always the subject.
The floating timber staircase along a textured stone wall is a detail worth noting. Rather than concealing vertical circulation, the stair becomes a sculptural event, its open treads casting shadow lines on the rough stone surface. A glass elevator is visible beyond the landing, a practical concession to the home's multi-level layout that is handled with transparency rather than disguise.
Private Quarters: Dressing Rooms and the Home Office



The private rooms demonstrate that Matter of Something's intensity does not slacken once the public spaces end. In the dressing area, dark wood wardrobes wrap around a circular backlit mirror, creating a cocoon-like atmosphere that is warm without being heavy. A fluted panel vanity desk introduces a tactile variation that keeps the room from reading as a single dark mass. Nearby, a weathered timber wall behind a second vanity introduces age and texture, a deliberate counterpoint to the precision found elsewhere.
The home office is compact but considered. Vertical wood slat ceiling details echo the living room's radiating motif at a smaller scale, while grey upholstered wall panels provide acoustic damping and a soft visual foil to the timber desk. It is a room designed for long hours, and it looks the part.
Bathrooms That Rival the Public Rooms



WO House has at least three distinct bathroom identities, and none of them phone it in. The primary bath pairs a pale stone countertop with oval vessel sinks against a vertical timber slat wall, establishing a spa-like calm. A glass-enclosed shower receives a skylight above, pulling natural light deep into a room that could easily have been dark. It is a move that reinforces the architects' commitment to connecting every space to the sky or the garden.

A secondary bathroom introduces grey terrazzo, a yellow-lit storage niche, and the same vertical timber slat wall in a tighter composition. The terrazzo partition reads as a sculptural element rather than a simple divider, and the yellow niche adds a note of warmth that makes the room feel specific rather than generic. Across the house, no two wet rooms share the same personality, but all speak the same material language.
A Gold Sauna Box and the Rooftop Gym


The fitness room is an unexpected highlight. A golden glass-clad sauna cube sits at one end of the space like a jewel box, its reflective surface bouncing warm light against a black ceiling. Rows of free weights and mirrored walls fill the remainder of the room, which benefits from a ceiling grid of linear lighting that avoids the harsh, flat illumination common to home gyms. The sauna cube's opacity and color make it a genuine architectural object, not merely an appliance inserted into a leftover room.
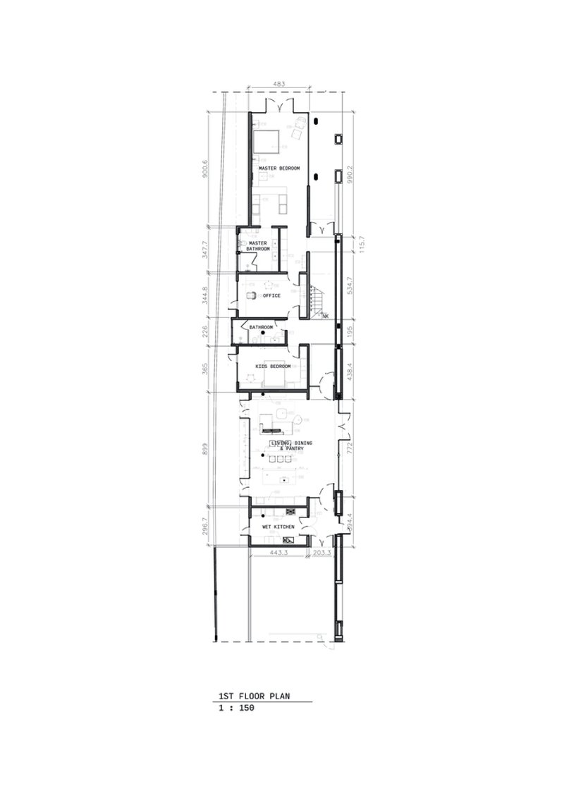
Plans and Drawings


The floor plans reveal the house's essential strategy: a narrow, slender footprint that stacks program vertically. The first floor organizes the master bedroom, office, and kitchen along a linear spine, while the second floor lifts the gym, terrace, and rooftop lounge above the treetops. This elongated plan maximizes the perimeter available for glazing and courtyard contact, ensuring that even utility-driven rooms on the upper level receive natural light and views.
Why This Project Matters
WO House is a case study in material orchestration. Matter of Something does not rely on a single dramatic gesture or an exotic site to generate interest. Instead, the house earns its complexity through the accumulation of carefully tuned details: a radiating ceiling that unifies disparate rooms, a brass accent that migrates from kitchen to bookshelf to cabinetry trim, a courtyard that is always present but never the same twice depending on where you stand. It is this consistency of intent, more than any single room, that makes the project convincing.
In a market saturated with tropical luxury homes that default to open pavilions and infinity pools, WO House proposes something different: a vertical, introverted residence that creates its own climate through material warmth and controlled light. The lesson for architects working in similar contexts is clear. Tropical design does not have to mean dissolving the boundary between inside and outside. Sometimes the more interesting move is to compose the boundary itself, using timber, stone, and glass as instruments of measured revelation.
WO House, designed by Matter of Something, Indonesia. Photography by Steven Sundjaja and Oktobianto Dwi Prasetyo.
About the Studio
Share Your Own Work on uni.xyz
If projects like this are the kind of work you want to make, uni.xyz is a place to publish your own, find collaborators, and enter design competitions.
Popular Articles
Popular articles from the community
Alton Cliff House: A Harmonious Retreat by f2a Architecture in Lake Country, Canada
Alton Cliff House blends corten steel, prefabrication, and sustainable design, creating a luxurious, energy-efficient retreat perched on Canadian cliffs.
TGK Nirasaki Plant: A Smart Factory Blending Technology, Landscape, and Wellness
Smart factory in Japan blending IoT manufacturing, scenic trail design, natural ventilation, and landscape integration to enhance user experience and sustainability.
Magic Box Office Barcelona Innovative Sustainable Workplace Design
Innovative sustainable office design featuring triangular form, ceramic façade, flexible interiors, natural light optimization, and creative workspace for modern work culture.
Rede Arquitetos Builds an Open-Air School in Fortaleza That Doubles as a Neighborhood Living Room
Educar II SESC-CE folds sports, dance, and community gathering into a courtyard campus wrapped in mesh and tropical color.
Similar Reads
You might also enjoy these articles
Filtering Space: A Gradual Spatial Experience
From urban intensity to spatial calm.
The Ken Roberts Memorial Delineation Competition (Krob)
As the most senior architectural drawing competition currently in operation anywhere in the world, it draws hundreds of entries each year, awarding the very best submissions in a series of medium-based categories.
Waterfront Redevelopment and Urban Revitalization in Mumbai: Forging a New Dawn for Darukhana
A transformative waterfront redevelopment project reimagining Darukhana’s shipbreaking heritage into an inclusive urban future.
OUT-OF-MAP: A Call for Postcards on Feminist Narratives of Public Space
Rhizoma Design and Research Lab invites artists, designers, architects, researchers, and students to reflect on how feminist perspectives can reshape public space. Selected works will be exhibited in Barcelona, October 2026. Submissions open until 15 April 2026.
Explore Architecture Competitions
Discover active competitions in this discipline
The International Standard for Design Portfolios
The Global Benchmark for Architecture Dissertation Awards
The Global Benchmark for Graduation Excellence
Challenge to reimagine the Iron Throne
Comments (0)
Please login or sign up to add comments
No comments yet. Be the first to comment!