303 Shirahama Italian Restaurant: A Seamless Blend of Sea and Architecture
Architectural harmony with nature in Roito Inc.'s 303 Shirahama Italian Restaurant, blending seascape-inspired design with sustainability.
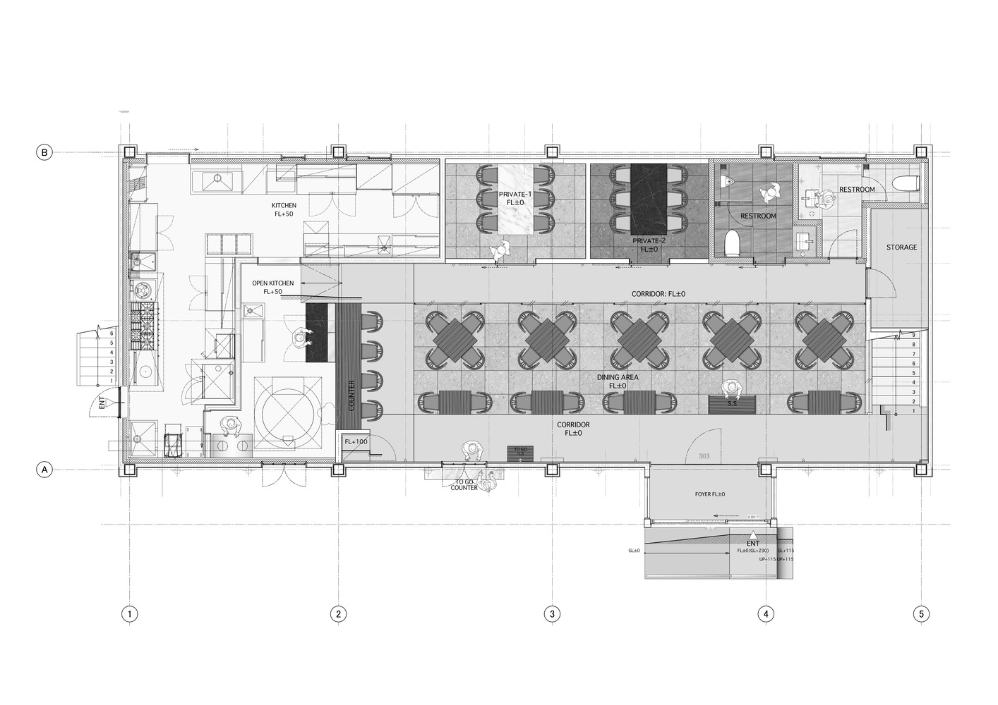
The 303 Shirahama Italian Restaurant, designed by Roito Inc., is an architectural gem nestled in the scenic town of Shirahama, Japan. Known for its picturesque views of Engetsu Island and the stunning beaches of the Kansai region, Shirahama provides the perfect backdrop for this unique dining experience. The restaurant, refurbished from a guest house once operated by the client's family, embodies a deep connection to the local seascape.



The Inspiration Behind 303 Shirahama Italian Restaurant
During the initial site visit, lead architect Ryohei Kanda was captivated by the ever-changing expressions of the sea under sunlight. This inspiration led to the choice of polycarbonate partitions enhanced with blue gradation sheets, emulating the ambiance of the sea. These partitions, visible from the façade, delineate the dining area and separate it from a private room, creating a unique atmosphere that draws in passersby.



Design Elements and Materials
The design incorporates a corrugated material connecting the front and back sides of the polycarbonate, refracting and reflecting light in intriguing ways. Pendant and bracket lights diffuse light across the blue partitions, while the slight gloss of these partitions interacts with sunlight, creating dynamic visual effects on the blue plaster walls. Additional materials such as brushed stainless steel and ribbed glass further enhance the abstract essence of Shirahama Beach within the restaurant's design.



The Interior Experience
Inside, the dining room is thoughtfully arranged to maximize the scenic views and the interaction with natural light. The polycarbonate partitions not only define the space but also serve as artistic elements, changing their appearance with the movement of light. This creates a dining environment that is both visually stimulating and serene, reflecting the coastal beauty outside.




Architectural Integrity and Sustainability
Roito Inc.'s approach to this project emphasizes sustainability and architectural integrity. By reusing an existing structure and incorporating materials that enhance natural light, the design minimizes environmental impact while maximizing aesthetic appeal. The use of energy-efficient lighting and materials that interact with sunlight also underscores the commitment to sustainability.




The 303 Shirahama Italian Restaurant by Roito Inc. is a testament to the harmonious blend of architecture and nature. It revitalizes a historical guest house, transforming it into a contemporary dining space that celebrates the local seascape. This project exemplifies how thoughtful design can create a unique and memorable experience, drawing inspiration from the natural environment.

All photographs are work of Nacasa & Partners Inc.
Popular Articles
Popular articles from the community
Gads Hill Early Learning Center by JGMA: Adaptive Reuse Shaping Community-Focused Educational Architecture
Adaptive reuse transforms fragmented structure into vibrant early learning center with playful façade, natural light, and community-focused sustainable design.
Fifth NRE Jazz Club – De Bever Architecten: Eindhoven’s Revitalized Cultural Hub
Historic gas factory transformed into Fifth NRE Jazz Club blending modern sustainability, jazz culture, dining, and heritage architecture seamlessly.
Atelier Macri Concept Store Interior Design by CASE-REAL
Atelier Macri store features a "ko" counter, walnut wood details, cork displays, blending retail, gallery, and seamless customer experiences.
Inverted Architecture Installation by Studio Link-Arc: Exploring the Intersection of Architecture and Living Organisms
Inverted Architecture Installation by Studio Link-Arc blends mycelium, sustainability, inverted design, ecological cycles, and urban adaptive architecture in Shenzhen.
Similar Reads
You might also enjoy these articles
The Ken Roberts Memorial Delineation Competition (Krob)
As the most senior architectural drawing competition currently in operation anywhere in the world, it draws hundreds of entries each year, awarding the very best submissions in a series of medium-based categories.
Waterfront Redevelopment and Urban Revitalization in Mumbai: Forging a New Dawn for Darukhana
A transformative waterfront redevelopment project reimagining Darukhana’s shipbreaking heritage into an inclusive urban future.
OUT-OF-MAP: A Call for Postcards on Feminist Narratives of Public Space
Rhizoma Design and Research Lab invites artists, designers, architects, researchers, and students to reflect on how feminist perspectives can reshape public space. Selected works will be exhibited in Barcelona, October 2026. Submissions open until 15 April 2026.
Documentation Work on Buddhist Wooden Temple
Architectural syncretism and cultural hybridity: A comparative study of the Buddhist temples in Chattogram Hill tracks
Explore Architecture Competitions
Discover active competitions in this discipline
The International Standard for Design Portfolios
The Global Benchmark for Architecture Dissertation Awards
The Global Benchmark for Graduation Excellence
Challenge to reimagine the Iron Throne
Comments (0)
Please login or sign up to add comments
No comments yet. Be the first to comment!