Adaptive Reuse in Architecture: Transforming Jingyang Camphor Court into a Modern Hotel Experience
This article explores the Jingyang Camphor Court, showcasing its transformation through adaptive reuse in architecture to create a modern hotel.
Adaptive reuse is a sustainable architectural practice that involves repurposing old buildings for new functions. This approach not only preserves historical structures but also revitalizes communities. The Jingyang Camphor Court, designed by Vector Architects in Jingdezhen, China, exemplifies how adaptive reuse can breathe new life into industrial relics, turning them into vibrant, functional spaces.







The Transformation of Jingyang Camphor Court
Preserving Historical Elements
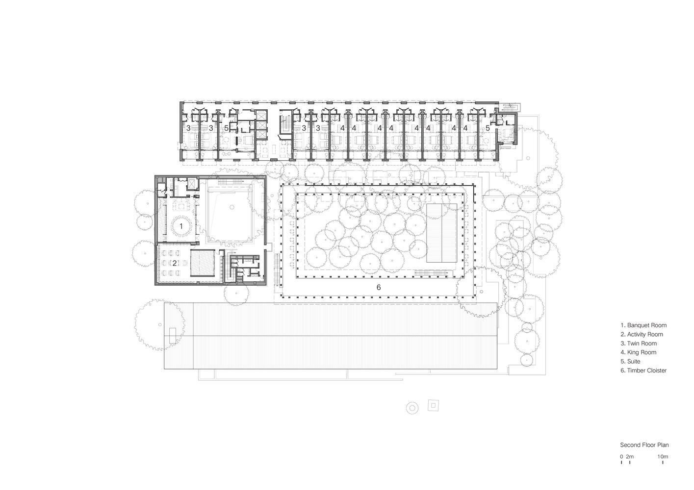
The Jingyang Camphor Court project centers around the adaptive reuse of a series of old industrial buildings, including a long, narrow industrial building, a dormitory, and a pavilion, all integral to the area’s industrial heritage. This site is characterized by its mature camphor trees, which the design carefully preserves, emphasizing the site’s historical and natural value.





Incorporating New Structures
Vector Architects introduced new structures to complement the existing buildings. These new additions were designed with a deep sensitivity to the old, using materials and forms that harmonize with the historical context. This approach ensures that the new construction respects and enhances the old, rather than overshadowing it.






Design Strategies and Challenges in Adaptive Reuse
Creating Public and Private Spaces
One of the unique aspects of the Jingyang Camphor Court is that more than half of its space is open to the public, transforming the hotel into an urban living room. This blend of public accessibility with private luxury is a key feature of adaptive reuse in architecture, particularly in projects that aim to serve broader community functions.







Navigating Material Integration
The architects faced the challenge of integrating new materials with the old. The original structures featured red and orange-hued bricks, a nod to Jingdezhen’s porcelain production legacy. In the new construction, warm-colored concrete and similarly hued tiles were used to ensure a seamless transition between the old and new parts of the building.





Impact and Importance of Adaptive Reuse in Jingyang Camphor Court
Environmental Considerations
Adaptive reuse projects like Jingyang Camphor Court are environmentally beneficial as they reduce the need for new materials and construction waste. By repurposing existing structures, the project minimizes its carbon footprint, making it a model of sustainable architectural practices.







Cultural and Social Impact
The project not only preserves Jingdezhen’s architectural heritage but also revitalizes the community by providing new spaces for social interaction and cultural engagement. The open courtyards and public areas invite both locals and visitors to connect, fostering a sense of community and shared history.







The Future of Adaptive Reuse in Architecture
The Jingyang Camphor Court stands as a testament to the potential of adaptive reuse in architecture to transform spaces and communities. It showcases how thoughtful design can preserve the past while meeting contemporary needs, making it a relevant and inspiring example for future projects around the world.





By focusing on "adaptive reuse in architecture," this article highlights the architectural innovations and considerations that make Jingyang Camphor Court a significant project. It provides insights into how architects can effectively blend old and new, creating functional, beautiful spaces that respect their historical contexts.





All photographs are work of Xu Jun, Pianfang Studio, DONG, Yuning Zheng, Hao Chen
Popular Articles
Popular articles from the community
Flamboyant House by Juliana Camargo + Prumo Projetos
Modern Brazilian house integrating existing tree, pool, and volumes with glass, wood, and transitional spaces blending interior, exterior, and landscape seamlessly.
Louis Malle Cinema: A Limestone Cultural Landmark Revitalizing Community Life in Prayssac
Limestone cinema extension with public forecourt, blending heritage and modern design to create flexible cultural spaces and strengthen community interaction.
Atelier Macri Concept Store Interior Design by CASE-REAL
Atelier Macri store features a "ko" counter, walnut wood details, cork displays, blending retail, gallery, and seamless customer experiences.
The Ken Roberts Memorial Delineation Competition (Krob)
As the most senior architectural drawing competition currently in operation anywhere in the world, it draws hundreds of entries each year, awarding the very best submissions in a series of medium-based categories.
Similar Reads
You might also enjoy these articles
Bamboo Housing Challenge 2026: Design Affordable, Sustainable Homes Using Bamboo
An international design competition by Bamboo U and IBUKU inviting architects and designers to reimagine affordable housing using bamboo — with the winning design built full-scale in Bali.
Computational Design & Education: Beegraphy Design Awards Introduces 7th Category (Featuring Jiyun's Innovative Approach)
Dive into Beegraphy’s 7th Design Awards category, where computational design meets education to create immersive, interactive learning tools, inspired by Jiyun’s work.
From Parametric Lighting to Urban Furniture: Join the 2nd Workshop in Beegraphy’s Computational Design Series
Dive into Cutting-Edge Design Techniques and Practical Applications with Industry Experts
Introducing Sphere by UNI: Pioneering a New Era in AEC Industry
Unlocking Global Potential with BIM and Agile Management
Explore Architecture Competitions
Discover active competitions in this discipline
The International Standard for Design Portfolios
The Global Benchmark for Architecture Dissertation Awards
The Global Benchmark for Graduation Excellence
Challenge to reimagine the Iron Throne
Comments (0)
Please login or sign up to add comments
No comments yet. Be the first to comment!