Adaptive Reuse in Rural Architecture: Taoli-Zhaoshan Village Center by THAD SUP Atelier
Taoli-Zhaoshan Village Center showcases adaptive reuse in rural architecture, transforming an abandoned factory into a sustainable, multifunctional community hub.
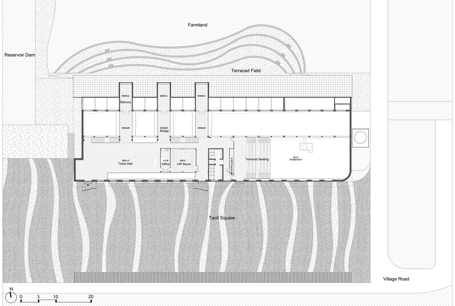
Taoli-Zhaoshan Village Center exemplifies adaptive reuse in rural architecture by transforming an abandoned clay refining factory into a vibrant, multi-functional community space. Designed by THAD SUP Atelier, the project is located at the foot of the Zhaoshan Village reservoir dam and demonstrates an innovative approach to sustainability through material reuse, vernacular construction techniques, and energy-efficient strategies. By integrating recycled materials such as rubble retaining walls, red brick, timber, and industrial equipment, the project fosters a strong connection to local heritage while meeting the contemporary needs of the village.





Context and Design Approach
Situated in a rural landscape, the design leverages existing site conditions and available resources to create a sustainable and contextually responsive structure. The reuse of on-site materials reduces the environmental impact while maintaining the character of the original factory. The new intervention respects the historical and cultural significance of the site while introducing modern spatial organization that enhances functionality.




The architecture adopts a terraced roof structure supported by a combination of steel and wood. This form not only pays homage to traditional construction methods but also improves the environmental performance of the building. Numerous operable clerestory windows and north-facing skylights optimize natural lighting and ventilation, minimizing dependence on artificial heating and cooling systems.




Spatial Organization and Functional Adaptability
Designed to accommodate diverse community activities, the building features flexible interior spaces that support academic conferences, theater performances, farm education, specialty trading, and dining services. A "room within a room" concept organizes the interior efficiently, allowing for different levels of spatial hierarchy and climate control. The outdoor plaza functions as an extension of the interior, providing a venue for village gatherings, community banquets, and other public events.



The adaptive reuse strategy is evident in the architectural composition, where salvaged materials and vernacular construction techniques define the spatial character. The rubble and red brick walls preserve the aesthetic of the original factory while integrating seamlessly with new structural additions. This continuity between old and new elements reinforces a sense of place and strengthens the local community's connection to the building.



Material Sustainability and Energy Efficiency
The sustainable material strategy is a core aspect of the project, with an extensive use of recycled materials and local craftsmanship. By repurposing quarry waste, timber frames, and industrial remnants, the design significantly reduces resource consumption. The project also incorporates solar photovoltaic panels, donated by the community, to generate electricity for its operations, positioning it as a low-carbon model for rural development.



Passive design principles, including natural ventilation, thermal mass, and strategic window placement, further enhance the building’s energy efficiency. The combination of traditional construction knowledge and contemporary sustainability measures ensures that the structure performs efficiently across different seasons.


Social and Economic Impact
Beyond environmental sustainability, the project fosters social and economic resilience by engaging local craftsmen in the construction process. Their participation not only preserves traditional skills but also instills a sense of ownership and pride in the community. The center serves as a cultural and economic hub, providing opportunities for villagers to host markets, exhibitions, and skill-sharing workshops.



By carefully considering operational models and spatial adaptability, the project maximizes its long-term benefits for the community. It becomes a living part of the rural fabric, evolving alongside the needs of its users while maintaining its ecological and cultural integrity.



Taoli-Zhaoshan Village Center is a remarkable example of adaptive reuse in rural architecture, demonstrating how abandoned industrial sites can be transformed into sustainable and socially impactful spaces. Through material reuse, passive design strategies, and community engagement, the project sets a precedent for future rural developments. Its holistic approach to sustainability ensures that the building not only serves its current function but also evolves with the village’s changing needs, reinforcing its role as a catalyst for rural regeneration.


All Photographs are works of Weizhi Gao, Yingnan Chu
Popular Articles
Popular articles from the community
Atelier Macri Concept Store Interior Design by CASE-REAL
Atelier Macri store features a "ko" counter, walnut wood details, cork displays, blending retail, gallery, and seamless customer experiences.
Louis Malle Cinema: A Limestone Cultural Landmark Revitalizing Community Life in Prayssac
Limestone cinema extension with public forecourt, blending heritage and modern design to create flexible cultural spaces and strengthen community interaction.
The Ken Roberts Memorial Delineation Competition (Krob)
As the most senior architectural drawing competition currently in operation anywhere in the world, it draws hundreds of entries each year, awarding the very best submissions in a series of medium-based categories.
Inverted Architecture Installation by Studio Link-Arc: Exploring the Intersection of Architecture and Living Organisms
Inverted Architecture Installation by Studio Link-Arc blends mycelium, sustainability, inverted design, ecological cycles, and urban adaptive architecture in Shenzhen.
Similar Reads
You might also enjoy these articles
Bamboo Housing Challenge 2026: Design Affordable, Sustainable Homes Using Bamboo
An international design competition by Bamboo U and IBUKU inviting architects and designers to reimagine affordable housing using bamboo — with the winning design built full-scale in Bali.
Computational Design & Education: Beegraphy Design Awards Introduces 7th Category (Featuring Jiyun's Innovative Approach)
Dive into Beegraphy’s 7th Design Awards category, where computational design meets education to create immersive, interactive learning tools, inspired by Jiyun’s work.
From Parametric Lighting to Urban Furniture: Join the 2nd Workshop in Beegraphy’s Computational Design Series
Dive into Cutting-Edge Design Techniques and Practical Applications with Industry Experts
Introducing Sphere by UNI: Pioneering a New Era in AEC Industry
Unlocking Global Potential with BIM and Agile Management
Explore Architecture Competitions
Discover active competitions in this discipline
The International Standard for Design Portfolios
The Global Benchmark for Architecture Dissertation Awards
The Global Benchmark for Graduation Excellence
Challenge to reimagine the Iron Throne
Comments (0)
Please login or sign up to add comments
No comments yet. Be the first to comment!