Adaptive Reuse School Architecture: Herojus School by G.Natkevicius & Partners Transforms Industrial Heritage into a Creative Learning Hub
Herojus School showcases how adaptive reuse transforms a historic industrial site into a progressive, community-oriented educational space in Kaunas.
Revitalizing Industrial Heritage into a Progressive School Environment
In the heart of Kaunas, Lithuania, the Herojus School stands as a bold testament to adaptive reuse school architecture. Designed by the Architectural Bureau G.Natkevicius & Partners, this educational space breathes new life into the historic “Spindulys” printing press building—an iconic industrial site that operated from 1928 until 2009. Although not deemed architecturally significant in its original form, the building carried immense cultural and economic value as the former location of both important print productions and national coin minting.



Industrial Identity Preserved Through Adaptive Reuse
Instead of demolition, the architects chose to preserve the structural volume and essence of the original interwar-era industrial building. The transformation retained the characteristic industrial skeleton, including its spatial layout and material palette, while adapting the space for modern educational needs. This strategic decision reinforced the urban and historical identity of Kaunas, maintaining continuity with the city’s industrial narrative.




A Modern School Without Walls—Spatially and Socially
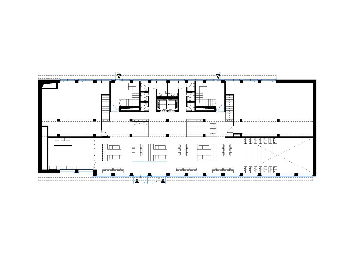
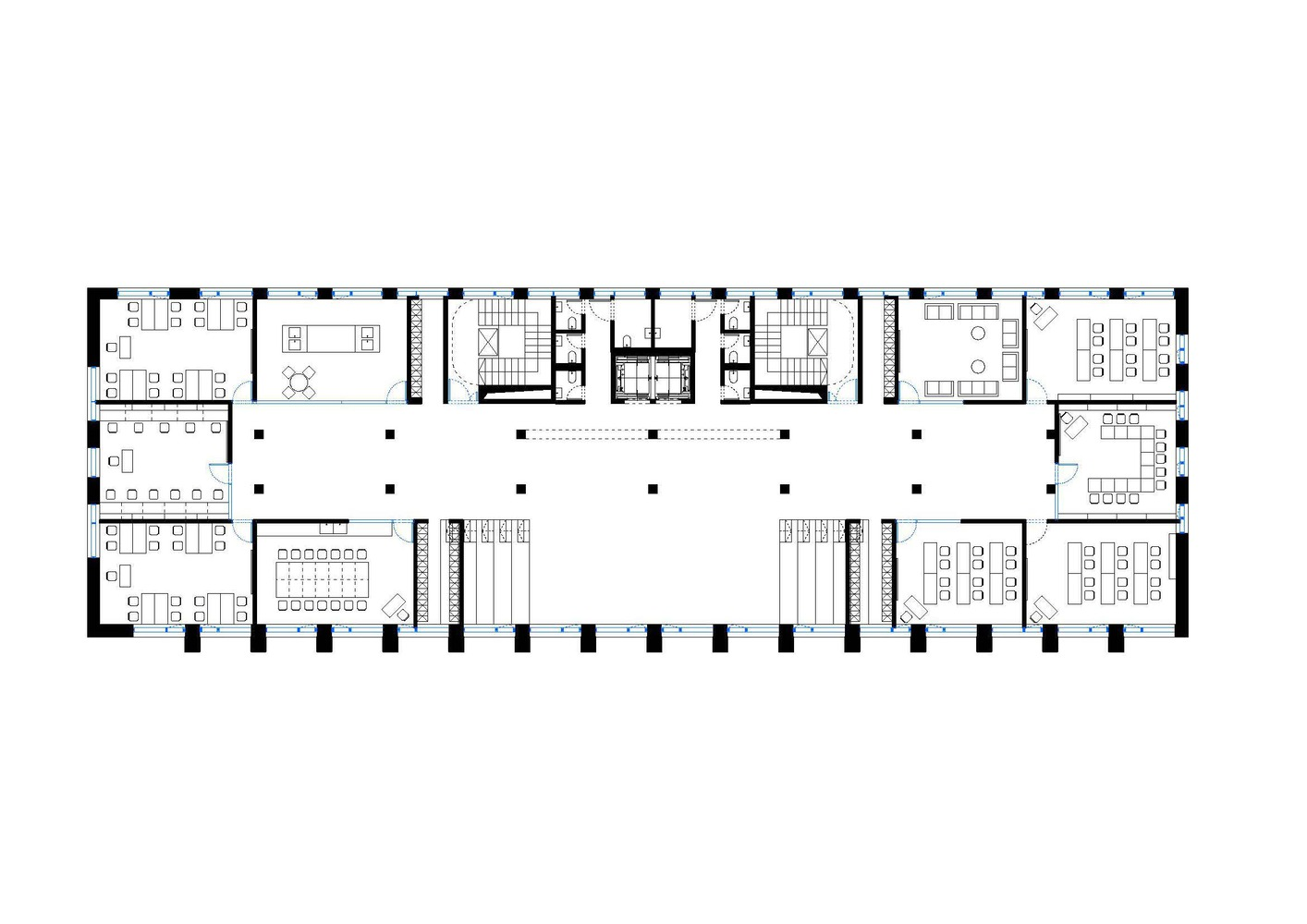
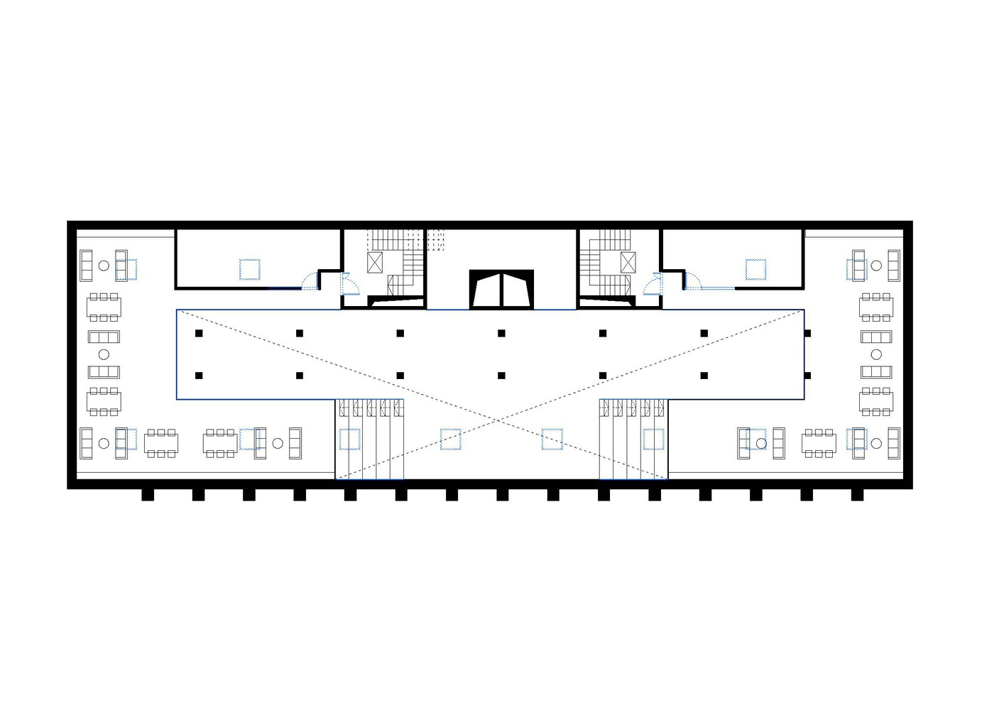
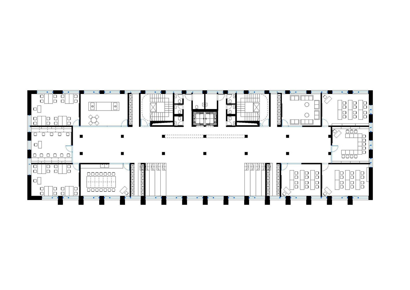
Herojus School defies conventional educational typologies. In alignment with its pedagogical philosophy, the design fosters a democratic, non-hierarchical, and multifunctional environment. There is no principal’s office, no bell signaling class transitions, and no rigid classroom boundaries. Instead, students and faculty share open-plan zones where learning, creativity, and community engagement coexist.



The building’s interior architecture mirrors this flexibility. Spaces such as the amphitheater serve as learning areas, performance stages, dining rooms, and play zones. The lobby invites informal gatherings, parent meetings, dance sessions, and artistic expression. Every inch of the school is utilized with a dynamic intent, ensuring that no space remains unused or static.



Seamless Public Integration and Community Engagement
A vital component of the redesign was to open the first floor to the public. The architects ensured that the school is not an isolated institution but an extension of the city’s urban rhythm. Sports facilities, communal halls, and the amphitheater host events, markets, performances, and seminars—blurring the line between academic and civic life. The school functions as an urban forum where learning and living are interconnected.



Industrial Aesthetics with a Contemporary Edge
The school's revitalized façades are clad in smooth and volumetric galvanized steel plates. Each panel varies slightly in texture and pattern, capturing reflections of seasonal light and surroundings. This tactile industrial finish also continues indoors, especially in the amphitheater and communal areas, reinforcing the aesthetic continuity between the school’s history and its future.


These material choices are more than stylistic—they align with the school’s belief that children thrive in environments made of authentic, tactile materials. The galvanized steel, concrete, and exposed elements offer a raw but honest context, helping children develop spatial awareness and a sense of place grounded in the real world.


Architectural and Pedagogical Synergy
Herojus School is a successful example of how adaptive reuse school architecture can harmonize built heritage with future-forward educational ideologies. Rather than erasing the past, the school celebrates it while fostering an innovative, child-centric learning culture. The architects' vision not only revitalized a forgotten structure but also positioned it as a vibrant center of academic and civic life—where students, educators, parents, and the public converge in shared growth and creativity.







All Photographs are works of Lukas Mykolaitis
Popular Articles
Popular articles from the community
Flamboyant House by Juliana Camargo + Prumo Projetos
Modern Brazilian house integrating existing tree, pool, and volumes with glass, wood, and transitional spaces blending interior, exterior, and landscape seamlessly.
Louis Malle Cinema: A Limestone Cultural Landmark Revitalizing Community Life in Prayssac
Limestone cinema extension with public forecourt, blending heritage and modern design to create flexible cultural spaces and strengthen community interaction.
Atelier Macri Concept Store Interior Design by CASE-REAL
Atelier Macri store features a "ko" counter, walnut wood details, cork displays, blending retail, gallery, and seamless customer experiences.
The Ken Roberts Memorial Delineation Competition (Krob)
As the most senior architectural drawing competition currently in operation anywhere in the world, it draws hundreds of entries each year, awarding the very best submissions in a series of medium-based categories.
Similar Reads
You might also enjoy these articles
Bamboo Housing Challenge 2026: Design Affordable, Sustainable Homes Using Bamboo
An international design competition by Bamboo U and IBUKU inviting architects and designers to reimagine affordable housing using bamboo — with the winning design built full-scale in Bali.
Computational Design & Education: Beegraphy Design Awards Introduces 7th Category (Featuring Jiyun's Innovative Approach)
Dive into Beegraphy’s 7th Design Awards category, where computational design meets education to create immersive, interactive learning tools, inspired by Jiyun’s work.
From Parametric Lighting to Urban Furniture: Join the 2nd Workshop in Beegraphy’s Computational Design Series
Dive into Cutting-Edge Design Techniques and Practical Applications with Industry Experts
Introducing Sphere by UNI: Pioneering a New Era in AEC Industry
Unlocking Global Potential with BIM and Agile Management
Explore Architecture Competitions
Discover active competitions in this discipline
The International Standard for Design Portfolios
The Global Benchmark for Architecture Dissertation Awards
The Global Benchmark for Graduation Excellence
Challenge to reimagine the Iron Throne
Comments (0)
Please login or sign up to add comments
No comments yet. Be the first to comment!