Ágora UNI by Estúdio Módulo: Sustainable Architecture for Innovation
Ágora UNI blends sustainability, innovation, and collaboration, offering adaptable spaces for research, work, and leisure in Joinville, Brazil.
The Ágora UNI project, designed by Estúdio Módulo and located in Joinville, Brazil, is an exemplary fusion of sustainability, innovation, and architectural elegance. Completed in 2024, the project is part of the Ágora Tech Park, an environment designed to foster collaboration, creativity, and well-being.


The building seamlessly integrates office and restaurant spaces with natural surroundings while prioritizing health-focused design elements such as natural ventilation and lighting. This approach reflects the principles of "anti-pandemic architecture," inspired by modernist architects who valued environmental health in their designs.


Strategic Location and Connectivity
Ágora UNI enjoys a prime location with direct connectivity to the Federal University of Santa Catarina (UFSC) through a covered canopy. This strategic integration fosters a symbiotic relationship between the university and the tech park, encouraging collaboration and knowledge sharing.


At the heart of the complex lies a central atrium that leads to a forested area designed for leisure and relaxation. This thoughtful design promotes well-being, offering a harmonious balance between urban development and nature.


A Space for Innovation and Collaboration
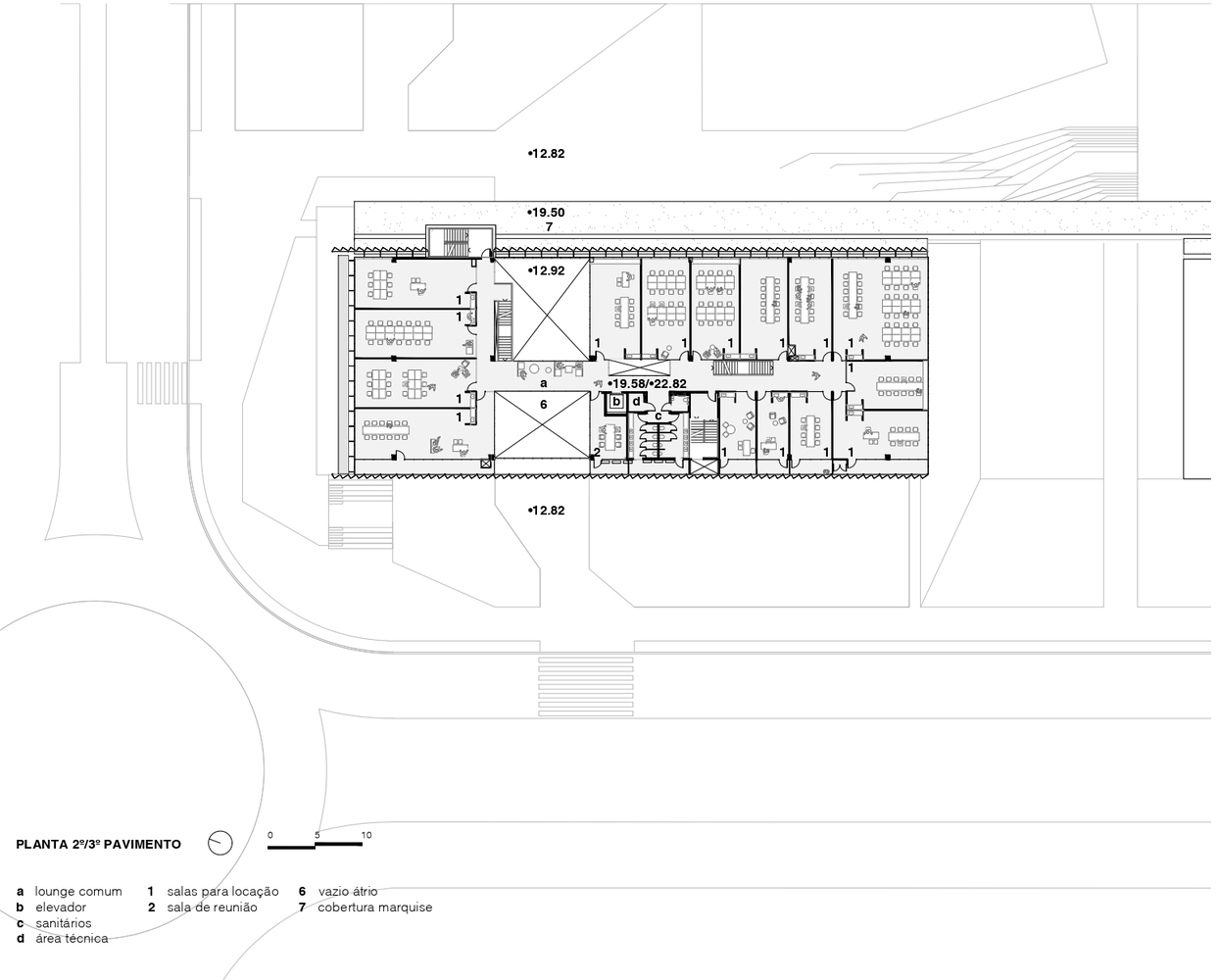
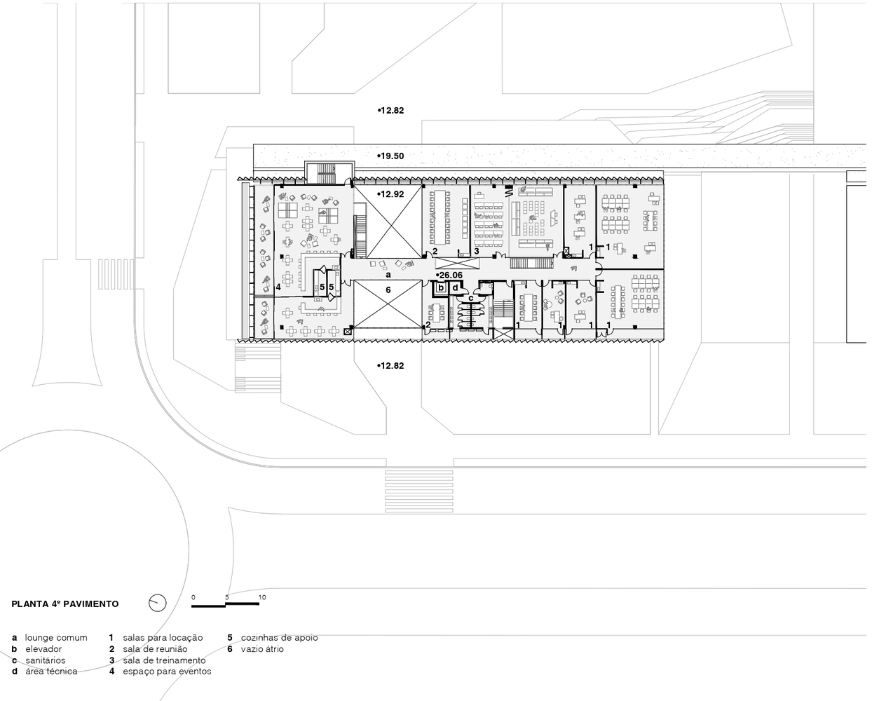
The architecture of Ágora UNI emphasizes flexibility and adaptability. Equipped with state-of-the-art infrastructure for laboratories and coworking spaces, the building accommodates evolving research and development needs. Open, multifunctional spaces encourage teamwork and idea exchange, making it an ideal setting for innovation.


Ricardo Fantinelli, Executive Director of Ágora Tech Park, highlights the building's ability to inspire collaboration across various sectors. The open design facilitates interaction among professionals, fostering an ecosystem of creativity and progress.


Aesthetic and Functional Design
Visual and Environmental Connectivity
Ágora UNI’s architecture is deeply connected to its surroundings, offering stunning views of the Serra do Mar and the Atlantic Forest. Large windows create a seamless visual transition between the interior and exterior, inviting natural light and enhancing the building's connection with nature.


The façade, adorned with perforated corrugated metal, ensures natural ventilation while protecting the interiors from direct sunlight. An external canopy serves as a spacious veranda, while west-facing bleachers provide a serene spot to enjoy sunsets.


Sustainable and Efficient Construction
Designed with a prefabricated construction system, Ágora UNI achieved remarkable efficiency in terms of time and material usage. This sustainable approach minimized waste and allowed the completion of multiple buildings within the Ágora Tech Park—MOB, HUB, and UNI—within a five-year span.


The prefabrication method not only reduced the environmental impact of construction but also ensured precision and quality in execution, showcasing a forward-thinking approach to sustainable architecture.

Recognition and Awards
Ágora UNI has been widely recognized for its innovative design and architectural excellence. In 2023, it received an award from the Brazilian Institute of Architects – Santa Catarina Section (IAB SC) and was a finalist in the 10th Saint-Gobain AsBEA Award. These accolades underscore the project’s contribution to sustainable and forward-thinking architectural practices.







Conclusion
The Ágora UNI project by Estúdio Módulo is a testament to the potential of sustainable and innovative architecture in creating environments that promote well-being, collaboration, and efficiency. By seamlessly integrating natural elements with modern design principles, Ágora UNI stands as a model for future architectural endeavors in research and innovation hubs.






All Photographs are work of Manuel Sá
Popular Articles
Popular articles from the community
Solar Steam: A Climate-Responsive Architecture That Redefines the Monument
A climate-responsive memorial architecture that transforms heat, decay, and time into a living system reflecting humanity’s ecological impact.
A Contemporary Take on Iranian Residential Architecture
A modern interior design in Mashhad that reinterprets brick, light, and spatial flow to create a warm, contemporary residential architecture.
Atelier Macri Concept Store Interior Design by CASE-REAL
Atelier Macri store features a "ko" counter, walnut wood details, cork displays, blending retail, gallery, and seamless customer experiences.
Flamboyant House by Juliana Camargo + Prumo Projetos
Modern Brazilian house integrating existing tree, pool, and volumes with glass, wood, and transitional spaces blending interior, exterior, and landscape seamlessly.
Similar Reads
You might also enjoy these articles
The Ken Roberts Memorial Delineation Competition (Krob)
As the most senior architectural drawing competition currently in operation anywhere in the world, it draws hundreds of entries each year, awarding the very best submissions in a series of medium-based categories.
Waterfront Redevelopment and Urban Revitalization in Mumbai: Forging a New Dawn for Darukhana
A transformative waterfront redevelopment project reimagining Darukhana’s shipbreaking heritage into an inclusive urban future.
OUT-OF-MAP: A Call for Postcards on Feminist Narratives of Public Space
Rhizoma Design and Research Lab invites artists, designers, architects, researchers, and students to reflect on how feminist perspectives can reshape public space. Selected works will be exhibited in Barcelona, October 2026. Submissions open until 15 April 2026.
Documentation Work on Buddhist Wooden Temple
Architectural syncretism and cultural hybridity: A comparative study of the Buddhist temples in Chattogram Hill tracks
Explore Architecture Competitions
Discover active competitions in this discipline
The International Standard for Design Portfolios
The Global Benchmark for Architecture Dissertation Awards
The Global Benchmark for Graduation Excellence
Challenge to reimagine the Iron Throne
Comments (0)
Please login or sign up to add comments
No comments yet. Be the first to comment!