Atlas Academia Sport Facility by Sordo Madaleno: A Landmark in Modern Sports Architecture in Mexico
Atlas Academia Sport Facility redefines modern sports architecture in Mexico through modular design, regional identity, and social inclusion.
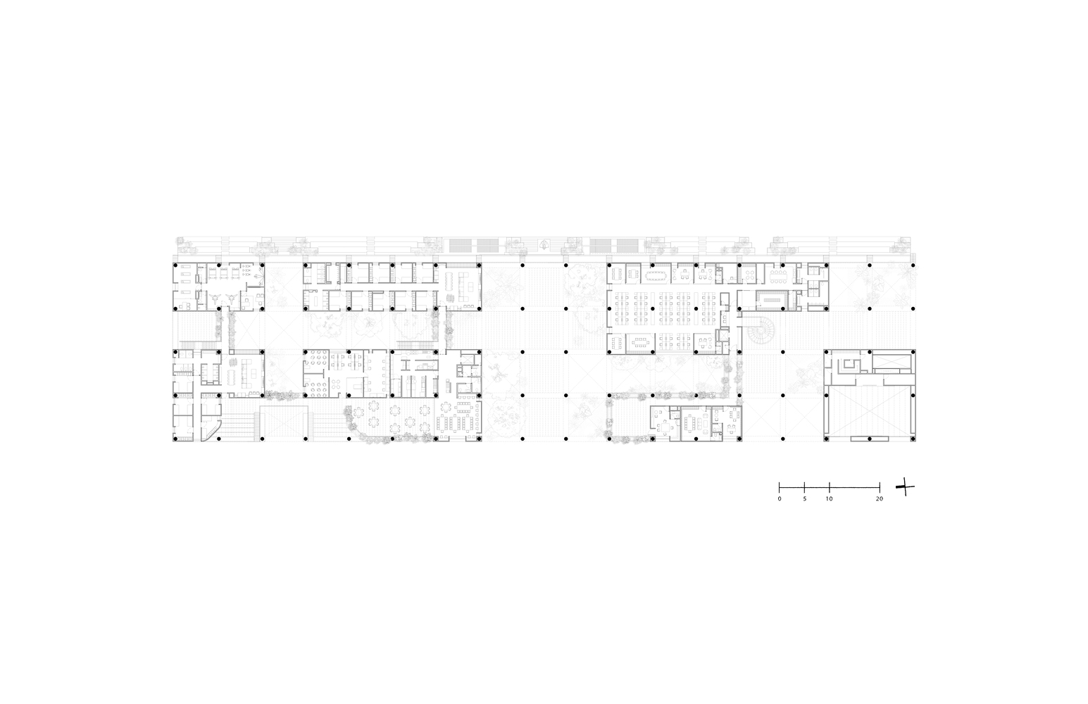
The Atlas Academia Sport Facility, designed by Sordo Madaleno Arquitectos, is a groundbreaking project that redefines modern sports architecture in Mexico. Located in Guadalajara and completed in 2024, this 66,000 m² complex serves as the new home for Atlas FC, one of the country's oldest football clubs. More than just a sports facility, it is a statement of social commitment, architectural innovation, and regional identity.



A Vision for Athletic and Social Development
The Atlas Academia is more than a training ground—it is a comprehensive campus that nurtures the next generation of Mexican football talent. Designed to house six professional football fields, clubhouses, and sports science facilities, the project also provides accommodation for underprivileged youth, democratizing access to elite sports training. The architects worked closely with Atlas FC and Orlegi Sports to ensure the space fostered personal growth, team spirit, and community belonging through thoughtful spatial design.



Modular Design for Flexibility and Growth
At the heart of the design is an 8.4 x 8.4-meter modular system. This structural grid creates a flexible and scalable architectural framework, allowing spaces to evolve with the academy's future needs. Column and beam systems define open-air courtyards and passageways, giving the complex a rhythm of built form and open voids that mirror the dynamic flow of sports and human movement.

This modular logic extends to the building envelope and structural expression. The roof, designed as a reticulated brise-soleil, filters sunlight and defines shaded walkways that traverse the facility, creating a seamless dialogue between interior spaces and the expansive outdoors.

A Campus Defined by Public Space and Movement
The layout of the complex includes external courtyards, stairways, and pedestrian routes, which transform the sports facility into a walkable campus. These spaces act like public streets or town squares, encouraging interaction, circulation, and a sense of community. Spectator seating, integrated along the west façade, serves a dual purpose: as a performance platform during matches and a contemplative or training zone during quiet hours.


These public zones extend the building’s function beyond sport, transforming it into a vibrant social environment that supports both physical development and cultural exchange. The result is a flexible facility that fosters identity, engagement, and wellbeing at every level.


Material Innovation and Regional Identity
In a nod to the Atlas FC identity, the entire complex is rendered in monochromatic red, achieved through pigmented concrete and custom-designed brick. The structural concrete was poured on-site, while pre-cast floor slabs enabled rapid assembly. This hybrid method not only ensured construction efficiency but also significantly minimized material waste.


The red bricks were engineered specifically for the building, tailored in scale, color, and load-bearing function. Together, the materials express both strength and elegance, anchoring the architecture in a regional vernacular while delivering a contemporary interpretation of sports infrastructure.


Sustainable Landscape and Endemic Ecology
Sordo Madaleno’s landscape strategy reinforces the project’s connection to place through the use of endemic plant species. These require minimal irrigation and maintenance while thriving year-round in Jalisco’s climate. Greenery is allowed to climb and integrate with the architecture, softening its edges and enhancing its sense of timelessness and belonging.


This ecological approach not only supports biodiversity but also enriches the visual and experiential quality of the facility. As Fernando Sordo Madaleno notes, the inclusion of green areas and climbing plants is essential to creating a meaningful sense of place on a vast, exposed site.


Redefining Modern Sports Architecture in Mexico
The Atlas Academia Sport Facility is a model of how modern sports architecture in Mexico can transcend its programmatic function. Through spatial modularity, material precision, and social consciousness, the project creates a flexible environment that serves both elite athletic development and broader community impact.


This architectural achievement is not just a headquarters for a football club—it’s a living, growing campus for human potential, architectural evolution, and cultural pride. Sordo Madaleno has crafted an innovative and context-sensitive response to the needs of a sport, a city, and a generation.


All Photographs are works of Edmund Sumner
Popular Articles
Popular articles from the community
Inverted Architecture Installation by Studio Link-Arc: Exploring the Intersection of Architecture and Living Organisms
Inverted Architecture Installation by Studio Link-Arc blends mycelium, sustainability, inverted design, ecological cycles, and urban adaptive architecture in Shenzhen.
Free Architecture Competitions You Can Enter Right Now
No entry fees, real prizes. Here are the best free architecture competitions open for submissions in 2026.
Gads Hill Early Learning Center by JGMA: Adaptive Reuse Shaping Community-Focused Educational Architecture
Adaptive reuse transforms fragmented structure into vibrant early learning center with playful façade, natural light, and community-focused sustainable design.
Solar Steam: A Climate-Responsive Architecture That Redefines the Monument
A climate-responsive memorial architecture that transforms heat, decay, and time into a living system reflecting humanity’s ecological impact.
Similar Reads
You might also enjoy these articles
Bamboo Housing Challenge 2026: Design Affordable, Sustainable Homes Using Bamboo
An international design competition by Bamboo U and IBUKU inviting architects and designers to reimagine affordable housing using bamboo — with the winning design built full-scale in Bali.
Computational Design & Education: Beegraphy Design Awards Introduces 7th Category (Featuring Jiyun's Innovative Approach)
Dive into Beegraphy’s 7th Design Awards category, where computational design meets education to create immersive, interactive learning tools, inspired by Jiyun’s work.
From Parametric Lighting to Urban Furniture: Join the 2nd Workshop in Beegraphy’s Computational Design Series
Dive into Cutting-Edge Design Techniques and Practical Applications with Industry Experts
Explore Architecture Competitions
Discover active competitions in this discipline
The International Standard for Design Portfolios
The Global Benchmark for Architecture Dissertation Awards
The Global Benchmark for Graduation Excellence
Challenge to reimagine the Iron Throne
Comments (0)
Please login or sign up to add comments
No comments yet. Be the first to comment!