Boreal Forest Research Center Architecture: CEDFOB Innovation Pavilion and Research Center
The CEDFOB Innovation Pavilion combines sustainable wooden architecture and innovative design, inspired by the Boreal Forest, for research excellence.
Introduction to the Boreal Forest Research Center Architecture
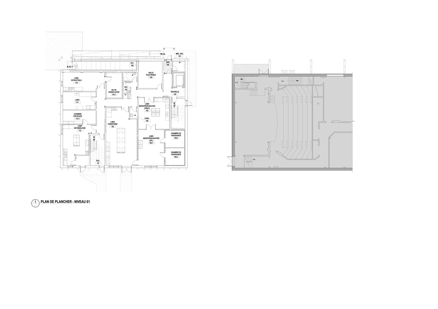
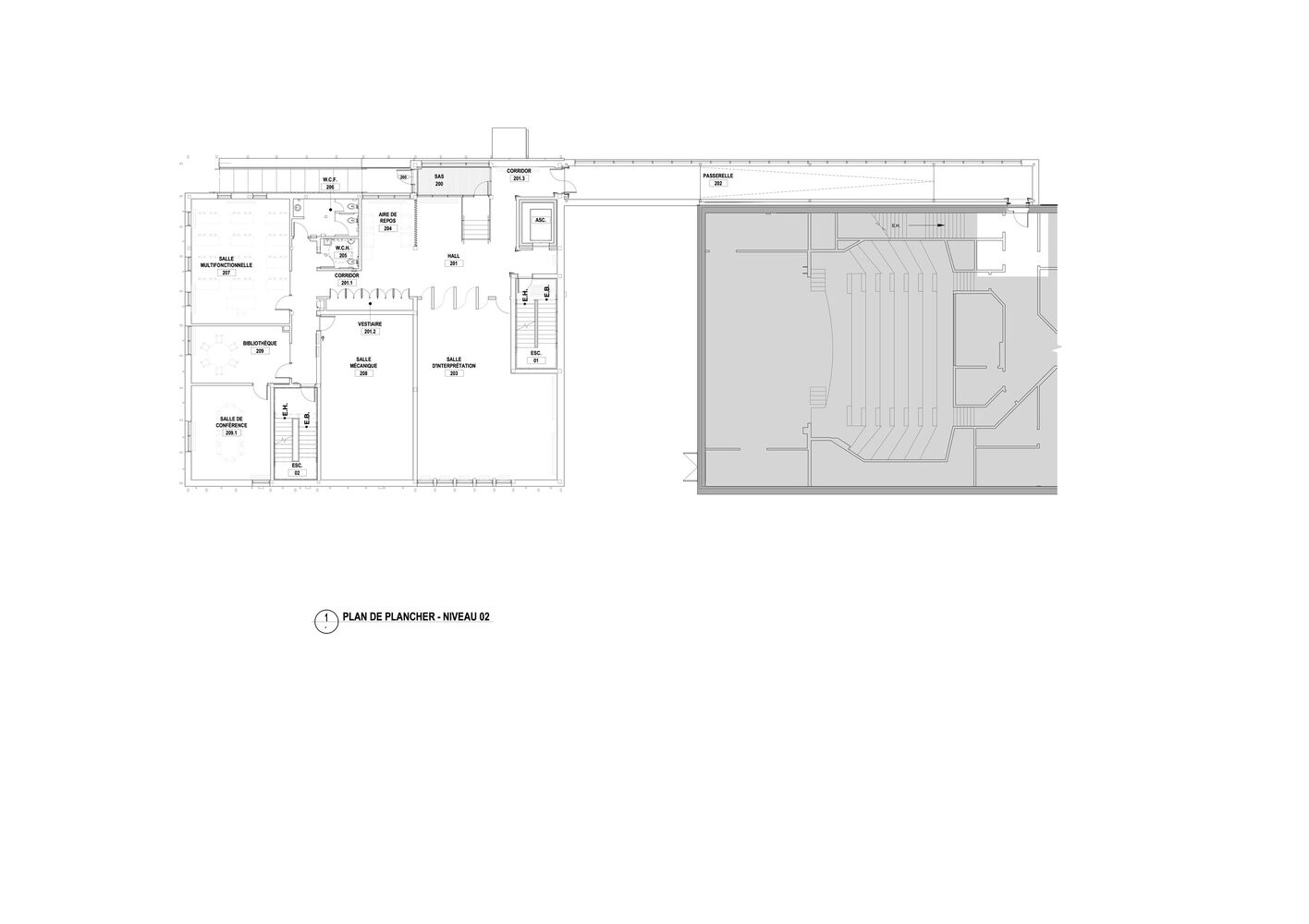
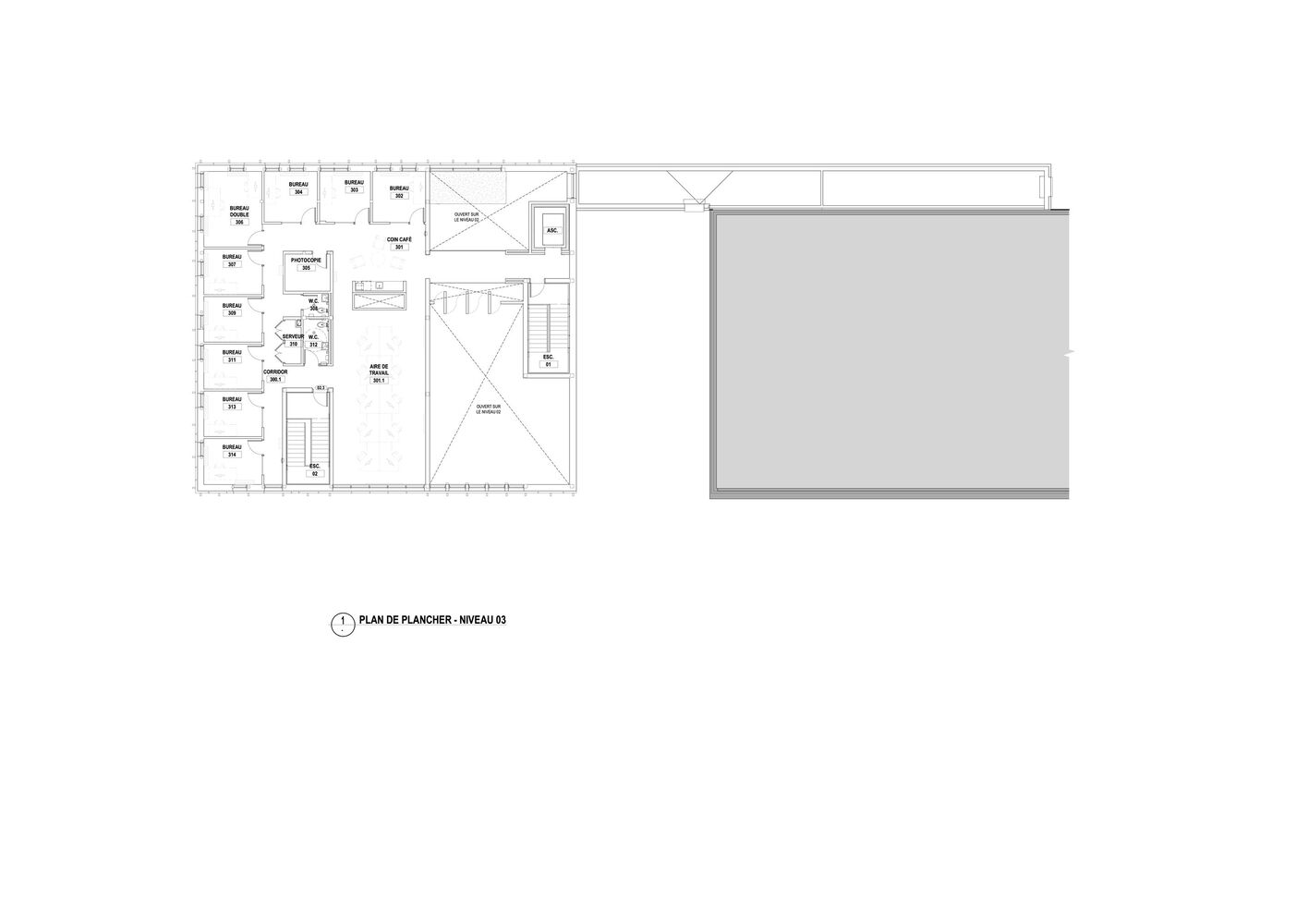
The CEDFOB Innovation Pavilion and Research Center stands as a prime example of sustainable architecture, seamlessly blending with the natural landscape of Baie-Comeau, Canada. Designed by STGM Architectes, the pavilion is a Boreal Forest Research Center that not only serves the educational and research needs of its occupants but also represents a pioneering approach to wooden architecture. This three-story structure, completed in 2023, utilizes wood as its primary material, making it an innovative and environmentally-conscious design that highlights the natural beauty of the Boreal Forest.



Design Concept Inspired by the Boreal Forest
The architectural concept behind the CEDFOB Innovation Pavilion draws inspiration directly from the Boreal Forest, a region known for its towering trees and rich ecological diversity. The design is built around themes of verticality, mimicking the forest’s dense canopy and rhythmic pattern of trees. The interplay of solids and voids within the design mirrors the natural openings found in the forest canopy, where light filters through the trees to create a delicate balance of shadow and perception.


This landscape-driven approach is evident in the building’s façade, which is composed of layers of wooden slats arranged in a rhythmic pattern. These slats, made from pre-aged Eastern white cedar, vary in density—denser at the upper levels and more open at eye level—evoking the morphology of trees and their natural growth patterns. The reflective aluminum cladding beneath the wood slats creates a mirror effect that reflects the surrounding landscape, strengthening the connection between the pavilion and its natural environment.

Structural Innovation with Wood
One of the standout features of the CEDFOB Innovation Pavilion is its structural use of wood, which is employed in two distinct systems. The main entrance hall and the interpretation room are supported by a visible mass timber structure (glulam), which provides the necessary strength and allows for the impressive double-height ceilings that define these spaces. Meanwhile, the classrooms and office spaces make use of a more lightweight wood frame structure, creating a balance between functionality and design flexibility.


This approach not only showcases the aesthetic appeal of wooden architecture but also aligns with sustainable building practices by using renewable materials. The incorporation of wood throughout the pavilion helps reduce the building’s carbon footprint, making it a leading example of eco-friendly architecture in the context of research and educational facilities.


Harmonious Integration with the Surrounding Landscape
The pavilion's design integrates harmoniously with its surroundings, taking full advantage of its natural site. The cantilevered structure at the entrance guides visitors into the building while mimicking the sensation of walking through the forest. This design element adds a dynamic sense of movement to the building, inviting visitors to experience the site from a new perspective.


With its clean, simple lines and timber-clad façade, the pavilion is both an architectural landmark and a celebration of the region’s natural beauty. Its design draws attention while respecting the environment, providing a space that is both functional and evocative of the Boreal Forest.


A Showcase for Research and Innovation
The CEDFOB Innovation Pavilion and Research Center serves as a vital hub for research on the Boreal Forest, offering spaces that support both collaborative innovation and individual study. The building is designed to meet the specific needs of researchers and students, with spaces tailored to different functions—from classrooms to offices—while still maintaining a cohesive and inviting atmosphere.


This pavilion is not only an educational facility but also a symbol of sustainable development in the architectural world. Its innovative use of wooden construction and its integration with the environment make it a model for future research buildings. It stands as a testament to the potential of combining nature-inspired design with modern architectural techniques to create structures that are both environmentally responsible and functional.



A New Era of Sustainable Architecture
The CEDFOB Innovation Pavilion and Research Center is more than just a research facility; it is a bold statement in the field of sustainable architecture. Through the use of wood, a landscape-driven design, and innovative building systems, the pavilion reflects the values of environmental responsibility and functional beauty. By drawing inspiration from the Boreal Forest, the architects have created a structure that is in tune with its surroundings, providing a space that fosters research, education, and a deeper connection with nature.


The pavilion is a prime example of how architecture can seamlessly integrate with the natural world while also addressing the practical needs of modern research and education. It is a beacon of innovation, sustainability, and design excellence that sets a new standard for the future of educational architecture and research facilities.


All Photographs are works of Alexandre Guérin
Popular Articles
Popular articles from the community
Solar Steam: A Climate-Responsive Architecture That Redefines the Monument
A climate-responsive memorial architecture that transforms heat, decay, and time into a living system reflecting humanity’s ecological impact.
Split House: A Compact Urban Home Blending Privacy, Light, and Flexible Living in Japan
Compact Japanese home featuring DOMA space, flexible café potential, passive lighting, privacy zoning, and sustainable urban living design.
Fifth NRE Jazz Club – De Bever Architecten: Eindhoven’s Revitalized Cultural Hub
Historic gas factory transformed into Fifth NRE Jazz Club blending modern sustainability, jazz culture, dining, and heritage architecture seamlessly.
Atelier Macri Concept Store Interior Design by CASE-REAL
Atelier Macri store features a "ko" counter, walnut wood details, cork displays, blending retail, gallery, and seamless customer experiences.
Similar Reads
You might also enjoy these articles
Bamboo Housing Challenge 2026: Design Affordable, Sustainable Homes Using Bamboo
An international design competition by Bamboo U and IBUKU inviting architects and designers to reimagine affordable housing using bamboo — with the winning design built full-scale in Bali.
Computational Design & Education: Beegraphy Design Awards Introduces 7th Category (Featuring Jiyun's Innovative Approach)
Dive into Beegraphy’s 7th Design Awards category, where computational design meets education to create immersive, interactive learning tools, inspired by Jiyun’s work.
From Parametric Lighting to Urban Furniture: Join the 2nd Workshop in Beegraphy’s Computational Design Series
Dive into Cutting-Edge Design Techniques and Practical Applications with Industry Experts
Explore Architecture Competitions
Discover active competitions in this discipline
The International Standard for Design Portfolios
The Global Benchmark for Architecture Dissertation Awards
The Global Benchmark for Graduation Excellence
Challenge to reimagine the Iron Throne
Comments (0)
Please login or sign up to add comments
No comments yet. Be the first to comment!