Buena Vista House: A Model of Sustainable Architecture in Berkeley Hills
The Buena Vista House in Berkeley Hills exemplifies sustainable architecture with solar heat gain, natural cooling, and retirement-friendly design by Rangr Studio.
Nestled in the vibrant Berkeley Hills, the Buena Vista House emerges as a beacon of sustainable architecture. Designed by Rangr Studio, this residence is a testament to harmonizing with the local microclimate and topography, while providing a comfortable, zero-threshold living environment for retirement. With an area of 2850 ft² and completed in 2021, the house stands as a model for future-oriented living spaces.




Design Philosophy: Sustainability Meets Comfort
Maximizing Solar Heat Gain
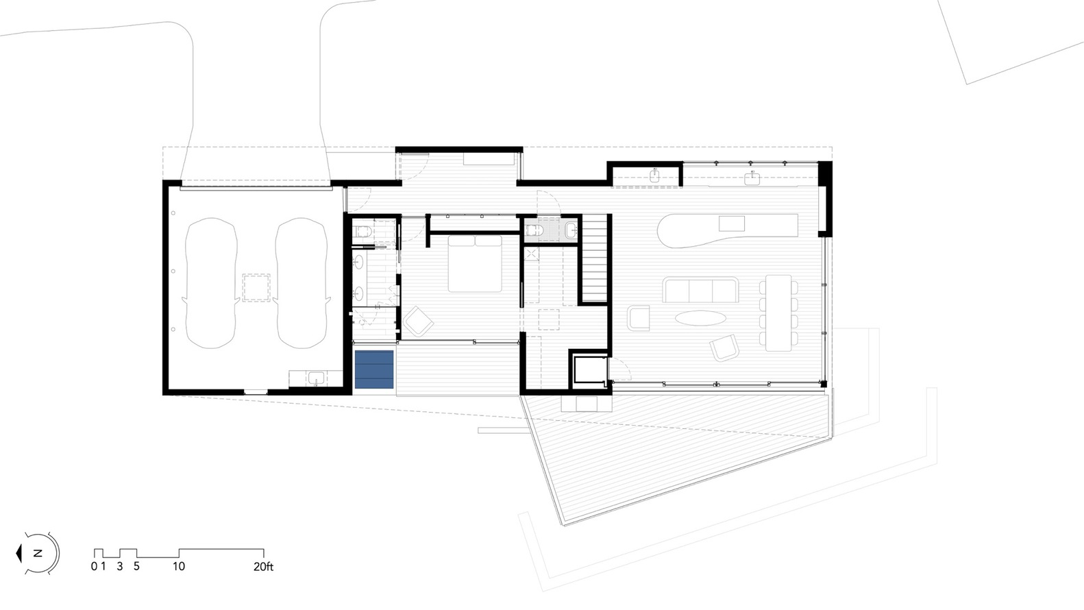
In the heart of a sunny yet chilly microclimate, the Buena Vista House utilizes its orientation to maximize solar heat gain. Full-height glazed walls on the south side of the living area allow for ample sunlight to warm the space naturally, reducing the need for artificial heating and highlighting the principles of sustainable architecture in the Berkeley Hills.



Cross-Ventilation for Natural Cooling
The house's design strategically incorporates cross-ventilation to cool its interiors without relying on air conditioning. Shaded east windows and operable glass walls to the west facilitate the flow of dry air, ensuring the living spaces remain comfortable throughout the year.

A Home for Retirement
Zero-Threshold Living
Understanding the clients' request for a retirement-friendly home, Rangr Studio designed the upper floor to be directly accessible from the driveway and garage, eliminating barriers and creating an easily navigable living space. This floor houses the main bedroom suite, kitchen, dining, and living spaces, all tailored for convenience and accessibility.


Innovative Use of Space and Geometry
Synthesis of Cuboids
The Buena Vista House's unique form results from the synthesis of two cuboids; one aligns with the street while the other follows the natural contours of the site. This innovative design not only minimized foundation costs but also created a dynamic interaction between the indoor and outdoor living areas, offering expansive views across the San Francisco Bay.


Expanding the Panoramic Experience
The interaction between the living space and the deck is where the house's two geometrical forms come together, expanding the panoramic experience of the surrounding landscape. This architectural decision allows residents to enjoy breathtaking views of the Marin headlands, San Francisco, and the Golden Gate Bridge, embodying the spirit of sustainable architecture in Berkeley Hills.



Setting a New Standard
The Buena Vista House by Rangr Studio sets a new standard for sustainable architecture in Berkeley Hills, offering a thoughtful response to the clients' needs and environmental sustainability. Its design philosophy, which emphasizes natural heating and cooling, accessibility, and stunning views, makes it a landmark project in the region, pushing the boundaries of what is possible in residential architecture.




All photographs are work of Matthew Millman
Popular Articles
Popular articles from the community
A Contemporary Take on Iranian Residential Architecture
A modern interior design in Mashhad that reinterprets brick, light, and spatial flow to create a warm, contemporary residential architecture.
Treehouse Apartment: A Warm Timber Interior Blending Craft, Play, and Contemporary Living
Warm timber apartment with integrated treehouse, combining natural materials, craftsmanship, and playful design to create a flexible, family-oriented living environment.
An Miên Lumière Cafe by xưởng xép, Ho Chi Minh City, Vietnam
An industrial-inspired café where layered steel and warm light create a dynamic, immersive environment shaped by reflection, depth, and perception.
On the Brooks House by Monsoon Collective – A Contemporary Kerala Home Rooted in Tradition
Kerala home blending tradition and modernity with water-inspired design, brick architecture, courtyard planning, and sustainable rainwater harvesting strategies.
Similar Reads
You might also enjoy these articles
Top 15 Architecture Competitions to Enter in 2026
From student-friendly idea competitions to prestigious international awards, here are the best architecture competitions open for entries in 2026. Updated regularly.
DIY & Engineering in Computational Design : Enter the BeeGraphy Design Awards
Showcase Your Creativity with Computational Design and Open Source Projects

Innovative Design Solutions: Award-Winning Projects from Recent Architecture Competitions
Exploring award-winning architectural projects shaping the future of design, sustainability, and community.
Explore Architecture Competitions
Discover active competitions in this discipline
The International Standard for Design Portfolios
The Global Benchmark for Architecture Dissertation Awards
The Global Benchmark for Graduation Excellence
Challenge to reimagine the Iron Throne
Comments (0)
Please login or sign up to add comments
No comments yet. Be the first to comment!