Casa Chorizo Renovation in Buenos Aires: A Modern Twist on Traditional Living by Estudio Tecla
The article describes the transformation of Garu House, a traditional Casa Chorizo in Buenos Aires, by Estudio Tecla into a modern space.
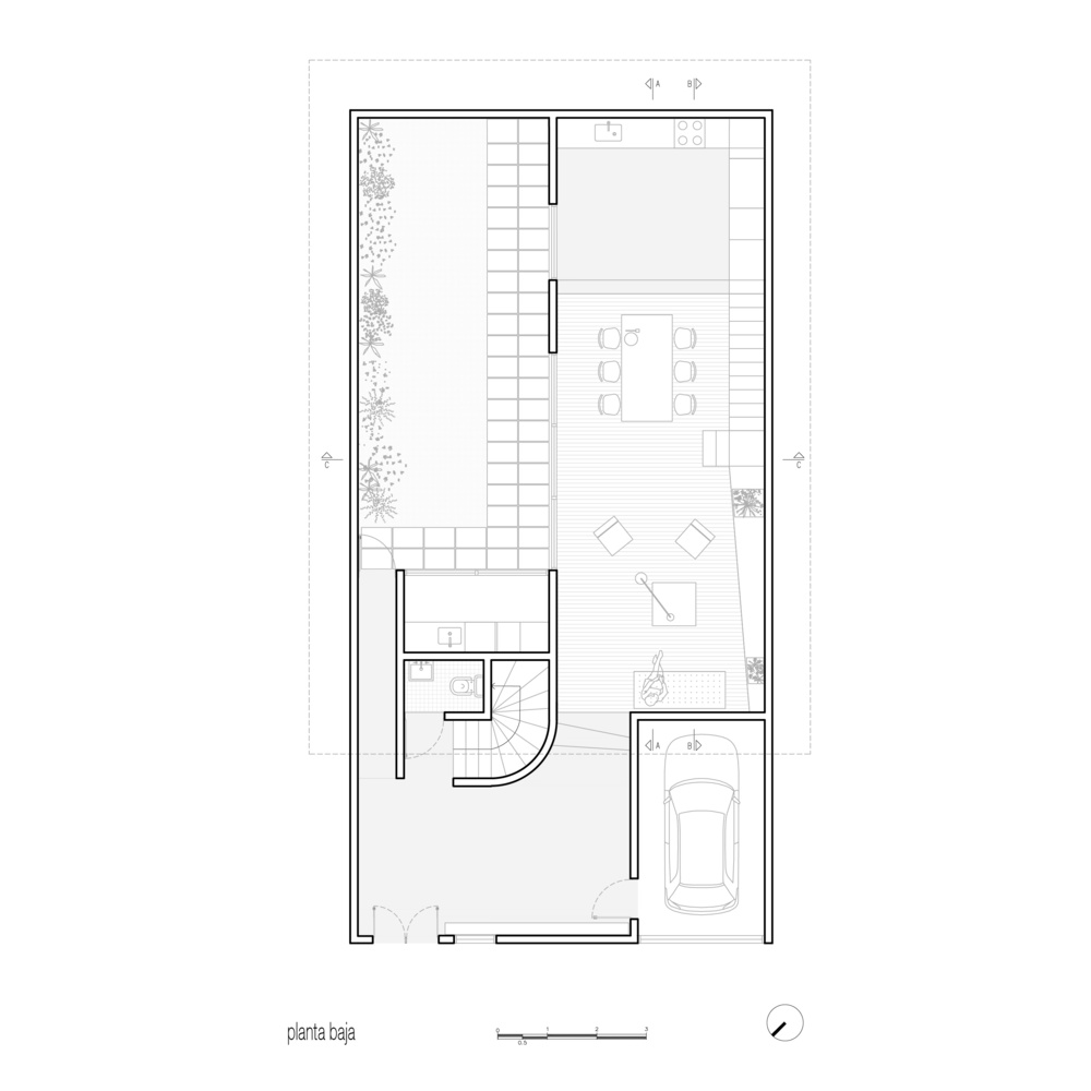
In the heart of Buenos Aires, Argentina, the Garu House emerges as a prime example of "Casa Chorizo Renovation in Buenos Aires". Led by Estudio Tecla, this project breathes new life into the classic Argentine residential style, blending tradition with contemporary design.

Reimagining Traditional Spaces
Bringing Light and Space to the Forefront
The renovation's main challenge was transforming the dark, segmented layout of the traditional Casa Chorizo into an open, light-filled living environment. By demolishing central walls and incorporating floor-to-ceiling windows, Estudio Tecla has crafted a space where light becomes a central character, enhancing the home's spaciousness.


Preserving Architectural Heritage
Despite the extensive modernization, key elements of the original architecture, such as the wooden floors and vaulted ceilings, were carefully restored. This approach respects the building's historical value while introducing modern comfort and aesthetics.



Innovative Design Solutions
The Central Patio: A Green Haven
The redesign of the central patio was crucial in eliminating the previous dark ceramics and metal structures, replacing them with a vibrant green space that seamlessly integrates with the home's interior, thereby enhancing the living experience.



Multifunctional Furniture as a Space Enhancer
A standout feature is the ingenious continuous furniture piece that transitions from kitchen countertop to staircase and living area, exemplifying smart space utilization and design fluidity in "Casa Chorizo Renovation in Buenos Aires".





Exterior Enhancements
Facade Restoration with a Modern Touch
The facade restoration balanced historical preservation with modern needs. The original doorway was maintained, adding character, while new corrugated metal modules introduced a contemporary element that redefines the home's street presence.

Blending Past and Present
The Garu House by Estudio Tecla stands as a testament to the potential of "Casa Chorizo Renovation in Buenos Aires", showcasing how traditional homes can meet modern living standards while preserving their unique cultural heritage.






All photographs are work of Malena Fradkin
Popular Articles
Popular articles from the community
The Ken Roberts Memorial Delineation Competition (Krob)
As the most senior architectural drawing competition currently in operation anywhere in the world, it draws hundreds of entries each year, awarding the very best submissions in a series of medium-based categories.
Flamboyant House by Juliana Camargo + Prumo Projetos
Modern Brazilian house integrating existing tree, pool, and volumes with glass, wood, and transitional spaces blending interior, exterior, and landscape seamlessly.
An Miên Lumière Cafe by xưởng xép, Ho Chi Minh City, Vietnam
An industrial-inspired café where layered steel and warm light create a dynamic, immersive environment shaped by reflection, depth, and perception.
Louis Malle Cinema: A Limestone Cultural Landmark Revitalizing Community Life in Prayssac
Limestone cinema extension with public forecourt, blending heritage and modern design to create flexible cultural spaces and strengthen community interaction.
Similar Reads
You might also enjoy these articles
The Ken Roberts Memorial Delineation Competition (Krob)
As the most senior architectural drawing competition currently in operation anywhere in the world, it draws hundreds of entries each year, awarding the very best submissions in a series of medium-based categories.
Waterfront Redevelopment and Urban Revitalization in Mumbai: Forging a New Dawn for Darukhana
A transformative waterfront redevelopment project reimagining Darukhana’s shipbreaking heritage into an inclusive urban future.
OUT-OF-MAP: A Call for Postcards on Feminist Narratives of Public Space
Rhizoma Design and Research Lab invites artists, designers, architects, researchers, and students to reflect on how feminist perspectives can reshape public space. Selected works will be exhibited in Barcelona, October 2026. Submissions open until 15 April 2026.
Documentation Work on Buddhist Wooden Temple
Architectural syncretism and cultural hybridity: A comparative study of the Buddhist temples in Chattogram Hill tracks
Explore Architecture Competitions
Discover active competitions in this discipline
The International Standard for Design Portfolios
The Global Benchmark for Architecture Dissertation Awards
The Global Benchmark for Graduation Excellence
Challenge to reimagine the Iron Throne
Comments (0)
Please login or sign up to add comments
No comments yet. Be the first to comment!