CASCADIA: A Masterpiece of Golf Clubhouse Architecture Immersed in Nature
A mountain-embedded golf clubhouse in South Korea that redefines architecture through vertical movement, natural integration, and immersive experience.
A Temple Hidden in the Mountains of Gangwon-do
CASCADIA Golf Club, designed by STRX Architects and led by architect Park Kwang, is a striking example of golf clubhouse architecture that dissolves the boundaries between built space and the natural world. Nestled in the mountains of Hongcheon-gun, South Korea, this 8,770-square-meter project rejects traditional architectural expressions in favor of a mystical and immersive spatial experience inspired by the "realm of the gods."

Located far from urban influence, the site is a sanctuary of nature—rugged terrain, rock formations, and cascading waterfalls—forming a primordial landscape that guided the architects’ vision. Rather than impose architecture upon this setting, the design seeks to be absorbed into it. Every volume, every material, and every movement path reflects a philosophy of humility before the natural world.



A Clubhouse That Vanishes Into the Earth
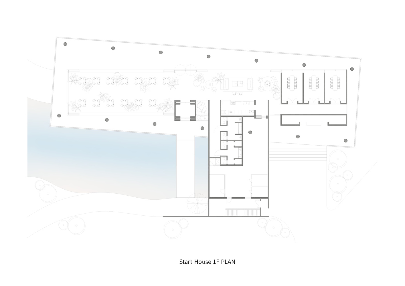
Traditional golf clubhouse architecture typically prioritizes panoramic views of the course and open-plan arrangements. CASCADIA defies this norm. Due to a reconfiguration of the golf course that extended play from 18 to 27 holes without expanding the site boundaries, the clubhouse had to be relocated 500 meters away and 35 meters below the course level. This topographical challenge became the conceptual springboard for a unique vertical layout.

The architecture unfolds downward, adapting to the steep incline. Rather than flattening the mountain, the building flows with it. Visitors descend through a sequence of levels that progressively reveal views and connect them with the course in a way that feels natural and fluid. Movement becomes an experience of discovery, not just transition. Each space is deliberately crafted to lead intuitively to the next.


This vertical strategy transforms a spatial limitation into a design triumph. The building becomes a pathway—an architectural descent through layers of terrain, culture, and serenity—until visitors find themselves at the green’s edge, fully immersed in the golfing experience.

Material Harmony with Nature
Every design decision at CASCADIA reinforces its integration with the landscape. The choice of materials is central to this philosophy. Neutral tones, earthy textures, and timeless finishes ensure the architecture remains visually quiet, allowing the grandeur of nature to dominate.

Ivory-toned artificial marble and travertine create soft, reflective surfaces that absorb the shifting light of the mountains. Corten steel, with its naturally weathered patina, introduces the poetry of time into the structure. On-site-poured terrazzo and custom plaster finishes add tactile richness while preserving continuity across the spaces.
These materials are not used for show—they are selected for their ability to age gracefully and harmonize with the elements. The effect is a spatial environment that feels aged, sacred, and elemental, without sacrificing modern function or luxury.

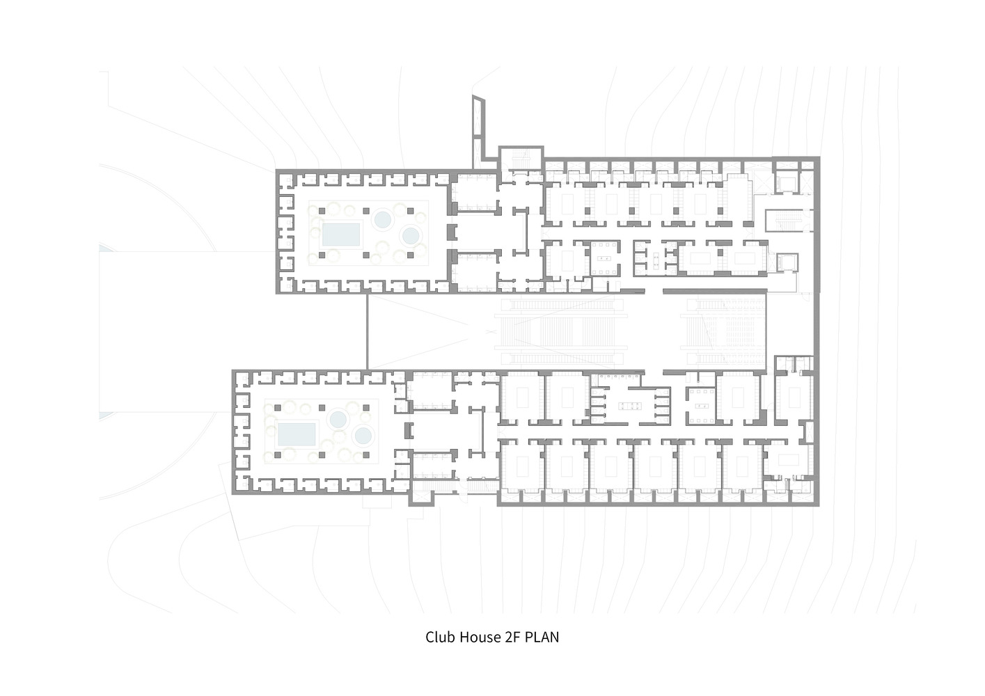
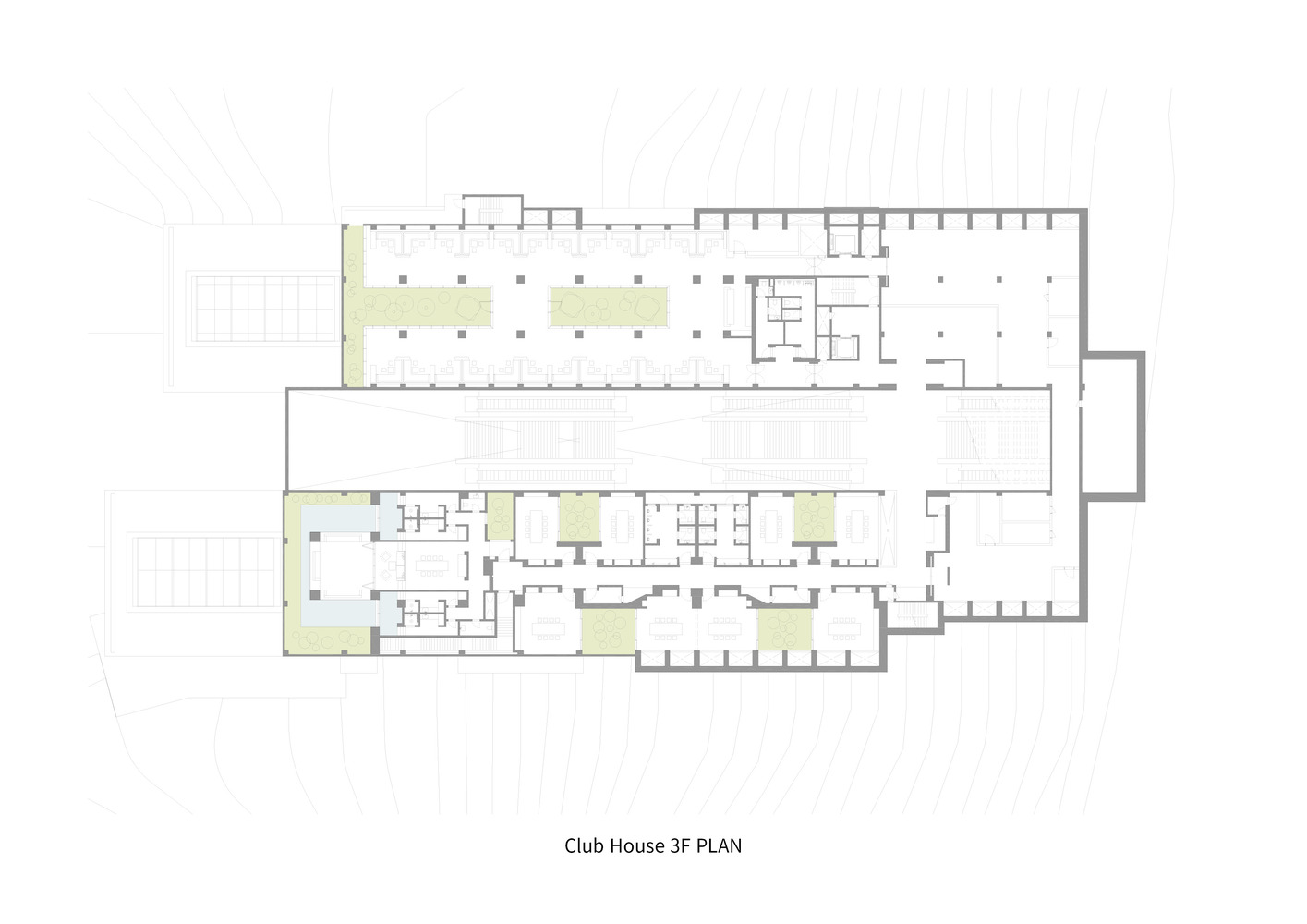
An Immersive, Layered Experience
As visitors enter CASCADIA, the architecture encourages a slowing down. The journey mimics entering a hidden temple, where every level peels back a layer of the landscape and heightens one's sense of presence. The sensory experience is immersive—stone underfoot, filtered light above, and distant water sounds reverberating through the volumes.


The spatial layout is a dialogue between retreat and revelation. Quiet interiors are punctuated with curated views of mountain ridges or water features, offering moments of awe within the calm. The dining areas, lounges, and service spaces are seamlessly integrated into the topography, maintaining intimacy without isolating the user.


CASCADIA is not just a place for golfers; it’s a designed experience rooted in spiritual retreat and environmental reverence. This is golf clubhouse architecture as storytelling—a choreography of silence, material, and terrain.


Redefining Golf Clubhouse Architecture for the Future
In CASCADIA, STRX Architects have reimagined what a golf clubhouse can be. It is not a structure that dominates the site but one that surrenders to it. It embraces the terrain instead of resisting it. This is a bold departure from formulaic clubhouse typologies, offering instead a soulful design that blurs the lines between landscape and architecture, experience and ritual.


By prioritizing vertical movement, contextual materiality, and environmental integration, CASCADIA sets a new benchmark for future projects in golf resort and hospitality design. It reminds us that great architecture doesn’t always announce itself—it reveals itself slowly, with respect, and with purpose.

All Photographs are works of Jang Mi
Popular Articles
Popular articles from the community
Atelier Macri Concept Store Interior Design by CASE-REAL
Atelier Macri store features a "ko" counter, walnut wood details, cork displays, blending retail, gallery, and seamless customer experiences.
An Miên Lumière Cafe by xưởng xép, Ho Chi Minh City, Vietnam
An industrial-inspired café where layered steel and warm light create a dynamic, immersive environment shaped by reflection, depth, and perception.
Treehouse Apartment: A Warm Timber Interior Blending Craft, Play, and Contemporary Living
Warm timber apartment with integrated treehouse, combining natural materials, craftsmanship, and playful design to create a flexible, family-oriented living environment.
On the Brooks House by Monsoon Collective – A Contemporary Kerala Home Rooted in Tradition
Kerala home blending tradition and modernity with water-inspired design, brick architecture, courtyard planning, and sustainable rainwater harvesting strategies.
Similar Reads
You might also enjoy these articles
Bamboo Housing Challenge 2026: Design Affordable, Sustainable Homes Using Bamboo
An international design competition by Bamboo U and IBUKU inviting architects and designers to reimagine affordable housing using bamboo — with the winning design built full-scale in Bali.
Computational Design & Education: Beegraphy Design Awards Introduces 7th Category (Featuring Jiyun's Innovative Approach)
Dive into Beegraphy’s 7th Design Awards category, where computational design meets education to create immersive, interactive learning tools, inspired by Jiyun’s work.
From Parametric Lighting to Urban Furniture: Join the 2nd Workshop in Beegraphy’s Computational Design Series
Dive into Cutting-Edge Design Techniques and Practical Applications with Industry Experts
Introducing Sphere by UNI: Pioneering a New Era in AEC Industry
Unlocking Global Potential with BIM and Agile Management
Explore Architecture Competitions
Discover active competitions in this discipline
The International Standard for Design Portfolios
The Global Benchmark for Architecture Dissertation Awards
The Global Benchmark for Graduation Excellence
Challenge to reimagine the Iron Throne
Comments (0)
Please login or sign up to add comments
No comments yet. Be the first to comment!