CEPT University Architecture: A Visionary Design by CCBA Designs
The article explores the innovative architectural design of CEPT University's new academic block by CCBA Designs, blending tradition and modernity.
Located in Ahmedabad, India, CEPT University has long been a symbol of progressive education and architectural innovation. One of the most recent and impressive additions to this esteemed institution is the CEPT University Foundation Hall, Lecture Hall, and Kund, designed by the renowned firm CCBA Designs. Under the leadership of Prof. Christopher Benninger, this architectural masterpiece reflects a unique blend of modernist design, contextual sensitivity, and sustainable practices.


The Concept Behind the CEPT University Foundation Hall
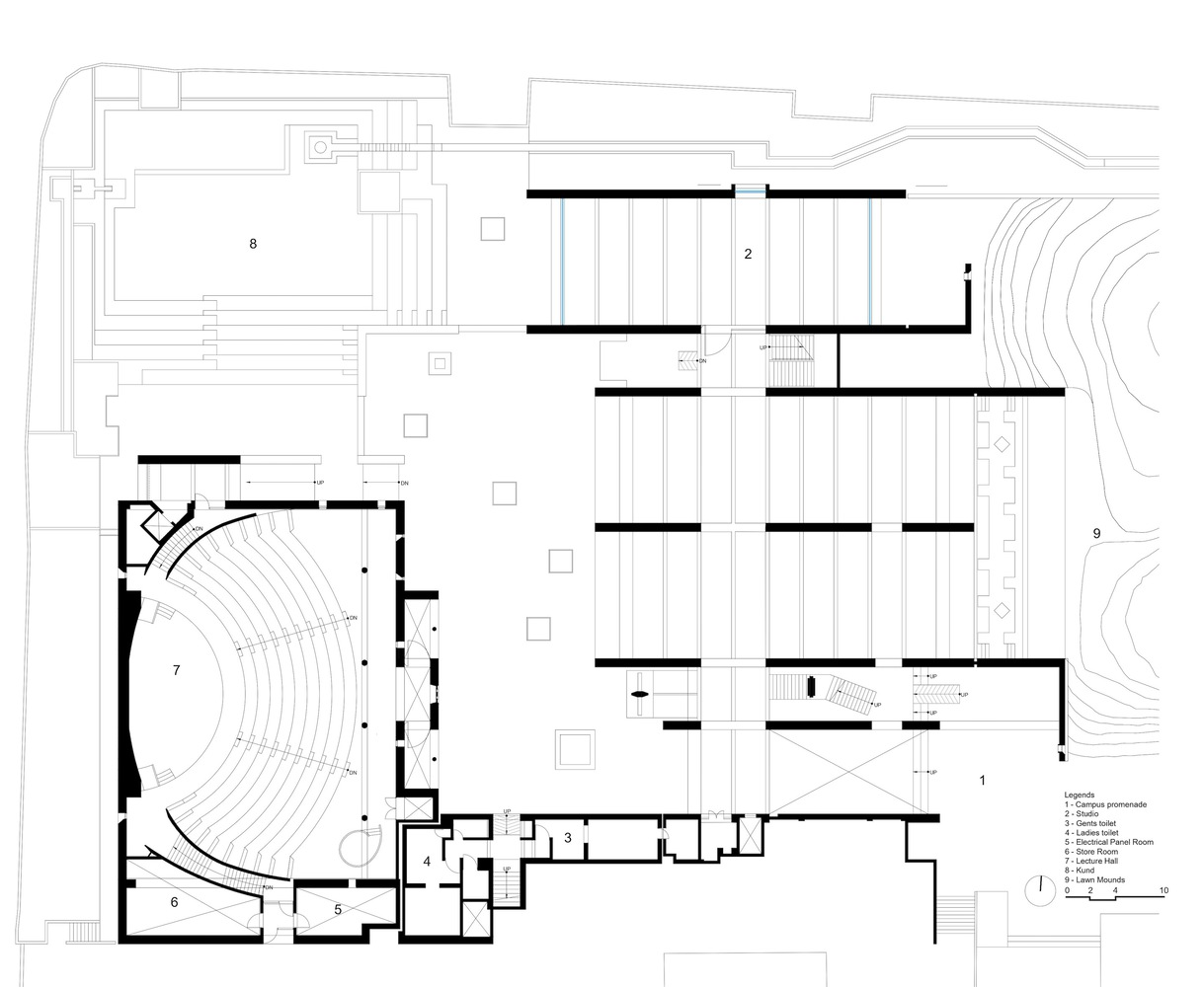
The new academic block at CEPT University comprises three core elements: The Foundation Center, the Lecture Hall, and the Kund. These structures form an interconnected hub for students, fostering a dynamic learning environment. The Foundation Hall, strategically positioned adjacent to the School of Architecture, reinforces the cultural continuity of the campus's existing architectural language, creating a harmonious blend between past and present design traditions.


The Foundation Center
The Foundation Center is a two-story building designed to accommodate six studios and six classrooms for nearly 300 students. The design continues the celebrated open-plan layout typical of CEPT University’s architectural identity. Using exposed brick and concrete, the material palette connects with the modernist architectural language prevalent in Ahmedabad. The building’s layout, with staircases at both ends leading to the upper studios, addresses the harsh local climate by incorporating deep volumes that reduce direct heat exposure. The result is a functional, yet visually engaging space that celebrates the natural environment and sustainable design.
Sustainable Design: Using Local Materials and Natural Light
The Foundation Center stays true to Ahmedabad’s architectural heritage by incorporating exposed concrete jack arches, which reflect traditional design motifs. The integration of skylights and frosted glass flooring further enhances the connection with nature by allowing ample natural light to permeate the space, reducing energy consumption and creating a vibrant interior.


The Lecture Hall: A Modern Auditorium for 450 Students
The Lecture Hall is a key feature of the new CEPT University architecture. Designed as a single-story auditorium, it can comfortably seat up to 450 students. The interior design, conceived by Ismet Khambatta’s Design Workshop, utilizes warm wooden finishes that contrast beautifully with the structure's bold concrete forms. The use of colored glass for the boxy openings enhances the natural lighting, creating a colorful interplay of light and shadow within the space, and fostering a stimulating atmosphere for learning.


The Kund: Reviving Traditional Architecture
One of the most unique aspects of the new CEPT University Architecture is the Kund—an open-air amphitheater and student activity center. This dual-purpose space functions as a student gathering area throughout the year, but during the monsoon, it transforms into a rainwater harvesting pit, mimicking traditional Amdavadi step wells. The Kund serves a vital environmental function, collecting water from the campus to recharge the groundwater, showcasing a perfect blend of modern architecture and traditional Indian design.


Murals: Artistic Expression in CEPT University Architecture
As a tribute to both classical and modern architecture, Prof. Benninger has incorporated several murals within the new academic block. Cast in situ on the concrete ceilings, these murals serve as personal notes from the architect to the students. Among the murals, you'll find representations of Le Corbusier’s 'Modulor Man' and Benninger’s own 'Principles of Intelligent Urbanism', providing visual reminders of the profound connection between architecture, urban planning, and human proportion.


A Masterpiece in CEPT University Architecture
The new academic block at CEPT University is more than just a functional space; it is an architectural marvel that respects and enhances the cultural and environmental legacy of Ahmedabad. The careful selection of materials, the integration of sustainable design elements, and the innovative use of space come together to create a timeless piece of CEPT University Architecture. This new block not only supports the academic needs of students but also reinforces the institution's commitment to creating spaces that reflect both the past and the future of architectural thought.
With its combination of modernism, sustainability, and cultural sensitivity, the CEPT University Foundation Hall, Lecture Hall, and Kund stands as a testament to the vision of Prof. Christopher Benninger and the legacy of CCBA Designs. It is a space that encourages learning, collaboration, and a deep connection to the architectural traditions that have shaped this iconic campus.



All photographs are work of Ashish Bhonde, Ramprasad Akkisetti