Contemporary Islamic Architecture: The Diwan Pavilion at the University of Alberta Botanic Garden
Explore the Diwan Pavilion, a prime example of contemporary Islamic architecture blending tradition with modern design in Alberta.
The Diwan Pavilion, designed by AXIA Design Associates, Arriz + Co., and Kasian Architecture Interior Design & Planning, is a stunning example of contemporary Islamic architecture. Situated within the University of Alberta Botanic Gardens, this year-round pavilion is the final addition to the 4.8-hectare Aga Khan Garden in Alberta. The pavilion serves as a multi-functional space that complements the garden's contemporary interpretation of Islamic landscape architecture in a northern climate.



Design Inspiration and Concept
Chahar Bagh Garden Typology
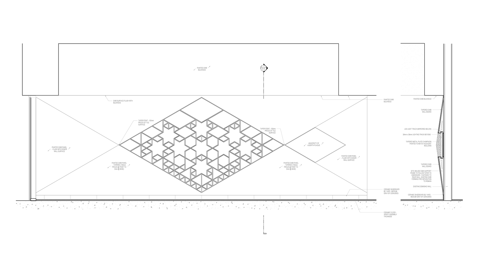
The design team's research began with the Chahar Bagh garden typology, a key inspiration for the Aga Khan Garden. This typology, commonly used in Mughal gardens, influenced the pavilion's function, scale, and detailing. The pavilion embodies the geometric patterns, surfaces, and screens that are characteristic of traditional Islamic building arts, enriching the visitor experience.



Historical and Cultural Significance
The term "diwan" implies a space for meeting, cultural exchange, and celebration. The pavilion's design reflects this by integrating traditional principles with contemporary architecture, creating a space that resonates with the garden's heritage and extends its themes.



Architectural Features
Integration with the Garden
The Diwan Pavilion is designed to be the only year-round facility at the University of Alberta Botanic Garden. Its horizontal form hovers along the southern edges of the garden, providing shade and shelter while offering uninterrupted views into the main hall and the woodland forest beyond. The pavilion lies symmetrical to the garden’s north-south axis, marking the garden's edge with the forest.



Material Selection and Design
The pavilion’s design features contemporary materials and techniques while adhering to traditional Islamic architectural principles. The use of EQUITONE, Caesar Stone, Cera Gres, Front Tek Extruded Porcelain Facade, and Metal Sales Manufacturing Corp. materials ensures durability and aesthetic appeal. The architectural form integrates seamlessly with the scale of the surrounding garden elements.



Functional Spaces
Multi-Use Functionality
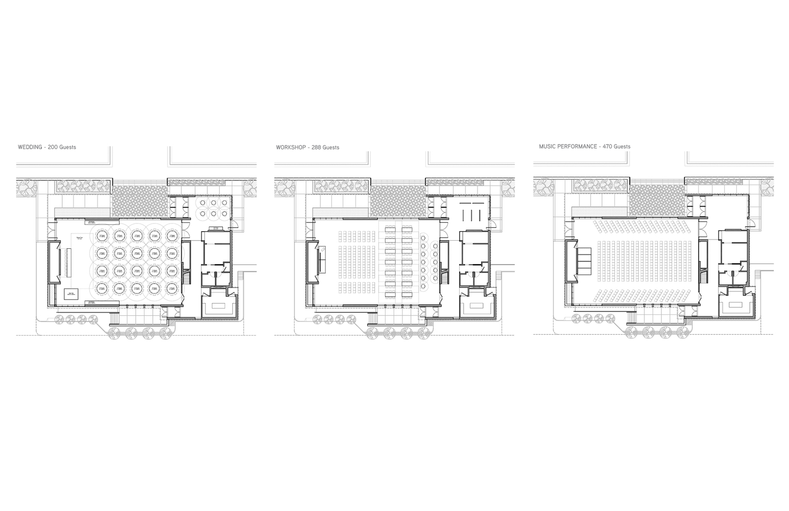
The Diwan Pavilion includes a large event space, servery, coat check, washrooms, and universal access to a rooftop terrace that offers panoramic views of the garden. This multi-functional space is designed to host performances, conferences, workshops, exhibitions, and weddings. The architectural design balances the formal garden context with the pavilion’s internal function, creating a well-serviced public room.



Interior Design
The pavilion’s interior design features an array of geometric patterns and screens, enhancing the cultural and aesthetic experience. The space is designed to foster intellectual interaction, cultural exchange, and celebration, making it a beacon of gathering and a home for the arts.



Sustainability and Environmental Considerations
Responsive Design
The pavilion’s design is responsive to its garden settings, programmatic requirements, and the northern Alberta context. The sizeable overhang provides shade and reduces solar heat gain, while the building’s orientation maximizes natural light and views.



The Diwan Pavilion at the University of Alberta Botanic Garden is a prime example of contemporary Islamic architecture. It blends traditional design principles with modern materials and techniques, creating a space that is both functional and aesthetically pleasing. The pavilion serves as a symbol of cultural heritage, intellectual interaction, and environmental sensitivity, making it a significant addition to the Aga Khan Garden and the broader architectural landscape.


All photographs are work of Michael Manchakowski
Popular Articles
Popular articles from the community
Flamboyant House by Juliana Camargo + Prumo Projetos
Modern Brazilian house integrating existing tree, pool, and volumes with glass, wood, and transitional spaces blending interior, exterior, and landscape seamlessly.
The Ken Roberts Memorial Delineation Competition (Krob)
As the most senior architectural drawing competition currently in operation anywhere in the world, it draws hundreds of entries each year, awarding the very best submissions in a series of medium-based categories.
Treehouse Apartment: A Warm Timber Interior Blending Craft, Play, and Contemporary Living
Warm timber apartment with integrated treehouse, combining natural materials, craftsmanship, and playful design to create a flexible, family-oriented living environment.
An Miên Lumière Cafe by xưởng xép, Ho Chi Minh City, Vietnam
An industrial-inspired café where layered steel and warm light create a dynamic, immersive environment shaped by reflection, depth, and perception.
Similar Reads
You might also enjoy these articles
The Ken Roberts Memorial Delineation Competition (Krob)
As the most senior architectural drawing competition currently in operation anywhere in the world, it draws hundreds of entries each year, awarding the very best submissions in a series of medium-based categories.
Waterfront Redevelopment and Urban Revitalization in Mumbai: Forging a New Dawn for Darukhana
A transformative waterfront redevelopment project reimagining Darukhana’s shipbreaking heritage into an inclusive urban future.
OUT-OF-MAP: A Call for Postcards on Feminist Narratives of Public Space
Rhizoma Design and Research Lab invites artists, designers, architects, researchers, and students to reflect on how feminist perspectives can reshape public space. Selected works will be exhibited in Barcelona, October 2026. Submissions open until 15 April 2026.
Documentation Work on Buddhist Wooden Temple
Architectural syncretism and cultural hybridity: A comparative study of the Buddhist temples in Chattogram Hill tracks
Explore Architecture Competitions
Discover active competitions in this discipline
The International Standard for Design Portfolios
The Global Benchmark for Architecture Dissertation Awards
The Global Benchmark for Graduation Excellence
Challenge to reimagine the Iron Throne
Comments (0)
Please login or sign up to add comments
No comments yet. Be the first to comment!