Discovering the Marvel of One Za’abeel Tower Dubai Architecture
This article explores One Za’abeel Tower in Dubai, showcasing its architectural innovation, design features, and impact on the city's skyline.
Dubai, a city synonymous with architectural wonders and sky-high aspirations, welcomes a new icon to its skyline - the One Za’abeel Tower. Designed by the world-renowned Nikken Sekkei, this mixed-use development is not just a building but a landmark that promises to redefine luxury, elegance, and innovation in urban living.


Introduction to One Za’abeel Tower's Architectural Brilliance
One Za’abeel stands majestically at the gateway to central Dubai, embodying a blend of sophisticated design and architectural ingenuity. Its two towers, connected by the awe-inspiring LINK, offer not just panoramic views of the city but a testament to the possibilities of modern engineering and design.


The Vision Behind the Design
The project, brought to life by Nikken Sekkei following an international competition in 2014, is a large-scale mixed-use development that integrates offices, hotels, residences, and commercial spaces. Its location at the entrance to Dubai’s financial hub makes it a beacon of luxury and innovation.


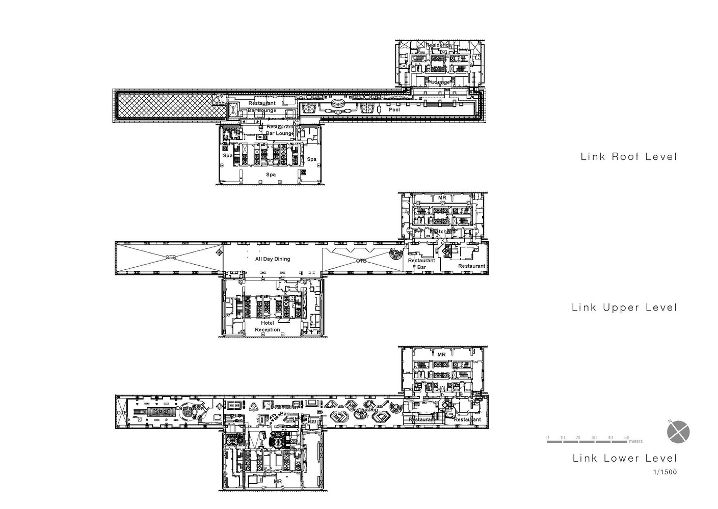
The Structural Marvel of THE LINK
A defining feature of One Za’abeel Tower is THE LINK, an engineering marvel that connects the two towers 100 meters above the ground. This architectural feat not only offers unmatched views but also serves as a symbol of connectivity and ingenuity.


Exploring the Architectural Features of One Za’abeel Tower
Facade Design and Sustainability
The tower’s exterior is a masterpiece of design and functionality. With glass fins and white dots that enhance solar shading, the facade is a dynamic interplay of light and shadow, providing depth and reducing the indoor environment's heat gain.


Structural Ingenuity
The steel-and-concrete composite structure of the towers optimizes floor space while minimizing column dimensions. THE LINK itself is a testament to structural innovation, with a diagrid pattern that enhances its stability and allows for a column-free interior.


The Significance of One Za’abeel in Dubai’s Skyline
One Za’abeel Tower is more than just a building; it's a fresh perspective on Dubai's skyline. Positioned at the gateway from Dubai International Airport to the city center, it adds a new dimension to the architectural narrative of the city.

Bridging the Divide with Innovative Design
The project’s unique location, bisected by a highway, and its solution in the form of THE LINK, showcase a forward-thinking approach to urban design and connectivity.

A New Symbol of Luxury and Innovation
With features like the One&Only’s first vertical resort, Michelin-starred restaurants, and a rooftop infinity pool, One Za’abeel is set to become a landmark of luxury and elevated living experiences.

A Testament to Architectural Innovation
One Za’abeel Tower, with its seamless blend of functionality, design, and innovation, is a testament to Dubai's ambition and the architectural prowess of Nikken Sekkei. It stands not just as a building, but as a landmark that promises to inspire and awe for generations to come.

All photographs are work of Koji Horiuchi
Popular Articles
Popular articles from the community
Flamboyant House by Juliana Camargo + Prumo Projetos
Modern Brazilian house integrating existing tree, pool, and volumes with glass, wood, and transitional spaces blending interior, exterior, and landscape seamlessly.
A Contemporary Take on Iranian Residential Architecture
A modern interior design in Mashhad that reinterprets brick, light, and spatial flow to create a warm, contemporary residential architecture.
Treehouse Apartment: A Warm Timber Interior Blending Craft, Play, and Contemporary Living
Warm timber apartment with integrated treehouse, combining natural materials, craftsmanship, and playful design to create a flexible, family-oriented living environment.
On the Brooks House by Monsoon Collective – A Contemporary Kerala Home Rooted in Tradition
Kerala home blending tradition and modernity with water-inspired design, brick architecture, courtyard planning, and sustainable rainwater harvesting strategies.
Similar Reads
You might also enjoy these articles
Top 15 Architecture Competitions to Enter in 2026
From student-friendly idea competitions to prestigious international awards, here are the best architecture competitions open for entries in 2026. Updated regularly.
DIY & Engineering in Computational Design : Enter the BeeGraphy Design Awards
Showcase Your Creativity with Computational Design and Open Source Projects

Innovative Design Solutions: Award-Winning Projects from Recent Architecture Competitions
Exploring award-winning architectural projects shaping the future of design, sustainability, and community.
Explore Architecture Competitions
Discover active competitions in this discipline
The International Standard for Design Portfolios
The Global Benchmark for Architecture Dissertation Awards
The Global Benchmark for Graduation Excellence
Challenge to reimagine the Iron Throne
Comments (0)
Please login or sign up to add comments
No comments yet. Be the first to comment!