Eco-Friendly Architecture in Bandung: The Tanulo Coffee Project by Simpul Studio
This article explores Tanulo Coffee by Simpul Studio, showcasing its commitment to eco-friendly architecture and community engagement in Bandung, Indonesia.
In the heart of Bandung, Indonesia, nestled within the urban sprawl of the Mekar Wangi area, lies a testament to innovative eco-friendly architecture – Tanulo Coffee. Conceived and brought to life by the visionary minds at Simpul Studio in 2022, this project not only serves as a gathering spot for coffee enthusiasts but also stands as a beacon of sustainable design and environmental stewardship.


The Vision Behind Tanulo Coffee
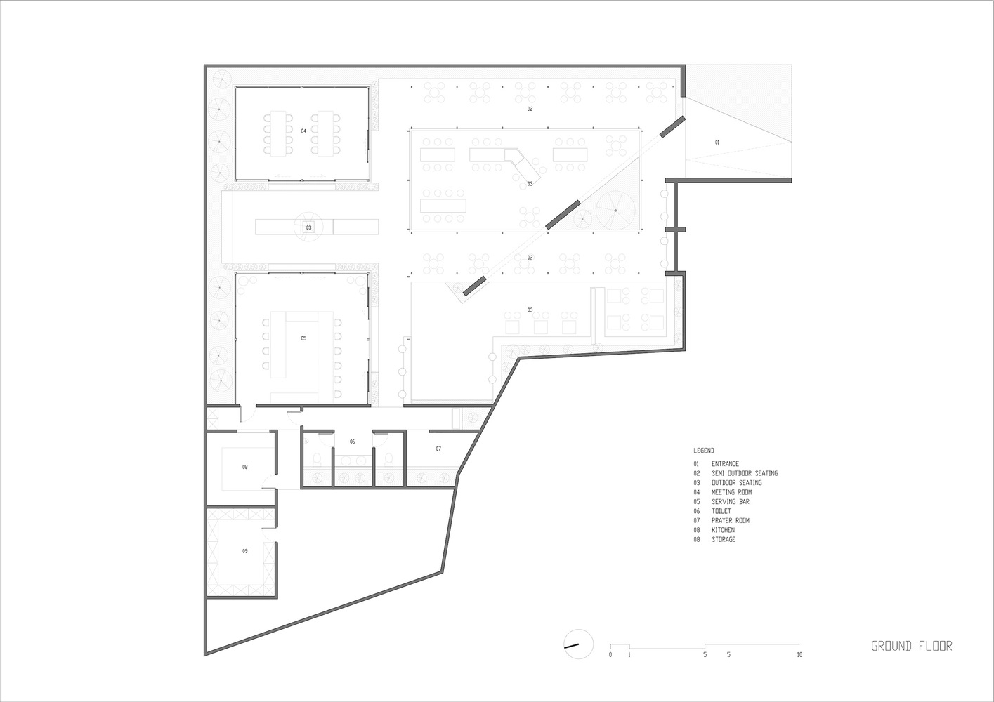
Tanulo Coffee was established with the ambition to harmonize with the ongoing urban development while creating a serene oasis in a bustling neighborhood. With a strategic placement in a residential area, this coffee shop is an architectural marvel that spans an area of 530 m², offering visitors a unique experience that starts right from the entrance and unfolds as they move towards the main building.



The Architectural Concept
The core architectural concept revolves around simplicity, functionality, and sustainability. The main building, designed with a high ceiling and equipped with a skylight, bathes the interior in natural light, minimizing the dependency on artificial lighting during daytime hours. The extensive use of glass doors facilitates a seamless interaction between the interior and exterior spaces, further emphasizing the connection with nature.



Material Choices and Sustainability
Simpul Studio made deliberate choices in materials to underline the project's eco-friendly ethos. The use of natural andesite stone and rough cement plaster not only adds to the aesthetic appeal but also supports the tropical design concept integral to the Tanulo building. The steel frame construction system was chosen for its durability and minimal environmental impact, showcasing a commitment to sustainable building practices.

Landscaping and Outdoor Spaces
A significant portion of the design effort was dedicated to landscaping and the integration of outdoor and semi-outdoor seating areas. These spaces are designed to maximize natural ventilation and lighting, thus contributing to the overall energy efficiency of the building. The landscaping is meticulously planned to include green areas that surround the building, offering visitors a tranquil environment and enhancing the biodiversity of the urban locale.


Community and Interaction
The layout of Tanulo Coffee encourages community interaction and engagement. From the strategically placed children's play area to the communal seating arrangements, every aspect of the design considers the social dynamics of its visitors. The coffee shop thus becomes not just a place for enjoying a cup of coffee but a venue for community building and social exchange.
Tanulo Coffee by Simpul Studio is a prime example of eco-friendly architecture in Bandung, Indonesia. Through innovative design, sustainable material choices, and a focus on community, it represents a forward-thinking approach to urban development. Projects like these are crucial in the fight against environmental degradation and in promoting a more sustainable future for our cities.
In embracing eco-friendly architecture, Simpul Studio has created a space that is not only aesthetically pleasing but also environmentally responsible and socially inclusive. Tanulo Coffee stands as a model for future projects, demonstrating that architecture can indeed make a difference in the world.



All the photographs are work of Billy Prayoga
Popular Articles
Popular articles from the community
A Contemporary Take on Iranian Residential Architecture
A modern interior design in Mashhad that reinterprets brick, light, and spatial flow to create a warm, contemporary residential architecture.
Inverted Architecture Installation by Studio Link-Arc: Exploring the Intersection of Architecture and Living Organisms
Inverted Architecture Installation by Studio Link-Arc blends mycelium, sustainability, inverted design, ecological cycles, and urban adaptive architecture in Shenzhen.
Solar Steam: A Climate-Responsive Architecture That Redefines the Monument
A climate-responsive memorial architecture that transforms heat, decay, and time into a living system reflecting humanity’s ecological impact.
Fifth NRE Jazz Club – De Bever Architecten: Eindhoven’s Revitalized Cultural Hub
Historic gas factory transformed into Fifth NRE Jazz Club blending modern sustainability, jazz culture, dining, and heritage architecture seamlessly.
Similar Reads
You might also enjoy these articles
Architectural Competition: Create a Luxury Waterfront Community in the UAE!
Mira Developments announces an open competition for the pre-concept design of Mira Coral Bay in Ras Al Khaimah, UAE
Parametric Design: What Can You Learn from the 1st Workshop of Beegraphy?
Discover the Fundamentals and Advanced Techniques of Parametric Design
Feast of flight factory
A new ecological order with sustainable food resources-insects
Beyond Blueprints : How Architecture Presentation Boards Define The Design Narratives?
Unveiling the Art and Strategy Behind Architectural Storytelling
Explore Architecture Competitions
Discover active competitions in this discipline
The International Standard for Design Portfolios
The Global Benchmark for Architecture Dissertation Awards
The Global Benchmark for Graduation Excellence
Challenge to reimagine the Iron Throne
Comments (0)
Please login or sign up to add comments
No comments yet. Be the first to comment!