Energia de Portugal Headquarters by ELEMENTAL
The Energia de Portugal Headquarters by ELEMENTAL redefines sustainable office building design through energy efficiency, public integration, and human-centered workspaces.
Sustainable office building design is redefining urban architecture, creating spaces that balance environmental efficiency, public integration, and user experience. The Energia de Portugal Headquarters, designed by ELEMENTAL, is a prime example of this approach, blending sustainability with civic engagement in the heart of Lisbon. The 10,950-square-meter headquarters merges architectural innovation with environmental consciousness, integrating natural energy strategies, public spaces, and human-centered work environments.




A Dynamic Urban Response
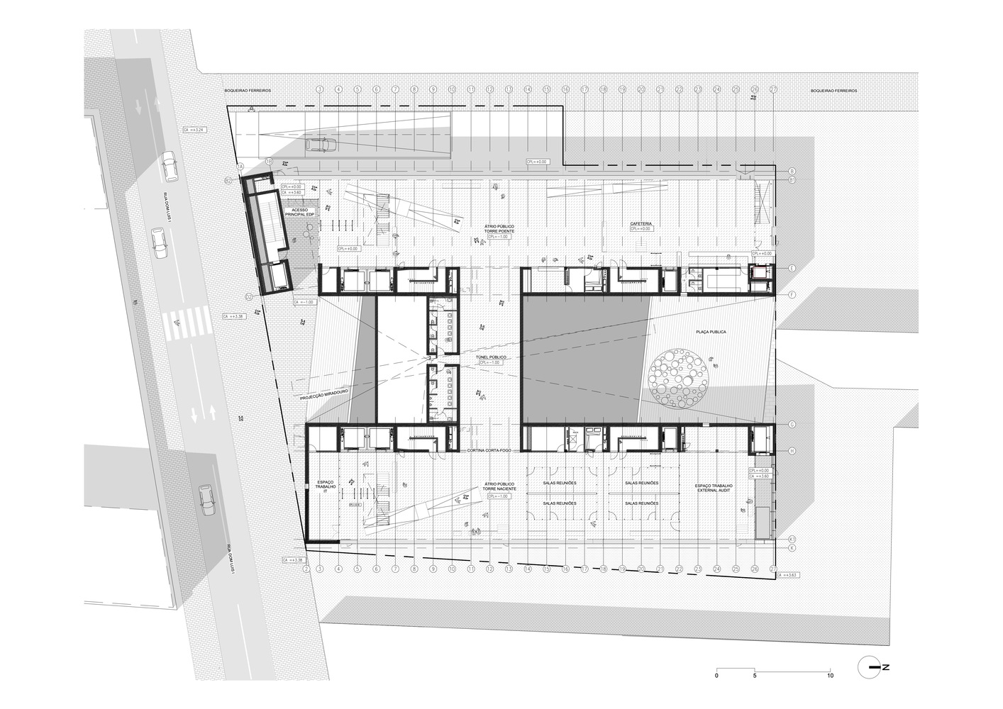
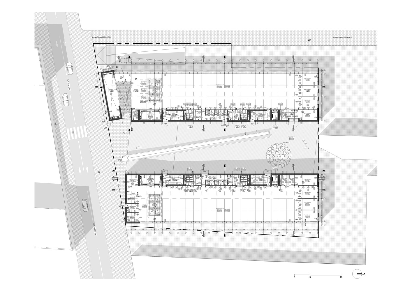
The site presented a complex challenge—balancing the continuity of public space with the need for a unified building. The masterplan required an uninterrupted pedestrian flow from the hills to the river, necessitating a split structure composed of two parallel volumes. To maintain functionality, these volumes had to be connected, creating an inherent contradiction between openness and cohesion.



ELEMENTAL resolved this by folding the public ground plane, forming a slight slope that maintains pedestrian continuity while subtly linking the two building volumes. This innovative approach allows the structure to function as a cohesive whole while preserving the visual and physical flow of the cityscape.



Maximizing River Views with Architectural Strategy
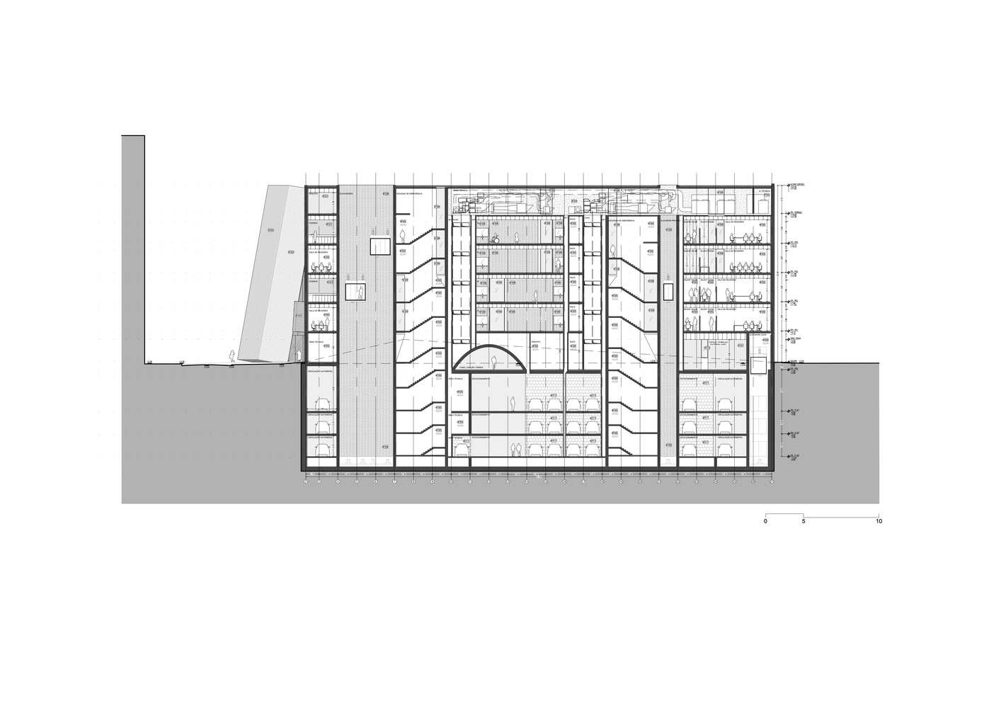
Situated in Lisbon’s second urban row, the site lacked direct access to the river. While the masterplan encouraged continuity along the north-south axis, an adjacent building obstructed pedestrian-level views of the Tagus River. In response, ELEMENTAL introduced a cantilevered volume resting on the sloped ground, elevating key spaces above the neighboring structures to establish a direct visual connection with the riverfront.



The result is a dynamic interplay of mass and void, where the building not only respects its surroundings but also redefines them. The public square at the core of the development is intentionally left free of private access points, ensuring it remains an open and democratic urban space rather than a corporate extension.



Integrating Sustainability with Architectural Identity
Sustainability is deeply embedded in both the building’s form and function. The public square was conceptualized as a carved monolith, utilizing thermal mass to regulate indoor temperatures naturally. This approach minimizes energy consumption while enhancing the civic presence of the structure.


The outer façades introduce a balance between environmental performance and human comfort. A deep grid of linear elements serves as a brise-soleil system, reducing direct sun exposure and mitigating the greenhouse effect. The recessed glazing further enhances passive cooling strategies, creating an office environment that prioritizes both efficiency and well-being.


Inside, the design encourages sustainable behavior through the integration of "inviting stairs." These staircases are designed for convenience, making walking a natural alternative to elevators. By promoting movement within the building, the design reinforces the idea that sustainability is not just about reducing energy consumption but also about leveraging human energy.


A Workplace for the Future
Beyond energy efficiency, the headquarters embodies a new vision for workplace design. Recognizing that offices are where people spend most of their time, ELEMENTAL adopted a humanistic approach, ensuring that spaces support a diverse range of work modes.



The spatial organization follows a double-entry matrix, accommodating both individual and collective work in formal and informal settings. From conventional desks to collaborative lounges, from structured meeting rooms to leisure spaces, the layout ensures accessibility to all. No workspace is more than a single floor away from these amenities, reinforcing inclusivity and ease of movement.



A rooftop gym and a ground-level café further enhance the work-life balance, demonstrating that sustainable office building design extends beyond energy savings to encompass user experience and well-being.


A New Standard in Sustainable Office Architecture
The Energia de Portugal Headquarters sets a new benchmark in sustainable office building design. By merging environmental strategies with urban integration and human-centric planning, ELEMENTAL has created more than just a corporate headquarters—it has shaped a model for future workplaces that harmonize with their city, their users, and the environment.



All Photographs are works of Francisco Nogueira
Popular Articles
Popular articles from the community
A Contemporary Take on Iranian Residential Architecture
A modern interior design in Mashhad that reinterprets brick, light, and spatial flow to create a warm, contemporary residential architecture.
Treehouse Apartment: A Warm Timber Interior Blending Craft, Play, and Contemporary Living
Warm timber apartment with integrated treehouse, combining natural materials, craftsmanship, and playful design to create a flexible, family-oriented living environment.
Inverted Architecture Installation by Studio Link-Arc: Exploring the Intersection of Architecture and Living Organisms
Inverted Architecture Installation by Studio Link-Arc blends mycelium, sustainability, inverted design, ecological cycles, and urban adaptive architecture in Shenzhen.
Solar Steam: A Climate-Responsive Architecture That Redefines the Monument
A climate-responsive memorial architecture that transforms heat, decay, and time into a living system reflecting humanity’s ecological impact.
Similar Reads
You might also enjoy these articles
Bamboo Housing Challenge 2026: Design Affordable, Sustainable Homes Using Bamboo
An international design competition by Bamboo U and IBUKU inviting architects and designers to reimagine affordable housing using bamboo — with the winning design built full-scale in Bali.
Computational Design & Education: Beegraphy Design Awards Introduces 7th Category (Featuring Jiyun's Innovative Approach)
Dive into Beegraphy’s 7th Design Awards category, where computational design meets education to create immersive, interactive learning tools, inspired by Jiyun’s work.
From Parametric Lighting to Urban Furniture: Join the 2nd Workshop in Beegraphy’s Computational Design Series
Dive into Cutting-Edge Design Techniques and Practical Applications with Industry Experts
Introducing Sphere by UNI: Pioneering a New Era in AEC Industry
Unlocking Global Potential with BIM and Agile Management
Explore Architecture Competitions
Discover active competitions in this discipline
The International Standard for Design Portfolios
The Global Benchmark for Architecture Dissertation Awards
The Global Benchmark for Graduation Excellence
Challenge to reimagine the Iron Throne
Comments (0)
Please login or sign up to add comments
No comments yet. Be the first to comment!