Franklin Village by Sauerbruch Hutton: A Vision of Sustainable Residential Architecture in Mannheim
This article explores Franklin Village’s sustainable residential architecture, transforming a historic military site into a vibrant urban community.
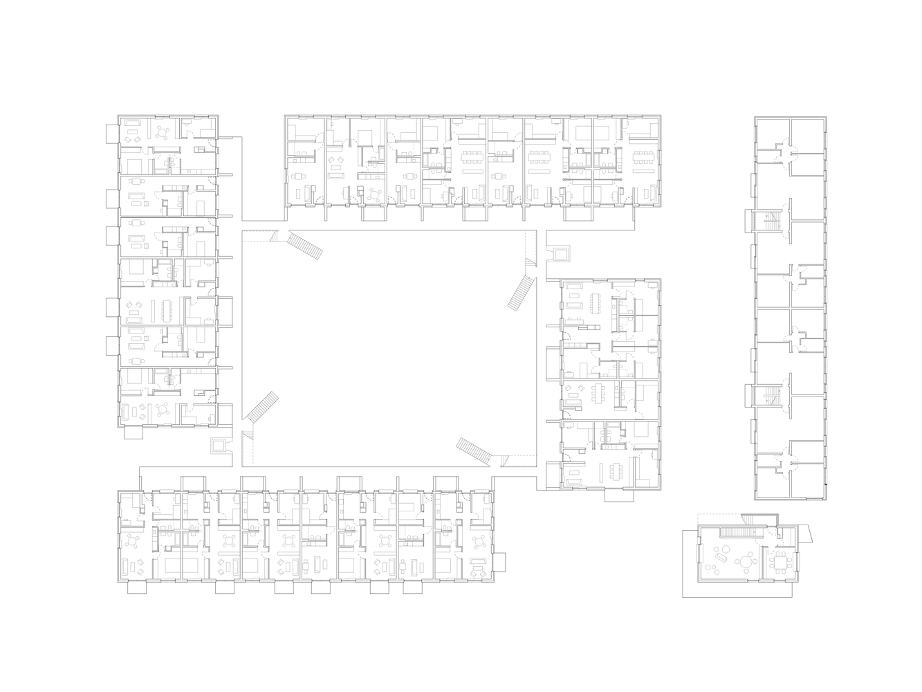
Transforming a Historic Military Site into a Sustainable Residential Community
Franklin Village, designed by Sauerbruch Hutton, is a flagship project of sustainable residential architecture located in the northeast of Mannheim, Germany. This development is part of the larger transformation of Benjamin Franklin Village, a former US Armed Forces housing site built in the 1950s, into a vibrant urban district for approximately 10,000 residents. Surrounded by a vast park landscape, the masterplan integrates work, care, education, cultural, leisure, and local recreational functions, creating a lively, multifunctional neighborhood shaped by sustainability and social integration.



Architectural Design for Social Integration and Diversity
The project emphasizes target group diversity and social inclusivity by offering a wide range of residential typologies. Sauerbruch Hutton’s design introduces four new buildings organized around a shared courtyard, accommodating cluster housing, family units, and compact single apartments. These housing types address varied living needs while promoting affordability and adaptability.



The buildings are connected through suspended, column-free walkways slightly detached from the façades, forming generous terraces that encourage spontaneous interactions and outdoor living. These terraces, accentuated with a vibrant color palette on soffits and bulkheads, function as semi-public “outdoor rooms” that enrich the daily life of residents and foster a strong sense of community.



The Quartiersforum: A Social and Functional Heart
At the center of Franklin Village lies the Quartiersforum, conceived as an “extended living room” for the neighborhood. This communal hub integrates a kitchen, lounge, co-working spaces, workshops, and a rooftop terrace, providing a focal point for social exchange, creativity, and neighborhood solidarity. The Quartiersforum exemplifies how sustainable residential architecture can weave together physical space and social infrastructure to strengthen urban communities.

Timber Construction and Flexibility for Sustainable Living
The architectural approach embraces sustainability through timber frame construction and timber composite floors, ensuring both environmental responsibility and construction efficiency. An existing building on the northeast edge of the site has been renovated and vertically expanded with two new timber-constructed floors, demonstrating a balance between preservation and innovation.


The timber grid system allows remarkable flexibility in floor plans, enabling various apartment layouts tailored to distinct household needs. The design incorporates north-south orientations with reduced depths to optimize natural daylight, improving energy efficiency and interior comfort. By offering multiple apartment sizes and adaptable spatial configurations, the project ensures long-term resilience, allowing future reconfigurations in response to evolving demographic and societal demands.

A Model for Sustainable Urban Redevelopment
Franklin Village stands as a powerful example of how sustainable residential architecture can transform underutilized or historic sites into dynamic, inclusive urban neighborhoods. Sauerbruch Hutton’s design merges architectural innovation, environmental consciousness, and social inclusivity, creating a living environment that addresses both present and future urban challenges. This project not only enriches Mannheim’s architectural landscape but also offers a replicable model for sustainable urban redevelopment across Europe and beyond.

All Photographs are works of Jan Bitter
Popular Articles
Popular articles from the community
The Ken Roberts Memorial Delineation Competition (Krob)
As the most senior architectural drawing competition currently in operation anywhere in the world, it draws hundreds of entries each year, awarding the very best submissions in a series of medium-based categories.
Treehouse Apartment: A Warm Timber Interior Blending Craft, Play, and Contemporary Living
Warm timber apartment with integrated treehouse, combining natural materials, craftsmanship, and playful design to create a flexible, family-oriented living environment.
A Contemporary Take on Iranian Residential Architecture
A modern interior design in Mashhad that reinterprets brick, light, and spatial flow to create a warm, contemporary residential architecture.
On the Brooks House by Monsoon Collective – A Contemporary Kerala Home Rooted in Tradition
Kerala home blending tradition and modernity with water-inspired design, brick architecture, courtyard planning, and sustainable rainwater harvesting strategies.
Similar Reads
You might also enjoy these articles
The Ken Roberts Memorial Delineation Competition (Krob)
As the most senior architectural drawing competition currently in operation anywhere in the world, it draws hundreds of entries each year, awarding the very best submissions in a series of medium-based categories.
Waterfront Redevelopment and Urban Revitalization in Mumbai: Forging a New Dawn for Darukhana
A transformative waterfront redevelopment project reimagining Darukhana’s shipbreaking heritage into an inclusive urban future.
OUT-OF-MAP: A Call for Postcards on Feminist Narratives of Public Space
Rhizoma Design and Research Lab invites artists, designers, architects, researchers, and students to reflect on how feminist perspectives can reshape public space. Selected works will be exhibited in Barcelona, October 2026. Submissions open until 15 April 2026.
Documentation Work on Buddhist Wooden Temple
Architectural syncretism and cultural hybridity: A comparative study of the Buddhist temples in Chattogram Hill tracks
Explore Architecture Competitions
Discover active competitions in this discipline
The International Standard for Design Portfolios
The Global Benchmark for Architecture Dissertation Awards
The Global Benchmark for Graduation Excellence
Challenge to reimagine the Iron Throne
Comments (0)
Please login or sign up to add comments
No comments yet. Be the first to comment!