Griffith Avenue House: A Modern House Extension Blending Heritage and Contemporary Design by Courtney McDonnell Architects
Griffith Avenue House redefines suburban living with a modern house extension, blending 1950s charm and contemporary spatial elegance.
Introduction to Modern House Extension Design
The Griffith Avenue House by Courtney McDonnell Architects in Dublin, Ireland, is a remarkable example of a modern house extension that harmoniously merges the past and present. This project revitalizes a 1950s suburban home by integrating a contemporary two-story rear extension while carefully preserving the original structure. The result is a residence that meets the demands of modern family living while respecting its architectural roots.


Context and Client Vision
In 2021, the clients, having recently relocated from the United States, sought to reimagine their newly acquired Griffith Avenue property. Their vision was to transform the existing house into a dynamic, light-filled home with open-plan living spaces, seamless indoor-outdoor connections, and dedicated zones for entertaining, work, and visiting family.

The brief called for a contemporary expansion that would enhance the house’s functionality without compromising its mid-century character. Courtney McDonnell Architects responded with a modern house extension design that balanced tradition with innovation, creating a home tailored to the evolving needs of its occupants.

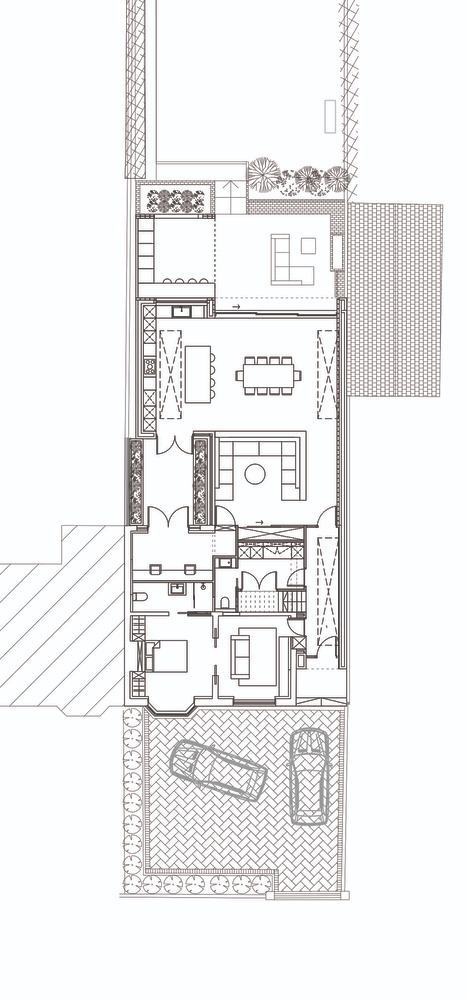
Preserving the Original Structure
The design process began by restoring the front portion of the 1950s house to its original form. The front reception rooms, facing the tree-lined Griffith Avenue, were repurposed into a self-contained guest suite. This decision not only retained the character of the original home but also provided a private retreat for visiting family members.

The reconfiguration included the relocation of the front entrance, which was previously positioned along the side gable. The new entrance, integrated into a sleek side extension, serves as a transitional space that bridges the old and new sections of the home.

The Transitional Extension as a Connecting Element
The side extension, pivotal to the modern house extension concept, acts as a seamless link between the restored original house and the rear contemporary addition. A key feature of this transitional space is a large roof light that floods the hallway with natural light. Exposed timber joists create a captivating interplay of light and shadow, adding warmth and texture to the space.

This extension discreetly conceals access to functional areas such as a coat closet, utility room, WC, and the guest suite. Hidden panel doors maintain a clean, minimalist aesthetic while enhancing spatial efficiency.

The Rear Modern House Extension
Beyond the hallway, a striking white crystal glass door marks the threshold to the modern two-story rear extension. This contemporary addition is constructed with a refined brick façade that complements the suburban setting while introducing a fresh architectural language.

The ground floor of the extension is dedicated to open-plan living, kitchen, and dining areas, designed to foster connectivity and social interaction. Floor-to-ceiling glazing opens the space to the rear garden, creating a fluid transition between the interior and exterior. A carefully positioned courtyard allows natural light to penetrate deep into the heart of the home, ensuring that even the most central spaces feel bright and airy.

Upstairs, the first floor is reserved for a luxurious master suite. This private retreat offers panoramic garden views, emphasizing the project’s overarching theme of blurring boundaries between indoor and outdoor environments.

Materiality and Craftsmanship
The modern house extension celebrates materiality and craftsmanship, with brick, timber, and glass serving as the primary elements. Exposed timber beams throughout the home introduce a sense of warmth and tactility, contrasting beautifully with the crisp white walls and sleek glass details.

The use of brick in the extension establishes a visual dialogue with the original 1950s house while reinforcing durability and longevity. Inside, the natural timber flooring and bespoke joinery further emphasize the architects' commitment to quality materials and timeless design.

Maximizing Natural Light and Visual Flow
One of the defining features of this modern house extension is its emphasis on natural light and visual flow. The insertion of roof lights, internal courtyards, and large glass doors creates a luminous atmosphere, enhancing the perception of space.

The architects thoughtfully curated sightlines throughout the home, allowing residents to experience framed views of the garden from multiple vantage points. This strategic interplay between architecture and landscape amplifies the feeling of openness and tranquility.

Creating Flexible Living Spaces
The modern house extension was conceived to accommodate the evolving needs of a growing family. Open-plan areas promote togetherness and facilitate entertaining, while quieter zones, such as the home office and guest suite, offer privacy when required.

The flexible layout ensures that the house can adapt to various life stages, providing a sustainable living environment for years to come. This future-proof approach reflects the increasing demand for homes that prioritize both functionality and longevity.

Architectural Impact on the Suburban Landscape
Griffith Avenue House stands as a testament to the potential of modern house extension projects within suburban neighborhoods. By retaining the original façade and carefully integrating a contemporary rear addition, the house respects the architectural heritage of Griffith Avenue while setting a precedent for sensitive yet forward-looking residential design.

This project challenges the notion that suburban houses must remain static. Instead, it demonstrates that thoughtful interventions can rejuvenate aging homes, enhancing their performance and aesthetic value while preserving community character.

Griffith Avenue House by Courtney McDonnell Architects exemplifies how a modern house extension can elevate a mid-century home to meet contemporary standards. Through a careful balance of preservation and innovation, this project delivers a family residence that celebrates light, materiality, and spatial fluidity.

The house serves as a beacon of how existing suburban homes can be reimagined for modern living. It offers a blueprint for homeowners seeking to enhance their living environments while respecting the past. This seamless blend of old and new underscores the transformative power of thoughtful architectural interventions in residential design.

All Photographs are works of Peter Molloy, Thomas Walorski
Popular Articles
Popular articles from the community
Louis Malle Cinema: A Limestone Cultural Landmark Revitalizing Community Life in Prayssac
Limestone cinema extension with public forecourt, blending heritage and modern design to create flexible cultural spaces and strengthen community interaction.
Treehouse Apartment: A Warm Timber Interior Blending Craft, Play, and Contemporary Living
Warm timber apartment with integrated treehouse, combining natural materials, craftsmanship, and playful design to create a flexible, family-oriented living environment.
The Ken Roberts Memorial Delineation Competition (Krob)
As the most senior architectural drawing competition currently in operation anywhere in the world, it draws hundreds of entries each year, awarding the very best submissions in a series of medium-based categories.
An Miên Lumière Cafe by xưởng xép, Ho Chi Minh City, Vietnam
An industrial-inspired café where layered steel and warm light create a dynamic, immersive environment shaped by reflection, depth, and perception.
Similar Reads
You might also enjoy these articles
The Ken Roberts Memorial Delineation Competition (Krob)
As the most senior architectural drawing competition currently in operation anywhere in the world, it draws hundreds of entries each year, awarding the very best submissions in a series of medium-based categories.
Waterfront Redevelopment and Urban Revitalization in Mumbai: Forging a New Dawn for Darukhana
A transformative waterfront redevelopment project reimagining Darukhana’s shipbreaking heritage into an inclusive urban future.
OUT-OF-MAP: A Call for Postcards on Feminist Narratives of Public Space
Rhizoma Design and Research Lab invites artists, designers, architects, researchers, and students to reflect on how feminist perspectives can reshape public space. Selected works will be exhibited in Barcelona, October 2026. Submissions open until 15 April 2026.
Documentation Work on Buddhist Wooden Temple
Architectural syncretism and cultural hybridity: A comparative study of the Buddhist temples in Chattogram Hill tracks
Explore Architecture Competitions
Discover active competitions in this discipline
The International Standard for Design Portfolios
The Global Benchmark for Architecture Dissertation Awards
The Global Benchmark for Graduation Excellence
Challenge to reimagine the Iron Throne
Comments (0)
Please login or sign up to add comments
No comments yet. Be the first to comment!