Hangzhou Wulin Art Museum: A New Epoch in Cultural Complex Urban Integration
The Hangzhou Wulin Art Museum by CCTN Design exemplifies cultural complex urban integration, blending art with sustainability in Hangzhou’s dynamic cityscape.
Nestled in the heart of Hangzhou’s Gongshu District, the Hangzhou Wulin Art Museum by CCTN Design emerges as a paragon of cultural complex urban integration. Spanning an impressive area of 489054 m² and completed in 2023, this architectural marvel represents a pivotal moment in blending cultural spaces with the pulsating life of the city.





Designing for Urban Synergy
Architectural Dialogue with the City
Surrounded by a vibrant tapestry of offices, commercial spaces, and residences, the museum is strategically situated to enrich Hangzhou's urban landscape. The architects, led by Youfen Wang, envisioned a structure that not only serves as a bastion for art and culture but also actively engages with its metropolitan surroundings to enhance urban vitality.





Strategic Layout for Maximum Engagement
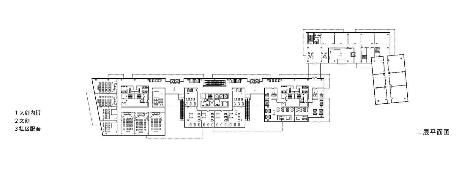
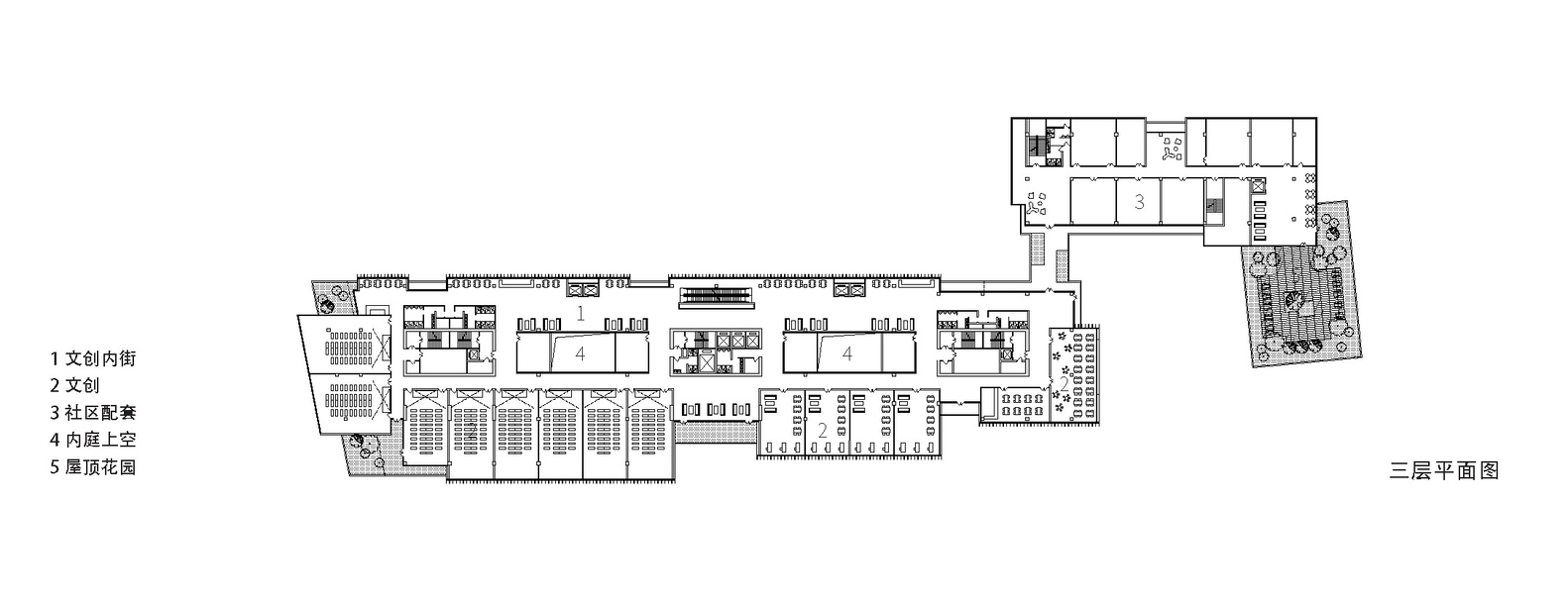
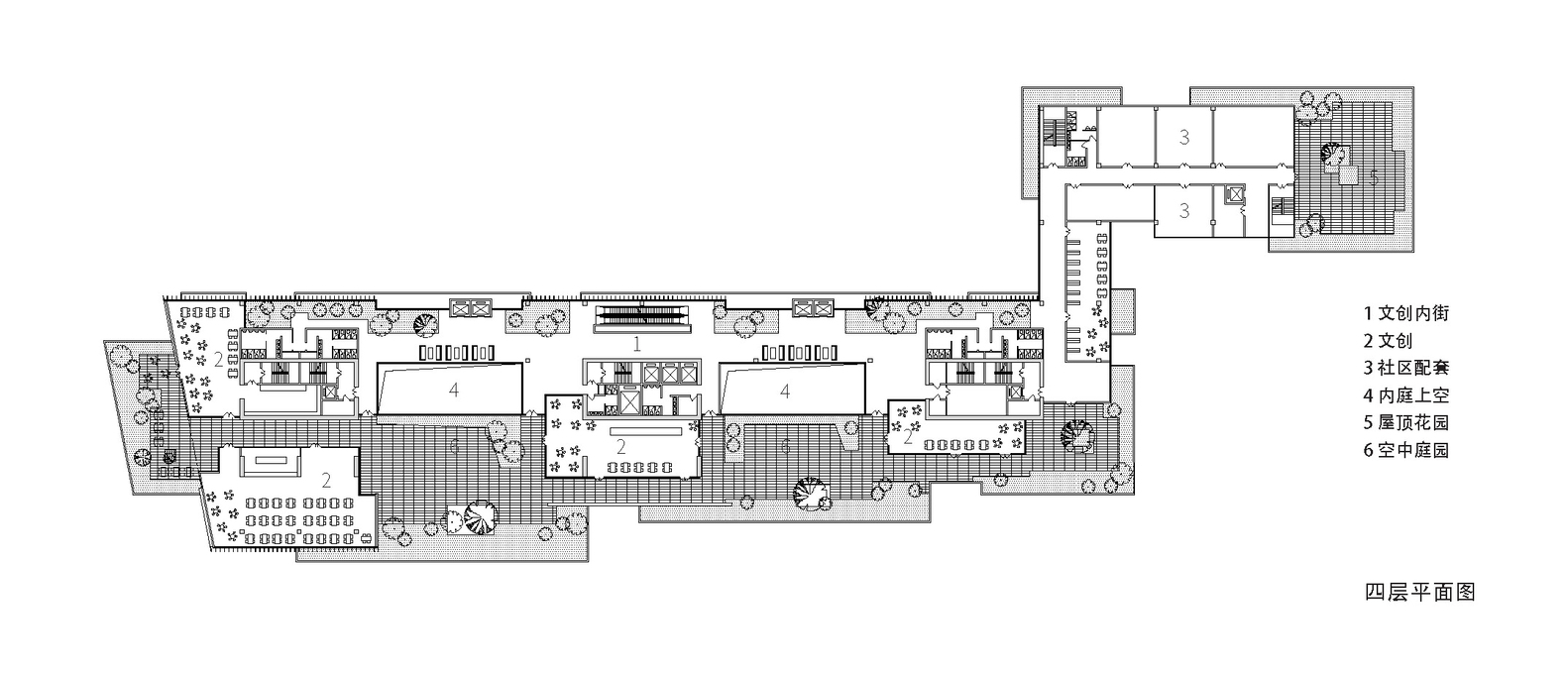
The museum’s design cleverly addresses the challenges posed by its elongated site. By allocating the main building mass towards the north and gradually tapering towards the south, CCTN Design ensures spatial harmony with nearby high-rise structures while fostering an inviting street-level environment. This thoughtful zoning nurtures interactions with local community services and green spaces, promoting a seamless blend of cultural and daily urban activities.





Fostering Public Spaces and Accessibility
Bridging Art with Daily Urban Life
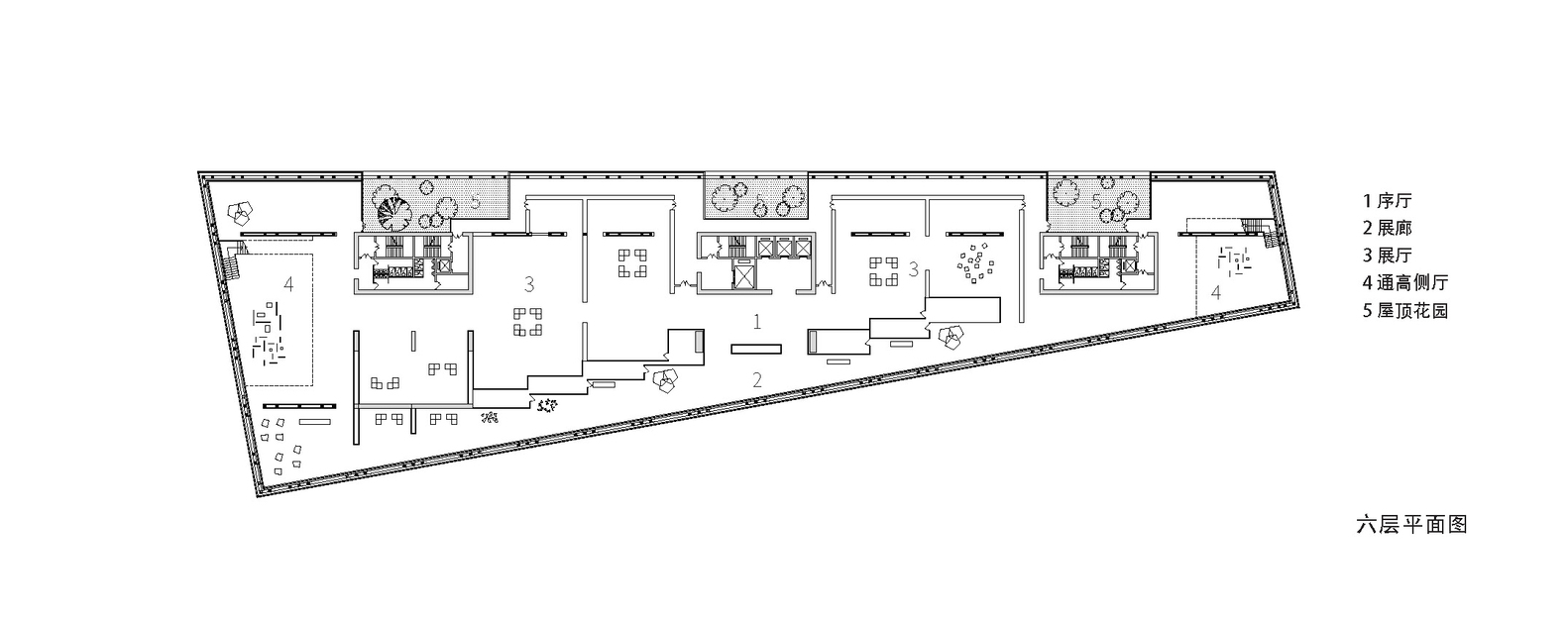
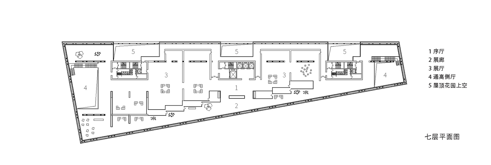
A core objective of the Hangzhou Wulin Art Museum is to make art accessible and integrated with the everyday urban experience. While the art exhibition space is situated in the building’s upper echelons, the lower zones buzz with cultural industry spaces and community services. This distribution not only maximizes the museum’s interaction with the city but also elevates the role of art in public life.





Sky Gardens: A Venue for Urban Connectivity
The introduction of sky gardens acts as a verdant link between the museum’s diverse functional areas. Accessible independently, these spaces are designed to invite the public into the museum’s embrace, offering cultural, creative, and dining experiences that draw a wider audience and enrich the urban fabric.

Embracing Green and Energy-Efficient Solutions
Innovative Architectural Solutions for Sustainability
CCTN Design’s commitment to sustainability is evident in the museum’s orientation and construction techniques. Staggered cantilevered blocks, vertical grilles, and a sophisticated double-layered curtain wall system work in concert to mitigate the effects of direct sunlight, significantly reducing energy consumption and enhancing indoor environmental quality.





Green Roofs and Energy Efficiency
The museum’s green roofs play a crucial role in its energy strategy, offering thermal insulation and supporting the city’s sponge initiative. These features, coupled with the museum’s efficient use of materials and innovative ventilation systems, underscore the project’s dedication to sustainability and its positive contribution to the urban ecosystem.





The Hangzhou Wulin Art Museum as a Model for the Future
The Hangzhou Wulin Art Museum stands as a testament to the power of cultural complex urban integration, showcasing how architecture can serve as a conduit between art, culture, and urban life. Through its innovative design, commitment to sustainability, and dynamic public spaces, the museum not only enriches the cultural landscape of Hangzhou but also sets a new standard for future developments in the realm of cultural architecture.




All photographs are work of Pei Wen
Popular Articles
Popular articles from the community
Atelier Macri Concept Store Interior Design by CASE-REAL
Atelier Macri store features a "ko" counter, walnut wood details, cork displays, blending retail, gallery, and seamless customer experiences.
Louis Malle Cinema: A Limestone Cultural Landmark Revitalizing Community Life in Prayssac
Limestone cinema extension with public forecourt, blending heritage and modern design to create flexible cultural spaces and strengthen community interaction.
A Contemporary Take on Iranian Residential Architecture
A modern interior design in Mashhad that reinterprets brick, light, and spatial flow to create a warm, contemporary residential architecture.
On the Brooks House by Monsoon Collective – A Contemporary Kerala Home Rooted in Tradition
Kerala home blending tradition and modernity with water-inspired design, brick architecture, courtyard planning, and sustainable rainwater harvesting strategies.
Similar Reads
You might also enjoy these articles
The Ken Roberts Memorial Delineation Competition (Krob)
As the most senior architectural drawing competition currently in operation anywhere in the world, it draws hundreds of entries each year, awarding the very best submissions in a series of medium-based categories.
Waterfront Redevelopment and Urban Revitalization in Mumbai: Forging a New Dawn for Darukhana
A transformative waterfront redevelopment project reimagining Darukhana’s shipbreaking heritage into an inclusive urban future.
OUT-OF-MAP: A Call for Postcards on Feminist Narratives of Public Space
Rhizoma Design and Research Lab invites artists, designers, architects, researchers, and students to reflect on how feminist perspectives can reshape public space. Selected works will be exhibited in Barcelona, October 2026. Submissions open until 15 April 2026.
Documentation Work on Buddhist Wooden Temple
Architectural syncretism and cultural hybridity: A comparative study of the Buddhist temples in Chattogram Hill tracks
Explore Architecture Competitions
Discover active competitions in this discipline
The International Standard for Design Portfolios
The Global Benchmark for Architecture Dissertation Awards
The Global Benchmark for Graduation Excellence
Challenge to reimagine the Iron Throne
Comments (0)
Please login or sign up to add comments
No comments yet. Be the first to comment!