Husene i Skogen: A Landmark in Mass Timber Residential ArchitectureHusene i Skogen: A Landmark in Mass Timber Residential Architecture

Husene i Skogen: A Landmark in Mass Timber Residential Architecture

UNI Editorial
UNI Editorial published Story under Architecture on

A New Vision for Sustainable Living in Norway

Husene i Skogen, designed by Helen & Hard, reimagines mass timber residential architecture with an innovative approach to site-sensitive design and sustainable materials. Nestled in the Norwegian landscape, the development consists of six timber-built residential buildings carefully integrated into a steeply sloping terrain. By prioritizing both environmental considerations and human-centered design, the project establishes a new standard for sustainable living.

Article image
Article image

The layout of the buildings follows the natural topography, ensuring that each unit benefits from optimal sunlight, views, and privacy. Positioned in two rows, the rear buildings are elevated above the front, creating a cascading effect that maximizes the connection between residents and the surrounding forested landscape. The residential floors extend over the front of the parking garages, allowing the living spaces to reach ground level while discreetly concealing the parking structure.

Article image
Article image

Structural Innovation with Mass Timber

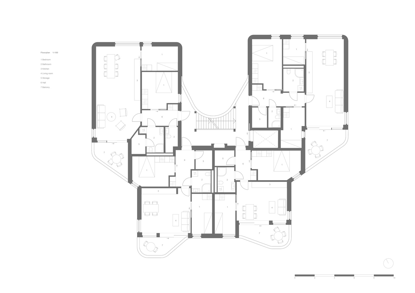
The buildings are constructed using a sophisticated mass timber system, with load-bearing interior walls made of solid timber elements. Floors, roofs, and facades incorporate a timber-frame system that enhances both structural integrity and aesthetic appeal. Prefabricated wall elements, complete with windows and cladding, streamline the construction process while ensuring high levels of precision and quality.

Article image
Article image

The design introduces organic, curved elements in the balcony railings and facade transitions, softening the overall expression of the structures. While the primary climate shell consists of straight surfaces, the crafted detailing of the balconies adds an architectural identity that resonates with the surrounding woodland. The interplay between contemporary mass timber technology and traditional craftsmanship results in a residential complex that is both functional and visually engaging.

Article image
Article image

A Community-Oriented Approach to Urban Living

The name "Husene i Skogen," meaning "The Houses in the Forest," reflects the project's deep connection to nature. The development is located along a protected avenue adjacent to small woodlands, influencing both its architectural character and communal spaces. A key aspect of the project is its integration of shared outdoor amenities that foster a sense of community among residents.

Article image
Article image
Article image

Between the two rows of buildings lies a spacious, sunlit communal area featuring a greenhouse, a cultivation zone, and a shared community house. The community house is strategically positioned within the site's elevation changes, incorporating a glass facade that strengthens its relationship with the outdoors. The landscape design avoids conventional urban elements such as asphalt and curbstones, reinforcing a rural aesthetic that blends seamlessly with the forested surroundings.

Article image
Article image
Article image

Sustainability and Environmental Responsibility

As a mass timber residential project, Husene i Skogen embodies the principles of sustainability and environmental stewardship. Timber construction offers significant carbon sequestration benefits, reducing the project's overall environmental impact. The use of prefabrication not only improves efficiency but also minimizes construction waste and on-site disturbances.

Article image
Article image

Beyond material sustainability, the project's design enhances energy efficiency through passive strategies. The orientation of the buildings ensures optimal solar exposure, reducing reliance on artificial heating and lighting. Natural ventilation and well-insulated timber walls contribute to a comfortable indoor environment with minimal energy consumption.

Article image
Article image

Redefining the Future of Residential Timber Architecture

Husene i Skogen represents a forward-thinking approach to mass timber residential architecture, balancing ecological sensitivity with contemporary living standards. The project demonstrates how timber can be leveraged not just for structural efficiency, but also to create spaces that foster well-being and community connection.

Article image
Article image

By embracing the natural characteristics of its site, integrating sustainable building techniques, and prioritizing shared spaces, Husene i Skogen sets a precedent for future residential developments. As cities worldwide seek greener solutions for housing, this project stands as an inspiring model of how architecture can harmonize with nature while offering high-quality living environments.

Article image
Article image
Article image

All Photographs are works of Sindre Ellingsen 

UNI Editorial

UNI Editorial

Where architecture meets innovation, through curated news, insights, and reviews from around the globe.

Share your ideas with the world

Share your ideas with the world

Write about your design process, research, or opinions. Your voice matters in the architecture community.

Comments (0)

No comments yet. Be the first to comment!

Similar Reads

You might also enjoy these articles

publishedStory1 day ago
The Ken Roberts Memorial Delineation Competition (Krob)
publishedStory3 weeks ago
Waterfront Redevelopment and Urban Revitalization in Mumbai: Forging a New Dawn for Darukhana
publishedStory3 weeks ago
OUT-OF-MAP: A Call for Postcards on Feminist Narratives of Public Space
publishedStory1 month ago
Documentation Work on Buddhist Wooden  Temple

Explore Architecture Competitions

Discover active competitions in this discipline

UNI Editorial
Search in