Innovating Library Architecture Design: The Württemberg State Library Annex
The article explores the innovative design and integration of the Württemberg State Library Annex in Stuttgart by LRO GmbH & Co. KG Freie Architekten BDA.
Library architecture design has evolved significantly over the years, adapting to new technologies, user needs, and environmental considerations. The Württemberg State Library Annex in Stuttgart, Germany, designed by LRO GmbH & Co. KG Freie Architekten BDA, serves as an exemplary model of modern library architecture, combining functionality, aesthetic appeal, and historical respect.




Concept and Urban Integration
The Württemberg State Library Annex was conceived as part of a broader urban development strategy. Located at the corner of Ulrichstraße and Konrad-Adenauer-Straße, the new building extends the pedestrian pathway from the Staatsgalerie to the State Archives, enhancing urban connectivity and access.




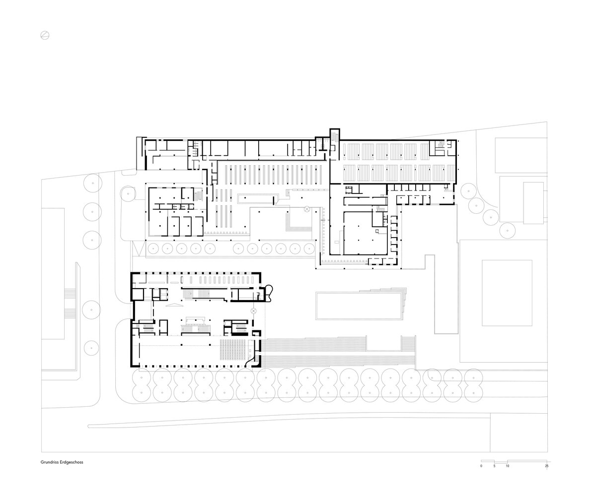
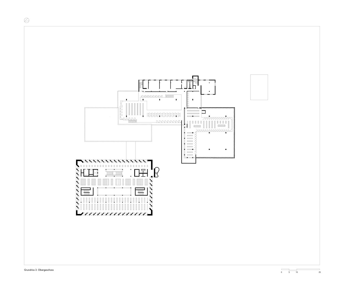
Design Strategy and Spatial Planning
The annex stands as a cubic volume, maintaining the ridge height of the adjacent Wilhelmspalais and allowing for a pedestrian path between the new and old buildings. This strategic positioning fosters a visual and functional dialogue with the surrounding urban landscape, particularly with the central projection of the palace across the street.




Architectural Features and Interior Design
Accessibility and Functionality
The library annex is designed for dual-level access, with a lower-level entrance leading to a future cafeteria and an upper-level main entrance for library patrons. Inside, the building features a lobby, information counters, controlled access zones, and multi-story spaces, addressing both aesthetic and practical requirements.


Spatial Experience and Material Selection
With ceilings of varying heights, the interior design creates a diverse spatial experience. The choice of materials, especially the exposed concrete with board formwork, mirrors the textural qualities of the original building while introducing a contemporary edge.

Connecting New with Old
Structural and Aesthetic Harmony
The annex’s design carefully balances the need for modern facilities with respect for historical architecture. The seamless connection between the new and old structures is achieved through thoughtful material choices and spatial arrangements, ensuring a coherent yet evolving library environment.






Natural Light and Workspace Layout
The library's layout maximizes natural light and functionality. Reading desks along zigzag exterior walls and an atrium connecting different floors create a conducive environment for study and research, while the top floor's unique design directs daylight to the building's center.



Future of Library Design
The Württemberg State Library Annex by LRO GmbH & Co. KG Freie Architekten BDA is a testament to the evolving nature of library architecture design. By integrating historical context with modern needs, the project sets a new standard for future library developments worldwide.


All photographs are work of Brigida González
Popular Articles
Popular articles from the community
An Miên Lumière Cafe by xưởng xép, Ho Chi Minh City, Vietnam
An industrial-inspired café where layered steel and warm light create a dynamic, immersive environment shaped by reflection, depth, and perception.
Treehouse Apartment: A Warm Timber Interior Blending Craft, Play, and Contemporary Living
Warm timber apartment with integrated treehouse, combining natural materials, craftsmanship, and playful design to create a flexible, family-oriented living environment.
Inverted Architecture Installation by Studio Link-Arc: Exploring the Intersection of Architecture and Living Organisms
Inverted Architecture Installation by Studio Link-Arc blends mycelium, sustainability, inverted design, ecological cycles, and urban adaptive architecture in Shenzhen.
A Contemporary Take on Iranian Residential Architecture
A modern interior design in Mashhad that reinterprets brick, light, and spatial flow to create a warm, contemporary residential architecture.
Similar Reads
You might also enjoy these articles
The Ken Roberts Memorial Delineation Competition (Krob)
As the most senior architectural drawing competition currently in operation anywhere in the world, it draws hundreds of entries each year, awarding the very best submissions in a series of medium-based categories.
Waterfront Redevelopment and Urban Revitalization in Mumbai: Forging a New Dawn for Darukhana
A transformative waterfront redevelopment project reimagining Darukhana’s shipbreaking heritage into an inclusive urban future.
OUT-OF-MAP: A Call for Postcards on Feminist Narratives of Public Space
Rhizoma Design and Research Lab invites artists, designers, architects, researchers, and students to reflect on how feminist perspectives can reshape public space. Selected works will be exhibited in Barcelona, October 2026. Submissions open until 15 April 2026.
Documentation Work on Buddhist Wooden Temple
Architectural syncretism and cultural hybridity: A comparative study of the Buddhist temples in Chattogram Hill tracks
Explore Architecture Competitions
Discover active competitions in this discipline
The International Standard for Design Portfolios
The Global Benchmark for Architecture Dissertation Awards
The Global Benchmark for Graduation Excellence
Challenge to reimagine the Iron Throne
Comments (0)
Please login or sign up to add comments
No comments yet. Be the first to comment!