Innovative Bakery Design: Exploring Layers Restaurant & Bakery by Common Ground Workshop
Explore the innovative design of Layers Restaurant & Bakery in London, blending architectural elegance with a functional bakery and dining experience.
Discover the architectural and design brilliance behind Layers Restaurant & Bakery, a prime example of Innovative Bakery Design located in London's burgeoning Goodluck Hope Development.

Architectural Concept and Design
Vision and Inspiration
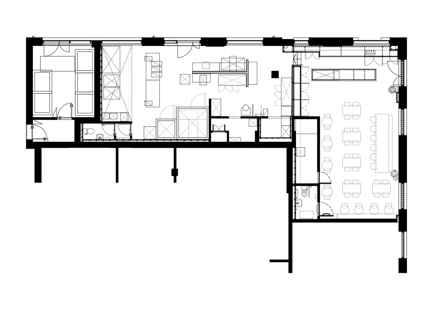
Common Ground Workshop aimed to create a multifunctional space that serves as a bakery, café, and restaurant while offering an exceptional customer experience. The design is not only functional but also aesthetically pleasing, setting a new standard for hospitality interiors.


Design Features and Functional Spaces
The layout of Layers Restaurant & Bakery is crafted to enhance the visibility of the baking process, inviting customers into a theatrical display of culinary art. This openness is designed to enrich the customer experience by merging the art of baking with the comfort of dining.

Material Palette and Aesthetic Choices
Innovative Use of Materials
The interior design features a vibrant combination of materials, including an orange Valchromat dado, recycled paper wall linings, and an orange terrazzo-clad main counter. These choices reflect a commitment to sustainability and visual impact, integral to Innovative Bakery Design.


Spatial Dynamics and Lighting
The use of double-height volume and whitewashed timber retail shelving not only maximizes the sense of space but also enhances product display and overall lighting. This strategic use of space and material works to create an inviting atmosphere that encourages longer visits and increased engagement.

Customer Experience and Functionality
Multifunctional Design
Layers Restaurant & Bakery is designed to function seamlessly as a café, restaurant, and workspace, providing flexibility and convenience to its patrons. This multifunctionality is a hallmark of modern design principles in commercial spaces, particularly in bustling urban settings like London.




Engagement and Interaction
The open design and central placement of the bakery counter allow for direct interaction between customers and chefs, fostering a sense of community and openness that is central to contemporary hospitality experiences.


Layers Restaurant & Bakery by Common Ground Workshop stands as a beacon of Innovative Bakery Design, combining functional design with aesthetic elegance to create a welcoming space for all visitors. This project serves as an inspiration for future designs in the hospitality industry, emphasizing sustainability, customer engagement, and architectural beauty.


All photographs are work of Lorenzo Zandri
Popular Articles
Popular articles from the community
Atelier Macri Concept Store Interior Design by CASE-REAL
Atelier Macri store features a "ko" counter, walnut wood details, cork displays, blending retail, gallery, and seamless customer experiences.
A Contemporary Take on Iranian Residential Architecture
A modern interior design in Mashhad that reinterprets brick, light, and spatial flow to create a warm, contemporary residential architecture.
Flamboyant House by Juliana Camargo + Prumo Projetos
Modern Brazilian house integrating existing tree, pool, and volumes with glass, wood, and transitional spaces blending interior, exterior, and landscape seamlessly.
Inverted Architecture Installation by Studio Link-Arc: Exploring the Intersection of Architecture and Living Organisms
Inverted Architecture Installation by Studio Link-Arc blends mycelium, sustainability, inverted design, ecological cycles, and urban adaptive architecture in Shenzhen.
Similar Reads
You might also enjoy these articles
The Ken Roberts Memorial Delineation Competition (Krob)
As the most senior architectural drawing competition currently in operation anywhere in the world, it draws hundreds of entries each year, awarding the very best submissions in a series of medium-based categories.
Waterfront Redevelopment and Urban Revitalization in Mumbai: Forging a New Dawn for Darukhana
A transformative waterfront redevelopment project reimagining Darukhana’s shipbreaking heritage into an inclusive urban future.
OUT-OF-MAP: A Call for Postcards on Feminist Narratives of Public Space
Rhizoma Design and Research Lab invites artists, designers, architects, researchers, and students to reflect on how feminist perspectives can reshape public space. Selected works will be exhibited in Barcelona, October 2026. Submissions open until 15 April 2026.
Documentation Work on Buddhist Wooden Temple
Architectural syncretism and cultural hybridity: A comparative study of the Buddhist temples in Chattogram Hill tracks
Explore Architecture Competitions
Discover active competitions in this discipline
The International Standard for Design Portfolios
The Global Benchmark for Architecture Dissertation Awards
The Global Benchmark for Graduation Excellence
Challenge to design luxury tourism on rails
Comments (0)
Please login or sign up to add comments
No comments yet. Be the first to comment!