Innovative Educational Architecture: A Closer Look at CAA Liangzhu Campus Phasen Ⅰ
Explore CAA Liangzhu Campus Phasen Ⅰ, a pinnacle of innovative educational architecture designed by Atelier FCJZ, fostering dynamic learning environments.
The China Academy of Art's Liangzhu Campus Phasen Ⅰ, designed by Atelier FCJZ, is a groundbreaking example of innovative educational architecture. Situated in Hangzhou, China, this campus is a testament to how architectural innovation can intertwine with educational needs to create dynamic, multifunctional spaces that enhance student and faculty experiences.






Architectural Vision and Design Principles
Embracing Openness and Flexibility
Atelier FCJZ’s design philosophy for the Liangzhu Campus emphasizes openness and flexibility. The campus layout encourages interaction and connectivity, breaking traditional barriers between learning and living spaces. This approach is evident in the spatial organization, where studios, dormitories, and recreational areas seamlessly integrate, promoting a vibrant academic community.







Innovative Use of Space
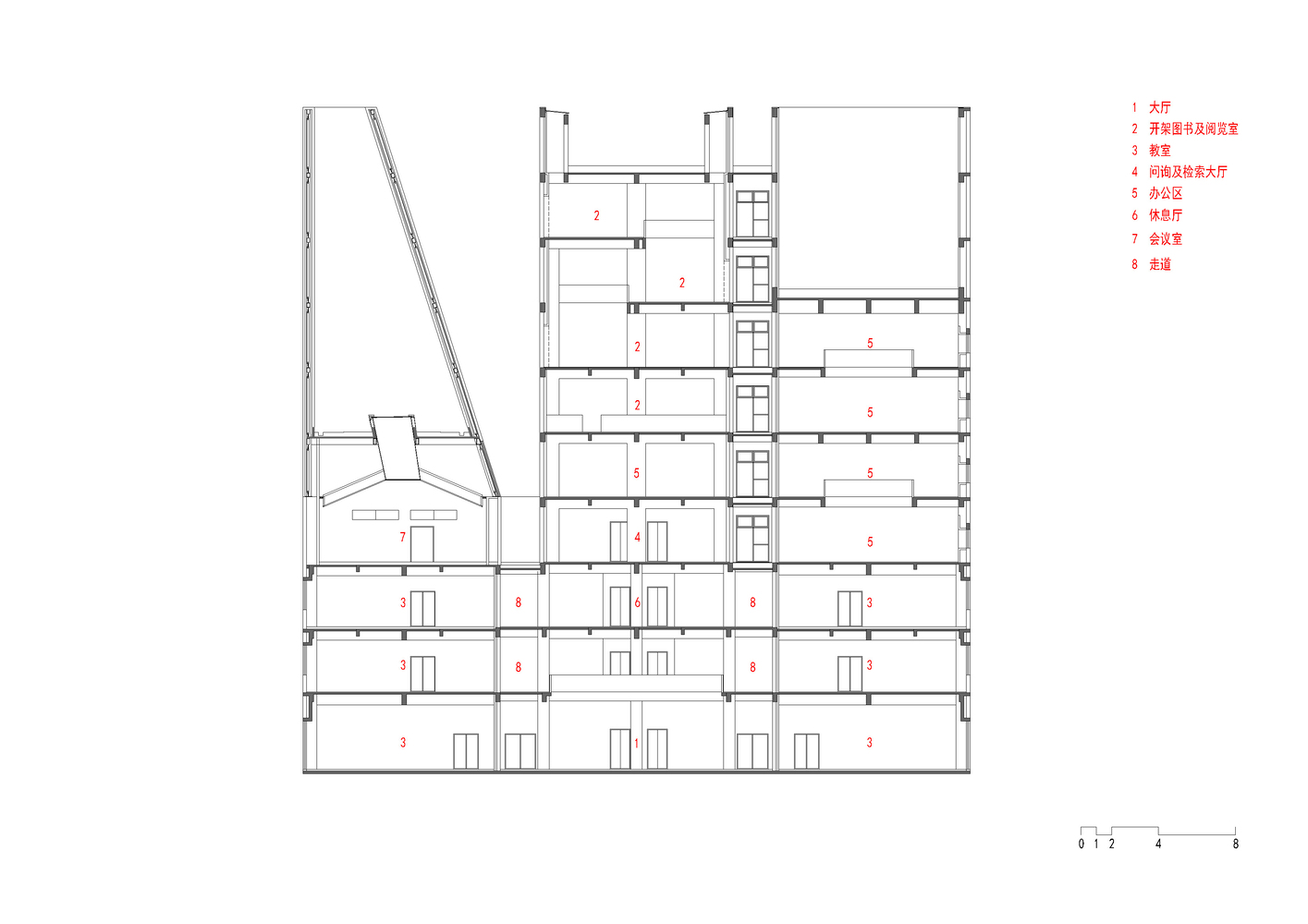
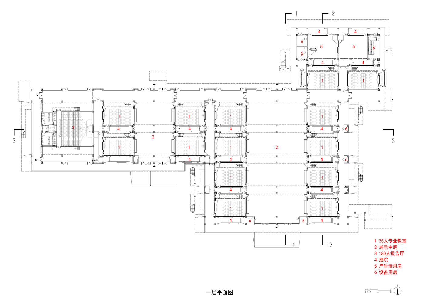
The architectural use of space at the Liangzhu Campus is designed to support a hands-on pedagogical approach. Classrooms and studios are not just places for traditional learning but are dynamic areas where students can engage in design reviews, exhibitions, and even sports activities. This multifunctionality supports a diverse range of educational activities, crucial for fostering creativity and innovation.






Key Buildings and Facilities
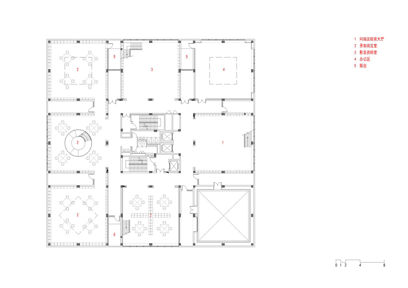
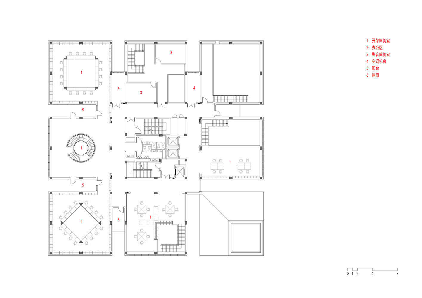
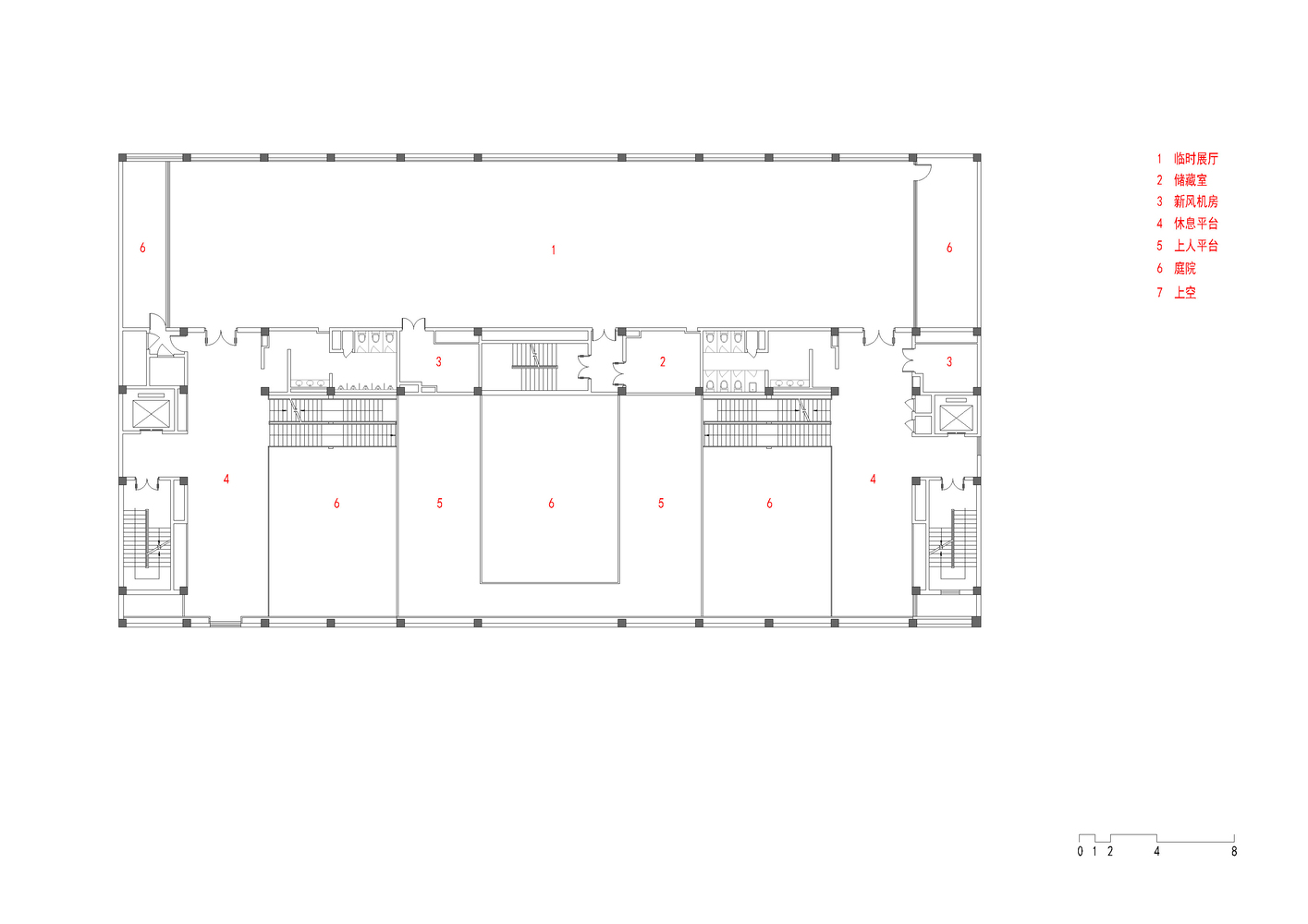
The Role of Studios and Dormitories
The studios at Liangzhu are characterized by a series of arches that create an open, airy environment, encouraging students to interact beyond their private workspaces. Above these studios, the dormitories are strategically placed to provide quick access to workshops, reflecting the design’s emphasis on integrating living and learning spaces.









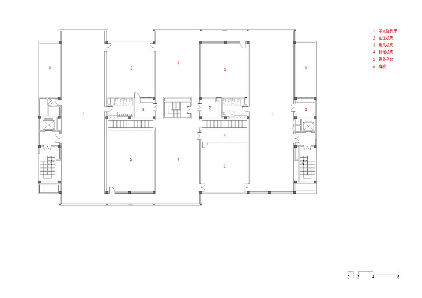
Library and Research Facilities
The library, structured vertically, comprises nine towers, each designed to accommodate significant research projects or study groups. This vertical arrangement not only saves space but also aligns with the innovative architectural ethos by promoting an environment conducive to academic research and collaboration.









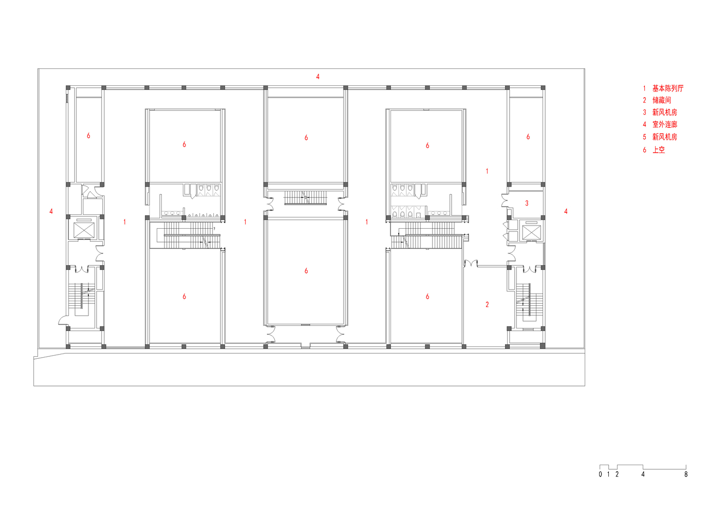
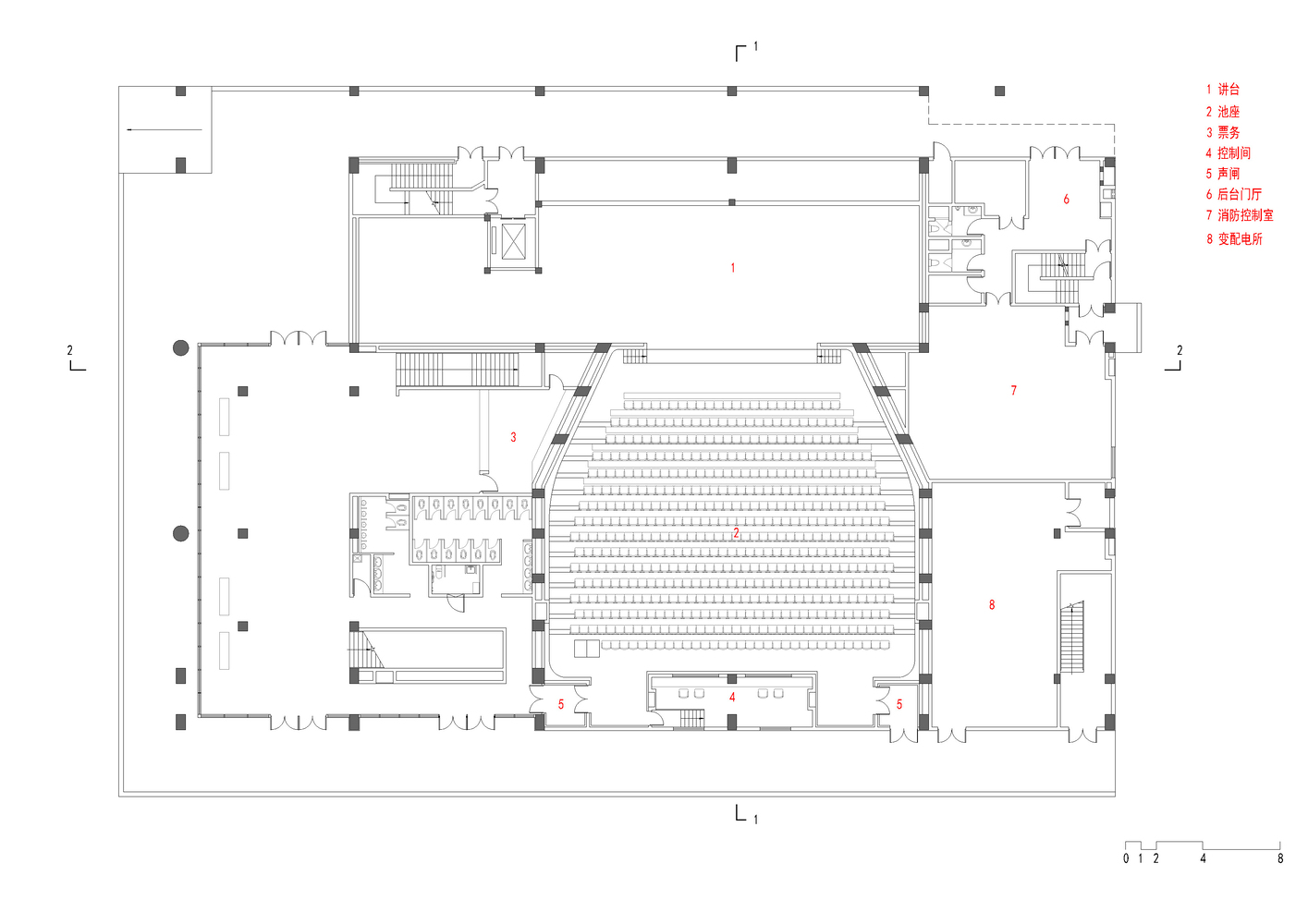
The Multi-functional Gymnasium
Reflecting the campus’s architectural flexibility, the gymnasium’s design supports various activities, from sports to large-scale events and banquets. Its simple yet effective layout with natural lighting and open space invites a wide range of uses, illustrating the versatility at the heart of innovative educational architecture.




Integrating Architecture with Student Life
Student-Driven Spaces
At Liangzhu, students are encouraged to take an active role in shaping their environment. This includes designing furniture for shared spaces in the dormitories and participating in the continuous redesign and utilization of communal areas, embodying the educational philosophy of learning through doing.








Environmental and Social Integration
The campus design also considers environmental integration, with buildings and facilities designed to blend with the landscape, enhancing both functionality and aesthetic appeal. This harmonization of architecture and environment underscores the innovative approaches to educational architecture.







The CAA Liangzhu Campus Phasen Ⅰ by Atelier FCJZ stands as a beacon of innovative educational architecture, demonstrating how spaces can be designed to foster an engaging and interactive educational environment. This project not only accommodates the practical needs of education but also inspires new ways of thinking about learning spaces in the 21st century.






All photographs are work of Shiqi Li, Fangfang Tian
Popular Articles
Popular articles from the community
An Miên Lumière Cafe by xưởng xép, Ho Chi Minh City, Vietnam
An industrial-inspired café where layered steel and warm light create a dynamic, immersive environment shaped by reflection, depth, and perception.
Atelier Macri Concept Store Interior Design by CASE-REAL
Atelier Macri store features a "ko" counter, walnut wood details, cork displays, blending retail, gallery, and seamless customer experiences.
On the Brooks House by Monsoon Collective – A Contemporary Kerala Home Rooted in Tradition
Kerala home blending tradition and modernity with water-inspired design, brick architecture, courtyard planning, and sustainable rainwater harvesting strategies.
Inverted Architecture Installation by Studio Link-Arc: Exploring the Intersection of Architecture and Living Organisms
Inverted Architecture Installation by Studio Link-Arc blends mycelium, sustainability, inverted design, ecological cycles, and urban adaptive architecture in Shenzhen.
Similar Reads
You might also enjoy these articles
The Ken Roberts Memorial Delineation Competition (Krob)
As the most senior architectural drawing competition currently in operation anywhere in the world, it draws hundreds of entries each year, awarding the very best submissions in a series of medium-based categories.
Waterfront Redevelopment and Urban Revitalization in Mumbai: Forging a New Dawn for Darukhana
A transformative waterfront redevelopment project reimagining Darukhana’s shipbreaking heritage into an inclusive urban future.
OUT-OF-MAP: A Call for Postcards on Feminist Narratives of Public Space
Rhizoma Design and Research Lab invites artists, designers, architects, researchers, and students to reflect on how feminist perspectives can reshape public space. Selected works will be exhibited in Barcelona, October 2026. Submissions open until 15 April 2026.
Documentation Work on Buddhist Wooden Temple
Architectural syncretism and cultural hybridity: A comparative study of the Buddhist temples in Chattogram Hill tracks
Explore Architecture Competitions
Discover active competitions in this discipline
The International Standard for Design Portfolios
The Global Benchmark for Architecture Dissertation Awards
The Global Benchmark for Graduation Excellence
Challenge to design public laboratory
Comments (0)
Please login or sign up to add comments
No comments yet. Be the first to comment!