Innovative Educational Architecture in Iran: Learning Garden by Tech Faru and Naghshan Co
A reimagined architectural space blending Iranian tradition with modern design to inspire learning and interaction in Mashhad, Iran.
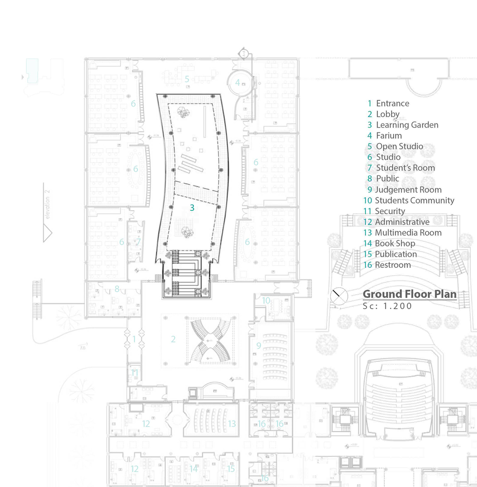
The Learning Garden, designed by Tech Faru and Naghshan Co, is a transformative architectural project in Mashhad, Iran. This 1,200 m² educational space reimagines a previously skeletal U-shaped building into a vibrant hub for architectural education. By combining Iranian architectural elements with contemporary functionality, the Learning Garden creates a holistic environment that fosters interaction, learning, and connection with nature.


Design Philosophy
Reviving Dead Spaces
A core goal of the Learning Garden was to revive underutilized and missing spaces within the original building. The architects transformed the underground floor by connecting it to the garden through a sunken courtyard and staircase. This design intervention enhanced functionality, allowing the space to become a gathering point for students and bridging the gap between indoor and outdoor environments.


Iranian Architectural Influences
The project celebrates Iranian architecture by incorporating features such as:
- Overlapping frames and transparency to create layers of visual depth.
- Elements like water, light, colored glass, and columns evoke the essence of a Persian garden.
- Seasonal adaptability with an atrium space serving as a winter garden and a wind-catcher effect in summer to create a cool, cellar-like environment.
These design choices reinforce the connection between architecture, culture, and nature, creating a timeless educational space.



Interactive Learning in Architecture
The Learning Garden is not just a building—it’s a learning tool. Students actively participated in observing the construction process, transforming the site into a living classroom. This approach provided hands-on insights into planning and construction, enriching their educational experience.


Key Features
- Behavioral Patterns: The design prioritizes the behavior and needs of its users, creating spaces that encourage collaboration and creativity.
- Colorful Learning Spaces: Thoughtfully applied colors enhance the atmosphere and stimulate a positive learning environment.
- Microclimate Design: The atrium’s dynamic design adapts to seasonal changes, offering functionality and comfort year-round.


Impact on Educational Architecture
The Learning Garden stands as a pioneering example of innovative educational architecture in Iran. It bridges tradition and modernity, offering a blueprint for how architecture can inspire and support learning. By revitalizing unused spaces and integrating nature, the project transforms a mundane structure into a thriving academic ecosystem.

The Learning Garden by Tech Faru and Naghshan Co showcases how thoughtful architecture can reshape educational spaces. With its blend of Iranian architectural traditions and modern educational needs, this project serves as a testament to the power of design in fostering creativity, interaction, and cultural identity.




All photographs are work of Parham Taghioff
Popular Articles
Popular articles from the community
Louis Malle Cinema: A Limestone Cultural Landmark Revitalizing Community Life in Prayssac
Limestone cinema extension with public forecourt, blending heritage and modern design to create flexible cultural spaces and strengthen community interaction.
A Contemporary Take on Iranian Residential Architecture
A modern interior design in Mashhad that reinterprets brick, light, and spatial flow to create a warm, contemporary residential architecture.
The Ken Roberts Memorial Delineation Competition (Krob)
As the most senior architectural drawing competition currently in operation anywhere in the world, it draws hundreds of entries each year, awarding the very best submissions in a series of medium-based categories.
Treehouse Apartment: A Warm Timber Interior Blending Craft, Play, and Contemporary Living
Warm timber apartment with integrated treehouse, combining natural materials, craftsmanship, and playful design to create a flexible, family-oriented living environment.
Similar Reads
You might also enjoy these articles
The Ken Roberts Memorial Delineation Competition (Krob)
As the most senior architectural drawing competition currently in operation anywhere in the world, it draws hundreds of entries each year, awarding the very best submissions in a series of medium-based categories.
Waterfront Redevelopment and Urban Revitalization in Mumbai: Forging a New Dawn for Darukhana
A transformative waterfront redevelopment project reimagining Darukhana’s shipbreaking heritage into an inclusive urban future.
OUT-OF-MAP: A Call for Postcards on Feminist Narratives of Public Space
Rhizoma Design and Research Lab invites artists, designers, architects, researchers, and students to reflect on how feminist perspectives can reshape public space. Selected works will be exhibited in Barcelona, October 2026. Submissions open until 15 April 2026.
Documentation Work on Buddhist Wooden Temple
Architectural syncretism and cultural hybridity: A comparative study of the Buddhist temples in Chattogram Hill tracks
Explore Architecture Competitions
Discover active competitions in this discipline
The International Standard for Design Portfolios
The Global Benchmark for Architecture Dissertation Awards
The Global Benchmark for Graduation Excellence
Challenge to reimagine the Iron Throne
Comments (0)
Please login or sign up to add comments
No comments yet. Be the first to comment!